Edi­fi­cio La Cou­lou­vrè­nie­re a Gi­ne­vra

Data di pubblicazione
23-10-2023

L’onda e la griglia*

Dagli anni Settanta, il processo di deindustrializzazione ha comportato una serie di difficoltà, ma anche di opportunità socioeconomiche, e continua a plasmare le città europee di oggi.

Le rive dei fiumi, apprezzate per le strutture energetiche e di trasporto che offrivano alle fabbriche, sono oggi aree privilegiate per le attività ricreative e le abitazioni delle classi agiate. Le rive del Rodano a Ginevra non fanno eccezione alla regola e un minuscolo lotto di terreno circostante stuzzica l’appetito di speculatori e costruttori. Desideroso di preservare un livello minimo di mescolanza sociale nel centro della città, il Cantone ha deciso di vendere un piccolo terreno di sua proprietà tra la diga di Seujet e il ponte di Sous-Terre alla Fondation Nicolas Bogueret, per costruire un centro di accoglienza per persone in difficoltà e alcuni alloggi sociali. Nel 2018, a seguito di un concorso a inviti, l’Atelier Archiplein è stato scelto per progettare e realizzare l’edificio che ora si staglia orgogliosamente sulle rive del Rodano, all’ingresso della rue de la Coulouvrenière.

L’equazione impossibile

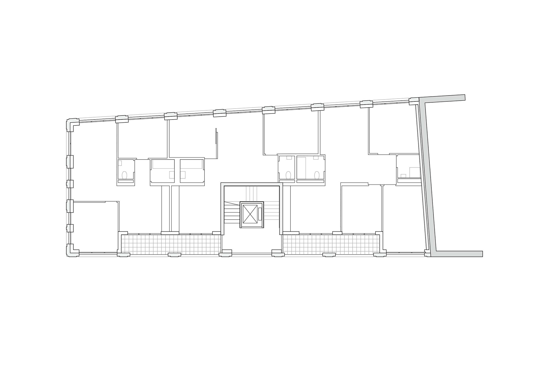
Gli architetti Marlène Leroux e Francis Jacquier hanno lavorato all’interno di uno schema estremamente vincolato, dettato dall’edificio adiacente alto tre piani, che è stato – a torto o a ragione – identificato come caratteristico del patrimonio industriale di Ginevra. Nel quadro di una dichiarazione preliminare di costruzione (DP) e delle precise aspettative del committente, i progettisti hanno dovuto inserire una struttura al piano terra e dieci appartamenti su tre livelli all’interno di una superficie edificabile non propriamente rettangolare di 28 x 10 m, con un’altezza di gronda di poco meno di 12 m. Risolvere questa equazione era chiaramente una sfida. Sebbene gli architetti abbiano gestito abilmente la distribuzione in pianta, attraverso una zona di disimpegno e circolazione e dei corridoi di accesso semi-privati, non hanno potuto superare, secondo normativa, l’altezza minima dei soffitti a 2,40 m nelle abitazioni, fatto che ha indubbiamente avuto un impatto sullo spazio interno. Tuttavia, i soggiorni-cucina si aprono generosamente passando dal lato strada, a sud, verso nord con una vista spettacolare sul Rodano. Mentre i bagni non hanno finestre, nel cuore dell’edificio, le camere da letto sono molto aperte verso il fiume. Oltre a essere privi di elementi portanti, quindi riconfigurabili e per questo sostenibili, i dieci alloggi sociali offrono, in definitiva, un’esperienza sensoriale che deriva sia dalla loro luminosità sia dal ricco apparato materico, evidente in particolare nei solai a vista in legno e nella pietra da taglio presente in alcuni punti all’interno.

Pietra sempre

Con questo edificio, l’Atelier Archiplein porta avanti un lavoro pionieristico in Svizzera sulla costruzione strutturale in pietra calcarea. I solai misti legno-calcestruzzo (spessore 36 cm) poggiano su un anello perimetrale portante, realizzato in blocchi di pietra di Sireuil di 30 cm di spessore, altamente resistenti alla pioggia e al freddo, e su un nucleo centrale destinato alla circolazione, realizzato in blocchi di pietra di Brétigny (spessore 25 cm), più resistenti alla compressione, e messi in post-tensione tramite dei cavi, nel rispetto delle norme antisismiche. Assemblati senza vincoli né cemento armato, i blocchi provengono da cave francesi, più competitive in termini di prezzo, mentre i solai in legno lamellare incrociato sono stati prodotti con legname di foreste svizzere.

Dopo il progetto di una torre residenziale, non costrui­ta, nell’area della stazione di Chêne-Bourg e l’acclamato intervento residenziale di Plan-les-Ouates – due progetti realizzati insieme a Gilles Perraudin – Marlène Leroux e Francis Jacquier danno ancora una volta prova della fattibilità di costruire alloggi collettivi con materiali naturali e, soprattutto, a basse emissioni di CO2, in un paese dove, purtroppo, il cemento la fa ancora da padrone. Il progetto di rue de la Coulouvrenière è quindi il prodotto di un’etica ambientalista che trova espressione in un’estetica particolare.

Composizione

Le sfide urbanistiche, funzionali, tecniche e ambientali sono ben lungi dal definire interamente questo edificio, che obbedisce anche a una logica puramente architettonica. I prospetti dell’edificio sono disposti con precisione e composti con grande regolarità. Vi è continuità tra gli architravi e i pilastri, con rientranze su entrambi i lati delle finestre, larghe fino a tre metri.

I giunti, poco marcati, tendono ad astrarre le tre facciate a nord, ovest e sud, che compongono una griglia con un rapporto vuoto/pieno di 4:1. In contrasto con la pietra calcarea dai toni chiari e il grigio topo degli elementi di falegnameria esterna, le modanature dei davanzali delle finestre, il grigliato delle ringhiere in stile industriale e le mantovane metalliche in lamiera piegata sono dipinte di nero. Espressione del razionalismo strutturale sostenuto dall’Atelier Archiplein, il linguaggio architettonico dell’edificio contrasta con quello dei manufatti adiacenti, piuttosto che reinterpretarlo. La griglia della facciata – vista dall’altra sponda del Quai du Seujet, così come dagli appartamenti – sembra effettivamente entrare in risonanza con l’onda blu-verde, cristallina e vivace. Traduzione Francesca Acerboni

Approfondimenti

* Il testo è apparso nel numero 9/2023 di Tracés, «1400 m, une altitude sous influence»

Luogo
Rue de la Coulouvrenière 1, Ginevra (GE)

 

Committenza
Fondation Nicolas Bogueret

 

Architettura
Atelier Archiplein, Ginevra

 

Collaboratori
F. Jacquier, M. Leroux, A. Bandolin, P. Tovaglieri

 

Direzione lavori
FdMP Réalisation, Ginevra

 

Ingegneria civile
B+S ingénieurs, Ginevra

 

Progetto impianti elettrici
Swisspro, Ginevra

 

Fisica delle costruzioni
Després études énergétiques, Cologny

 

Acustica
BatJ, Ginevra

 

Progetto serramenti
Barro; Magnin-Paroisse, (GE)

 

Fotografia
Leo Fabrizio

 

Date
concorso 2018, progetto 2018-2021, realizzazione 2021-2023

 

Certificazione o Standard energetico
THPE

 

Intervento e tipo edificio
nuova costruzione

 

Categoria edificio (Ae)
abitazione plurifamiliare 900 m2, amministrazione 300 m2

 

Fattore di forma (Ath/Ae)
1.14 Riscaldamento e acqua calda: teleriscaldamento GéniLac Requisito primario involucro dell’edificio: 66,3 MJ/m2a (valore limite 68,7 MJ/m2a)

Articoli correlati