Edi­fi­cio am­mi­ni­stra­ti­vo nel Cam­pus No­var­tis

Fabrikstrasse 18, Basilea

I nuovi edifici all’interno del Campus sono definiti da una normativa urbanistica uniforme che segue il progetto del masterplan affidato a Vittorio Magnago Lampugnani. Considerati individualmente, i manufatti presentano tuttavia un carattere proprio e differenziato.

Data di pubblicazione
30-06-2015
Revision
08-10-2015

È interessante vedere come gli edifici mostrino una propria unicità, una propria personalità, una propria impronta, come fossero attori che interpretano lo stesso ruolo in modo diverso.

Questa visione di un insieme di edifici visti come attori è stata l’idea che ha ispirato il progetto. Il nostro intervento viene percepito come un elemento all’apparenza convenzionale, tuttavia la natura del suo involucro esterno gli conferisce al tempo stesso un certo mistero. Abbiamo immaginato che ogni fabbricato indossi il proprio abito all’interno del Campus, reagendo con il proprio accento, interpretando il proprio ruolo e mostrando un proprio stile caratteristico. Lavorando a questo concetto, la presenza del nostro edificio viene enfatizzata da una veste seducente che attrae lo spettatore per la geometria precisa e l’aspetto lucente. La struttura reticolare in marmo bianco della «pelle» che lo avvolge brilla alla luce naturale del giorno. Uno dei corpi di fabbrica, costruito su un sito di 55 x 20.70 m per un’altezza di 23.50 m (28.50 m considerando anche l’attico) accoglierà la nuova sede del quartier generale di Novartis.

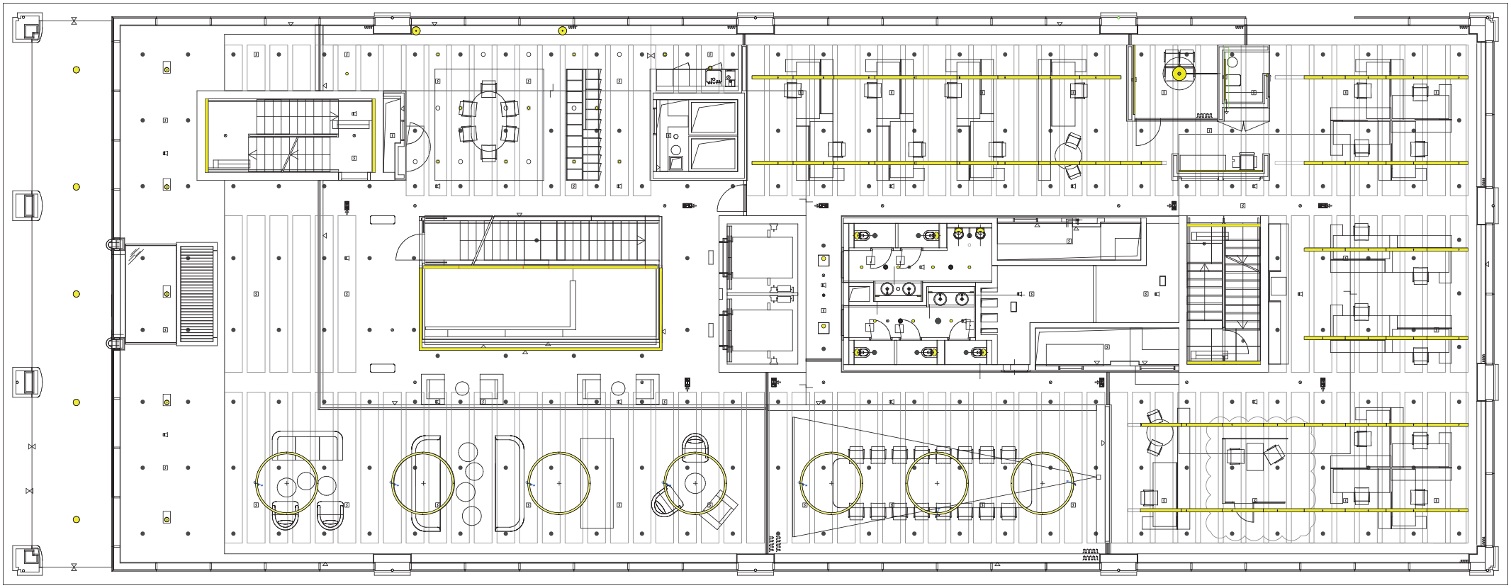
Il progetto si sviluppa su ogni piano in due aree concentriche. Gli spazi destinati alle attività pubbliche e condivise, come le aree intercomunicanti, l’atrio, le scale, alcune sale riunioni e le zone relax, sono disposti al centro. Nella zona perimetrale sono previsti gli spazi di lavoro individuali organizzati come un open space continuo, in corrispondenza della facciata.

In conformità con le linee guida urbanistiche riferite alla Fabrikstrasse, è prevista una strada coperta con il primo portico a doppia altezza. La porta di accesso generale all’edificio è profilata da due pareti verticali rivestite in marmo sulla doppia altezza. Una volta entrati nello stabile, seguendo l’asse dell’ingresso principale ci si trova di fronte l’atrio che occupa l’intera sezione verticale dell’edificio. All’aumentare dell’altezza l’atrio si riduce e l’apertura diventa più ampia. La luce del sole viene filtrata dall’alto sui piani e sull’entrata inondando di luce il nucleo centrale dell’edificio.

È previsto un piano terra e un ammezzato occupato solo parzialmente, che lascia un ampio spazio libero a doppia altezza all’ingresso. I piani superiori hanno carattere più privato e presentano un’organizzazione simile e una disposizione programmatica. In cima all’edificio è previsto un attico che occupa gran parte del giardino pensile. In questa zona si prevede una zona living e relax con strutture per servizio catering che potranno essere ampliate. L’attico comprende anche una grande sala riunioni che accoglierà la Group Executive Conference room.

Committente: Novartis Pharma AG; Basilea

Architettura: Juan Navarro Baldeweg; Madrid

Collaboratori: E. Barroso Alonso, C.Araujo Palop, A. Hermosilla Minguijón, P. del Cid Mendoza, G. Dürig Robledo e C. Guimaraes Da Costa

Direzione Lavori: E. Barroso Alonso, C. Araujo Palop, A. Hermosilla; Madrid

General planner: Nissen & Wentzlaff, Daniel Wentzlaff, Michael Muellen, Sven Morhrad, Martin Schelgel; Basilea

Ingegneria civile: Walther Mory Maier AG, Gilbert Santini; Basilea

Facciate: Emmer Pfenninger Partner AG, Martin Friedli, Jeanette Leu; Münchenstein

Impiantistica: KIWI AG, Markus Weber; Basilea

Illuminotecnica: Hübscher AG, Michael Hübscher; Basilea

Arredo: Iria Degen interiors, Iria Degen, Michela Chiavi; Zürich

Project manager: Christian Kaldewey; Basilea

Plastici: Juan de Dios Hernández & Jesús Rey, S.L.; Madrid

Fotografia: Paolo Rosselli; Milano, Peter Hebeisen; Zurigo

Date: progetto 2010, realizzazione 2012-2013

Magazine

Articoli correlati