Ler­nen un­ter blauem Him­mel

Ergänzend zur Sanierung des Schulhauses Seedorf BE entstand ein Holzbau für den Kindergarten und die ersten Schuljahre. Thomas De Geeter Architektur entlehnt dessen Form den umgebenden Landwirtschaftsgebäuden und kleidet ihn mit zurückhaltenden Farben.

Date de publication
23-04-2020

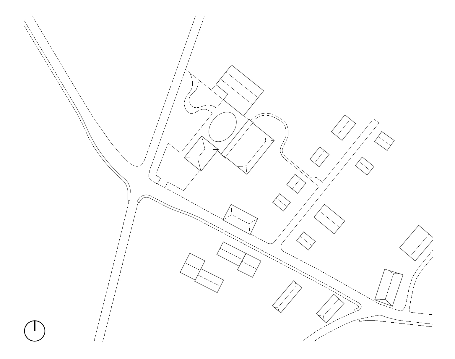
Am Anfang stand der Entschluss von fünf benachbarten Gemeinden, ihre Schulen auf drei Standorte zu reduzieren und diese dafür zu stärken. Einer davon ist Seedorf, der zentrale Ort einer rund 3000 Einwohner zählenden politischen Gemeinde im Berner Seeland. Unter diesem Namen sind zehn einzelne Dörfer und Weiler zusammengefasst.

In der Nähe einer ehemaligen Zisterzienserabtei aus dem  12. Jahrhundert, die seit dem 16. Jahrhundert als Sitz der bernischen Landvogtei genutzt wurde, haben sich schon früh Landwirtschaft und wohlhabende Familien angesiedelt. So erklärt sich die bauliche Vielfalt, die das Dorf bietet. Zwischen den noch heute bewirtschafteten Bauernhöfen finden sich prachtvolle steinerne Häuser. Allen voran das denkmalgeschützte Gebäude der alten Schule, das es zu sanieren und dessen Kapazität es zu erweitern galt.

Zu dem 2016 ausgelobten Wettbewerb wurden acht Büros eingeladen. Im selektiven Verfahren entschied sich die Jury für die Realisierung des Entwurfs von Thomas De Geeter aus Zürich. Für den jungen Architekten ist dies nach einer Reihe von erfolgreichen Wettbewerbsbeiträgen der erste Bau, den er umsetzen konnte. 

Der Neubau konnte als Holzkonstruktion realisiert werden. Dafür sprach neben den ökologischen und nachhaltigen Aspekten vor allem die überschaubare Bauzeit. Denn der Schulbetrieb konnte nur für maximal ein Jahr in ein Provisorium ausgelagert werden und musste zum neuen Schuljahr wieder möglichst reibungslos funktionieren.

Ausserdem ist, anders als bei Bauten, die von Wärmedämmputz umschlossen sind, eine Gliederung der Fassaden und Innenraumwände im Holzbau ohne grossen baulichen und finanziellen Aufwand möglich. Diesen Gestaltungsspielraum nutzte De Geeter. Voraussetzung dafür war eine hohe Präzision bei der Detaillierung.

Der visuelle Anker

Die früher einmal lachsfarbene Putzfassade des alten Schulhauses erhielt nach längeren Verhandlungen mit der Denkmalpflege einen hellen Anstrich, der nur noch ganz zart lachsfarben getönt ist. Graugrün getünchte Ecken, Simse und Sockelzonen betonen das orthogonale System und die Symmetrie des Baukörpers. Zusammen mit den neuen hellroten Biberschwanz-Dachziegeln ist das Schulhaus in milden, wohltuenden Farben gefasst. Das Weinrot der Fensterläden bildet darin einen expressiven Akzent – ein Farbkanon, der in der Gegend des grünlich-grauen Sandsteins um Bern herum häufig anzutreffen ist.

Eine ausführlichere Version dieses Artikels finden Sie in TEC21 11/2020 «Schulen in neuem Kleid».

In den Innenräumen kommt dem dunklen Rot ein anderer Stellenwert zu: Türen, Holzeinbauten, Linoleumböden und Sockelzonen bilden Linien und Flächen, die umgeben von naturbelassenem Eichenholz, schwarz gemustertem Terrazzoboden und hellen Anstrichen die innere Organisation betonen. Was so selbstverständlich und gewachsen wirkt, ist fast alles neu: Einbauten der vergangenen Jahrzehnte hatten den Innenraum verunklärt. Das Farbkonzept, das sich vom Boden zur Decke aufhellt, unterstreicht die Massivität des Hauses.

Eine Scheune für die Kinder

Ganz anders die Architektursprache des neuen Schulgebäudes, das sich vor den Hügel schmiegt und das alte Schulhaus flankiert. Sein Volumen ordnet sich dem Bestand unter und fügt sich in das Gewebe von Nutzbauten wie Scheunen und Remisen, das das Dorf durchzieht. Entsprechend ist es als Holzkonstruktion erstellt und von einem grossen Krüppelwalmdach überspannt.

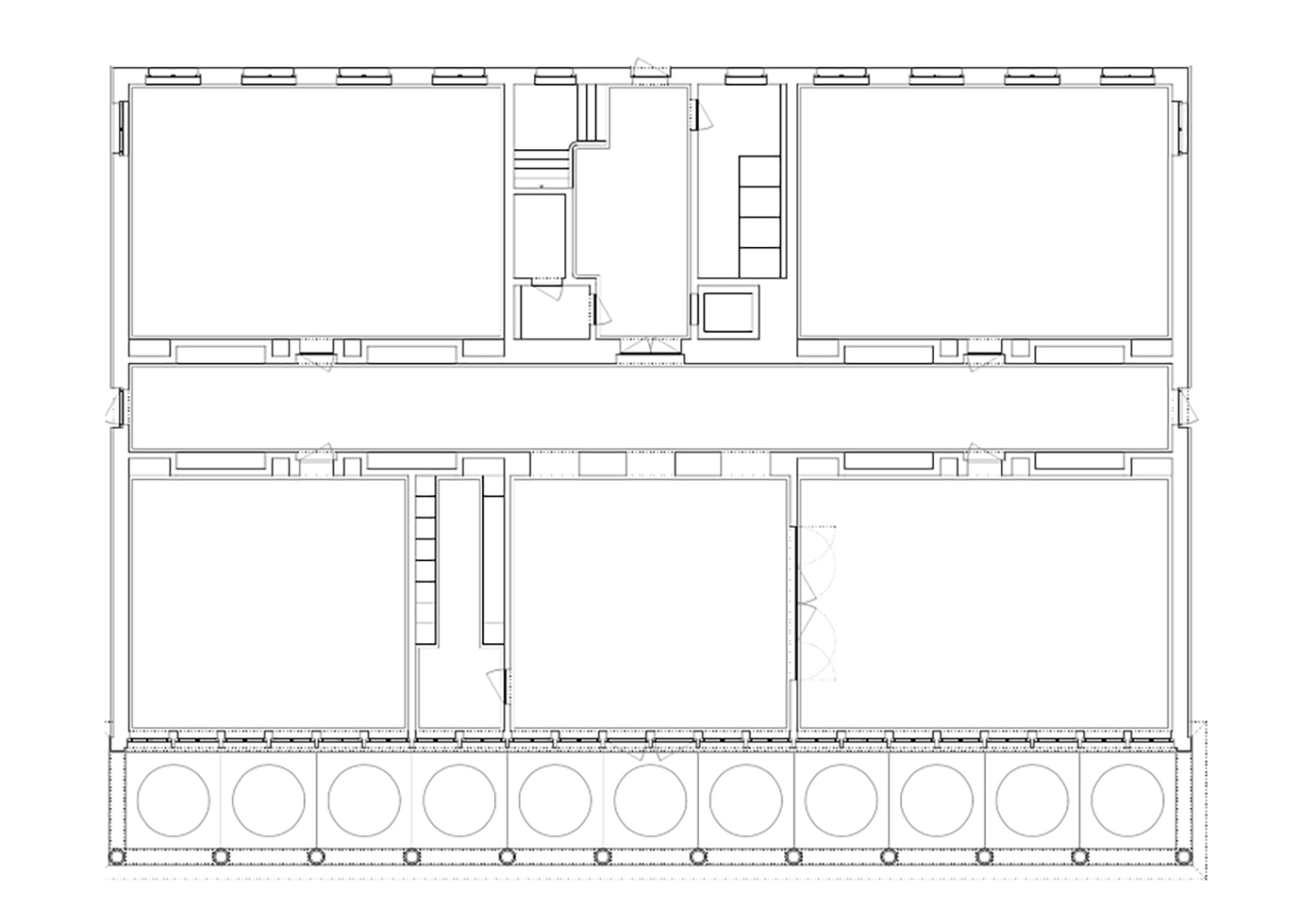
Von aussen erscheint das Haus in der Frontansicht eingeschossig und nimmt sich zurück, weil die hohe Dachfläche das Obergeschoss zum Hof und zur offenen Landschaft hin verbirgt. Umso überraschender  sind die grossen Flächen im Innern. Das Erdgeschoss ist denkbar einfach: Zwei Erschliessungsachsen teilen die Fläche kreuzförmig, sodass vier grosse Räume entstehen.

Die zum Hof gelegene Achse mit Bibliothek und Mehrzwecksaal ist bis unters Dach offen und wirkt dadurch grosszügig. Eingangsbereich und Mehrzwecksaal sind nur durch Glastüren voneinander abgegrenzt und eignen sich für übergreifende Nutzungen. Das Entree streckt sich gegen den Hang durch zum grosszügigen Treppenhaus. Im Obergeschoss befinden sich zwei weitere Unterrichtsräume zu seinen Seiten. Sie verbindet ein breiter Korridor, der sich auch als Spiel­fläche eignet: Bullaugen bieten einen Einblick in die hohen Erdgeschossräume.

Ungewöhnlich ist eine Reihe von dorischen Säulen aus Holz, die dem gesamten Erdgeschoss zum Schulhof hin vorgelagert ist. Zwischen der durchlässigen Erdgeschossfassade und den Säulen, die den Dachüberhang tragen, entsteht ein geschützter Aussenraum. Für die Schüler eine gute Ergänzung des Aufenthaltsbereichs. Zusätzlich zu seiner Funktion als Regenschutz ist er ein wichtiger Schattenspender.

Es entsteht eine Verbindung zum Oval inmitten des neu angelegten Schulhofs und damit auch eine Nähe zum Schulhaus und den Nebengebäuden der Sporthalle, die sich um den Hof gruppieren. Mit steigendem Alter durchwandern die Kinder zuerst den Neubau von unten nach oben, wechseln für die oberen Klassenstufen hinüber ins alte Schulhaus und besuchen dort die Räume der Tagesschule, die ihren Platz unter dem Dach beibehalten hat.

Farbige Ableitungen

Bezogen auf die Materialität und Kubatur fügt sich der Neubau also in einen anderen Kontext ein. Es kam nicht infrage, die expressive Gestaltung des Schulhauses auf den leichten Holzbau zu übertragen. Durch eine Interpretation einzelner Farben, Proportionen und Bauteile steht er aber in einem subtilen Dialog zum Bestand. Mit den weinroten Holzläden der alten Schule im Augenwinkel erklärt sich der Farbton der palisanderfarben gebeizten Säulen, die in Wirklichkeit aus massiver Fichte bestehen. Die ins Material eindringende Oberflächenbehandlung überspielt die Spannungsrisse im Holz, die teils schon jetzt aufkommen – ein deckender Lackanstrich würde diese nicht so einfach verzeihen.

Die umlaufende Holzfassade ist in einem ab­getönten Weiss gehalten. Mit dieser Wahl sind die ­Architekten sicher nicht die Ersten. Im aktuellen Baugeschehen, insbesondere wenn es um Bauten für ­Kinder geht, ist eine farbliche Zurückhaltung dennoch bemerkenswert. Der Anstrich, der die Holzstruktur noch erkennen lässt, hebt den Bau von den wirklichen ­Scheunen der Umgebung ab und knüpft eine Verbindung zum alten Schulhaus. Gleichzeitig wirkt das Gebäude sommerlich und leicht.

Mut zur Bescheidenheit

Im Parterre ist der Boden mit Terrakottafliesen belegt. Ihre erdige Farbe reiht sich ein in die Rottöne der Holzsäulen und der Fensterläden am alten Schulhaus. Im Treppenhaus und im Obergeschoss schliesst sich ein Bodenbelag mit Eichenholzparkett an und setzt diese Bereiche von den nach aussen gewandten Räumen im Erdgeschoss ab.

Innen sind die Wände mit einfachen Dreischicht­platten aus Holz belegt. Aus den verschiedenen Wandstärken resultiert ein Raster von 20 cm und 50 cm, auf dem die Breiten der Türen, Fenster und Einbauten aufbauen. Aufgesetzte Fichtenlatten verdecken die Stossfugen der Platten.

An der Unterseite der Decken kommt nun doch noch eine «echte» Farbe ins Spiel. Eine Stoffbespannung in erfrischendem Himmelblau betont die Raumhöhe. Die Bahnen sind auf eine Holzunterkonstruktion gespannt und an den Stössen von Decklatten geschützt. Diese Profile, die wie an den Wänden weiss gestrichen sind, gliedern die Decken. Besonders im Obergeschoss, wo sie die Dachform nachzeichnen, ergibt das ein schönes Bild.

Zusätzlich zu der akustischen Wirkung wird dem Stoff aus Schurwolle eine schmutzabweisende und luftreinigende Qualität zugesprochen, was das Klima in den Räumen begünstigt. Eine regelmässige Pflege ist allerdings vonnöten, damit sich der Staub nicht darin sammelt. Das Hellblau des Stoffs kehrt in Varianten an den Wänden der Korridore und im Treppenhaus wieder. Seine Abstufungen wirken wie ein heiteres Echo auf die graugrünen Farben im alten Schulhaus.

Alle Materialien sind differenziert und zurückhaltend behandelt – so bleiben die ursprünglichen Qualitäten ablesbar. Die Planenden haben den Bestand mit gutem Gespür aufgefrischt und einzelne Formen und Farben in die Gestaltung des Neubaus einfliessen lassen. Zusammen bilden Neu- und Altbau ein Ensemble, das die Kinder mit all ihrer Farbigkeit vereinnahmen können. Die klare Ausstrahlung bleibt tonangebend.

Artikel aus früheren Heften und exklusive Online-Beiträge in unserem E-Dossier «Holz».

Am Bau Beteiligte

Architektur
Thomas De Geeter, Zürich

Baumanagement
Bosshard und Partner, Zürich

Bauleitung
Caprez & Haaf Baumanagement, Bern

Tragwerksplanung
WAM Planer und Ingenieure, Bern

HLKSE-Planung
Gruner Gruneko, Basel

Landschaftsplanung
Riggenbach, Bern

Tragstruktur Holz
Pirmin Jung Ingenieure, Thun

Montagebau Holz, Schreinerarbeiten, Malerarbeiten
Zaugg, Rohrbach

Akustikdecken
bbf Weber, Fehraltorf

Innentüren Holz
Nobs, Seedorf

Holzfenster
Könitzer + Hofer, Worb

Kücheneinrichtung
Ziehli, Lobsigen

Malerarbeiten Altbau
Kiefer Roten, Lyss

Bedachung und­ Spenglerarbeiten
Guggisberg Dachtechnik, Köniz

Bauzeit
2017–2020

Baukosten
Gesamt: 8.25 Mio. Fr.
Altbau: 2.6 Mio. Fr.
Neubau: 5.12 Mio. Fr.
Umgebung: 0.53 Mio. Fr.

Sur ce sujet