Ein­fach mo­bil

Movable House in Riehen

Vier Räume mit Küche und Sanitäranlage auf 100 m2 und alle Bauteile montier- und demontierbar – so lauteten die Wünsche der privaten Bauherrschaft. Zudem soll das kleine und bewegliche Haus an unterschiedlichen Orten aufgestellt werden können.

Date de publication
23-10-2018
Revision
24-10-2018

Auch bezüglich der energetischen Anforderungen war der Wunschkatalog detailreich und die technischen Vorgaben anspruchsvoll: Weitgehend energieautonom, gut gedämmt, mit grosszügigen Fensterfronten. Innen viel Stauraum, der eine lockere Möblierung ohne platzfressende Schränke erlaubt. Weil die Bauteile per Lastwagen transportierbar sein sollen, durften ihre Dimensionen in Länge/Breite/Höhe 12 x 2.55 x 4 m nicht übersteigen. Die Architektinnen Shadi Rhabaran und Ursula Hürzeler aus Basel entwarfen, verwarfen und verglichen zahlreiche Varianten  – diverse Studienmodelle dokumentieren die geduldige Suche. Letztlich wurde das gebaut, was sich der anspruchsvolle Bauherr, Zimmermann und Ingenieur, gewünscht hatte: ein 10 x 10 m grosser Pavillon auf einer Betonplatte mit grossflächigen Verglasungen.

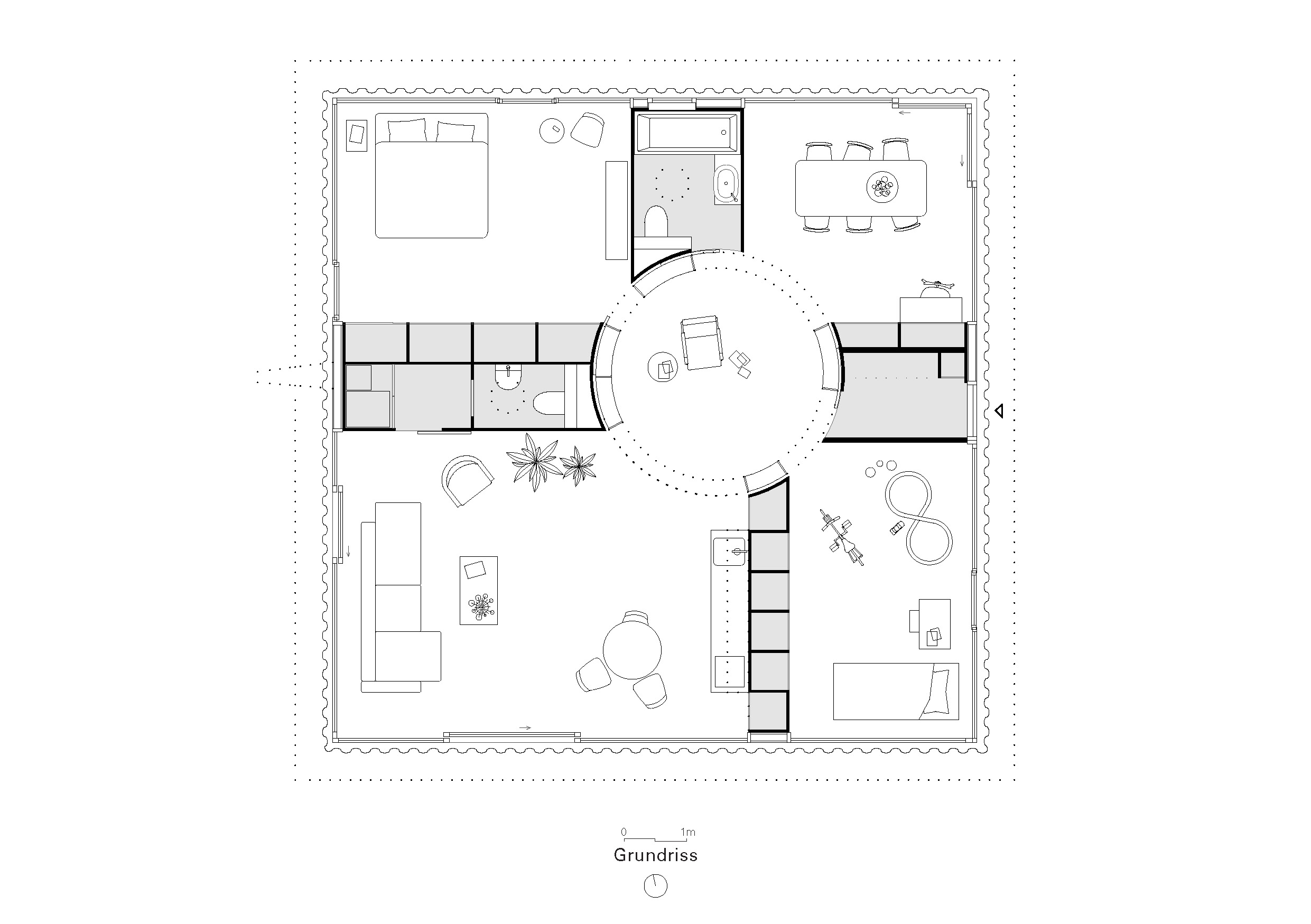
Der Bauplatz liegt etwas versteckt im baslerischen Riehen an einer Quartierstrasse mit zweigeschossigen Häusern. Der Pavillon steht an der Stelle einer ehemaligen Scheune, deren Bruchsteinfundament beim Bauen zum Vorschein kam. Vier kastenförmige Elemente aus 40 mm dicken Holzplatten sind kreuzförmig um einen Zylinder aus Bücherregalen gruppiert. Sie stehen auf einer 11 cm dicken Bodenplatte aus fünf 2 x 10 m grossen vorgefertigten Betonteilen, mit einer zu einem Terrazzoboden geschliffenen Oberfläche.

Die mittels CNC-gesteuerten Maschinen im Werk vorgefertigten Holzkästen enthalten WC, Bad, Windfang, Gebäudetechnik, Warmwasserboiler und viel Stauraum. Sie sind gleichzeitig Raumteiler und statisch belastbare Struktur. Aufgestellt wurden sie innerhalb eines Tages, anschliessend wurde die Dachkonstruktion aus fünf je 2 x 10 m grossen Betonelementen aufgesetzt. Sie sind untereinander mit Zugstangen aus Stahl verbunden, tragen eine Dämmung und Kiesschüttung und wiegen zusammen 100 t.

Grenzwertigkeit als Prinzip

Wenn Bauherr Nico Ros über die Konstruktion spricht, klingt das einleuchtend und fast simpel. Ist es aber nicht, denn dahinter stecken langwierige Denkprozesse, geballtes Fachwissen und der Mut zum Unkonventionellen. Ros wollte die statischen Möglichkeiten von Holz als Tragwerk ausloten, die Herausforderungen der Montier- und Demontierbarkeit, die energietechnischen Möglichkeiten. Die Architektinnen machten bei dem Experiment mit, und das Institut Energie am Bau der Fachhochschule Nordwestschweiz (FHNW) wird das thermische Langzeitverhalten des Wohnhauses untersuchen und optimieren. Auch die beteiligten Baufirmen liessen sich vom avantgardistischen Vorhaben nicht abschrecken.

Ein herkömmliches Tragwerk fehlt in diesem Haus. Die vertikalen Platten der in sich steifen, kantenverklebten Holzkasten tragen das Dach. Die umlaufende vorgehängte Fensterfront ist statisch unbelastet. Durch Windkraft und unterschiedlich verteilten Schnee kann die Lastabtragung in die Holzelemente allerdings an Grenzen kommen. Um die Lastverteilung zu optimieren, wurden alle vier Holzkastenelemente je in vier Ecken in den Boden und darüber gegen die Betondecke verschraubt. Dafür verwendete man ins Holz eingelassene kleine Stahlteile ähnlich Bettladenbeschlägen mit Zugschrauben.

Energie und Gestaltung

Der Betonboden weist dank integrierten Modulen mit Phasenwechselmaterialien (PCM) eine grosse Speichermasse auf (vgl. Kasten unten). Nico Ros rechnet damit, dass die solaren Einträge und die gespeicherte Energie von Februar bis November ausreichen. Für den Jahresbetrieb ist wenig zugeführte Energie nötig – im Dezember und Januar maximal 3 kWh, was dem Verbrauch einer Kochplatte entspricht. Der Boiler bezieht die Wärme aus dem Innenraum, wodurch im Sommer eine zusätzliche Kühlung entsteht, oder über das Erdreich.

Die Fensterflächen sind im Sommer durch einen rundum laufenden weissen Aussenvorhang gegen die Sonneneinstrahlung geschützt, während im Winter innen montierte Vorhänge für Verdunkelung und Blickschutz zum Einsatz kommen. Das Gebäude wird ein Jahr lang mit Sensoren überwacht, und die gewonnenen Erkenntnisse werden zur Optimierung von Nachfolgeprojekten genutzt.

Neben den technischen Details zeichnet sich das Haus aber auch durch seine charmante und durchdachte Architektur aus. Der Bau ist in den Restbestand eines ehemaligen Obstbaumgartens gestellt. Mit seinen Glasflächen und der quadratischen Grundform wirkt er wie ein freundlich einladender Gartenpavillon. Sein reiches Innenleben zeigt sich erst nach Betreten des kleinen Windfangs. Dieser Zugang führt zu einem leicht aus den zentralen Achsen verschobenen runden Raum, dessen Wände aus raumhohen Bücherregalen bestehen. Sie sind unterbrochen durch Türen zu zwei Schlafräumen, zum Ess- und Arbeitsraum und ins Wohnzimmer. Der Arbeitsraum verbindet sich diagonal mit dem Zentral- und Wohnraum, dem Bad und der Küche. Die ursprünglich für den Zentralraum geplante raumgrosse Oberlichtkuppel war aus baurechtlichen Gründen dort nicht machbar. Trotzdem erzeugt der Raum eine poetische Stimmung, funktioniert wie eine Halle und gleicht einem Kabäuschen – einmal mit Büchern bestückt, wird es wie das Herz des Hauses wirken.

Gelungenes Experiment

Die geöffneten Türen zu den Zimmern sind nicht sichtbar, sie verschwinden als der Rundung folgende Schiebetüren hinter den Regalen. Der Wohnraum hingegen bleibt zum Zentralraum offen, und diagonal durchs Haus ist dort eine 14 m lange Blickachse gegeben. Schön gestaltet sind die Fenster, deren verschiebbare Teile an den Raumecken angeordnet sind und einen intensiven Bezug zur Umgebung schaffen. Die leicht vertiefte Lage führt zudem dazu, dass die benachbarten Häuser die Aussicht kaum beeinträchtigen – man wähnt sich allein auf weiter Flur.

Die Architektinnen Shadi Rhabaran und Ursula Hürzeler reden von einer «case study», einer Fallstudie. Für Nico Ros ist das Haus bauliches Abenteuer und Experiment. Gleichzeitig weiss er, dass die Architektinnen aus den schwierigen Vorgaben ein wunderbar leicht wirkendes Stück Architektur geschaffen haben. Ob er es je zerlegen und anderswo aufstellen wird? Kaum denkbar, bis in etwa einem Jahr wird das «Movable House» so wirken, als habe es immer dort gestanden.

Am Bau Beteiligte


Architektur
Rahbaran Hürzeler Architekten GmbH


Holzkonstruktion
ZPF Ingenieure AG


Geologie
Geologiebüro Ryser GmbH


Ausführung Elektro/Photovoltaik
Selmoni Installationen AG
Willi Roth Holzbau GmbH
Holz Keller AG


Wärmeverteilung
Tschantré AG


Sanitärinstallationen
Stieber + Ehret AG


Gartengestaltung
Gartengestaltung Herzog


Holzfenster
Schreinerei Hunziker


Holz- und Schreinerarbeiten
Schreinerei Hürzeler


PCM
SkyCell AG

Facts & Figures
 


Umfang
10.34 x 10.34 x 3.00 m


Gebäudevolumen
374 m3


Wohnfläche
97 m2


Fassadenfläche
124 m2


Tragstruktur (Kerne)
Buchenholz-Mehrschichtplatten


Volumen Holz
6.87 m3


Dach- und Bodenelemente
Vorfabrizierte Betonelemente, Weisszement, Zuschlag Carrara-Marmor


Fassade
Holz-Leichtbau, gestrichene Dreischichtplatten, gestrichene Holzfenster Uw 0.868 W/m2K


Energiekonzept
Wärmepumpe mit integriertem Boiler mit 4.7 kW Nennleistung


Erdregister
Zwei Erdwärmekörbe à 2 kW, Durchmesser 2.4 m (oben) 1.4 m (unten), H 2.7 m


Photovoltaik
33 Elemente (Flachdach) zu je 1.65 m2 zu 295 W = 54 m2, total 9.735 kW


Energie und Nachhaltigkeit

Im Rahmen eines Innosuisse-Projekts untersucht das Institut Energie am Bau der FHNW mit ZPF Ingenieure und der Firma SkyCell das vorfabrizierte, material- und kostensparende Decken- und Bodensystem, um Grundlagen für die industrielle Produktion zu erarbeiten. Das «Movable House» dient als Testobjekt für Decken- und Bodenelemente. Untersucht werden die Umweltbelastung durch die Erstellung der Elemente und das thermische Verhalten im Gebäude. Dabei steht auch der Einsatz von Phasenwechselmaterialien (PCM) zur Kompensation der reduzierten Speichermasse im Fokus. Die 115 Salzakkus (25 x 39 x 2 cm) und die 56 Paraffinakkus (30 x 40 x 5 cm) liegen zur Energiespeicherung unter dem Wohnraum und dem Kinderzimmer. Die dünne Schicht entspricht einem Speichervolumen aus Beton von 1 m Stärke. Die PCM weisen die Speicherkapazität einer 60 cm starken Betonplatte bei 2 K Temperaturänderung auf.
Das Institut Energie am Bau hat die energetische Konzeption entwickelt und mit dynamischer Gebäudesimulation optimiert. Ins Gebäude und ins Erdreich eingebaute Sensoren sammeln im ersten Betriebsjahr Messdaten. Die daraus gewonnenen Erkenntnisse dienen der Weiterentwicklung der angewandten Systeme. Der Bau vereint verschiedene Aspekte des nachhaltigen Bauens: Die materialsparende Konstruktion und die vorfabrizierte Bauweise senken die Investitionskosten. Der geringe Heizwärmebedarf, die wartungsarme Gebäudetechnik und die Eigenproduktion von Solarstrom reduzieren die Betriebskosten. Durch den flächeneffizienten Grundriss und den geringen Flächenverbrauch pro Bewohner kommen auch soziokulturelle Aspekte zum Tragen. Das neu entwickelte Deckensystem ermöglicht in Kombination mit dem Holzelementbau hohe strukturelle und funktionelle Flexibilität sowie gestalterische Qualität. Im Betrieb wirken sich die Energieeffizienz der Gebäudehülle und die Nutzung von Erdwärme positiv aus. Die Dreifachverglasung hat einen Dämmwert von 0.5 W/(m2K) (g = 53 % , Uw = 1.3 W/(m2K) ). Die Fenster haben einen Wärmedurchgangskoeffizient von Uw = 0.869 W/m2K.
Durch den Wärmeschutz und die optimierte Nutzung der Solargewinne wird die gesetzliche Anforderung an den Heizwärmebedarf um 40% unterschritten. Die Jahresproduktion der PV-Anlage übersteigt den Strombedarf des Gebäudes.

Sur ce sujet