Cam­pus RTS: théâtre des opé­ra­tions

Le nouveau centre de production de la Radio Télévision Suisse (RTS) est stratégiquement positionné à l’interface entre l’Unil et l’EPFL. Office Kersten Geers David Van Severen et Fehlmann Architectes ont entamé la livraison au début de l’automne d’une spectaculaire machine qui incarne spatialement la transformation des médias.

Date de publication
18-11-2025

Le Campus RTS siège enfin sur la frontière entre la plaine rase de l’EPFL et le domaine de l’UNIL, bien visible depuis la route cantonale RC76. Tel une mise en abîme, un campus dans un campus, le nouveau voisin du Learning Center de Sanaa et de l’Odyssea de Lüscher est imposant. Entre les courbes voluptueuses de l’un et les flancs galbés de l’autre, l’édifice retient son souffle: ses émergences de béton portent à bout de bras une mégastructure suspendue et hérissée de sheds, qui crée un nouveau toit au-dessus de l’espace public: un champ (campus) suspendu.

Un concours exemplaire

Il y a dix ans, on redoutait déjà cet enchâssement millimétré sur un site saturé par des décennies de chantiers. Comment la RTS a-t-elle atterri sur l’un des derniers espaces libres du campus? Il faut dire que les institutions ont des intérêts communs et surtout une mission partagée: se porter garantes de la diffusion de connaissances et d’informations vérifiées1.

L’arrivée de la grande maison des médias sur le site de Lausanne-Ecublens s’élabore dans le sillage de la stratégie développée par l’ancien directeur de l’EPFL Patrick Aebischer depuis un quart de siècle avec l’appui des partenariats public-privé. L’opération est une mécanique inexorable conçue pour pousser la renommée de l’école au plus haut2: la pièce finale du master plan patiemment élaboré a été insérée sur la parcelle n°1478, propriété de la Confédération (EPFL). Elle est mise à disposition de la RTS au travers d’un droit distinct et permanent de superficie qui grèvera le terrain pour 99 ans.

En 2014, la RTS avait donc une parcelle: il lui fallait aussi un·e architecte. Sur les conseils de Luca Ortelli, président du collège d’experts, la maîtresse d’ouvrage décide d’organiser des mandats d’étude parallèles (non certifiés par la SIA) sur sélection, plutôt qu’un concours sur invitation, ce qui a permis à des candidats de différents pays et d’horizons culturels variés de prendre part à la procédure. Huit équipes sont sélectionnées et Office – jeune agence bruxelloise dirigée par Kersten Geers et David Van Severen – remporte les MEP: le projet assume son expression fonctionnaliste, il conquiert le jury par son efficacité et sa redoutable clarté3.

Des émergences et un champ suspendu

C’est que la RTS ne veut pas seulement ériger un bâtiment: elle a besoin d’une machine capable d’articuler spatialement l’évolution des médias. Comme l’expliquait son directeur Gilles Marchand dans le rapport de jury des MEP, «en fusionnant la radio et la télévision suisses romandes en 2010, la RTS a développé une stratégie de convergence des médias, avec d’une part les vecteurs (chaînes de radio et de télévision, plateformes web et mobiles, réseaux sociaux, etc.) et d’autre part des rédactions thématiques qui produisent des contenus pour l’ensemble des vecteurs».

Le projet de Office est fascinant en cela qu’il répond à la double exigence en reproduisant géométriquement cette matrice d’interaction entre les différents vecteurs4: des surfaces verticales dédiées à la production (studios, administration) – «émergences» –, rencontrent un grand espace horizontal ouvert pour permettre les échanges (rédaction, production). Appelé «champ» au moment des MEP, il est nommé aujourd’hui «plateforme». Les mots changent, la vaste étendue plane et unie demeure.

Volumes et programme

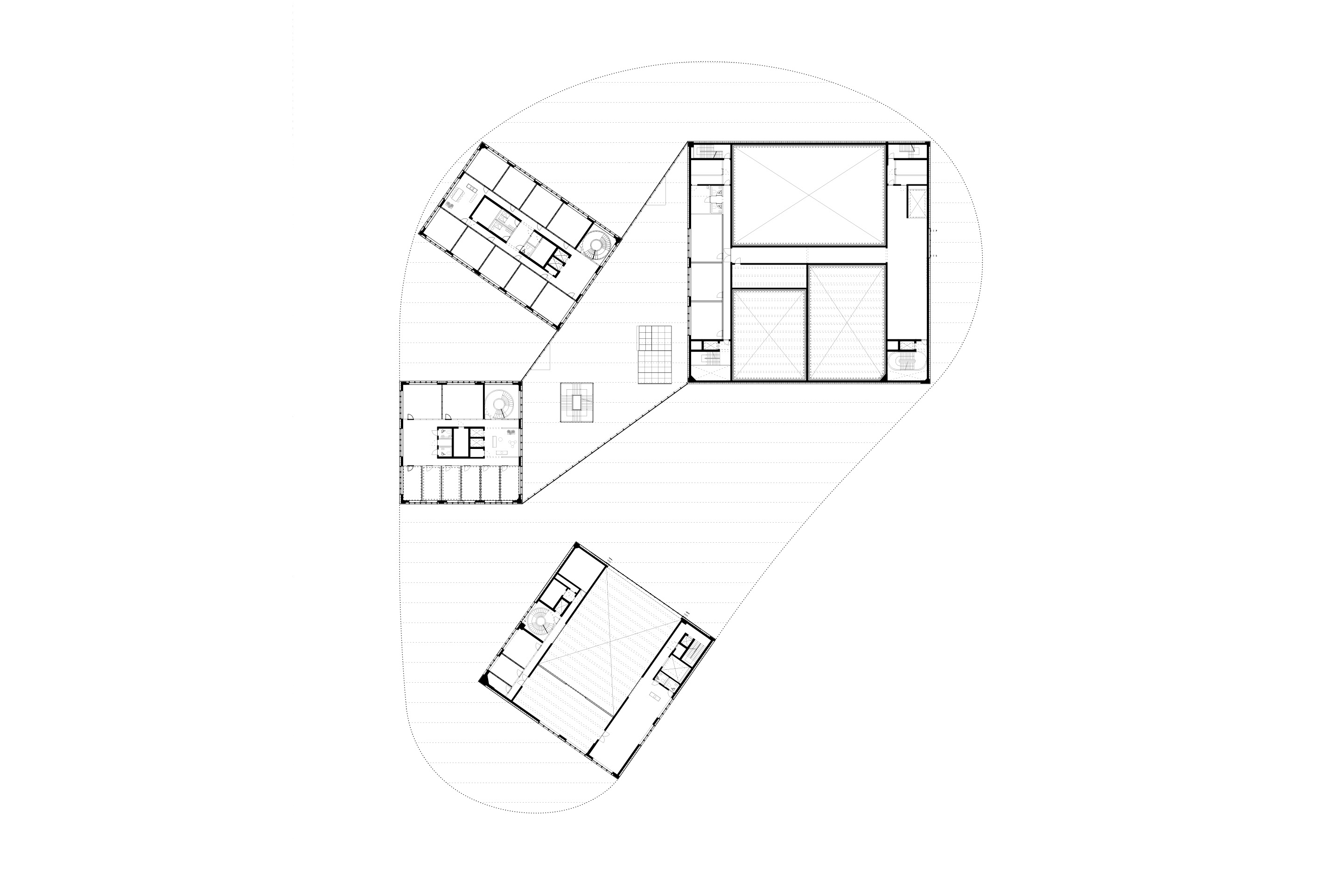
Si le Learning Center vu du ciel est un grand rectangle creusé de vides arrondis, Office prend le contrepied du choix formel de Sanaa en dessinant un plan courbe perforé de quadrilatères5.

Quatre parallélépipèdes en béton (les émergences) portent la vaste plateforme curviligne en métal à la toiture en sheds (le champ), située à huit mètres au-dessus du sol. Les émergences, nommées d’après les points cardinaux, ancrent le projet et définissent les espaces publics couverts abrités par le champ. En coupe, elles sont dimensionnées afin de permettre tous les scénarios de production: des hauteurs types de 3 m pour les petits lieux de production et les espaces administratifs, des hauteurs de 4 m au niveau du champ et du rez-de-chaussée, des grandes hauteurs au centre de deux des émergences, notamment pour les plateaux de tournage.

La zone située sous le champ articule deux fonctionnalités: l’une publique, l’autre logistique. Au nord et à l’ouest, en lien avec le campus, le bâtiment forme une vaste canopée en continuité de l’espace public. Au sud et à l’est, la zone est réservée au flux de véhicules de reportage et de livraison, une contrainte programmatique forte qui légitime aussi l’effort structurel spectaculaire de la plateforme en porte-à-faux (retrouvez ici l'encadré technique de Fabrice Meylan). Ce rez-de-chaussée très chorégraphié est articulé par un élément phare, l’escalier principal, point d’orgue de l’ensemble du parcours public le long duquel tout a été revêtu de rouge (structure, sol, marches, portes…). À le voir se déployer dans le vaste hall, on peut penser aux rideaux carmin qui séparent le public d’une scène de théâtre et qui assurent aussi bien une fonction pratique – soutirer aux regards indiscrets les manigances dramaturgiques – que de prestige.

Un problème de façade

L’une des grandes forces du Campus RTS réside dans sa flexibilité: la puissance radicale des décisions architecturales effectuées au stade du concours a démontré en dix ans de défis que le projet était capable d’absorber toutes sortes de modifications. Capacité confirmée par Marc Bueler, chef de projet pour la maîtrise d’ouvrage. Pour lui, c’est aussi pour cela que la RTS a fait le choix de réaliser le projet de manière traditionnelle, avec l’aide de Fehlmann architectes, et non sous la coupe d’une entreprise totale: «Ça peut renchérir le projet au départ, mais ça nous a surtout permis de faire évoluer et d’optimiser le projet tout au long du processus.» À l’avenir, certaines émergences pourraient être surélevées, suivant les besoins en surface.

Pourtant, c’est aussi cette exigence de flexibilité qui a porté un coup éventuellement préjudiciable à l’expression du projet: comme on le voit dans l’évolution des façades, les émergences – volumes clairs et opaques dépourvus d’échelle au stade du concours, qui conféraient au Campus RTS une certaine sérénité silencieuse rappelant la cage de scène d’un opéra – ont progressivement été réglées par de larges fenêtres qui rythment chaque étage. Les usager·ères ont certes gagné en autonomie – et d’ailleurs pouvoir ouvrir la fenêtre de son bureau ne devrait même pas être érigé en prouesse architecturale – mais la façade pâtit de la trame générique produite. N’aurait-il pas été possible d’éviter cette expression saccadée, tout en conservant une façade fonctionnelle? L’image dégagée aujourd’hui par le Campus RTS n’est pas celle d’une machine magique des médias, mais celle d’une série de bâtiments de bureaux engoncés dans une mégastructure flottante: étudions celle-ci de plus près.

Densifier la plateforme

En 2015, le jury fait à Office les recommandations suivantes: «le layout du champ doit être approfondi afin de réduire l’impact des éléments structurels». Il est vrai que la vaste plateforme structurée par ses grands treillis métalliques pourrait effrayer l’utilisateur futur, qui ne saurait comment agencer l’espace. Mais les architectes veulent justement en faire une force: c’est précisément la lourde structure du champ qui dictera sa résolution spatiale.

Celui-ci est, pour faire simple, un titanesque open space de 6000 m2 surmonté d’une toiture en sheds et ceint de parois vitrées qui l’ouvrent sur le campus alentour et le grand paysage. Les imposants treillis deviennent des agents structurants à l’échelle (quasi) urbaine, et c’est ainsi une ville miniature qui est dessinée, dotée de rues, de places, de quartiers, et dont les devantures des magasins sont les studios de production. Mais la complexité spatiale ne s’arrête pas là, car une mauvaise surprise s’est ajoutée au programme à la fin des années 2010. En cause? Le rejet de l’initiative «No Billag»6 et un plan d’économie drastique suite à la redéfinition stratégique de la SSR annoncé dans la foulée7.

La RTS met le projet en pause, organise une réflexion et travaille avec les architectes sur une version Campus 2.0 du projet qui intègre le regroupement des équipes de l’Actualité, dont le transfert d’environ 250 personnes de Genève. On imagine de nouveaux scénarios d’occupation, notamment une intégration du télétravail – puisque pour deux contrats, une seule place de travail est prévue – et on demande aux architectes de redessiner leur plan: la capacité d’accueil de la plateforme doit augmenter.

Pour répondre à la complexité de ce programme évolutif, les architectes s’étaient demandé dès la genèse du projet comment introduire des échelles intermédiaires, afin de répondre aux exigences de la maîtrise d’ouvrage, qui attendait plus qu’un open space géant. Le résultat est une nouvelle mise en abîme: de plus petites structures aux dimensions analogues à celles de containers maritimes proposent boîtes closes et mezzanines pour diversifier l’offre et créer des sous-espaces. À titre personnel, je m’interroge sur la pertinence d’avoir superposé à la lourde et encombrante matrice structurelle ces éléments supplémentaires orthogonaux. Qu’apportent-ils spatialement? Globalement, pas grand-chose: on retrouve les techniques usuelles employées dans les reconversions de halles industrielles gentrifiées, sans bien comprendre leur pertinence dans un espace neuf, déjà fortement caractérisé par sa structure primaire. Pourquoi ne pas avoir exploité plus franchement les contraintes et les possibilités à disposition8?

Plan à trois entités: la trame comme support de discussion

Attardons-nous tout de même sur ce que ces choix traduisent. Depuis vingt ans, on connaît Office pour ses plans en noir et blanc structurés comme des circuits imprimés. Les architectes conçoivent leurs bâtiments comme les ingénieur·es en génie électrique imaginent leurs systèmes: dans une logique de flux, de stockage, d’énergie, de liens, de vides, à partir d’un catalogue de typologies et de figures activement travaillées avec leurs étudiant·es9.

On a souvent comparé les travaux d’Office à ceux de Rem Koolhaas. Mais si ce dernier investiguait déjà la subversion de la grille, par exemple à CentraleSupélec Paris-Saclay10, celle-ci demeurait urbaine et post-moderne, d’inspiration rossienne, dans son traitement abstrait des volumes11. Si Office ne renie pas son intérêt pour Aldo Rossi12, le bureau le fait dans une perspective analytique et non nostalgique. Il prend les dispositifs architecturaux pour ce qu’ils sont: des séquences de vides et de pleins, rythmés par des colonnes, des trames, des fragments de murs. Dans le Campus RTS, cette petite ville, les figures ne sont plus des fatti urbani comme chez Rossi, des éléments fondamentaux et des structures constitutives de l’identité urbaine, porteurs de mémoire collective et capables d’influencer l’expérience des habitant·es. Office aime la rupture, la superposition qui crée la friction. Sur un plan strictement conceptuel, c’est ce qu’ils avaient produit avec Border Crossing (2005), collage politique, controversé et uto(dysto)pique à la frontière entre le Mexique et les États-Unis: un gigantesque volume rectangulaire interrompait la ligne de démarcation, territoire neutre abritant une grille de palmiers et un espace d’attente pour ceux quittant un territoire pour tenter d’en gagner un autre. Christophe Van Gerrewey tirait de cette image la conclusion suivante: «Les architectes ne peuvent pas lutter contre l’iniquité et l’inégalité, mais ils peuvent créer les conditions propices à la confrontation13.» Sur un mode moins politisé, c’est aussi ce que leurs projets du crématorium d’Ostende ou encore de la bibliothèque de Laethem-Saint-Martin racontent: comment les formes fortes de nos architectures ritualisent-elles les formes les plus intimes de nos sociétés – notre rapport à la mort, notre accès à la connaissance?

De fait, la trame complexe et tridimensionnelle proposée par Office pour le Campus RTS créera-t-elle les conditions propices à la confrontation ou permettra-t-elle d’adoucir la cohabitation de trois entités aux modes de travail jusque-là séparés? Départ total de la RTS du site de la Sallaz, historiquement celui de la radio; migration d’une partie des équipes de télévision de Genève vers Lausanne-Ecublens; fusion, donc, de la radio et de la télévision, mais aussi concubinage avec une nouvelle entité: les institutions universitaires lausannoises. Il sera intéressant d’observer désormais le fonctionnement de ce nouveau ménage à trois – mais nous laissons le soin aux usagères d’en faire elles-mêmes le récit, le moment venu.

Retrouvez également sous ce lien l'encadré technique de notre correspondant Fabrice Meylan: «Cam­pus RTS: les des­sous tech­niques d’une struc­ture com­plexe», TRACÉS 11/2025


Notes

 

1. Ces propos ont été relayés dans une charte de collaboration EPFL-RTS publiée en avril 2023. Lire Marc Frochaux, «Le Campus RTS: édifice-­média», TRACÉS 6/2023

 

2. Camille Claessens-Vallet, «L’Odyssée du campus de l’Ouest lausannois», TRACÉS 6/2023

 

3. Cedric van der Poel, «Ode au journalisme», espazium.ch, 21.09.2015

 

4. Extrait rapport de jury: «En ayant recours à une sorte de ‹décomposition› du programme, le projet parvient à une formulation architecturale inédite dans laquelle la forme semble dériver de manière explicite des éléments constitutifs des activités de la RTS.»

 

5. Christophe Catsaros, «Everything architecture – OFFICE Kersten Geers David Van Severen», espazium.ch, 10.11.2016

 

6. L’initiative «No Billag» proposait de supprimer la redevance radio-TV en Suisse, ce qui aurait entraîné la fin du financement public de la SSR et potentiellement la disparition de nombreux médias audiovisuels. Elle a été largement rejetée par le peuple suisse en mars 2018, qui a préféré maintenir un service public médiatique fort pour garantir l’information, la diversité culturelle et la cohésion nationale.

 

7. Emmanuel Borloz, «La RTS dévoile le bâtiment qu’elle occupera à l’EPFL», Tribune de Genève, 16.03.2019

 

8. On pourrait deviner dans le dessin des mezzanines une inspiration issue des ateliers de projet du Gund Hall de GSD Harvard (John Andrews, 1972), où Kersten Geers et David Van Severen ont enseigné en… 2019, parallèlement à la revisite du projet.

 

9. Voir notamment les semestres d’enseignement à l’EPFL (Trouble with Classicists) – livingarchives.epfl.ch

 

10. Christophe Catsaros, «Lab City par l’OMA à Paris-Saclay: de la grille subvertie aux smart grids», TRACÉS 4/2019

 

11. Le complexe d’habitation de Gallaratese à Milan, par Aldo Rossi et Carlo Aymonino, par exemple

 

12. Kersten Geers, Architecture without content, Walther & Franz König (2G essays), 2021

 

13. «Architects cannot fight iniquity and inequality, but they can create the conditions for confrontation.» Christophe Van Gerrewey, «Border Garden», OFFICE Kersten Geers David Van Severen: Volume 1, pp. 42-45

 

Campus RTS, Lausanne-Ecublens (VD)
 

Maîtrise d’ouvrage: RTS, Radio Télévision Suisse
 

Architecture et direction de travaux: Office & Fehlmann Architectes
 

Ingénierie civile: Ingeni et Bollinger+Grohmann, I-BG

 

Ingénierie façade: BCS

 

Ingénierie CVS: AZ ingénieurs

 

Ingénierie électricité: MAB-Ingénierie

 

Architecte paysagiste: Bureau Bas Smets

 

Conception éclairage: Les Éclaireurs

 

Ingénierie acoustique: Décibel Acoustique & WSDG Basel

 

MEP: 2014

 

Début des travaux: 2020

 

Début du processus d’emménagement: 2025

 

Fin du processus d’emménagement: 2026

 

Surface utile: 26700 m2

 

Coûts: 130 mio CHF

Sur ce sujet