Poin­til­lisme au Tri­bu­nal can­to­nal

La dernière réalisation de Blättler Dafflon Architekten à Lausanne (VD) séduit par sa proposition volumétrique, le soin accordé à l’existant ainsi que l’expression de son extension en bois. Pourtant, cette nouvelle tourelle pose une question angoissante: est-ce que l’architecture ne serait pas assaillie par des exigences de plus en plus pointilleuses?

Date de publication
31-03-2026

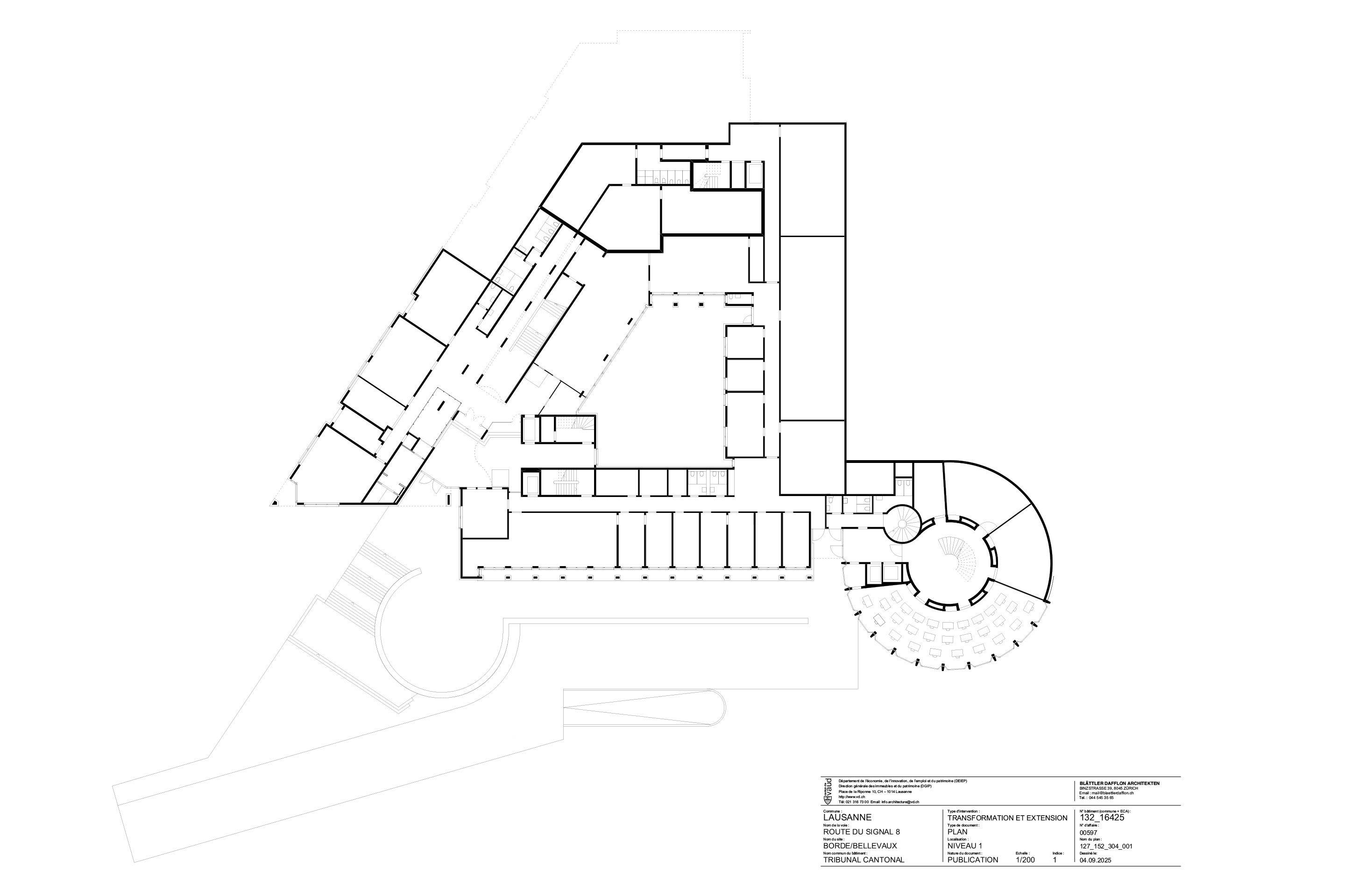
Inaugurée en octobre dernier, l’extension du Tribunal cantonal siège désormais dans la campagne de l’Hermitage, vaste prairie en pente, ponctuée de vergers et encadrée d’une lisière boisée1. La simplicité et la précision de la proposition de Blättler Dafflon Architekten avait séduit dès le concours: une tourelle en structure bois dotée d’un plan circulaire, se dressant à l’angle est de l’imposant édifice post-moderne (Musy et Valotton, 1986). Sa géométrie lui confère un double avantage. Non seulement laisser les regards glisser le long de sa surface courbe, mais aussi offrir aux usager·ères une vue panoramique sur le parc, la ville, le lac et, en fond de ce paysage digne d’un tableau, les montagnes. Du moins, tel était l’objectif initial du projet.

Le concours: tout avait si bien commencé

En 2019, l’analogie de l’ammonite convainc le jury du concours: un coquillage antique accroché au bâtiment existant, un nouveau «pilier de la justice», filigrane et ne faisant nullement obstruction. Une compacité volumétrique exemplaire, mais aussi riche de significations. Des trente équipes invitées à la procédure sélective, Blättler Dafflon Architekten l’emporte.

Le programme est complexe. Dans le cadre de l’application de la nouvelle Constitution cantonale, le Conseil d’État et le Grand Conseil ont la volonté de rassembler sur un site l’ensemble des juges cantonaux, jusque-là répartis dans différents lieux. Un toit unique pour la justice vaudoise: le geste est fort, et s’inscrit dans la continuité de la reconstruction du parlement vaudois (Atelier Cube et Bonell i Gil, 2017) et de la rénovation du château Saint-Maire (CMC – Amsler, Glatz & Delachaux, Mondada Frigerio Dupraz, 2018). Judiciaire, législatif, exécutif – la sacro-sainte séparation des pouvoirs est respectée et chacun dispose maintenant de sa propre colline.

Construire une ammonite

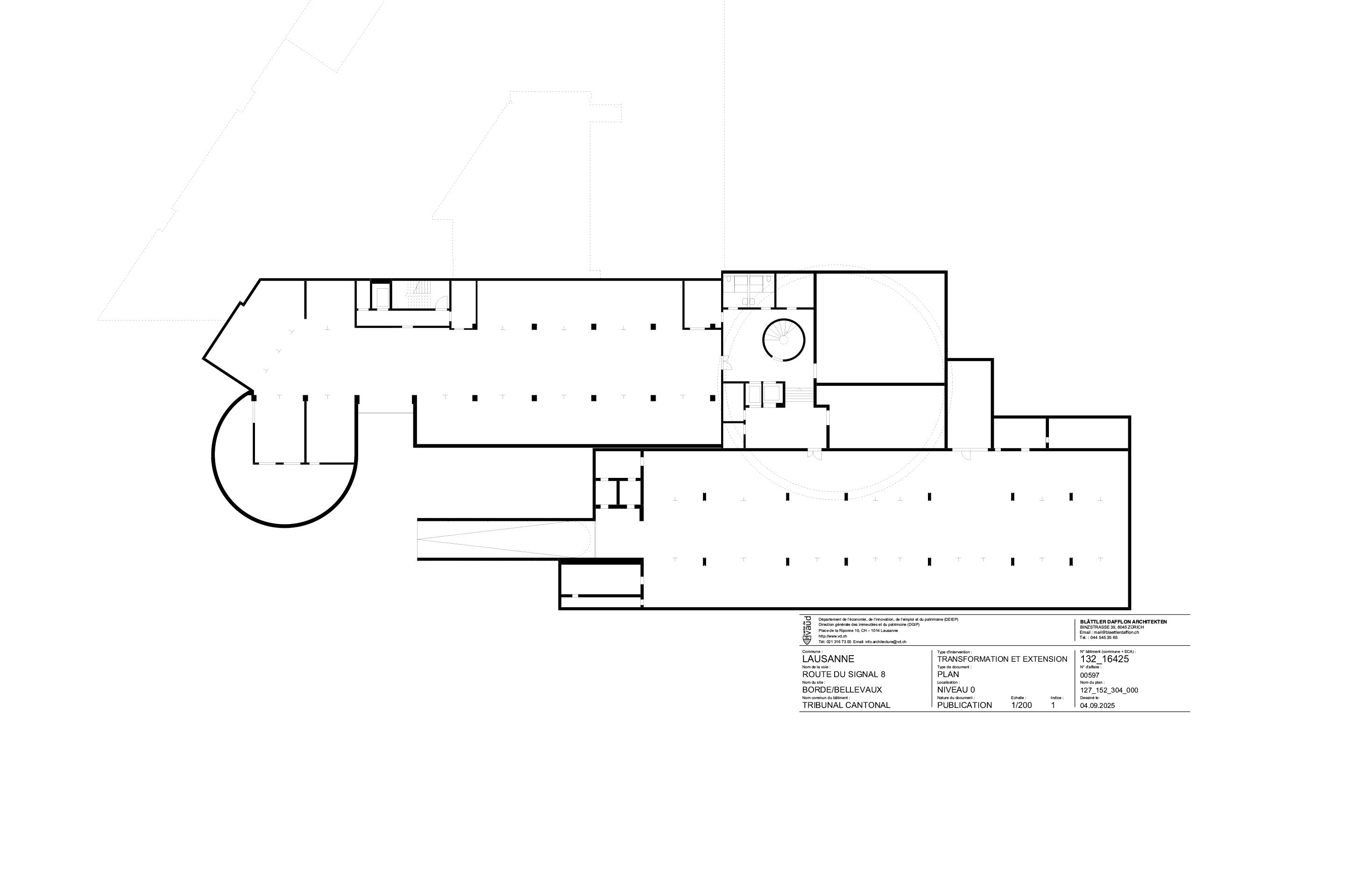
Le Tribunal cantonal se distingue de la production habituelle, en échappant à la monumentalité associée à la justice, tout en répondant adéquatement à la nature et à la destination du programme2. Il est vrai qu’en comparaison du Tribunal fédéral néo-classique de la colline de Mon-Repos (Alphonse Laverrière, 1927), qui déploie ses deux ailes massives de part et d’autre d’un portique colossal formé de quatre colonnes corinthiennes surmontées d’un fronton, le bâtiment post-moderne de Musy et Valotton affiche une certaine désinvolture. Certains le prendraient même pour un immeuble de logements, avec ses ailes sud et est percées régulièrement de fenêtres aux menuiseries blanches. Le Tribunal cantonal est caractérisé par la compacité de son plan triangulaire, abritant en son cœur un admirable atrium couvert, qui dessert toutes les salles. Sa façade principale est tout de même parée de pierre d’Evolène d’un vert veiné d’or, les intérieurs de marbre.

Lors du concours de 2019, il s’agissait de rénover l’existant, mais aussi d’imbriquer l’extension pour faire en sorte que la transition soit quasiment imperceptible pour les huissier·ères qui circulent quotidiennement d’un bâtiment à l’autre (dans l’un on juge, dans l’autre on étudie les dossiers).

La rénovation énergétique est exemplaire3: il a fallu améliorer l’isolation, la protection incendie, la ventilation, l’électricité et les vitrages. La signalétique a été revue et harmonisée. Enfin, la sécurité tout entière du site a été retravaillée. Même si le bâtiment n’est pas protégé, un soin tout particulier a été apporté à chaque matériau, à chaque détail. Les architectes le disent elleux-mêmes: «Le plus beau compliment, c’est quand on nous dit que rien n’a changé.»

La même attention se lit dans l’extension, composée d’un noyau central en béton armé et d’un système de poutres en bois très fines et de dalles préfabriquées. On pénètre dans le nouveau volume sans rupture, sans emphase, dans une souplesse renforcée par la spatialité circulaire du plan de la tourelle, qui se déploie sur huit niveaux. Ici, la matérialité de la structure porteuse faite de piliers et de poutres en hêtre (issu des forêts vaudoises), se distingue du langage minéral d’origine tout en reprenant les tons chauds du parement en pierre existant. Le sculptural escalier coulé sur place en béton et en plâtre lasuré blanc déploie son élégant relief sous le lanterneau. Le message est clair: voilà le visage que l’État de Vaud souhaite montrer aujourd’hui, celui d’une durabilité humble et affichée… Et qui dissimule habilement le gigantesque parking et abri PC creusés en sous-sol. Tout de même, on est loin des concours du début des années 2010, qui nous ont livré ces sculpturales cathédrales minérales, rockstars droguées au béton. Les concours du début des années 2020 nous offriraient-ils ce que l’on pourrait appeler des clean-­buildings4? C’est-à-dire des bâtiments qui s’efforcent à la perfection, sur la partition millimétrée des nombreuses exigences à remplir aujourd’hui (sobriété énergétique, expression biosourcée, humilité architecturale…).

Des exigences pointilleuses

Une fois dans les bureaux de la tourelle, après une si belle séquence, quel effroi de découvrir non pas la verdoyante campagne de l’Hermitage, mais des centaines de points noirs constellant les fenêtres. Mais que s’est-il passé? On nous explique que le dispositif vise à alerter les oiseaux, qui viendraient sinon se fracasser sur la façade vitrée, trop fusionnelle avec le parc et donc invisible pour les volatiles. Le regard se fige sur cette grille sans parvenir à se plonger vers le lointain: le belvédère sur le paysage devient cage – cynique retour de bâton, pour un tribunal.

Alors certes, on pourrait passer outre ce(s) point(s) noir(s), et s’intéresser à l’élégant détail pour aérer naturellement les bureaux – un ressaut de la façade qui transforme chaque fenêtre en bow-window, les vitrages fixes étant encadrés d’ouvrants de ventilation – ainsi qu’au grand retour des radiateurs sculpturaux et assumés.

Mais cette ombre au tableau interroge: n’aurait-on pu également trouver une solution architectonique pour éloigner les volatiles (brise-soleils, casquettes, balcons) ou craignait-on encore plus leur nichage que leur impact? À force d’exercer tant de pressions sur l’architecture aujourd’hui, ne l’empêcherait-on pas de la laisser répondre aux questions fondamentales?

Bouffée d’air frais: au sommet de l’édifice, la rotonde-­cafétéria en attique redevient belvédère. Ou mirador, selon les goûts.

 

Notes

 

1. Le site est inscrit à l’inventaire fédéral des sites construits d’importance nationale à protéger en Suisse.

 

2. Rapport de jury du concours de 1981

 

3. Attribution du label SIA 380/1 au bâtiment rénové de 1986 et du label SméO Énergie+Environnement à l’extension

 

4. Le néologisme clean-building fait référence à l’esthétique clean girl, qui prône un minimalisme ultra-soigné et une apparence «naturelle» parfaitement maîtrisée, suggérant une vie saine et organisée.

 

Extension du tribunal cantonal, Lausanne (VD)

 

Maître d’ouvrage: Département de l’économie, de l’innovation, de l’emploi et du patrimoine (DEIEP); Direction générale des immeubles et du patrimoine – DGIP

 

Architecte: Blättler Dafflon Architekten

 

Gestion de projet: Pragma Partenaires

 

Architecte paysagiste: Bischoff Landschaftsarchitektur

 

Ingénieur civil: B. Ott & Uldry

 

Ingénieur bois: Makiol Wiederkehr et Timabatec ing. bois

 

Ingénieur CVSE: Amstein & Walthert

 

Expert en physique du bâtiment: Amstein & Wathert

 

Expert acoustique: Amstein & Walthert

 

Ingénieur façades: Buri Müller Partner

 

Ingénieur AEAI: Amstein & Walthert

 

Ingénieur environnement: De Cérenville Géotechnique

 

Signalétique: Sandra Binder

 

Livraison: L’aile est de l’ancien bâtiment en 2023, l’extension en 2024 et le reste de l’ancien bâtiment, ainsi que les aménagements extérieurs, en 2025

 

Coût transformation: 13.8 mio CHF

 

Coût extension: 22.8 mio CHF

Sur ce sujet