Se pli­er à l’ex­cep­ti­on­na­li­té d’une fa­lai­se

Le projet de MPH architectes pour le périmètre des Falaises à Lausanne démontre que l’implantation d’un nouveau quartier sur une parcelle privilégiée ne dénature pas les qualités d’une ville mais permet à ses citoyens de se les approprier collectivement.

 

Publikationsdatum
01-09-2020

Rares sont les occasions où les parcelles aux qualités remarquables sont mises au service d’un programme ordinaire. C’est pourtant le cas au lieu-dit «Les Falaises du Calvaire» à Lausanne où, en 2012, à l’issue d’un concours public lancé par la Ville de Lausanne et les sociétés immobilières SILL et SCILMO, les qualités d’un site unique ont été associées à l’envie publique d’en faire un lieu de vie distingué, voué à l’habitat collectif et aux activités mixtes.
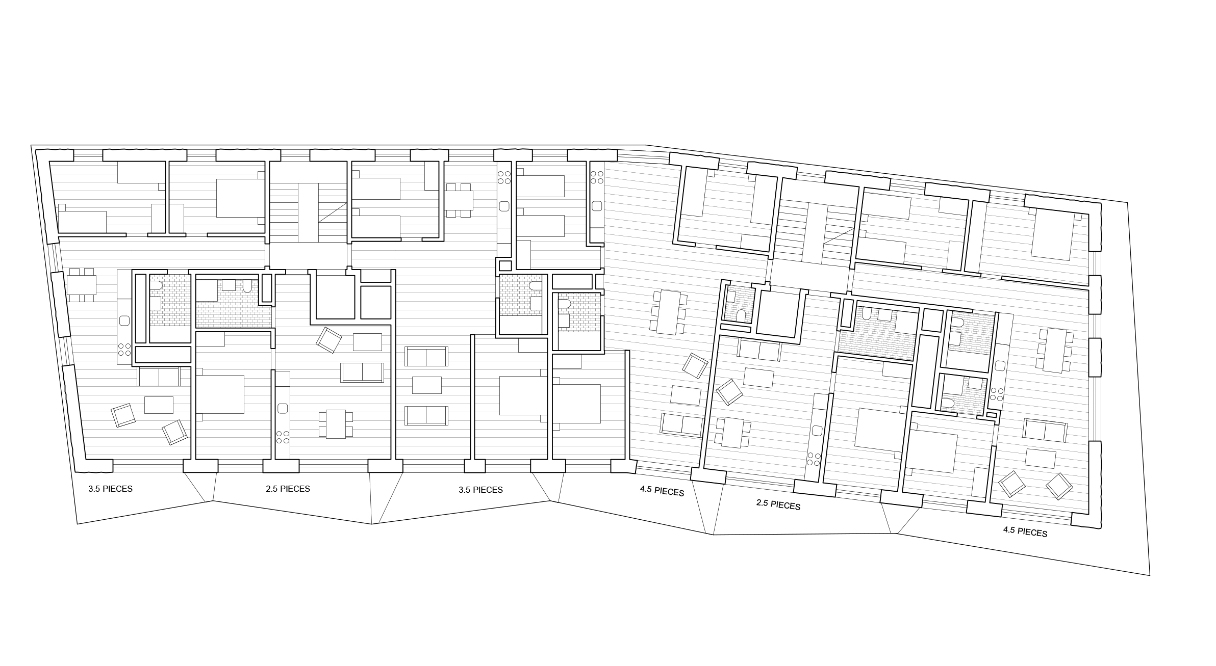
À l’origine du processus, deux contraintes majeures défient les participants: d’une part, l’implantation en tête et au centre du périmètre de deux grands réservoirs d’eau potable, l’un vétuste datant de 1868 et l’autre en fonction depuis 1924; d’autre part, les caractéristiques topographiques de la parcelle, située le long du flanc escarpé du quartier du Vallon à Lausanne. En prime, l’enjeu programmatique est de taille: il s’agissait de disposer sur cette friche en pente de 6300 m2 un programme de 17500 m2 SP affecté à 85% à des logements et à 15% à du tertiaire non attribué, soit une masse habitée de 93 000 m3 composée de la bibliothèque universitaire du CHUV, d’une crèche publique, d’un APEMS, d’un parking enterré de 118 places, de plusieurs activités et commerces, de 24 studios pour étudiants et, surtout, de 170 logements locatifs toutes catégories confondues. Le tout en reconstruisant sur site une grande cuve d’eau potable de 9 millions de litres pour assurer l’alimentation de près de 25000 Lausannois.

Dessiner le flanc d’une falaise

«CLIFF», projet lauréat conçu par le bureau lausannois MPH architectes se démarque des autres concurrents par son habilité à convertir les caractéristiques inertes d’une falaise en qualités vivantes d’une opération urbaine de cette envergure. Cette lecture géographique du site oriente et guide toute la grammaire architecturale du nouveau quartier. Un projet conçu à la jonction entre structure habitée et formation géologique. Pliures, cassures, découpages, décalages, déformations et creux sont certains des gestes et des actions qui permettent aux auteurs du projet de réinterpréter les propriétés géomorphologiques du lieu en machine urbaine à habiter. L’indocilité d’une falaise et son caractère abrupt deviennent le fil conducteur du projet.
Cette approche vive et décomplexée s’avère déterminante pour la réussite de l’opération. De prime abord, elle permet de remplacer le vieux mur de soutènement en bordure sud du périmètre en authentique façade publique ouverte sur la ville. Ce large socle perméable de trois niveaux, pièce maîtresse du projet abritant la majorité des fonctions ouvertes au public, devient le filtre naturel entre ville et nouveau quartier. Au-dessus, trois barres pliées de sept et huit étages indiquent, par leur morphologies concassées, qu’il s’agit d’un quartier à proximité d’un ­terrain accidenté. Cette nouvelle ligne de crête urbaine, qui agglutine l’ensemble du programme d’habitation, s’articule le long de la pente, semblant suivre la sinuosité naturelle du terrain. À la confluence de ces deux corps programmatiques, socle d’activités et barres habitées, les bâtiments s’infléchissent et se cambrent, pour créer des espaces extérieurs partagés et requalifier les abords du site. Telle une carrière en exploitation, les architectes taillent le projet à l’image de l’élément géographique sur lequel repose le quartier.

Sédimenter les couches du vivre ensemble

L’accommodation du projet au site ne se limite pas à sa composition volumétrique. Opérant comme des géologues, les architectes ont scruté la morphologie du lieu pour répartir le programme en fonction du degré d’appropriation alloué aux espaces extérieurs.
Au pied de la falaise, une première place publique, la « Place des Falaises », est positionnée pour articuler les flux primaires du quartier. Elle accueille les différents utilisateurs du site, notamment les étudiants de la bibliothèque de médecine, et propose aux passants et résidents «d’escalader» la pente pour rejoindre, via un escalier extérieur ou un ascenseur public, la cote supérieure de la falaise. Conçue comme un belvédère urbain orienté au sud et à l’ouest, «l’Esplanade des Falaises» est un espace en libre accès qui révèle à lui seul l’une des qualités masquées du périmètre : sa position dominante sur la ville et ses vues imprenables vers le cœur de Lausanne, le lac et les montagnes. Au centre du quartier, un troisième plateau minéral, logé dans le creux du bâtiment central, est mis au service des résidents pour gérer l’accès à la crèche et aux espaces communs. S’en suit, plus au nord, et un peu plus haut, une dernière cour extérieure publique, positionnée à proximité du cordon boisé et éloigné du trafic routier. Il s’agit de la dernière couche partagée, bénéficiant d’une atmosphère plus intime et réservée.
Tel le flanc d’une paroi verticale, dans le nouveau quartier des Falaises, le plan type du rez-de-chaussée n’existe pas. Il est remplacé par une superposition de sédiments habités qui renvoie l’ensemble du projet vers une sorte d’architecture-stratigraphique. Un dispositif à même d’offrir en libre-service et à chaque usager son propre parcours, son atmosphère de détente et, surtout, son altitude de relation à la ville.

Humaniser la face cachée d’une ville

Situé à la frontière entre ville et vallon, la majorité des 194 appartements sont des typologies traversantes permettant à tous les logements de bénéficier du calme de la forêt et s’affranchir des ­nuisances sonores du domaine routier. Pour réagir à cette condition ambivalente du site, l’ensemble urbain des Falaises propose une solution différenciée pour ses deux façades principales. Du côté de l’avenue de la Sallaz, une façade minérale en béton préfabriqué micro-facetté vient inscrire le quartier comme nouvelle porte d’entrée dans la zone plus urbaine de Lausanne. Côté forêt et parc de l’Hermitage, la réponse est toute autre. Une façade en mélèze huilé entourée de balcons aux géométries variables confère au quartier une échelle plus docile et humaine. Tout comme le maillage métallique des garde-corps, conçu volontairement pour évoquer les filets de protection des parois en molasse. Un choix, qui une fois de plus, renvoie toute décision architecturale volontaire, vers un imaginaire d’escarpement rocheux.
Cet empilement de balcons organiques, ou de belvédères privés, est l’astuce créée par les architectes pour que les résidents puissent coloniser le nouveau flanc habitable de la falaise. En prime, son esthétique, proche de celle d’une coopérative d’habitation, présente l’avantage d’unifier par sa matérialisation homogène les cinq catégories de logements qu’abritent les barres ­d’habitations. Sans exception de type, de taille ou d’étage, tous les résidents sont invités à humaniser le projet en profitant du calme et du charme de sa «face cachée».
Avec plus de naturalité que d’autres villes romandes, où une opération de ce genre aurait sans doute suscité quelques craintes, Lausanne poursuit sa mutation urbaine et territoriale sans hésitation. Souple comme la sinuosité d’un vallon, abrupt comme le flanc d’une falaise, le projet de MPH architectes est un exemple pour convertir l’hostilité d’un précipice urbain en espaces à vivre. Et surtout une solution digne pour valoriser les qualités d’un site remarquable par le biais d’une opération urbaine intensive. À tel point que les vertus du projet ont porté la Municipalité de Lausanne à ne plus appeler ce quartier «Le Calvaire» mais tout simplement «Les Falaises».

Les falaises, Lausanne


Concours: 2013Construction: 2016-2019
Coût TTC CFC 1-9: 83 000 000.–
Labels: Minergie P-Eco et Société 2000 W
Maîtres d’ouvrage:        
  Société immobilière lausannoise pour le logement (SILL)
  Société coopérative immobilière
  La Maison Ouvrière (SCILMO)
Architecte: MPH architectes
Direction des travaux: Quartal
Ingénieur civil: AB ingénieurs
Ingénieur CV: SRG Ingeneering
Ingénieur S: BA Consulting
Ingénieur E: Louis Richard
Physique du bâtiment: Amstein & Walthert

Verwandte Beiträge