«Fai­re corps» avec la HEAD

La HEAD se dote d’une surélévation pour accueillir, dès la rentrée académique 2022/2023, les nouvelles activités pédagogiques du Master en design «Espace & Communication» nécessitant de nouveaux espaces de production et d’expérimentation. C’est l’équipe Deriaz Buache Architectes Associés et Philippe Buchs avec le bureau d’ingénieur civils Mery & Buffo, qui a remporté le concours avec le projet Kala.

Publikationsdatum
18-06-2020

Intégrer un nouveau programme architectural au bâtiment historique, occupé par la HEAD depuis 2017, ne fut pas tâche aisée pour les 29 projets présentés lors de ce concours à un degré en procédure ouverte (SIA 142). Emblème du patrimoine industriel genevois et marqueur de l’esthétique moderniste dans le quartier des Charmilles, l’ancienne manufacture de machines à coudre Elna, construite en 1947 par Jean Erb, avait déjà fait l’objet d’une réhabilitation par les architectes Riz et Chabloz entre 2004 et 2007 pour développer une stratégie d’espace public d'intégration à la ville pour l’Espace Hippomène. Proposer une surélévation pour ce bâtiment fut l’opportunité «de redessiner la silhouette de la toiture, défigurée par des récentes installation techniques sans apparat1» tout autant que mettre en œuvre la «spécialité genevoise2» de ces dernières années. Cependant, à la lecture du rapport du jury, nombreux sont les projets qui ont été éliminés lors du premier tour puisqu’ils ne répondaient pas aux premier critère d’évaluation soit «la qualité du traitement de la volumétrie et des façades en relation avec le bâtiment existant ainsi que la qualité de distribution interne des locaux3». L’analyse du jury a été critique pour trouver le projet capable de formuler un équilibre architectural et esthétique.

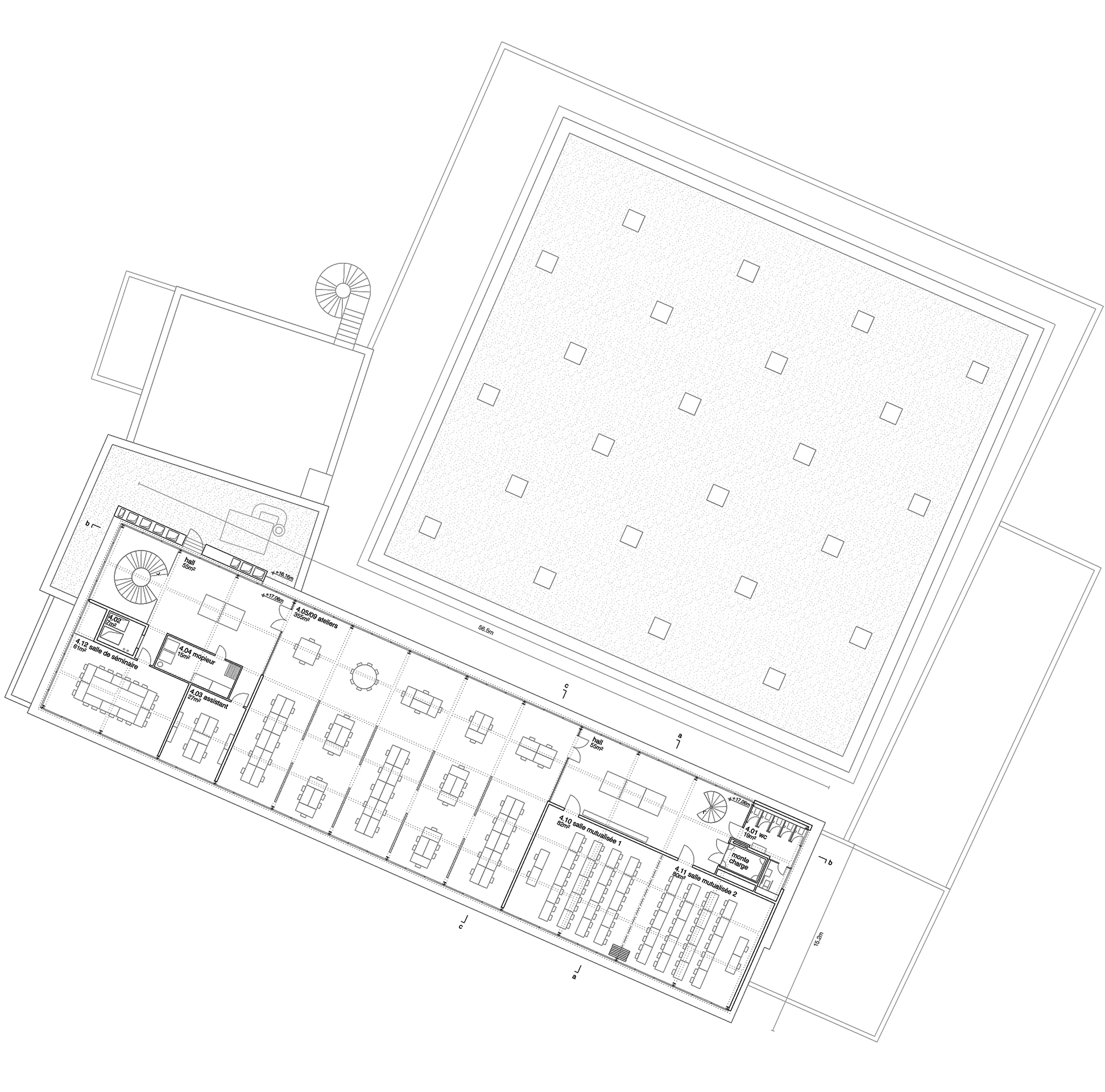
Le projet Kala propose une surélévation qui énonce un programme en complémentarité du bâtiment initial. Et le programme constructif fait des rappels à la structure tout en mêlant des éléments contemporains comme le traitement de la structure métallique, le revêtement de toiture, l’isolation et l’étanchéité de cette extension. Le raisonnement en termes d’ingénierie fut motivé par la nécessité de prévoir une structure légère car la capacité portante de l’ancienne manufacture était limitée. Une extension qui paraît donc délestée de charges superflues à la suppression des piliers centraux possible grâce à l’emploi de porteurs périphériques des façades. Cette légèreté est soulignée par le détachement des cloisons et la grande fenestration proposée reprenant ainsi la verrière des étages inférieurs. Les matériaux et leur traitement sont également présents pour formuler une continuité esthétique selon une inversion des codes couleurs de la structure en acier: l’extérieur, des cadres de fenêtre jusqu’à l’acrotère, est réalisé en serrurerie noire en façade, l’intérieur de cette nouvelle extension emploie le rouge de la façade de l’architecture existante.

Le rappel au statut industriel du bâtiment s’harmonise à l’intérieur avec les exigences spatiales de l’apprentissage en atelier de l’école. Selon une volonté de continuer la dynamique des étages inférieurs, l’espace de circulation verticale est relégué aux extrémités de l’extension architecturale, avec les salles de classe, permettant ainsi le dégagement d’une plus grande surface continu pour les ateliers. La galerie de circulation dans cette nouvelle extension, surdimensionnée et polyvalente, est reléguée sur la façade nord pour augmenter la surface dédiée aux activités pédagogiques. Cette tripartition spatiale et programmatique a permis à l’équipe du projet d’ajouter 100m2 supplémentaires des surfaces dédiées aux ateliers dans le programme du concours. D’autant plus, les unités techniques sont traitées séparément créant un profil remarquable, mais subtil à cette architecture dans son ensemble.

Au regard des autres projets primés, le choix du lauréat s’est porté sur un couronnement discret valorisant l’architecture sans définir un nouveau programme esthétique pouvant dénaturer l’existant. C’est une intervention dans l’héritage architectural qui a donc été retenue pour ce projet de surélévation et non un nouveau bâti adjoignant une consolidation de l’identité esthétique de celui-ci. Une volonté qui est confirmée dans le rapport du jury: «un souci d’une part de continuité architecturale et d’autre part de transparence visuelle4».

 

Notes

 

1-2. Rapport du jury, p.3

 

3. Ibid., p.11

 

4. Ibid., p.16

Tags

Verwandte Beiträge