Zu­rück in die Zu­kunft

Architektur

Das Museum für Gestaltung und die daran anschliessende Gewerbeschule gelten als Ikonen des Neuen Bauens. Ruggero Tropeano Architekten haben den Museumstrakt in seine ursprüngliche Form zurückgeführt und ihn zugleich für die Zukunft ertüchtigt.

 

Publikationsdatum
30-08-2018
Revision
30-08-2018

Ansporn und Herausforderung zugleich waren die unverkennbaren Qualitäten des ursprünglichen Baus, die bei der aktuellen Instandsetzung unbedingt erhalten bleiben mussten: Er gilt als Zürichs erstes öffentliches Gebäude im Stil des Neuen Bauens. Projektiert hatten ihn Karl Egender und Adolf Steger. Sie waren als Sieger aus dem zwischen 1925 und 1927 in zwei Durchgängen ausgetragenen Wettbewerb hervorgegangen, den die Stadt  Zürich nach langer Vorgeschichte und Vorbereitungszeit durchgeführt hatte.1

Angeregt durch die politischen und gesellschaftlichen Reformen wagten sich die Architekten während der Weiterbearbeitung des Projekts immer weiter in die Abstraktion. Die zunehmend mutigere Umsetzung lässt sich an den drei Flügeln des Komplexes ablesen: Der zuerst geplante Schulbau, geprägt von einem weit gespannten Achsmass, das grosse Fensterflächen zulässt, erscheint noch relativ konventionell. Die Anlehnung an eine basilikale Form für die Ausstellungshalle im Mittel­teil ist bereits als eine Provokation zu betrachten, während der expressive Kubus an der Ausstellungsstrasse mit seinen Fensterbändern und der sorgfältig gesetzten Beschriftung von den neuen Leitbildern zeugen.

Der Kunsthistoriker Sigfried Giedion nahm unterstützend Einfluss auf die Form: Er forderte einen zwanglosen, funktionalen Charakter, ohne Lichthöfe.2 Als wegweisend hinsichtlich Modernität galt natürlich das Bauhaus in Dessau. Wie zur gleichen Zeit bei der Siedlung Neubühl und dem Geschäftsgebäude Zett-Haus suchte man für Kunstgewerbemuseum und Gewerbeschule nach einer zukunftsorientierten Form – ein Ansatz, der nicht unumstritten war. So war von «Architektur-Bolschewismus einiger exzentrisch veranlagter Künstler» die Rede; und der deutsche Heimatschützer Paul Schultze-Naumburg kritisierte, man könne den Bau nicht von einer Schuh- oder Fahrradfabrik, von Werkstätten für kosmetische Artikel oder einer Milch­zentrale unterscheiden.3

Neue Technik und mehr Platz

Im Lauf der Jahre hat das 1930 bis 1933 errichtete Museumsgebäude einige Veränderungen erfahren (vgl. Chronologie, Kasten unten). Einschneidend war der Einzug eines Zwischenbodens im doppelgeschossigen Bereich der Ausstellungshalle 1958, auf der Höhe der rundum verlaufenden Galerie. In den 1990er-Jahren erfolgte, als es dringend notwendig geworden war, die Renovation der Fassaden und des Flachdachs. Zuvor war der Bau unter Denkmalschutz gestellt worden und von der Stadt an den Kanton übergegangen. Nach dem Umzug der Zürcher Hochschule der Künste ins Toni-Areal 2014, in dem das Museum für Gestaltung Zürich einen zweiten Ausstellungsort erhielt (vgl. TEC21 39/2014), konnten nun der Museums- und der Schultrakt instandgesetzt werden – notabene jeder für sich und durch ver­schiedene Architekten (für den Umbau der ehemaligen Kunstgewerbeschule zeichneten Silvio Schmed und Arthur Rüegg verantwortlich; vgl. «Restaurierung der Gewerbeschule», Kasten unten).

Den Anstoss zum jetzigen Umbau, der seit Jahren angedacht war,4 gab die Museumsleitung, die die Ausstellungskonditionen bezüglich Raumklima und Brandschutz für untragbar erklärte. Die konservatorischen Bedingungen entsprächen nicht mehr den internationalen Richtlinien. Ziel war es, den einzigartigen Charakter des Gebäudes zu erhalten und es gleichzeitig zeitgemässen Museumsstandards anzupassen.

Umgang mit einem Meisterwerk

Seit der Wiedereröffnung des führenden Schweizer Museums für Design und visuelle Kommunikation im März 2018 erleben die Besucher dessen eindrückliche Architektur aussen wie innen in ihrer ursprünglichen Intensität. Eindrücklich die Gesamterscheinung des kubischen Komplexes zwischen den riesigen Bäumen im Klingenpark, harmonisch die Kompo­sition der unterschiedlich hohen Flachdachtrakte mit den gleichmässigen Reihen grossformatiger Fenster.

Am Museumstrakt an der Ausstellungsstrasse fallen zunächst Bandfenster und verglaste Flächen auf, die aussenbündig in die Putzfassaden eingefügt sind. Unter dem weit vorkragenden Baukörper des Vortragssaals – auf drei unregelmässig angeordneten Rund­pfeilern ruhend – erstreckt sich eine grosszügige Vorhalle, von der man, mit Blick in den abge­senkten Architekturgarten, durch die völlig verglaste Eingangsfront in das von aussen gut sichtbare Foyer mit Cafe­teria und Museumskasse gelangt (vgl. Abb. S. 39).

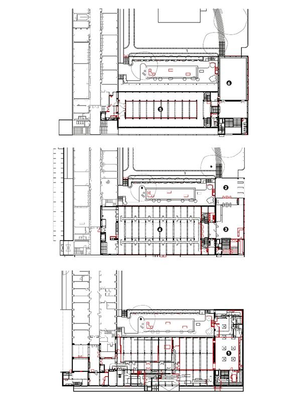
Im weit­läufigen Foyer führen zur rechten Seite hohe Glastüren in den Ausstellungssaal, geradeaus eine breite gegenläufige Treppe ins Obergeschoss mit dem Vortragssaal. Daneben gelangt man über eine weitere Treppe ins Unter­geschoss, wo nun zusätzliche Ausstel­lungs­räume eingerichtet worden sind, von denen einer wegen der dortigen charakteristischen Pilzstützen nun «Maillart-Halle» heisst – Robert Maillart war seinerzeit zustän­dig für die Tragkonstruktion des Museums­trakts.

Wie selbstverständlich bewegen sich die Besucher jetzt auf verschiedenen Etagen durch die Ausstellung. Mit der Gesamtinstandsetzung sollte der wertvolle Bauzeuge so weit als möglich in seinen ursprünglichen Zustand zurückgeführt werden, wobei den heutigen Anforderungen bezüglich Brandschutz und Erdbebensicherheit sowie allgemein der Nachhaltigkeit Rechnung getragen werden musste. Im 1994 unter den Beteiligten vereinbarten Schutzvertrag sind teils materiell, teils konzeptionell geschützte Elemente festgehalten. Im Einzelnen suchten Ruggero Tropeano und die Kantonale Denkmalpflege, die das Instandsetzungs- und Umbauprojekt begleitete, gemeinsam nach verträglichen Lösungen (vgl. «Von Verlusten und Entdeckungen»).

Ausgebessert und ergänzt

Um die Ausstellungsräume auf den geforderten Stand zu bringen, wurden eine Lüftungs- und eine Klimaanlage installiert. Der Zugang zu den neuen Ausstellungsflächen im Untergeschoss wurde mit einer Glastürwand im Foyer und einer indirekten Beleuchtung im Treppen­haus, die sich in die Architektur einfügt, aufgewertet. Diese und viele weitere Veränderungen bemerkt man erst beim genauen Hinsehen. Ruggero Tropeano, der seit rund 25 Jahren die baulichen Massnahmen im Museumsgebäude vornimmt, spricht denn auch von einer Vorgehens­weise, die dem «Kunststopfen» gleicht: ein stellenweises Ausbessern und unauffälliges Er­gänzen – wie beim Flicken eines Pullovers.

Beispielhaft für diese Haltung ist die Erneuerung der Beleuchtung: An der Decke der Ausstellungshalle wurden richtbare Spots auf Schienen ap­pli­ziert. Im Foyer kamen zum einen Neonröhren hinzu, die linear zum Treppenhaus hin verlaufen, und zum ande­ren bewegliche Bolich-Leuchten, ähnlich wie sie einstim Aktzeichensaal hingen (vgl. Abb. S. 39). Für Treppenhaus und Vestibül hatte Tropeano schon in den 1990er-Jahren zusammen mit der Firma Neue Werkstatt zylinderförmi­ge Pendelleuchten entwickelt. Stellen­weise kamen die alten gerun­deten Opalglasleuchten zur Wiederverwendung, so in der möglichst originalen Raum­achse mit den Treppen zur Galerie der Ausstellungshalle. Auch die charakteris­tischen orange-beige-braunen Platten aus Lausener Klinker am Boden wurden geflickt und ergänzt. In den Seitenschiffen der Ausstellungshalle liegt da, wo Erneuerung nötig war, in Anlehnung an das ursprüngliche Linoleum ein schwarzer Gummigranulatbelag.

Die Holzrahmen der Fenster wurden instand­gesetzt, zusätzliche Isoliergläser innen angebracht und fast alle Fensterbänke ersetzt. Alte Glasscheiben mit kleinen Rissen beliess man jedoch. Durch den Rückbau zwischenzeitlicher Modifikationen an den Metalltüren und -fenstern im zwischenzeitlichen Eingangsbereich ist die Transparenz wiederhergestellt.

Bewahrt und rekonstruiert

Der Umgang mit dem Denkmal umfasst Schritte vom Restaurieren über das teilweise Wiederherstellen bis zum Ergänzen. Die zum Ausstellungssaal hin neu eingefügte zweite Glaswand sowie die ebenfalls neue raumhohe Verglasung entlang der Galerie entsprechen den Forderungen zum Raumklima. Der Thekenkorpus für die Cafeteria ist wie die dazugehörige Küche völlig neu. Eine Besonderheit sind Bau­teile, die keine Verwendung mehr finden, auf Wunsch der Denkmalpflege aber gleichwohl wieder zum Einbau kamen, wie Bauberater Lukas Knörr im Gespräch ausführt: Diese Relikte besitzen zwar keine unmittelbare Funktion mehr, aber eine denkmalpflegerische – quasi als archäologische Dokumente. Beispielsweise wurden auf der Galerie originale Teilstücke des Linoleumbodens, der getüpfelten Tapete und des Drahtglas-Geländers angebracht.

Sichtbares Zeichen der Neueröffnung ist die Gebäudebeschriftung an der Fassade: In grossen Lettern steht «Museum für Gestaltung» anstatt dem früheren «Kunstgewerbemuseum». Hierfür wurde die originale Typografie des Grafikers Ernst Keller eingesetzt, von dem auch die übrige Signaletik im Gebäude stammt; einzelne bisher nirgends verwendete Buchstaben mussten allerdings nachempfunden werden. Neu ist die abendliche Hinterleuchtung der Beschriftung.

Das wesentliche Resultat der Instandsetzung  ist zweifellos die Demontage der eingangs erwähnten Zwischendecke im Ausstellungssaal und der Büro­einbauten auf der Galerie. Damit präsentiert sich das moderne Denkmal wieder mit dem basilikalen Querschnitt, dem es seine einzigartige räumliche Qualität verdankt.  Das Museum für Gestaltung Zürich ist seiner ursprünglichen Architektur gemäss wieder hergestellt und für den weiteren Gebrauch aufgerüstet. Den Architekten gelang es aufgrund ihrer jahrelangen Beschäftigung mit dem Museum, adäquate Lösungen für die Integration aktueller technischer Anforderungen zu finden. Ihr respektvoller und einfühlsamer Um­gang mit diesem komplexen Denkmal überzeugt.

Anmerkungen

  1. Vgl. Gewerbeschule und Kunstgewerbemuseum der Stadt Zürich. Festschrift zur Eröffnung des Neubaus im Frühjahr 1933.
  2. Neue Zürcher Zeitung, 7. August 1927.
  3. Vgl. Heimatschutz 1930, Nr. 1, S. 16.
  4. Vgl. Reprofilierung der Architektur des Gebäudes der Kunstgewerbeschule der Stadt Zürich von 1932 – Ein Auftrag, hg. von der Kunstgewerbeschule der Stadt Zürich, Schule für Gestaltung, Zürich 1981. Darin wurde u. a. bereits die Wiederherstellung der Ausstellungshalle gefordert.

Einen Film zum Rückbau der Hallendecke und zusätzliches historisches Material finden Sie auf espazium.ch/mfg-zh

Chronologie
 

1925 bis 1927:
1. und 2. Durchgang Projektwettbewerb
 

26. Januar 1930:
Volksabstimmung zum Baukredit mit breiter Diskussion des Projekts in der Öffentlichkeit
 

September 1930 bis April 1933:
Bauphase
 

1958:
Einzug Zwischendecke Ausstellungssaal
 

1981:
Aufnahme ins Inventar schützenswerter Bauten der Stadt Zürich
 

1991:
Büro für Denkmalpflege der Stadt Zürich: Studie zur Erfassung der Ver­änderungen und mit Wiederherstellungsvorschlägen (Adam & Erni Architekten)
 

1994:
Integrale Unterschutzstellung der gesamten Anlage
 

1993 bis 1996:
Aussenrenovation durch Tropeano Pfister Architekten
 

1998 bis 1999:
Brandschutzmassnahmen und Instandsetzung der Korridore mit Rekonstruktion der Tapete (Tropeano Pfister Architekten)
 

2000:
Eigentümerschaft wechselt von Stadt zu Kanton Zürich; Vorprojektstudie zur Gesamtinstandsetzung (Pfister Schiess Tropeano & Partner Architekten)
 

2003:
Umbau Vortragssaal
 

2011:
Machbarkeitsstudie (Ruggero Tropeano Architekten)
 

2013:
Beginn Instandsetzungs- und Umbauprojekt Museum durch Ruggero Tropeano Architekten
 

März 2015:
Baueingabe
 

August 2015:
Restauratorische Befunduntersuchung (Heinz Schwarz und Gertrud Fehringer, Bauanalysen, Kriens)
 

Februar 2016 bis September 2017:
Bauphase Museum
 

März 2018:
Wiedereröffnung

An der Instandsetzung Beteiligte
 

Eigentümer
Kanton Zürich
 

Architektur Museum
Ruggero Tropeano Architekten, Zürich
 

Bauherrenvertretung
Baudirektion Kanton Zürich
 

Tragwerksplanung
Dr. Deuring + Oehninger, Winterthur
 

Beratung Erdbebenertüchtigung
Hugo Bachmann, Prof. em. ETH, Dr. sc. techn., Dr. h. c., Dübendorf
 

Bauleitung / Kostenplanung
KSORA, Zürich (Vollenweider Baurealisation, Schlieren ZH)
 

HLKK-Planung
Amstein + Walthert, Zürich
 

Baumeisterarbeiten
Anliker, Zürich
 

Lichtplanung
Matí, Adliswil ZH
 

Einbauten Empfangsmöbel
Metall Werk, Zürich
 

Beleuchtung
Moos Licht, Luzern
 

Bodenbeläge, Textilien
Daniel Fournier, Regensdorf ZH
 

Türen, Tore
Surber Metallbau, Dietikon ZH
 

Fenster
Holzmanufaktur, Hunzenschwil AG
 

Elektroarbeiten
Burkhalter Technics, Zürich
 

Lüftungsarbeiten
Hälg, Zürich

Restaurierung der Gewerbeschule
 

Architekten
Arthur Rüegg und Silvio Schmed, Zürich
 

Bauzeit
2015 bis 2017. Aus Kostengründen wurde die aufwen­dige Sanierung des Schultrakts in einem eigenen Verfahren vergeben.
 

Wichtigste Massnahmen
Einfügen eines Infozentrums im Erdgeschoss, Einbau von Schulküchen im Untergeschoss und von Spezialunterrichtsräumen im 1. Obergeschoss, Wiederherstellung des «Gelenkraums» am Übergang zum Kunstgewerbemuseum im 2. Obergeschoss, Umwandlung des ehemaligen Aktzeichensaals im 5. Obergeschoss in einen Mehrzwecksaal, neue Brandabschlüsse in den Gängen (vgl. «Von der Kunstgewerbe- zur Berufsschule»)

 

Verwandte Beiträge