Ver­wur­zelt und ver­wan­delt

Das dreistöckige Mehrfamilienhaus von Burkhalter Sumi Architekten steht in Zürich Affoltern auf einem Hügelkamm. Der Ersatzneubau weist Attribute eines modernen Holzbaus auf und enthält gleichzeitig Referenzen an das zuvor an seiner Stelle stehende Schindelhaus. 

Publikationsdatum
17-11-2017
Revision
28-11-2017

Arche Noah nennen seine Architekten den Bau, der vom Äusseren her tatsächlich manches mit dem stattlichen Schiff gemeinsam hat, das nach der Sintflut auf dem Berg Ararat hängen geblieben sein soll. Das leicht über Strassenniveau liegende Erdgeschoss ist über einen Steg erreichbar, und die dicht wie Schilf wirkenden Grasbüschel darunter verstärken die Illusion des am Ufer liegenden Schiffs. Etwas anders sieht die gegenüberliegende Längsseite aus: Der Bau wirkt geerdet im Zusammenspiel mit den gros­sen Bäume der Freihaltezone, die an eine kleine Waldenklave im Quartier grenzt. Etwas weiter unten, am Hügelfuss, vervollständigen in Richtung ETH Hönggerberg ein Patchwork aus Schrebergärten am Waldrand und eine der letzten Landwirtschaftsflächen der Gegend das pittoreske Bild.

Im Spannungsfeld dazu steht die beginnende Verdichtung auf der gegenüberliegenden Seite des Quartiers. Die Arche Noah trägt ihren Teil dazu bei, denn bis zu seinem Abriss stand auf dem Grundstück ein kleines Einfamilienhaus mit silbergrauen Schindeln und Laubsägeli-Balus­traden. Die Bauherrschaft, die es bewohnte, schätzte es, in einem Holzbau zu leben, und wünschte das Material auch für ihr neues Haus. Darum wendete sie sich an Burkhalter Sumi Architekten, die sich schon seit Langem mit Holz beschäftigen. 

Gegensätzlich und doch ähnlich 

Die grau gestrichene Fassade besteht aus dicht gesetzten, vertikalen Holzlatten. Davor liegen Schiebeläden, Balkon- und Fensterbrüstungen sowie der feste Sonnenschutz. Alle diese von den Archi­tekten «Schleier» genannten Elemente ermöglichen durch die unterschiedlich grossen Abstände ihrer Latten den Durchblick. Sie heben sich von der dahinter liegenden Fassade ab und rhythmisieren sie. Die drei Stockwerke sind durch leichte Vorsprünge horizontal voneinander abgesetzt, was durch die gegen oben heller nuancierte Fassadenfarbe betont wird. Die Attikawohnung der Bauherrschaft schliesst das Gebäude mit seinem Grundriss so ab, dass an den äusseren Ecken vier dreieckige Balkonflächen ausgespart bleiben. 

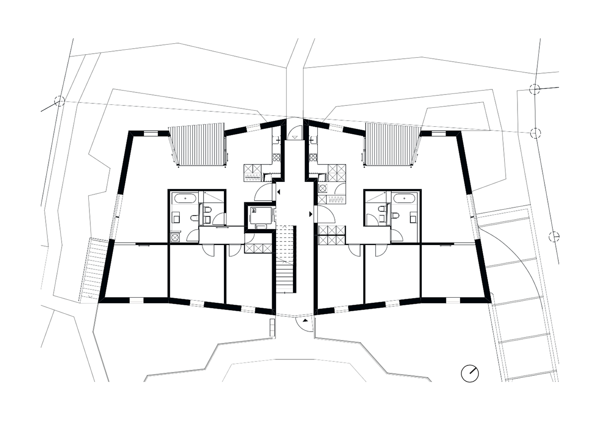
Im Gebäude befinden sich pro Etage zwei Wohnungen, die symme­trisch um einen in der Mitte leicht ge­gen die Aussenfassade geknickten Erschliessungskern aus Beton angeordnet sind. Diesen machten die noch geltenden alten Brandschutznormen erforderlich. Das säge­rohe, druckimprägnierte Holz und der Béton brut sind sich haptisch ähnlich, sagt Marianne Burkhalter. Die Architekten führten die Materialien zudem optisch noch näher zusammen, indem sie sie farblich verändern: Die Holzfassade ist grau, der Beton silbern oder grün gestrichen. «Der Beton hat noch einen weiteren Vorteil – im Winter wirkt er wärmespeichernd und im Sommer kühlend», ergänzt Marianne Burkhalter. 

Die Montage der fast 200 Holzelemente erfolgte, mit einigen Tagen Unterbruch wegen Regens, innerhalb zweier Wochen. Die gestrichenen Teile aus Tanne und Fichte wurden mit eingebauten Fenstern auf die Baustelle geliefert, die Fassadenlatten darauf montiert. Je drei Lastwagenladungen pro Wohnung brachten die Elemente aus Dreischicht- und OSB-Platten vor Ort. Dass die isolierten Decken bis an die Fassade hinauslaufen, sodass der Wärmedämmperimeter das ganze Volumen umfasst, macht die Auskragungen an der Fassade möglich. Der tragende Betonkern sichert im Erdbebenfall und dient als Fluchtweg. Die Nasszellen aus Holz wirken aussteifend. 

Aus der Geschichte gewachsen

In der Attikawohnung verleihen Decken, Wände und Einbauten aus Fichte den Räumen jenes von der Bauherrschaft gewünschte natürliche Ambiente mit dem typischen Holzduft. Die terrassenseitig ausgerichtete innere Erschliessung lässt wie auf einer Reling Blicke in Längs­richtung zu. Die «Schleier» dienen als Sonnen­schutz und werfen südlich anmutende Schatten auf die Holzeinbauten im Zentrum der Wohnung.

Möbel und Objekte, die die Bauherrschaft von zahlreichen Reisen mitgebracht hat, fügen sich selbstverständlich in die Innenräume. Das Haus ist ein Gefäss für diese persönlichen Dinge und nicht ein Ausstellungsbehälter für einen stilistisch perfekt inszenierten Auftritt – Geschichten und Erinnerungen finden ihren angemessenen Platz. Überhaupt hat der Bau nicht nur das Wohngefühl, das das Holz vermittelt, mit dem Vor­gängerbau gemeinsam, auch die feinen Fassadenlatten haben eine ähnliche ­Haptik wie die Schindeln. Die «Schleier» verleihen dem Bau aber auch etwas Futuristisches. Das feine Spiel mit der Magie des Alten setzt sich verwandelt im Neuen fort und gibt der Arche auch Eigenschaften einer modernen Hochseejacht. 

Am Bau Beteiligte
 

Bauherrschaft
privat


Architektur
Burkhalter Sumi Architekten, Zürich


GU / Montage Holzbau
Renggli, Sursee


Tragwerk Holz
IHT Rafz Ingenieurholzbau, Rafz, und Meichtry & Widmer, Zug


Landschaft
Mavo, Zürich

Weitere Informationene
 

Gebäude
Anzahl Wohnungen: 5
Grundstücksfläche (SIA 416): 1791 m²
Geschossfläche (SIA 416): 1090 m² (307 m2 UG)

 

Holz und Konstruktion
Anzahl Elemente: 103 Wände; 83 Decken
Brettschichtholz: GL 24h + C24, 95 561 m2
Dreischichtplatten B–C 19 mm: 938 845 m2
C–C 27 mm: 928 697 m2, B–C 42 mm: 814 517 m2
Faserplatten KROT 15 mm: 17 747 m2
Grobspanplatten OSB 15 mm: 401 466 m2
Konstruktionsholz: Österreich
Dreischichtplatten: Deutschland
Fassade: Skandinavien

 

Daten
Fertigung: 17 Tage
Rohbaumontage: 7 Tage
Bauzeit: Oktober 2015–Dezember 2016

 

Kosten
Total Konstruktion (BKP 1, 2, 4, 8): 4.5 Mio CHF

Der Artikel ist erschienen im Sonderheft «Stadt aus Holz III – Megatrends als treibende Kräfte», ein Projekt im Auftrag des Bundesamtes für Umwelt (BAFU) und in Zusammenarbeit mit Wüest Partner.

Weitere Artikel mit zusätzlichen Bildern und Plänen sowie weitere Beiträge zum Thema Holz haben wir in einem E-Dossier zusammengestellt.

Verwandte Beiträge