Le­ge­re Auf­sto­ckung an der Rue Wendt

Die Architekten von Lacroix Chessex haben ein Gebäude in Genf um zwei Etagen mit qualitativ hochwertigen, lichten Wohnungen aufgestockt.

Publikationsdatum
07-10-2024

Mit einer viel beachteten Aufstockung an der Rue de Lausanne in Genf aus dem Jahr 2020 haben sich die Architekten des Büros Lacroix Chessex einen Namen gemacht. Das Projekt ging aus einem 2012 durchgeführten privaten Wettbewerb hervor. Es wurde als beispielhaft gelobt, da es zeigte, dass trotz Einschränkungen kühne Wohntypologien möglich sind: Das bestehende Gebäude trägt drei Stockwerke aus Stahlbeton, die sich in die schwere tektonische Gestalt einfügen.

Vielleicht war es dieser Erfolg, der die Pensimo-Gruppe dazu veranlasste, die Architekten zu einem Konzeptvorschlag für die Aufstockung eines Wohnblocks in der Rue Wendt einzuladen. Allerdings konnte dieses Gebäude aus den 1950er-Jahren keine so schweren Lasten tragen. Das brachte die Architekten und Ingenieure auf eine Holzstruktur und eine Architektur, die Leichtigkeit verkörpert. Sie setzten mit einer luftigen Konstruktion, die sanft auf den Gebäuderiegel gestellt wurde, einen Kontrast zur gemauerten, weiss verputzten Fassade. Naheliegenderweise hebt sich das aufgesetzte Volumen durch eine Auskragung ab, die ein Vordach für die darunterliegende Etage bildet. Sie wirkt wie eine kleine, feine Kassette, die die Fassadenlänge säumt. 

Dieser Artikel ist erschienen im Sonderheft «Stadt aus Holz – Wohnbauten in Holz, nachhaltig finanziert». Weitere Artikel zum Thema Holzbau finden Sie in unserem digitalen Dossier.

Auf der Suche nach einem Referenzobjekt liessen sich die Architekten von einem eigenartigen Chalet mit sichtbaren Balken am Anfang der Strasse inspirieren. Sie schlugen einen leichten, aber strengen tektonischen Ausdruck vor, der dem Holz entspricht und das Innere mit den umlaufenden Balkonen strukturell verbindet. Kurz: Es wirkt, als hätte man eine Blockhütte auf einen modernistischen Riegel gesetzt. 

Eine schwierige Aufgabe

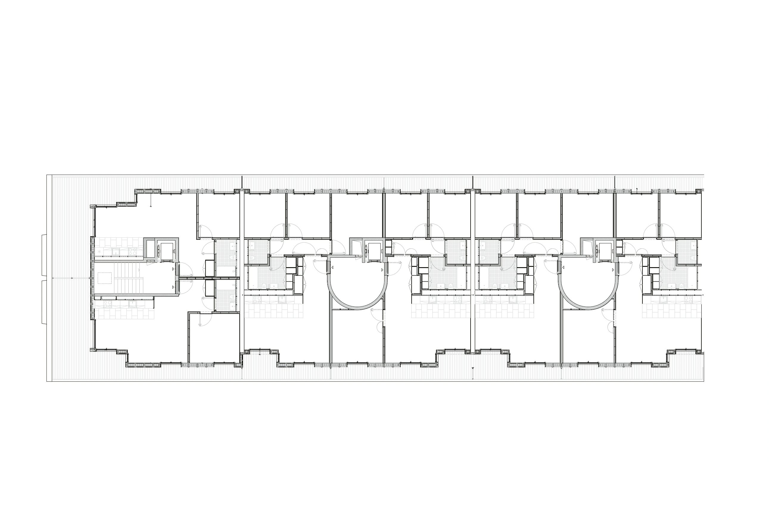
Das Projekt lässt sich als eine Schichtung von Platten beschreiben, die stirnseitig mit vorvergrauter Fichte verkleidet sind und so eine typologische Veränderung ankündigen. Eine verlorene Holzschalung begrenzt die 12 cm dicken Betondecken, die wiederum auf Trägern aus Brettschichtholz ruhen und sich auf den Trennwänden in der ganzen Gebäudelänge abstützen. 

Ein strukturelles Raster von 60 cm bestimmt im Innern die Lage von Wohnungstrennwänden und Innenwänden. Dies hat nach Aussage des Architekten Simon Chessex die Koordination zwischen dem Zimmermann und den Unternehmern erleichtert. Auch die über die zwei Fassadenseiten durchgehend offenen Tag- und Nachtbereiche folgen diesem Raster und führen zu kleinen, gross-zügig beleuchteten Zimmern mit quadratischen Grundrissen.

Manchmal werden Aufstockungen ungeschickt gebaut, ohne die architektonischen Qualitäten des bestehenden Gebäudes zu berücksichtigen. Angesichts der zahlreichen Einschränkungen ist dies eine der schwierigsten Aufgaben für Architektinnen und Architekten: Eine Aufstockung umfasst nicht nur die Gestaltung der Stockwerke, sondern auch eine Koordination von Alt und Neu. In diesem Fall bildet die Aufstockung einen Kontrast, sie offenbart aber auch die Besonderheiten des Gebäudes. Die vier Längsbalken der Holz-konstruktion unter dem Dach betonen die Symmetrieachse des Baus, die bisher nur zurückhaltend in Erscheinung trat. 

Aus wirtschaftlicher Sicht ist der bauliche Eingriff kostspielig. Aber für den Investor, der ihn mit den Kosten eines kompletten Abrisses und Neubaus verglichen hat, war die Rechnung klar: Letztendlich ging es «nur» um 12 Wohnungen. 

Mit der Forderung nach Innenverdichtung wird es zukünftig mehr Aufstockungen geben. Es existiert keine Gebrauchsanweisung für die Aufgabe: Jedes Projekt ist situativ. Hier, in dem beliebten Viertel in der Nähe des Bahnhofs Cornavin, hat sich der Investor für eine Aufstockung mit hochwertigen Wohnungen entschieden.

AM BAU BETEILIGTE

 

Bauherrschaft: Pensimo, Zürich

Architektur: Lacroix Chessex, Genf 

Statik: Moser Ingénierie, Genf

Böden: Bauwerk Gruppe, St. Margrethen

Sanitäre Anlagen : Gétaz-Miauton, St-Légier-La Chiésaz

Sonnenschutz: Griesser, Lausanne

Fenster: Veralubois Veraluplast, Romanel-sur-Morges

Türen aussen und innen: Wider, Region Genf

 

Gebäude

Nettowohnfläche Aufstockung (SIA 416): 1150 m2  

Bestandsbau: 1957

 

Holz und Konstruktion

Konstruktion: Tanne

Herkunft Holz: Europa

 

Daten und Kosten

Wettbewerb : 2018

Fertigstellung: 2023

Baukosten (BKP 2): 6.6 Mio. CHF

Erstellungskosten (BKP 1–9): 7.5 Mio. CHF

Verwandte Beiträge