Pio­nier­geist auf dem Land

Im Juni 2011 wurde das erste Schweizer Minergie-A-Eco-Zertifikat verliehen: Das von den Berner AAB Architekten geplante und im Juni 2009 fertiggestellte Zweifamilienhaus in Rosshäusern wurde als Plusenergiehaus entworfen und mit Minergie-P-Eco zertifiziert. Zwei Jahre später erhielt es zusätzlich das Minergie-A-Eco-Zertifikat.

Publikationsdatum
02-03-2012
Revision
25-08-2015
Tina Cieslik
Head of Multimedia | espazium digital lab; Korrespondentin Architektur/Innenarchitektur TEC21

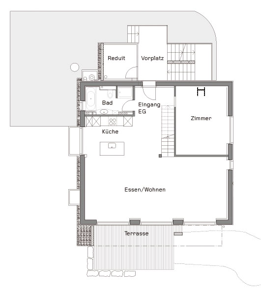
Rosshäusern, 15km westlich von Bern, ist ein Ortsteil der Gemeinde Mühleberg. Trotz der peripheren Lage stand für die Bauherrschaft und den Architekten Arwed Junginger bereits zu Beginn der Planung fest, dass der Neubau sowohl energieeffizient als auch nach baubiologischen Richtlinien erstellt werden sollte – dazu gehörten neben der Reduzierung der grauen Energie auch möglichst kurze Transportwege für das umweltfreundliche und nicht gesundheitsgefährdende Baumaterial. Um Fläche und Infrastruktur der 531m2 grossen Parzelle optimal zu nutzen, planten Bauherrschaft und Architekten ein Volumen mit zwei Wohneinheiten. Der ursprünglich als Zweigenerationenhaus genutzte Bau wird nordseitig über ein offenes Treppenhaus erschlossen, gegen Süden öffnet sich die Fassade zu einem Gartensitzplatz im Erd- und einem Balkon im Obergeschoss. Die mit 110m2 grössere Wohnung umfasst das Erdgeschoss mit Entrée, offener Küche, Wohn-/Essbereich, Bad, einem Zimmer sowie einem Zimmer im Obergeschoss. Hier befindet sich auch die separat erschlossene zweite Wohnung mit einer Grundfläche von 72m2  und einem nahezu identischen Raumprogramm. Beide Wohnungen verfügen zudem über ein vom Treppenhaus her erschlossenes Reduit. Bei einem Nutzungswechsel könnten sie zu einer Einheit zusammengeschlossen werden.

Material und Konstruktion

Realisiert wurde der nahezu quadratische Bau als verschalte Holzrahmenkonstruktion mit vorgefertigten Bauteilen. Neben der 24cm dicken Isolation aus Zellulosefasern sorgen die innenseitig angebrachten 6cm dicken Lehmbauplatten mit 3 % Strohanteil für ein angenehmes Raumklima: Sie regulieren gemeinsam mit dem farbigen Lehmverputz den Feuchtegehalt der Luft. Im Zusammenspiel mit der kontrollierten Lüftung entsteht so ein Innenraumklima, das von den BewohnerInnen als sehr angenehm empfunden wird, zudem  gibt es weniger Staub als in einer herkömmlichen Wohnung. Eicheparkett und ein feuchteresistenter Muschelkalkverputz an den Wänden der Nassräume ergänzen die Materialpalette im Inneren. 
Eine Solaranlage auf dem Dach sorgt für das Warmwasser, gespeichert wird es in einem 1200-l-Tank mit integrierter Warmwasseraufbereitung. An kalten Wintertagen ohne Sonneneinstrahlung kommt zusätzlich ein Pelletofen zum Einsatz. Geheizt wird über eine in allen Räumen verlegte Bodenheizung. Ergänzt wird die thermische Solaranlage durch 24 Fotovoltaikpaneele, die ca. 4000kWh Strom pro Jahr erzeugen, die vollständig in das öffentliche Stromnetz eingespiesen werden. Zwei Wechselrichter konvertieren den produzierten Gleichstrom in Wechselstrom für das öffentliche Netz. Im Haus selber wird ausschliesslich Gleichstrom verwendet. Der Vorteil: kaum elektromagnetische Felder im Raum und keine Insekten, die die Aussenbeleuchtung umschwirren oder abends gegen beleuchtete Scheiben fliegen. Um unerwünschte Strahlungen zu vermeiden, gibt es im Haus auch kein WLAN. Stattdessen steht im Keller ein Server zur Verfügung, das Internet kann über ein Kabel genutzt werden. 

Aufstieg zu Minergie-A-Eco

Als der Verein Minergie im März dieses Jahres das neue Gütesiegel Minergie-A lancierte, wurde der Bau in Rosshäusern im Vorfeld auf Minergie-A-Tauglichkeit überprüft. Er war der erste, der das neue Label erhielt, ergänzt um die Zusatzklassifizierung «Eco». Dafür musste er nicht einmal nachgerüstet werden: Die Hauptanforderungen waren nicht nur erfüllt, sondern sogar übertroffen.

Kompakt, doch individuell

Nach Minergie-Standard zu bauen, bedeutet, kompakte, technologische Kisten zu realisieren – dieses Urteil fällen Architekten oft. Auf den Bau in Rosshäusern trifft diese Charakterisierung auch zu – allerdings handelt es sich um eine charmante Kiste. Die harmonische Innenraumgestaltung mit den gelungenen farblichen Akzenten und individuelle Details wie der grosszügige gedeckte Vorplatz vor den Wohnungen oder die Minergie-Katzentür – sie führt zunächst ins nicht klimatisierte Reduit und von dort nach draussen – lassen vergessen, dass die Technologie im Hintergrund ein verantwortungsvolles komfortables Wohnen erst ermöglicht.

Tags
Magazine

Verwandte Beiträge