Mi­ni­ma­lis­mus als An­ge­bot

Die Aufstockung einer Werkstattzeile in Luzern durch Graber & Steiger Architekten vereint Räume für Gewerbe, Ateliers und Wohnungen inmitten einer vielfältigen Nachbarschaft zu einem turmartigen Bau. Ein reduzierter Ausbaustandard überlässt der Bewohnerschaft die Freiheit zur Interpretation.

Publikationsdatum
29-04-2022
Hella Schindel
Innenarchitektin und Fachjournalistin, Korrespondentin Architektur/Innenarchitektur

Hinter dem Haus plätschert ein Wasserfall, und Richtung Vorderhaus eröffnet sich ein asphaltierter Hof, an dem eine Autogarage und ein Design- und Fotostudio liegen. Wer von dort am ­Löwendenkmal vorbei in Richtung ­V­ierwaldstättersee geht, ist in einer Viertelstunde am Hauptbahnhof von Luzern. Die Mieterschaft der Denk­mal­strasse hat Wohnungen bezogen, die in einem dreigeschossigen Körper auf einem bestehenden Garagengebäude aufgesetzt sind. Das Grundstück liegt gemäss BZO in der Schutzzone B, die auf die Erhaltung des Ortsbilds abzielt. Die Zustimmung der Stadt zum Bauvorhaben war keineswegs selbstverständlich und signalisiert eine Öffnung zugunsten einer städtebaulichen Politik der Verdichtung.

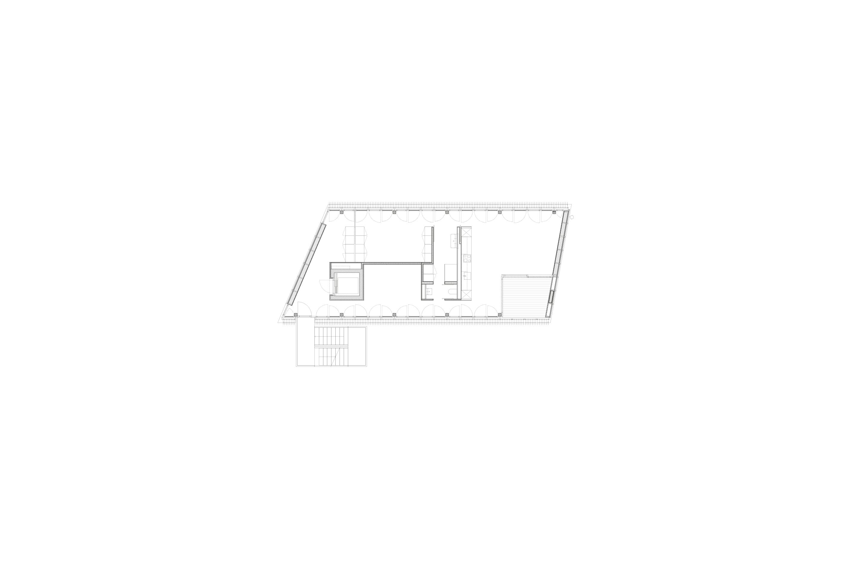
Mit dieser «Krone» ist neuer Wohnraum zwischen dem Hinterhof der viel befahrenen Zürichstrasse und dem Gelände des Gletschergartens, inmitten eines gewachsenen und durchwachsenen Stadtviertels entstanden. Die überbaute Fläche geht nicht über den bestehenden Fussabdruck der Garagen hinaus, auf denen der Neubau aufgesattelt ist. Diese Rahmenbedingungen wirken sich auf die Grundrisse aus. Einerseits war die Frage der vertikalen Erschliessung zu lösen, andererseits ein Umgang mit der relativen Nähe zu den Nachbarn im Vorderhaus zu finden. Ausserdem galt es, die lang gestreckte und trapezförmige Grundfläche von knapp 100 m2 so zu gliedern, dass die Etagenwohnungen als Ganzes erlebbar bleiben.

Die Zwiesprache der zwei Teile des Volumens – einerseits des massiven Sockels, andererseits der schlanken Krone als Betonkonstruktion mit einer Stahlglasfassade – macht nicht nur als bauliche Figur den Reiz des Hauses aus. Sie bildet auch die ­Mischnutzung aus Wohnen und Arbeiten ab, wie sie in dem Viertel Tradition hat. Die Architekten haben in der Materialwahl, aber auch im Innenausbau die Verbindung zu Gewerbebauten gesucht.

Analoges und digitales Werken

Die zuletzt teils als Lager genutzten Garagen öffnen sich mit grossen Glastoren in den Hof und liegen mit ihrer Rückseite im ansteigenden Gelände. Der Zugang erfolgt ­direkt vom Hof aus, der im Sommer den Aussenraum des Studios erweitert. Entsprechend dem Entwurfsgedanken, den Werkstattcharakter zu erhalten, beschränken sich die Vorgaben der Architekten auf wenige Eingriffe, die je nach Mieterwunsch vorgenommen oder weggelassen werden konnten. Auf Abkofferungen und Verblendungen haben sie ganz verzichtet.

Lesen Sie auch: «Geschickt gestapelt und verdreht» – Aneinandergeschmiegte Häuser in Bern

Neben der bestehenden Autowerkstatt ist ein Design- und Fotostudio eingezogen, das sich zwei Raum­achsen individuell angeeignet hat. Gleich hinter dem ersten Tor führt eine einfache Stahltreppe ins Mezzanin zu den Arbeitsplätzen. Die obere Ebene ruht auf Stahlträgern, die mit handwerklich eingefügten Holzbalken ausgefacht und von der Decke abgehängt sind. Im stützenfreien Raum darunter liegen Empfang und Besprechungsbereich. Der optionale Einbau einer Hochebene sowie eines Bads wurde bisher nur in diesem vorderen Raum umgesetzt. Anstelle der vorgesehenen Trennwand grenzt ein raumhoher Vorhang den Arbeitsbereich vom zugehörigen Fotostudio auf der zweiten Achse ab. Alle Installationen, ob Kunststoffrohre oder Metall, ob Heizkörper oder Leuchten, verlaufen offen vor den Sichtbetonflächen und den verputzten Aussenwänden. Abgesehen vom versiegelten und geschliffenen Betonboden bleiben alle anderen Materialien roh und unbehandelt, auch im Sinn eines sparsamen Umgangs mit Ressourcen.

Für die Büromöblierung haben sich die Mieter an eine innovative Plattform in London gewandt. Aus einem Spektrum an Entwürfen haben sie sich Möbel ausgesucht, die per CNC-Fräsung aus Birkensperrholz hergestellt werden und sich mit ihrer reduzierten Materialsprache ins Bild fügen. Über die Plattform konnten sie sich mit einer Reihe von Schreinern austauschen, die in der unmittelbaren Nähe sitzen und in der Lage sind, die digitale Ausführung zu bewerkstelligen. Anders als eigentlich vorgesehen haben sie aber den Schreiner beauftragt, mit dem sie ohnehin zusammenarbeiten, und ihn als Netzwerkpartner an die Plattform vermittelt. Unter Vermeidung von Lagerware, langen Transportwegen und Materialverschwendung entstehen so – mit dem digitalen Umweg über London – lokal produzierte Möbel. 

Das Trottoir als Erweiterung

Über den Garagen, ebenerdig zugänglich von der Denkmalstrasse, liegt ein Ladenlokal, das im Moment als Gemeinschaftsatelier genutzt wird. Von aussen sichtbar und Teil der Nachbarschaft ist ein sozialer Mittagstisch, der sich aus einem Fotoprojekt entwickelt hat ­(vgl. Link am Ende des Artikels). Die Speisen werden durch ein Fenster zum Trottoir herausgereicht, wobei die tiefen Laibungen zugleich als Sitzbänke dienen. Das Geschirr dazu entsteht in der Keramikwerkstatt, gleich neben der Liege und den Gerätschaften der Tattoo­künstlerin und gegenüber dem Arbeitsplatz der Fotografin.

Auch hier ist der fehlende Innenausbau als Aufforderung zur gemeinsamen Aneignung, zu übergreifenden Konzepten verstanden worden. Der weiss gestrichene Raum bleibt strapazierfähig und zurückhaltend, überlässt den darin Tätigen die Bühne. Schon bei der Kochzeile, in der sich Kühlschrank und Tonabscheider aneinanderreihen, fragt man sich, ob in den Vorratsgläsern Lebensmittel oder eher Pigmente lagern. Mit Bodensteckdosen für einen Kassentresen ist eine Ladennutzung jederzeit möglich, Pläne für einen entsprechenden Ausbau liegen parat.

Eine Hülle aus Licht

An der schmalen Seite des Hauses liegt der Zugang zu den Wohnungen. Ein Lift führt direkt in die Privaträume. Ebenso filmreif ist aber der Zugang über die Treppe, die sich hofseitig im Freien anschliesst. Ein niedriger Hausstreifen, in dem die Abstellräume der Mietparteien untergebracht sind, trägt nur einen Betonsockel als unterste Stufe – mehr Last wäre diesem Bestand nicht zuzumuten gewesen. Die Stahlkonstruktion hängt auf auskragenden Trägern wie ein Rucksack über dem Hof. Von den Stufen und Podesten bieten sich – als willkommene Ergänzung zu den introvertierten Loggien – Blicke in die Ferne, aber auch in die Fenster der Nachbarn. Ein offensiver Umgang mit der Dichte, der den aktuellen Miet­parteien sympathisch ist.

Der Grundriss, der auf den drei Etagen derselbe ist, reagiert auf diese Situation, indem die Wohnräume ganz innen einen schützbaren Bereich bieten. Damit die Wohnungen dennoch grosszügig sind, haben die Architekten ein paar Kniffe angewandt. Zuerst ist das die Auslagerung der Treppe, die der besseren Ausnutzung der Wohnflächen zugutekommt. Wandscheiben, die Installationen und Schrankraum aufnehmen, gliedern den Kern. Die Aufteilung der Bereiche ist fast frei gestaltbar: Nur der Liftschacht als Teil des Tragwerks, das als Skelettbau mit peripheren Tragachsen entlang der Längsfassaden konzipiert ist, und die Steigzonen sind gesetzt. Entlang der Längsfassaden, an denen sich die Stützen und raumhohe Holzrahmenfenster abwechseln, bleibt eine Raumschicht frei, die sich an den kurzen Seiten zum Entree und zu einem grossen Raum mit ­Loggia aufweitet. An den Längsseiten übernimmt diese Membran gleich drei Funktionen: Sie dient als Abstandhalter zur Nachbarschaft und zugleich als umlaufender Korridor oder wahlweise als Verlängerung der Räume bis zur Aussenwand – mittels Schiebetüren lässt sich der fliessende Grundriss unterteilen oder einzelne Bereiche von der Fassade abgrenzen. Vor allem aber ermöglicht sie, dass das Tageslicht von Osten und Westen durch die Wohnung wandern kann und diese so in ihrer Fläche wahrnehmbar ist.

Einladung zum Umdenken

Als Reminiszenz an das gewerbliche Umfeld ist jedes zweite Fenster mit Ornamentglas versehen, das in diesem Zusammenhang für ein Minimum an Privatheit sorgt. Zur Regulierung von Licht und Luft lassen sich alle Flügel öffnen, mit Vorhängen ausblenden oder durch aussen liegende Kipprollos verschatten. Zur rückwärtigen Seite, an der alle Mietparteien ihren Schlafraum eingerichtet haben, bilden alte Bäume eine weitere Schicht, hinter der sich der Gletschergarten erhebt. Bei Tag ist der Blickkontakt zu den Touristen unvermeidlich, bei Nacht dreht sich die Indiskretion um, und es lässt sich die Tierwelt im Parkgelände hören und beobachten.

Auf die zwei durchgängigen Glasfassaden reagieren alle Bewohnenden mit hängenden und stehenden Pflanzen jeglicher Couleur, sodass sich die Abgrenzung von innen und aussen aufblättert. Wie ein Mieter treffend sagt, erlebt er die Wohnung als eine Art doppelseitige Orangerie. Während die Fenster an der Nordseite noch um die Ecke greifen, bleibt die Seite zur Prachtaussicht über den See zu den Bergen aus nachbarschaftsrechtlichen Gründen verschlossen. Mit dem Wissen um das, was einem hier verwehrt bleibt, sicher ein Verlust. Andererseits erhalten die Wohnung auf diese Weise einen atmosphärisch stabilisierenden Halt. Die eingeschnittenen Loggien stören hingegen die klare Raumordnung und erscheinen aufgrund des omnipräsenten Aussenbezugs verzichtbar.

Die Möblierung durch die Bewohnenden ist zurückhaltend – offenbar hat sich die Idee der Architekten, den Bau mit einem Anklang an SoHo-Lässigkeit zu versehen, erschlossen. Die in ihrer Rohheit bestimmende Atmosphäre des Grundrisses und seines Innenausbaus ist eine Aufforderung, Gewohnheiten wie abgeschlossene Badezimmer, durch Flure geschützte Schlafräume oder Materialien wie Holzböden oder Tapeten infrage zu stellen. Der Luxus, den diese Räume verkörpern, besteht in der Idee, Wohnstandards zugunsten einer innerstädtischen und nicht vordefinierten Wohnform hinter sich zu lassen. Lage und Erscheinungsbild der Wohnungen sind als Basis zu verstehen, von der aus ihre Nutzenden zu einem gestaltenden Teil des Quartiers werden können, beginnend mit einer Offenheit für Einblicke und Ausblicke.

Dieser Artikel ist erschienen in TEC21 13/2022 «Weite, komprimiert».

Mehr zum Thema Innenarchitektur finden Sie in unserem E-Dossier.

Bauherrschaft
Privat

 

Architektur
Graber & Steiger Architekten, Luzern

 

Bauleitung
Müller Architekten, Kriens

 

Bestandsaufnahme
Steiger Baucontrol, Luzern

 

Tragwerksplanung
Wälli Ingenieure, Horw

 

HLKS-Planung
Markus Stolz & Partner, Luzern

 

Fassadenbau
Werner Keller, Hergiswil

 

Fensterbau Holz/Metall
1a Hunkeler, Ebikon

 

Schreinerarbeiten
Fähndrich, Weggis

 

Bauzeit
2019–2021

 

Auftragsart
Direkt

 

Volumen nach SIA 416
2535 m3

 

Kosten
3.4 Mio. Fr.

Magazine

Verwandte Beiträge