Mi­mi­kry

Neubau Verwaltungsgebäude Kanton Appenzell Innerrhoden

Der Kanton Appenzell Innerrhoden plant einen Neubau für die Verwaltung an der Marktgasse. Realisiert werden soll das Projekt «Justus» von Cukrowicz Nachbaur Architekten aus Bregenz.

Publikationsdatum
25-02-2021

Ein Verwaltungsgebäude mit Platz für Gerichte, Landesarchiv, Kantons- und Volksbibliothek (zentrale Bibliothek) und weitere Amtsstellen soll es werden. Zwingende Sanierungsmassnahmen und Kapazitätsgrenzen in ihren Bestandsbauten liess die Standeskommission von Appenzell Innerrhoden sich für einen Neubau an der Marktgasse 14 und 16 direkt im Zentrum entscheiden. An der ordentlichen Landsgemeinde vom 28. April 2019 hiess das Stimmvolk einen Neubau mit einem Gesamtkredit von 19.8 Mio. gut. Dem Entscheid lag eine Mach­barkeits­studie zugrunde, die aufzeigte, dass das vorgesehene Raumprogramm mit einer Geschossfläche von rund 3700 m² sowie einem Volumen von rund 12 000 m³ am planmässigen Standort realisierbar ist.

Das Dorf Appenzell ist von nationaler Bedeutung und deshalb Teil des ISOS. Eine besondere Herausforderung ist die Ortsbildschutzzone integral, die für den Stadtkern von Appenzell gilt. Alle Bauten sind «mit besonderer Sorgfalt zu gestalten und sehr gut ins Orts- und Strassenbild einzupassen». Aufgrund dieser Ausgangslage sind für das Projekt drei Vollgeschosse möglich, wobei die Fachkommission des Heimatschutzes darauf hinweist, «dass eine Traufhöhe von neun Metern nicht überschritten und ein ruhiges und von Dachaufbauten frei gehaltenes Steildach ausgeführt werden sollte».

Gleich und doch anders

Im selektiven, anonymen Projektwettbewerb unterzog die Jury die 19 Einreichungen einem Vergleich hinsichtlich der ortsbaulichen Einbettung, der betrieblichen Organisation sowie der Konstruktion. Auffällig war, dass die Projekte in der engeren Wahl bei den Themen Flächeneffizienz, Primärenergie und Treibhausgas­emissionen in Erstellung und Betrieb und Ausnutzung des Grundstücks nur kleine Unterschiede aufwiesen. Die Jury führt dies zurück auf «das knappe Grundstück, das klar definierte Raum­programm und die geforderten Funktionsbeziehungen, welche den Projektverfassern vergleichsweise wenig Spielraum gelassen haben».

Einschmiegsam

Das Projekt «Justus» des Architekturbüros Cukrowicz Nachbaur Architekten aus Bregenz schnitt am besten ab und wurde einstimmig zur Weiterbearbeitung empfohlen.

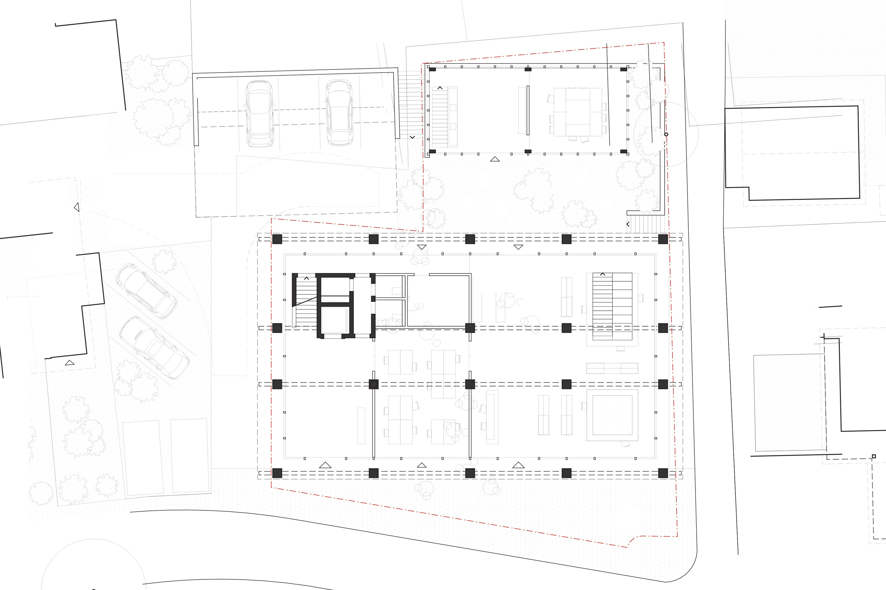
«Justus» überzeugt mit einem knappen Fussabdruck im städtebaulichen Kontext. Das leicht ­ver­zogene Rechteck formt eine Gasse mit den bestehenden Gebäuden an der Marktgasse und schmiegt sich gut in die bestehende Dorfstruktur ein. Durch die der Stras­senflucht folgende Gebäudefront und die davon zurückversetzte Eingangsfassade entsteht eine arkadenförmige Begegnungszone im Erdgeschoss, die einen wettergeschützten Vorbereich für die Zu­gänge des öffent­lichen Gebäudes bildet. Die viergeschossige Bau­weise reizt städtebaulich das ­oberste Limit aus. Die Verfasser rea­gier­ten mit einer tiefgezogenen Dachtraufe und einer mit mehreren Steildächern versehenen Dachlandschaft, um den Bau nicht zu voluminös werden zu lassen.

Die horizontale Orientierung der Fassade nimmt die Bautradition der Appenzellerhäuser auf. Die Abstrahierung der Fenster mittels «Lammellenschirmen» empfindet die Jury nicht als vorteilhaft, sie befürchtet einen Moiré-Effekt, der die Arbeitsplätze dahinter beeinträchtigen könnte. Für die Konstruktion haben die Planenden einen ­Massivbau vorgesehen, der in den Obergeschossen und im Dach mit Holzelementen ­verkleidet ist. Die Jury begrüsst, dass diese Hybrid­bauweise die vorgeschlagene Um­setzung im Min­er­gie-­P-Standard unterstützt.

Architektonische Einheit

Auch Lukas lmhof Architektur setzt beim zweitplatzierten Projekt «Vogel» eine Giebelfassade ein, um den Neubau in die ortsübliche Dachlandschaft zu integrieren. Mittels dreier zusammengesetzter Volumen entsteht eine sternförmige Architektur. Das umlaufende, dreigeschossige Fassadenbild ist weniger experimen­tell gestaltet als beim Siegerprojekt. In Richtung Südosten haben die Planenden das Dach aufgefaltet, um in diesem Bereich vier Vollgeschosse zu kreieren. Die Jury hebt hervor, dass der «aufgelöste Betonsockel, die grosszügigen Verglasungen, gestrichene Schindelschirme und ein alles fassendes grosses Blechdach eine stimmige architektonische Einheit schaffen und nicht bloss ein plattes Zitat lokaler Motive» sind. Weniger positiv bewertet sie die «komplexe volumetrische Ausformung», die eher in einem städtischen Kontext anzutreffen wäre, und dass das «Gebäude insbesondere in der Übereckansicht sehr gross» wirkt.

Bewusste Öffentlichkeit

Mit einem langen rechteckigen Baukörper konnten Thomas K. Keller Ar­chitekten den dritten Platz erringen. Besonders sticht bei «Staatimdorf» die Dachform hervor: ein Walm­dach, dessen Spitze als Firstoberlicht mit seitlichen Fensterbändern ausgebildet ist. Die Jury bescheinigt, dass mit der am Rathaus orientierten Dachform «bewusst die öffentliche Nutzung des Gebäudes» betont wird. Durch die Skelettbauweise entsteht im Erdgeschoss ein hallenartiger Raum für die Bibliothek und mit der im Erdgeschoss nach innen versetzten Fassade eine kleine, umlaufende Kolonnade als Zugangszone. Die Jury ist überzeugt, dass das Projekt durch Positionierung und Dachform «zwischen Integration und Auszeich­nung eine ausgewogene und überzeugende Tonlage» trifft. Das Raumprogramm weist jedoch Mängel auf, und dem «ambitionierten Tragwerk» wurde kein korrespondierendes Haustechnikkonzept gegenübergestellt. So bleiben räumliche Fragen im Innern offen.

Alt und Neu verwebt

Beim viertplatzierten Projekt «Zockebolle» von Knorr & Pürckhauer Architekten lobt die Jury, dass die Planenden mit einem Doppelgiebel nach Süden und einem Quergiebel als Abschluss im Norden explizit Bezug auf die Nachbarbauten nehmen und so Alt und Neu miteinander verweben. Die Fassadengestaltung stellt die Jury jedoch infrage. Sowohl die bodenebenen Oberlichter des Untergeschosses als auch ins­gesamt der Fensterraster und die Fassadenoberfläche aus natur­­­be­lassenen Lärchenschindeln em­pfindet die Jury als «fremd», sie lasse «das spannungsvolle Spiel der Appen­zeller-­Fassaden vermissen».

Pläne und Jurybericht zum Wettbewerb finden Sie auf competitions.espazium.ch

Auszeichnungen

1. Rang / 1. Preis: «Justus»
Cukrowicz Nachbaur Architekten, Bregenz (A); Baubüro Hollenstein, Zuzwil; Ghisleni Partner, Rapperswil
2. Rang / 2. Preis: «Vogel»
Lukas lmhof Architektur, Zürich; Josef Kolb, Gossau
3. Rang / 3. Preis: «Staatimdorf»
Thomas K. Keller Architekten, St. Gallen; Merz Kley Partner, Altenrhein
4. Rang / 4. Preis: «Zockebolle»
Knorr & Pürckhauer Architekten, Zürich; Ferrari Gartmann, Chur; Balzer Ingenieure, Chur; Gersbach LA Architekur, Zürich; Bakus Bauphysik, Zürich; Kompatech, Regensdorf

FachJury

Corinna Menn, Architektin, Chur; Werner Binotto, Architekt, St. Gallen; Martin Bauer, Architekt, Zürich; Niklaus Ledergerber, Denkmalpfleger Stadt St. Gallen / Präsident Fachkommission Denkmalpflege Appenzell Innerrhoden; Thomas Zihlmann, Architekt und Immobilienökonom, Appenzell Innerrhoden

SachJury

Ruedi Ulmann, Bauherr, Vorsteher Bau- und Umweltdepartement AI; Jakob Signer, Landesfähnrich, ­Vor­steher Justiz-, Polizei- und Militärdepartement AI; Markus Dörig, ­Ratschreiber, Appenzell Innerrhoden; Antonia Fässler, Statthalter, Vorsteherin Gesundheits- und Sozialdepartement AI (Ersatz)

Verwandte Beiträge