Al­te Denk­mus­ter ab­le­gen

Mehrzweckgebäude Schulanlage Dorf, Frick

Das Schulareal Dorf in Frick soll um ein Mehrzweckgebäude mit Schulraumnutzung erweitert werden. Obwohl ein Neubau gefragt war, ­eröffnete der Studienauftrag zuletzt die Möglichkeit, mit dem Bestand zu arbeiten. Die Teams fanden kreative Lösungen und integrierten das ­bestehende Untergeschoss ressourcenschonend in ihr Projekt.

Publikationsdatum
06-03-2025

Neubau Mehrzweckgebäude Schulanlage Dorf, Frick
Einstufiger Studienauftrag im selektiven Verfahren

Die Veränderungen der Lebenswelt Schule mit neuen Lehr- und Lernformen sowie Betreuungskonzepten haben bauliche Konsequenzen – so auch im aargauischen Frick. Wie in vielen Gemeinden übersteigt der Bedarf an Schulräumen auch hier den verfügbaren Platz, der – verteilt auf zwei Schulzentren – aktuell eine Infrastruktur für rund 1000 Schülerinnen und Schüler bietet. Um ein Bedarfsprogramm für das Jahr 2035 zu erstellen, beauftragte die Gemeinde das Brugger Büro Metron Raumentwicklung für die Schulraumplanung. ­Metron erfasste den gesamten Gebäudepark und entwickelte sechs Strategievarianten, die die Möglichkeiten um die beiden Schulanlagen Ebnet und Dorf ausloten. Rein mit dem Bestand kann der Bedarf nicht gedeckt werden, so steht es im Bericht von 2022. Der bauliche Zustand der 1958 erbauten Mehrzweckhalle und der Aula wurde beanstandet; eine Sanierung lehnte der Gemeinderat aus Kostengründen ab. Die Beurteilung des Bestands erfolgte auf Grundlage einer Begehung und Arbeitssitzungen; vertiefte energetische und technische Analysen wurden nicht durchgeführt. Der Bericht hält dennoch fest, dass «die Gebäudesub­stanz gut unterhalten wird und sich in funktionstüchtigem Zustand befindet». Hingegen seien die Haustechnik veraltet und die Oberflächen heruntergekommen, erklärte die Verfahrensbegleitung auf Anfrage (mehr zur Rolle der Verfahrensbegleitung lesen Sie im Interview ab S. 12). Die Studie endete in zwei Varianten, die beide einen Neubau beinhalteten. Für das Vorhaben empfahlen die Raum­ent­wick­ler die Durchführung eines Projektwettbewerbs.

Auf Umwegen zum Erfolg

Das Schulareal Dorf liegt im Zen­trum der Gemeinde Frick und besteht aus zwei sanierten Schulhäusern von 1912 und 1925 sowie einem erweiterten, ebenfalls sanierten Schul­haus aus dem Jahr 1957 und der Mehrzweckhalle von 1958. Hier sind die Schulzüge von Kindergarten über Unter- bis Mittelstufe untergebracht. Der Aussenraum ist grosszügig und bietet einen alten Baumbestand sowie eine weitläufige Spiel- und Sportwiese. Die asphaltierten Bereiche wie auch die Mehrzweckhalle dienen neben schulischen Aktivitäten auch der Öffentlichkeit und werden für Veranstaltungen genutzt.

Die bestehende Halle soll abgerissen und durch einen Neubau ersetzt werden, der als Mehrzweckgebäude mit Doppelturnhalle sowohl der Schule als auch Vereinen zur Verfügung steht und den Schulraum erweitert. Die Teams konnten den Standort innerhalb des Projektperimeters frei wählen. Da der Standort unklar war, führte die Gemeinde anstelle des empfohlenen Projektwettbewerbs einen Studienauftrag durch.

Lesen Sie das Interview mit Herrn Kai Saager, Verfahrensbegleiter beim Architekturbüro Tschudin Urech Bolt!

Aus den 33 Bewerbungen durften vier Teams, darunter ein Nachwuchsbüro, am Dialogverfahren teilnehmen. Neben der Verfahrensform stiess auch die Forderung nach einem Neubau beim Beurteilungsgremium, den Teilnehmenden und Experten auf Unverständnis. Ein funktionierendes Gebäude abzureissen, um es mit einem Neubau zu ersetzen, gilt heute zu Recht als Fauxpas. Dies erkannte auch die Verfahrensbegleitung, ein für den In­dus­trie­standard junges Büro, das sich für die Möglichkeit einsetzte, mit dem Bestand zu arbeiten. Und so entschied sich die Gemeinde Frick in der letzten Runde der Frage­be­antwortung dafür, diese Variante zuzulassen. Im Programm des Studienauftrags waren die Planenden angehalten, von der Volumetrie über die Bauweise bis zur Materialisierung eine nachhaltige Lösung zu entwickeln. Weitere Stichworte waren klimagerechtes Bauen, Kreislaufwirtschaft und soziale Nachhaltigkeit. Auch die schützenswerten Bäume sollten erhalten bleiben.

«As found» einmal anders

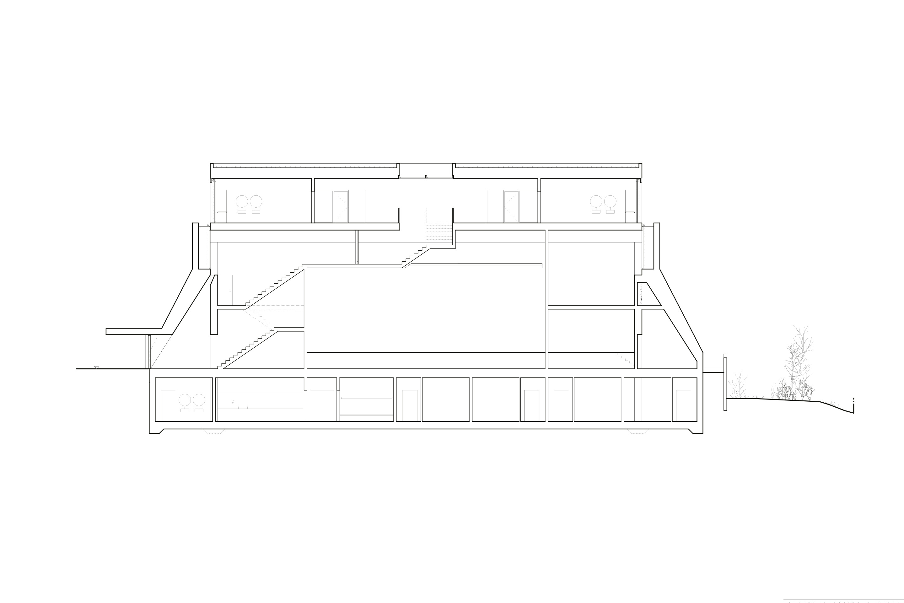
Gewonnen hat den Studienauftrag das Team Schmid Schärer Architekten in Zusammenarbeit mit Skala Landschaft Stadt Raum und den Bauingenieuren Seforb mit einem den Bestand wertschätzenden Projekt. Das Beurteilungsgremium lobte die auf den Kontext abgestimmten Volumen wie auch die gelungene Verknüpfung von Setzung und Erschliessung, wodurch die bestehende Allee zur Spielstrasse wird. Das Siegerteam bricht die bestehende Mehrzweckhalle oberirdisch ab, da sie für das geforderte Raum­programm ein Korsett darstellt. Im Gegenzug wird das Untergeschoss weiterhin genutzt. Ein cleverer Schachzug: Untergeschosse sind bekanntlich für einen bedeutenden Anteil der Treibhausgasemissionen verantwortlich.

Der Bau reagiert geschickt auf seine Umgebung: Gegen Süd­osten kragt das Dach aus und bietet eine partielle Überdeckung des Aussenraums, die gleichzeitig die Fassade verschattet. Im Nordwesten beeinflusst das üppige Grün die Stimmung im Innenraum. Doch auch durch die Farb- und Materialwahl der Fassade zeigt das Team eine lobenswerte Feinfühligkeit für den Ort. Wie bereits im Programm empfohlen, setzt das Team das Projekt vorbildlich in Holzbauweise um. Die Zangenkonstruktion mit Zwillingsträgern erzeugt dabei ein filigranes Bild.

Ende gut, alles gut

Auch das Team um Fiechter  & Salzmann Architekten reagiert sensibel auf den Bestand und verwendet das Untergeschoss weiter. Doch leider vermögen das kompakte Volumen und die tiefe CO²-Bilanz die mangelnde Organisation nicht zu kompensieren. Das Nachwuchsteam ARGE Dario Wohler und Wallimann Reichen geht mit einem ungewöhnlichen ­Volumen mit geneigten Fassaden ins Rennen, die mit ihrem verschlossenen Ausdruck bei der Jury für Diskussionsstoff sorgten. Trotz vieler gut durchdachter Elemente ist aus Sicht des Beurteilungsgremiums kein schlüssiges Ganzes entstanden. Auch BUR Architekten beziehen sich auf den Bestand. Dennoch scheint die Entscheidung, die Turn- und Mehr­­zweckhalle in das Untergeschoss einzusetzen, umständlich und verunklärt das Projekt.

Abgesehen von einem Team, das für die Zwischenbesprechung Varianten mitbrachte, positionierten sich alle Teilnehmenden am Standort der bestehenden Mehrzweck­halle. Auf einem Schulareal mit solch klarer Setzung von bestehenden Bauten, das zudem geprägt ist von einer einrahmenden Grünanlage, wäre ein neuer Standort für das Mehrzweckgebäude ein Fehlentscheid gewesen. Die Gemeinde hätte den Standort durchaus im Vorfeld festlegen und einen Projektwettbewerb durchführen können, der das Teilnehmerfeld erweitert und mehr Lösungen eingebracht hätte.

Und dennoch: Am Ende entstand ein Projekt, das vieles richtig macht und mit seinem konsequenten Ansatz die Wiederverwendung von Untergeschossen gekonnt umsetzt.

Den Jurybericht zum Wettbewerb finden Sie auf competitions.espazium.ch

Selektierte Teams

 

Team 1 (Nachwuchs)
ARGE Dario Wohler, Zürich / Wallimann Reichen, Basel; Usus Landschaftsarchitektur, Zürich; wh-p Ingenieure, Basel

 

Team 2 (Siegerteam)
Schmid Schärer Architekten, Zürich; Skala Landschaft Stadt Raum, Zürich; Seforb, Uster

 

Team 3 
Fiechter & Salzmann Architekten, Zürich; Andreas Geser Landschaftsarchitekten, Zürich; Gruner, Zürich

 

Team 4
BUR Architekten, Zürich; Haag Landschaftsarchitektur, Zürich; EBP Schweiz

 

Fachjury

Lukas Zumsteg, Architekt, Brugg (Vorsitz); Michèle ­Mambourg, Architektin, Zürich; Axel Humpert, Architekt, Zürich; Christoph Abt, Landschaftsarchitekt, Zürich; Jürg Müller, Bauingenieur, Frick; Jil Ehrat, Architektin, Zürich (Ersatz)

 

Sachjury

Gunthard Niederbäumer, Vizeammann; Susanne Gmünder Bamert, Gemeinderätin; Peter Boss, Schulleiter Primar

 

Verfahrensbegleitung

Tschudin Urech Bolt Architekten, Brugg

 

Auftraggeberin

Gemeinde Frick

Magazine

Verwandte Beiträge