Mehr Schule!
Erweiterung Schulanlage Mettmenstetten
Die Schülerzahlen der Gemeinde Mettmenstetten ZH steigen konstant. Eine Vergrösserung der Primarschule ist deswegen unumgänglich. Den selektiven Wettbewerb gewannen Esch Sintzel Architekten.
1 / 27
2 / 27
3 / 27
4 / 27
5 / 27
6 / 27
7 / 27
8 / 27
9 / 27
10 / 27
11 / 27
12 / 27
13 / 27
14 / 27
15 / 27
16 / 27
17 / 27
18 / 27
19 / 27
20 / 27
21 / 27
22 / 27
23 / 27
24 / 27
25 / 27
26 / 27
27 / 27
1 / 27
2 / 27
3 / 27
4 / 27
5 / 27
6 / 27
7 / 27
8 / 27
9 / 27
10 / 27
11 / 27
12 / 27
13 / 27
14 / 27
15 / 27
16 / 27
17 / 27
18 / 27
19 / 27
20 / 27
21 / 27
22 / 27
23 / 27
24 / 27
25 / 27
26 / 27
27 / 27
Die Primarschule der Gemeinde Mettmenstetten ist im Wandel. Neue Aufgaben wie Tagesstruktur, aber auch organisatorische Änderungen wie ISR (Integrierte Sonderschulung in der Regelklasse) zwingen die Schule dazu, sich zu vergrössern. Zudem muss die bestehende Turnhalle Gramatt durch einen Neubau ersetzt werden.
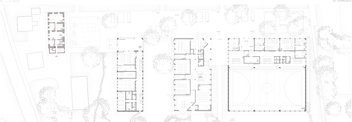
Mit einem Wettbewerb im selektiven Verfahren soll ein pädagogisch, städtebaulich und architektonisch hochwertiges Projekt unter funktionalen, effizienten und kostengünstigen Aspekten evaluiert werden. Betriebliche und energetische Anforderungen der Gemeinde Mettmenstetten müssen erfüllt werden. Die Wettbewerbsaufgabe beinhaltet eine Doppelturnhalle, Räumlichkeiten für die Tagesstruktur, eine Erweiterung der Primarschulräume und einen Begegnungsort. Der Begegnungsort (Bibliothek, Mediothek, Aufenthalt und Dorfspielplatz) soll auf dem Perimeter der Alten Sennerei umgesetzt werden, die im kommunalen Inventar schützenswerter Bauten verzeichnet ist. Die Jury empfiehlt einstimmig, die Verfasser von «Riri» mit der Planung und Realisierung zu beauftragen.
Aussenraum verbindet
«Riri» zeichnet sich durch eine aufmerksame Analyse des baulichen Kontexts und der umgebenden Aussenräume aus. Wie schon immer da gewesen gruppieren sich die neuen Häuser neben den alten um den grosszügigen Platz beim alten Schulhaus Dorf. Unter Berücksichtigung der bestehenden Niveauunterschiede werden die Gebäude durch ein Wegnetz verbunden. Das alte Schulhaus Gramatt wird von den zwei Neubauten flankiert. Die Verfasser beschreiben die räumliche Ordnung als «Schulbauten im Park», woraus sich die Architektursprache der neuen Gebäude ableitet. Vertikal gegliederte Bauten fügen sich als Gartenpavillons zwischen die bestehen den Schulhäuser. Zusätzlich wird die Erscheinung der Architektur durch aufgefaltete und teilweise verglaste Dachlandschaften geprägt. Die halb eingegrabene Turnhalle wird in Massivbauweise aus Beton erstellt. Im daraufliegenden Obergeschoss befindet sich die Tagesstruktur, deren Räumlichkeiten wie der zweigeschossige Schulhausbau als Holzkonstruktionen entworfen sind.
Die Jury kritisiert die Grundrisse, die nicht der hohen Qualität des Entwurfs entsprechen und bezüglich Funktionalität noch optimiert werden können. Die Alte Sennerei als Begegnungsort wird mit einem repräsentativen Anbau gestärkt, den die Jury jedoch infrage stellt, da er den Charakter des Bestands aus denkmalpflegerischer Sicht zu stark verändert.
Gebäude und First
Auch bei «Dreisprung» flankieren zwei Neubauten das bestehende Schulhaus Gramatt. Durch die Aufnahme der Gebäudefluchten und der Firstrichtung des bestehenden Schulhauses entsteht eine Zusammengehörigkeit des neuen Ensembles. Ein grosszügiger, bandartiger Platz verbindet die Neubauten mit dem Bestand bis hin zur Alten Sennerei, die den Aussenbereich abschliesst und so ihrer Bedeutung als öffentlicher Begegnungsraum gerecht werden kann. Allerdings bemängelt die Jury, dass die Grundrisse teilweise noch etwas schematisch wirken und in einigen Bereichen funktional nicht ganz zu überzeugen vermögen.
Zentraler Platz
Ganz anders platzieren die Verfasser von «In Situ» die Neubauten auf dem Gelände. Der bestehende Pausenplatz ist der zentrale Angel- und Ankerpunkt der Primarschule. Der Neubau der Primarschule wird an die nördliche Kante des Platzes gesetzt. Diese Lage bedingt einen vorherigen Abbruch der Turnhalle Gramatt, sodass die Erweiterung der Primarschule erst nach dem Neubau der Doppelturnhalle realisiert werden kann. Die Fassung der Nordseite des bestehenden Pausenplatzes ist ein Versuch, die Mitte der Primarschule Mettmenstetten als zentralen Begegnungsort zu stärken. Leider werden bei diesem Vorschlag die Doppelturnhalle und die Tagesstrukturen nicht in die übergeordnete Idee eingebunden.
Unter einem Dach
Besonders auffällig bei «Rosso» ist die Überdachung des Pausenhofs. Sie verbindet das bestehende Schulhaus Gramatt und die zwei Neubauten Primarschule und Turnhalle mit Tagesstrukturen. Formal und funktional überzeugt der Pausenhof jedoch nicht.
Weitere Informationen finden Sie unter der Rubrik Wettbewerbe.
Auszeichnungen
1. Rang / 1. Preis: Riri
Esch Sintzel Architekten, Zürich;
BGS & Partner Architekten, Rapperswil;
Landschaftsarchitektur Mavo, Zürich;
Schnetzer Puskas Ingenieure, Zürich;
Planforum, Winterthur
2. Rang / 2. Preis: Dreisprung
Menzi Bürgler Architekten, Zürich;
Weberwaber Architekturrealisation, Luzern;
Andreas Geser Landschaftsarchitekten, Zürich;
HKP Bauingenieure, Baden;
Makiol Wiederkehr Ing. Holzbau, Beinwil am See;
Müller.Bucher Ingenieure, Zürich
3. Rang / 1. Ankauf: In Situ
Skop – Architektur & Städtebau, Zürich;
Spörri Graf Partner / APP, Bern;
Kolb Landschaftsarchitektur, Zürich;
Walt Galmarini, Zürich;
Gruenberg + Partner, Zürich
4. Rang / 3. Preis: Rosso
Fiechter & Salzmann Architekten, Zürich;
Caretta + Weidmann Baumanagement, Zürich;
Vogt Landschaftsarchitekten, Zürich;
WMM Ingenieure, Münchenstein;
Energie 4, Zürich
Fachjury
Adrian Streich, Adrian Streich, Architekt (Vorsitz); Sibylle Bucher, Architektin; Irfan Cantekin, Architekt, Mitglied der RPK Mettmenstetten; Rita Illien, Landschaftsarchitektin; Dominique Salathé, Architekt (Ersatz)
Sachjury
René Kälin, Gemeindepräsident; Beatrix Gallati, Präsidentin Schulpflege Primarschule; Hanspeter Amstein, Schulleitung Primarschule; Beat Bär, Gemeinderat Finanzen/Liegenschaften (Ersatz)