Über­ein­an­der und mit­ein­an­der ar­bei­ten

Für Komax, einen Zulieferer der Mobilitätsbranche, errichteten Graber & Steiger Architekten in der Nähe von Luzern ein neues Hauptgebäude. Es mutet an wie eine vertikal orientierte Maschine, die jederzeit bis auf ihr Grundgerüst entkleidet und neu ausgestattet werden kann.

Publikationsdatum
21-10-2021

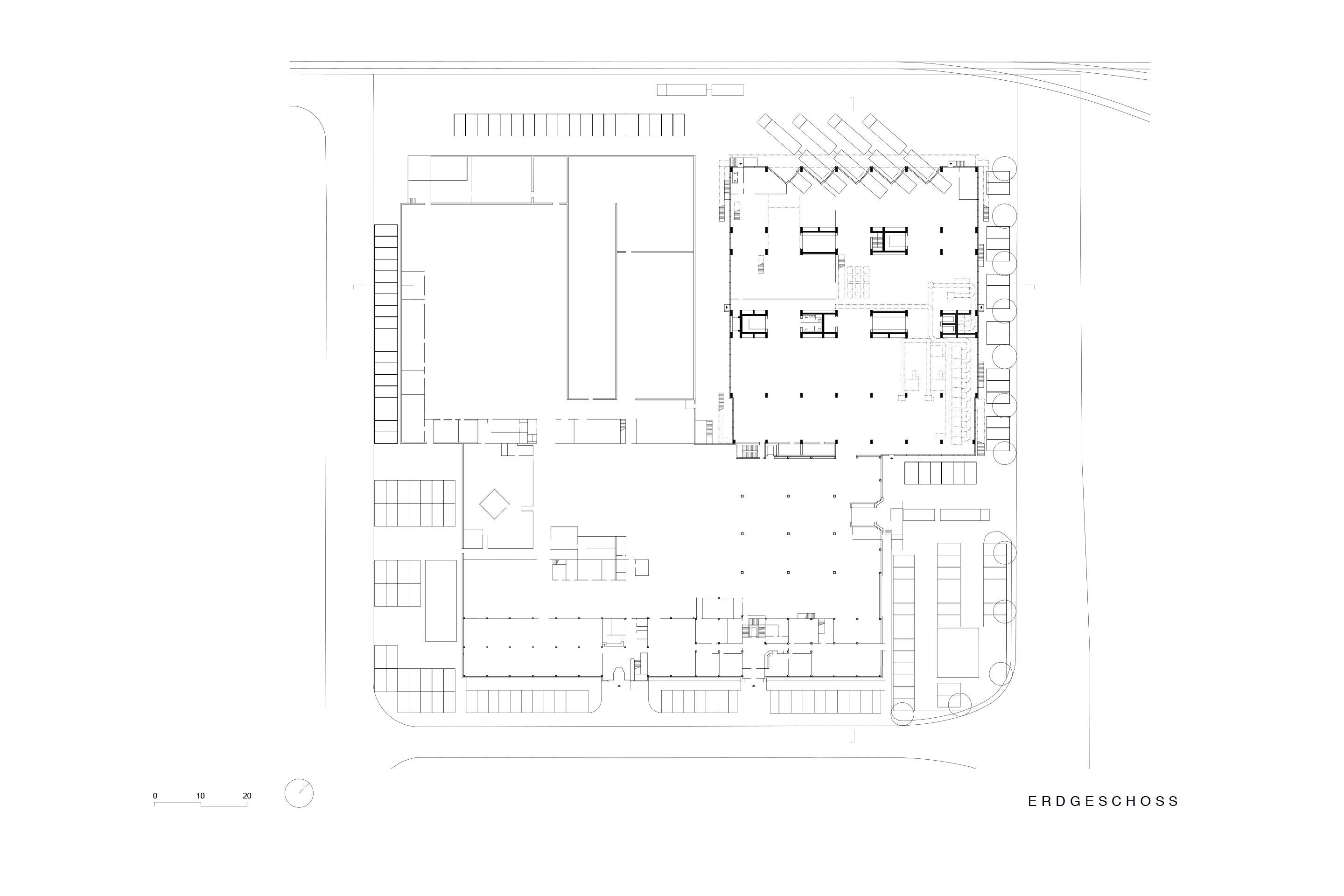
Der Unternehmenssitz liegt in einem industriell genutzten Tal, das hauptsächlich beim Durchreisen wahrgenommen wird: Autobahn, Kantonsstrasse und Zuglinie schlängeln sich der Reuss entlang. Der Blick gen Süden auf den Pi­latus entschädigt für die eher lieblose Bebauung der direkten Umgebung. Bewusst hat sich der weltweit ­agierende Konzern Komax für eine Stärkung seines Hauptstandorts in Dierikon entschieden.

In erster Linie für die Autoindustrie entstehen hier Maschinen, sogenannte Fliessstrassen, an denen Kabel gemessen, geschnitten, abisoliert, verbunden und je nach Automatisierungsgrad zu Teilkabelbäumen zusammengefasst werden. Forschung, Entwicklung, Produktion, Spedition und Verwaltung sind an diesem Ort gebündelt.

Um zwei bestehende Gebäude zu ergänzen, erwarb der Konzern ein benachbartes Gelände für den Neubau und eine schrittweise Rochade einzelner Be­reiche im Sinn einer langfristigen Firmenstrategie. Mit dem identitätsstiftenden Zentrum verliert die vorhandene Bebauung nicht an Wert, sondern bildet mit den gewonnenen Raumressourcen ein flexibles System.1

Bei der Erweiterung legte die Bauherrschaft Wert darauf, den sparsamen Umgang mit Bodenflächen auch in einem industriellen Gebiet ernst zu nehmen und ein kompaktes Gebäude zu erstellen. Gleichzeitig forderte sie eine Architektur, die es unterstützt, die neuen Räume für alle Tätigkeitsfelder in Verbindung mit dem Bestand nutzen zu können. Es ist vorgesehen, das Firmenareal künftig weiter zu verdichten.1

Damit eine räumliche Vernetzung möglich ist, sind alle Arbeitsplätze an jedem Ort im Haus installierbar und auch rückbaubar. Der Wunsch, die Mitarbeitenden aller Bereiche hierarchielos zu durchmischen, ihnen gemeinsame Aufenthaltsbereiche und spezifische Arbeitsumgebungen anzubieten, geht auf die Ideen der Industrie 4.0 zurück (vgl. TEC21 46/2016 «Bauen für die New Old Economy»).

Nach deren Maximen müssen die Gebäude eine hohe Flexibilität und Beständigkeit aufweisen. Innerhalb der Betriebe kommt die Arbeit zum Menschen und nicht mehr umgekehrt. Das ist in der Verwaltung nicht sehr kompliziert, beim Umgang mit grossen Produkten wie hier allerdings schon. Mit der vertikalen Arbeitsorganisation über sechs Etagen betritt die Firma und mit ihr die involvierten Planungsteams Neuland in der Schweiz.

Zwischen Beständigkeit und Veränderung

Bevor Graber & Steiger Architekten über eine bauliche Gestalt nachdenken konnten, galt es daher, die inhaltliche Organisation zu erfassen. Um durchgängig jede Art von Arbeitsplatz zu ermöglichen, entschieden sie sich für eine massive Grundstruktur aus Sichtbeton als Basis für den Ausbau. Das konstruktive Prinzip des Neubaus ist eine Stapelung von sechs Betontischen. Die Platten lagern an zwei Kernzonen und an den umlaufenden Stahl­betonstützen in den Fassaden auf. Um die Kernzonen dehnen sich die rundum verglasten Hallen von je 12 × 55 m stützenfrei aus.

Lesen Sie auch: «Hybrid hinter Gittern» – Neubau des Technologieunternehmens Komax mit komplementären Mitteln.

Die Plattformen sind so kräftig ausgebildet, dass sie allen denkbaren Nutzungen des Betriebs standhalten. Bei Bedarf lässt sich das Gebäude an der südwestlichen Seite um weitere Achsen ergänzen. Der Entwurf dazu liegt bereits vor: Die vorhandene Fassade kann zur Wiederverwendung demontiert und die Struktur um einen neuen Aussenhof herum spiegelgleich angesetzt werden. Wäre es nicht baurechtlich unterbunden, käme rein statisch auch eine Erweiterung in die Höhe in ­Betracht.

6.5 × 2.8 m grosse Warenlifte mit einer Tragkraft von 11 t, die den Transport der Fliessstrassen erlauben, verbinden die Etagen vertikal miteinander. Sie wurden extra für dieses Projekt entworfen und ermöglichen das Befahren mit schwer beladenen Gabelstaplern, die die horizontale Feinverteilung übernehmen. Für die Mitar­beitenden im täglichen Geschehen ebenso wichtig sind die einläufigen Treppen am zentralen Atrium, das vom 1. bis zum 5. OG durchgesteckt ist. Genau wie die auf allen Etagen angelagerten Aufenthaltsbereiche und ihre kleinen Küchen liegen sie im Tageslicht, das von oben einfällt. Diese offene Mitte ist technisch eine wichtige Komponente (vgl. «Hybrid hinter Gittern»), im Sinn der Unternehmenskultur aber auch der Bereich, an dem sich die Mitarbeitenden, ob gezielt oder zufällig, immer wieder begegnen.

Kommunikation am Objekt

Die Orte, an denen die bis zu 4000 kg schweren und 10 m langen Maschinen entstehen, sind als Inseln in den offenen Hallen zu erkennen. Hier arbeiten jeweils eine bis drei Personen gemeinsam an der Montage. Sie fügen die einzelnen Komponenten aus Stahl und Kunststoff zusammen und bestücken sie mit digitalen Modulen, beispielsweise mit Qualitätstools, die die Unversehrtheit der durch die Maschine zu verbindenden Kabel prüfen. Die fertig montierten Maschinen werden per Warenlift zum Prüfstand gebracht und anschlies­send zur Spedition im Erdgeschoss weiterbefördert. Diese Vorgänge sind nicht sehr geräuschintensiv. Die vorbereitende Metallverarbeitung der Komponenten mit CNC-Dreh- und Fräscentern geschieht im angrenzenden Altbau.

Der Schwerpunkt der Arbeit an einer Fliess­strasse verlagert sich zunehmend vom Maschinenbau zum Umgang mit Software. Entsprechend verändert sich auch die Forschung: Mehr als die Hälfte der rund 200 Mitarbeitenden dieser Abteilung haben einen IT-Hintergrund. Die räumliche Nähe von Entwicklern und Ausführenden erleichtert den direkten Austausch am Objekt: Die Forschenden können sich mit ihrem Laptop zu den Kollegen an einer Produktionsinsel stellen und gemeinsam arbeiten.

Im Alltag hat es sich etabliert, dass alle einen festen Arbeitsplatz als Basis behalten, an dem sie verankert sind. Die Flexibilität der Architektur kommt also bisher eher langfristigen strukturellen Überlegungen zugute, nach denen sich ganze Arbeitsfelder verändern, ausdehnen oder verlagern können. Entsprechende räumliche Dispositionen steuert die Produktionsleitung je nach Auftragslage.

Technische Ausrüstung als Identitätsträger

Gemäss dem Konzept, dass Tragstruktur, Technik und raumbildender Innenausbau drei unabhängige Schichten bilden, bleibt die technische Ausstattung additiv und austauschbar. Die unkomplizierte und kurzfristige Reaktionsmöglichkeit auf Neuerungen ist gewährleistet. Als eigener Layer steigen die Medienstränge neben den Liftanlagen vertikal auf. Von grossen, in die Beton­struktur eingelassenen Nischen sind die Kabeltrassen zugänglich und breiten sich – weiterhin «auf Putz» – horizontal entlang der Primärstruktur aus. Von den Decken können die Leitungen direkt zu den Arbeits­plätzen heruntergeführt werden.

Die inhaltliche Nähe der Firma zu Themen der Robotik und künstlichen Intelligenz bildet sich in einem zusätzlichen Transportnetz ab, das das Gebäude überzieht: In der neuen Lagerhalle im Untergeschoss be­finden sich kleinere Bauteile, die in der Entwicklung und Produktion zum Einsatz kommen. Sie gelangen auf einem Schienensystem, das unter der Decke verläuft, zu einem Hebelift, der sie zur Kommissionierung ins Erdgeschoss bringt. «Anonymous robotic carriers» (ARC) transportieren die Ware innert Sekunden sowohl vertikal als auch horizontal zu denjenigen Mitarbeitenden, die sie angefordert haben.

Das Sausen der 57 ARC, ihr Andocken an Sammelstationen, an denen sie sich wieder aufladen, und das beständige Blinken sorgen für eine futuristische Anmutung. Durch die beträchtlichen Raumhöhen – 4 m in der Obergeschossen und 5 m im Erdgeschoss – fallen die Bewegungen und Geräusche der Transportanlage nicht störend auf, sondern verschmelzen mit der allgemeinen Arbeitsatmosphäre.

Die Betonung der technischen Ausrüstung ist auch als Statement zu verstehen: Wandelbarkeit und Affinität zu Innovationen werden zur Schau gestellt und pflegen das Image. Die Inszenierung kommt zugleich mit einem Augenzwinkern daher: Offensichtlich haben sich die Architekten von der Ästhetik der Filmwelten eines Jacques Tati inspirieren lassen, durch deren überzeichnete futuristische Überautomatisierung der kauzige Monsieur Hulot verzweifelt stolpert.

Tageslicht von innen und aussen

Grundsätzlich profitieren alle Mitarbeitenden von der Übersichtlichkeit und dem ringsum einfallenden Tageslicht – ein aus ökologischen, aber auch gesundheitsfördernden Ansprüchen heraus wichtiges Ziel. Über die offene Mitte, von den Architekten «innere ­Lichtung» genannt, lassen sich die Flächen und Erholungsbereiche ebenenübergreifend erfassen, sodass eine visuelle Kommunikation ohne grosse Umstände möglich ist.

Zur Unterstützung der Aufenthaltsqualität am Atrium haben die Planenden hier besonderes Augenmerk auf eine akustisch beruhigte Atmosphäre gelegt: In Verlängerung der Küchen und Kabelschränke an den Aufzugkernen tilgen Schlitzlochplatten allfällige Geräusche. Eine weiteres Detail, das eine akustisch wirksame Aufdopplung an der Innenseite der Hand­läufe und Brüstungen vorsieht, kann bei Bedarf zusätzlich umgesetzt werden.

Die Architektur fördert den Ansatz eines hierar­chielosen Zusammenwirkens und der Transparenz. Die Arbeitgebenden versprechen sich davon nicht nur die Vereinfachung der spartenübergreifenden Produktentwicklung, sondern auch einen Stärkung des Zusammenhalts. Indem das Verständnis der Fachbereiche füreinander wächst, entsteht ein interdisziplinärer Austausch, der wiederum der Firma zugute kommt.

Die ausführliche Version dieses Artikels ist erschienen in TEC21 33/2021 «Die vertikale Fabrik».

Anmerkung
1 Dem Newsportal von Komax ist zu entnehmen, dass das Unternehmen im Herbst 2021 ein weiteres benachbartes Grundstück gekauft hat. Ein dort bestehendes Pro­duktions- und Verwaltungsgebäude wird saniert und ermöglicht es, die Schweizer Standorte in Dierikon zusammenzuführen.

Bauherrschaft: Komax, Dierikon

 

Architektur: Graber & Steiger, Luzern

 

Bauleitung: Büro für Bauökonomie, Luzern

 

Bauherrenvertretung: Basler & Hofmann, Zürich

 

Tragwerk: Dr. Schwartz Consulting, Zug

 

HLKS-Planung: Peter Berchtold, Sarnen

 

Elektroplanung: Scherler, Baar

 

Bauphysik und Akustik: RSP, Luzern

 

Fassadenplanung: Metallprojekt, Kerns

 

Robotik: Servus, Dornbirn (A)

 

Büroplanung: Raumunddesign, Wolhusen

 

Brandschutz: SafeT Swiss, Zürich

 

Signaletik (Sichtschutz, Beschriftung): Simaprint, Ebikon   

 

Liftanlagen: AS Aufzüge, Ebikon

 


Daten

 

Geschossfläche GF SIA416: 21 470 m²

 

Gebäudevolumen SIA 416: 103 660 m³

 

Baukosten: 75 Mio. Fr.

 

Auftragsart: einstufiger Studienauftrag im Einladungsverfahren (Projektstudie mit Folgeauftrag nach SIA 143 Art. 3)

 

Bauzeiten: Wettbewerb 2015, Planungsbeginn 2016, Ausführung 2017–2020, Bezug 2020

Magazine

Verwandte Beiträge