Ein de­fi­ni­ti­ves Pro­vi­so­ri­um

Erweiterung Kantonsschule Uster

Die Erweiterung der Kantonsschule Uster um mehrere Container-Module musste den hohen Anforderungen an einen Neubau genügen und sollte den Anspruch erfüllen, ressourcenschonend zu bauen.

Publikationsdatum
05-12-2024

Wenn diese Fassade sprechen könnte, hätte sie viele Geschichten zu erzählen. Von einer Zürcher Wohnbausiedlung, vom Siemens-Logistikzen­trum in Wallisellen, vom Mockup des Freilager Zürich, von Basel, Winterthur und Rotkreuz. Hier in Uster kommen die Geschichten als Hülle für die Container-Klassenzimmer zusammen und leben als neue Fassade weiter.

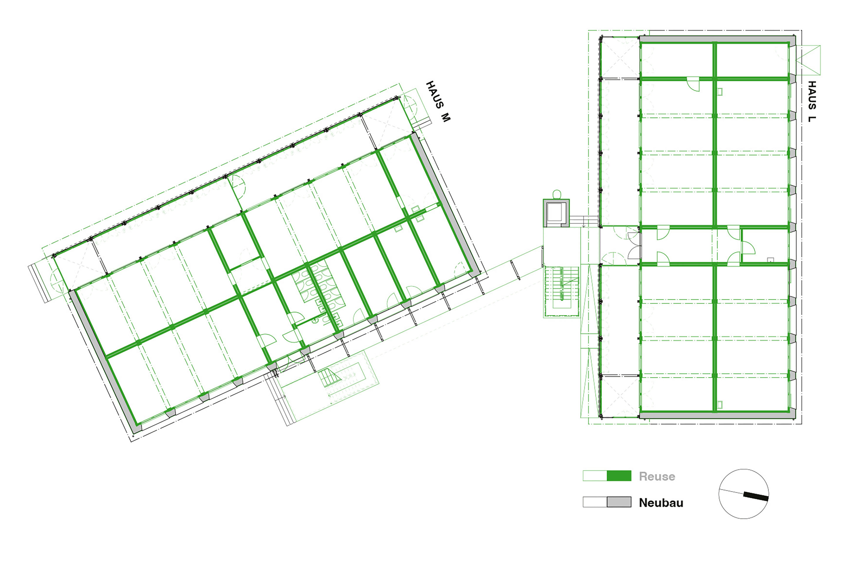
Doch der Reihe nach: Der heutige Neubau ist das Resultat eines Pilotprojekts, mit dem das Hochbauamt des Kantons Zürich das baubüro in situ beauftragte. Die zwei doppelgeschossigen Gebäude ergänzen den bestehenden Parkschulcampus um weitere 13 Klassenzimmer, ein Lehrerzimmer und Aufenthaltsräume. 

Der Unterschied zum klassischen Schulhaus-Provisorium besteht darin, dass die Nutzungsdauer bereits im Voraus auf mindestens zehn Jahre festgelegt wurde. Das hat zur Folge, dass das Bauwerk höheren Anforderungen an Barrierefreiheit und Energievorschriften unterliegt. Die beiden schräg zueinander stehenden Baukörper sind daher über einen Laubengang an einen Lift angeschlossen. Die gebrauchten Container wurden von der Kantonsschule Im Lee in Winterthur nach Uster gebracht, um einen Anbau aus Holz ergänzt und bekamen eine gedämmte Fassade nach der bewährten Methode von in situ: re-used.

Wallisellenrot und Rotkreuzblau

Container mit Trapezblech zu verkleiden, klingt widersprüchlich. Doch die Erfahrung aus dem zirkulären Bauen zeigte: Gebrauchte Profilbleche gibt es in grossen Mengen, in unterschiedlichen Farben und Formaten. Auch dem Wunsch der Schulleitung nach einer bunten Fassade konnte dadurch entsprochen werden. Aus zwei Farben, benannt nach den vorherigen Einsatzorten, Wallisellenrot und Rotkreuzblau, und einem Beigeton entstand ein Spiel aus vertikalen Streifen. 

Lesen Sie auch:
Umnutzung Gewerbe- und Bürohaus Buck 40, Zürich
Die Aufgabe, Gewerbe­bauten der 1960er-Jahre zu transformieren, ist nicht neu, aber von neuer Dringlichkeit. Die ARGE Oxid Architektur und Scheitlin Syfrig Architekten überrascht mit ihrem Ansatz zum Umbau.

Grundlage dafür waren die «Warming Stripes» der Region Zürich, die die langfristigen Temperaturverläufe der Klimaerwärmung sichtbar machen. Damit macht das baubüro auf den Klimawandel aufmerksam und zeigt mit seinem Projekt gleichzeitig, wie ein Beitrag zur Reduktion der Klimaerwärmung geleistet werden kann. Nach Aussage von in situ können in diesem Projekt durch die Umsetzung mit Re-Use-Bauteilen voraussichtlich 488 t CO2 eingespart werden, verglichen mit einem gleichartigen Neubauvolumen. 

Doch nicht alle Bauteile sind re-used. Zu den neuen Elementen gehören unter anderem die Unterkonstruktion zur Hinterlüftung der Trapezbleche, die Weichfaserplatten dahinter sowie die Fenstereinfassungen.

Die Klimazone

Beide Baukörper sind jeweils nur an drei Seiten gedämmt und mit Trapezblech verkleidet. Der freien Längsseite ist ein zweigeschossiger, 3 m breiter Wintergarten in Holzbauweise vorangestellt. Den Schülern und Lehrpersonen dient er als Aufenthaltsbereich und dem Bauwerk als unbeheizte Pufferzone beziehungsweise «Klima­zone». Entlüftet wird sie über Kippfenster am oberen Rand des Pultdaches. 

Die Gliederung der Holzfassade passt sich dem 3-m-Raster der dahinterliegenden Container an. Der Grossteil der Fassade besteht aus bodentiefen Fenstern. Einige von ihnen hatten bereits ein erstes Leben in einer Zürcher Wohnbausiedlung, andere waren eine unverbaute Fehlbestellung eines anderen Projekts. 

Im Obergeschoss dienen gebrauchte Staketengeländer als Absturzsicherung. Eine kleine Dekadenz gönnt sich der Anbau mit einem Luftraum über der Sitzgruppe im Erdgeschoss. Hier befindet sich auch das wohl am weitesten gereiste Bauteil des Projekts: Ein Glasmosaik der Zürcher Künstlerin Leila Peacock aus Bruchstücken von Fenstern der Kathedrale in Chartres.

Wagnis rollende Planung

Das baubüro in situ hat kein Lager mit gebrauchten Bauteilen. Zusammen mit dem Fachplanungsbüro Zirkular geht es auf die Suche nach passenden Elementen, wenn sie gebraucht werden. Das bedeutet, dass Rückbau und Neubau zeitlich zusammenpassen müssen. Wie genehmigt man also eine neue Fassade, deren Aussehen man zum Zeitpunkt der Baueingabe noch nicht genau kennt? 

Für das Hochbauamt des Kantons Zürich war diese Art der Zusammenarbeit eine ungewohnte Erfahrung, die von allen Beteiligten grosse Flexibilität und Entscheidungsfreudigkeit erforderte. Für die Verkleidung der Container präsentierte in situ der Stadtbildkommission eine Auswahl der gängigsten Farben von Trapezblechen, die das Büro mit hoher Wahrscheinlichkeit durch den Rückbau von Industriehallen in nächster Zeit erhalten würde.

Für die Fassade der Klimazone stellten die Architekten verschiedene Varianten dar. Die gesamte Fassade wurde somit auf konzeptioneller Ebene bewilligt. Keine der Varianten entsprach exakt der heutigen Fassade. Die Gestaltung war nicht so präzise planbar wie es heute mit 3-D-Modellen und fotorealistischen Renderings üblich ist. Eine erfrischende Abwechslung! Auch das Hochbauamt ist mit dem Ergebnis sehr zufrieden, doch ob es nach dem Pilotprojekt eine Fortsetzung gibt, ist noch ungewiss.

Weitere Artikel zu Fassaden finden Sie in unserem digitalen Dossier.

Kantonsschule ­Uster

 

Bauherrschaft 
Hochbauamt Kanton Zürich

 

Architektur
baubüro in situ, Zürich

 

Tragkonstruktion
JägerPartner, Zürich / Lauber Ingenieure, Luzern

 

Fassadenbau
Baltensperger, Winterthur 

 

HLKS-Planung
Gerber + Partner, Volketswil

 

Bauphysik
Raumanzug, Zürich

 

PV-Planung
RR+B ­engineering, Brugg

Facts & Figures


Fertigstellung : 2024
Baukosten: CHF 7. 15 Mio.
Grundfläche (SIA 416) : 1'911.9 m2
Volumen  (SIA 416): 6'852.6 m3

Magazine

Verwandte Beiträge