Hier spielt die Mu­sik

Neubau Hochschule Luzern

Enzmann Fischer Architekten und Büro Konstrukt gewinnen den Wettbewerb für den Neubau der Hochschule Luzern – Musik mit einem Projekt, das durch seine sanften Töne überzeugt.

Publikationsdatum
23-05-2014

Die Hochschule Luzern mit den Departementen Technik & Architektur, Soziale Arbeit, Wirtschaft, Design & Kunst sowie Musik ist derzeit auf gut 30 Standorte verteilt. Vier davon entfallen auf das Departement Musik. Künftig wird der Fachbereich am Standort Südpol in Kriens unter einem Dach vereint. Auf etwa 9000 m2 sollen ab 2019 rund 500 Studierende unterrichtet werden.

Was lange währt, wird endlich gut?

Seit 2007 wurde nach einer Lösung gesucht. Nachdem die Nutzung der Räumlichkeiten im ehemaligen Hotel Union in Luzern und die Vision eines Musikcampus Luzern in direkter Nachbarschaft zur Salle Modulable nicht realisiert werden konnten, gab der Konkordatsrat 2012 grünes Licht für einen Neubau im Entwicklungsgebiet Luzern Süd.

Die Pensionskasse Luzern als Investorin und die Hochschule Luzern als Nutzerin führten 2013 ein selektives Verfahren mit vorgängig offen ausgeschriebener Präqualifikation und einem anschliessenden anonymen Projektwettbewerb für Generalplanerteams durch. Der Wettbewerb geriet im Vorfeld in die Kritik: Der SIA bemängelte die «unsachgemässen sowie unfairen Teilnahmebedingungen». Beanstandet wurden insbesondere die im Wettbewerbsprogramm einseitig festgelegten Honorarkonditionen (vgl. TEC21 26/2013).

Mosaikstein für Luzern Süd

An den Neubau wurden diverse Ansprüche gestellt: Der Bau sollte keine Schule sein, sondern ein Ort der Begegnung im Sinn einer öffentlichen Nutzung mit jährlich über 350 externen Veranstaltungen. Eine der Herausforderungen war, die komplexen Raumstrukturen bestmöglich anzuordnen. Gefordert waren Räume, die teilweise öffentlich zugänglich sind und doch einen ungestörten Schulbetrieb gewährleisten sowie den hohen Anforderungen an die Akustik gerecht werden. Ausserdem galt es, den städtebaulichen Kontext im Quartier mit zu berücksichtigen – mit der beinahe städtischen Situation bei der Arsenalstrasse auf der einen und der Allmend auf der anderen Seite –, wobei beide Seiten gleichermassen angesprochen werden sollen. Das neue Gebäude soll aber auch ein Mosaikstein für einen weiteren Schwerpunkt im Kultur- und Stadtleben Luzerns werden, und Luzern, Kriens und Horw sollen näher zusammenrücken.

43 Teams reichten in der ersten Phase eine Bewerbung ein. Acht wurden zum anonymen Projektwettbewerb eingeladen, wovon sieben ein Projekt einreichten. Zwei davon – das Projekt «Billie, Johann, Morton & Erika» von Gigon/Guyer und «echea» von Enzmann Fischer Architekten und Büro Konstrukt – lud die Jury in die Bereinigungsrunde ein.

Eine Klangschale für Kriens

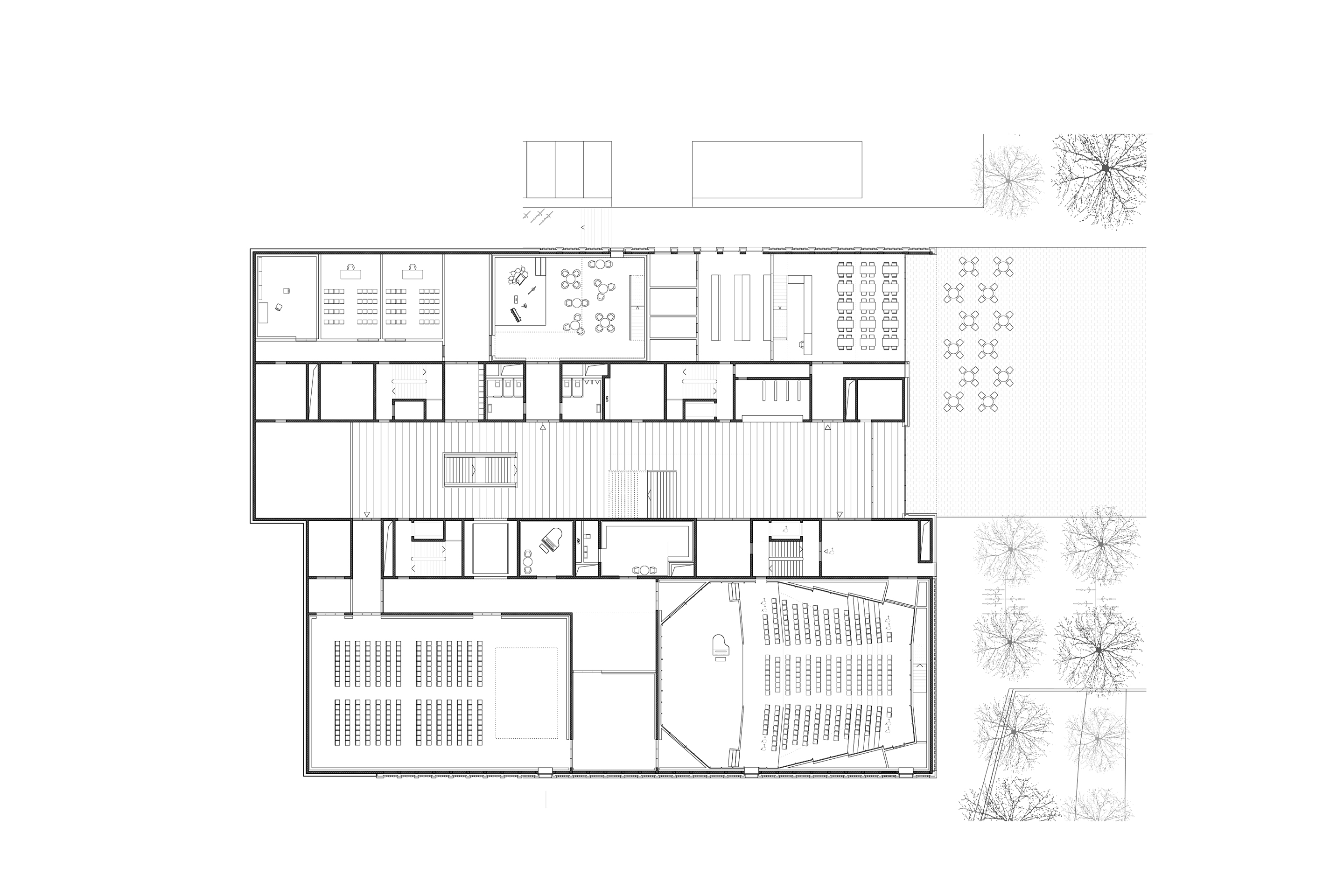
Nach der Überarbeitung entschied sich die Jury einstimmig für das Projekt von Enzmann Fischer Architekten und Büro Konstrukt und lobte die «enorme Feinfühligkeit der Verfasser» für die gestellten Aufgabe. Die Stärken von «echea» (griechisch für Klangschale) liegen unter anderem in der gut überlegte Raumstruktur des Gebäudes und in der subtilen Einbettung in die Umgebung. Die erschwerten Bedingungen durch den begrenzen Bauperimeter sind durch die volumetrische Setzung gut gelöst.

Kernstück des Entwurfs ist eine mittlere, vertikal offene Erschliessungszone mit vier Schächten, die sowohl als Klangtürme als auch als Lichthöfe fungieren. Sie wird beidseitig flankiert von zwei Schichten mit Nebenräumen. Aus dem offenen Mittelfoyer gelangt man über grosse Treppen zu den eigentlichen Nutzungsräumen in den Seitenschiffen.

Die öffentlich genutzten Räume mit den drei Sälen – Kammermusiksaal, Jazzclub und eine vielfältig nutzbare «Black-Box» –  sowie die Gastronomie befinden sich im Erdgeschoss. Für die Akustik wurde eine Haus-im-Haus-Konstruktion mit massiven Aufbauten und Wand- und Bodenkonstruktionen gewählt. Der Schallschutz funktioniert so abgekoppelt von der Tragstruktur. Das Gebäude verfügt über keine Kühlanlage. Die Projektverfasser sehen die Öffnung der Klangtürme zur Nachtauskühlung des Gebäudes vor, was auf Wunsch der Jury noch mit einer thermischen Simulation belegt werden soll.

Beim zweitplatzierten Projekt von Gigon/Guyer konnte unter anderem die überarbeitete Fassadengestaltung nicht überzeugen. Die Umsetzung wurde hinsichtlich des daraus folgenden Unterhalts angezweifelt. Während die Fassade des Projekts von Gigon/Guyer auffällig und – um bei den musikalischen Metaphern zu bleiben – fortissimo wirkt, fügt sich «echea» allegro, ma non troppo in seine Umgebung ein.

Auszeichnungen:

1. Rang: «echea»,
ARGE Enzmann Fischer und Büro Konstrukt, Zürich/Luzern; applied acoustics, Gelterkinden

 

2. Rang: «Billie, Johann, Morton & Erika»,
Gigon/Guyer Architekten, Zürich; BAKUS Bauphysik und Akustik, Zürich

 

3. Rang: «Cuore d’Oro»,
Buol & Zünd Architekten, Basel; applied acoustics, Gelterkinden

 

4. Rang: «Casa della Musica»,
Lussi + Halter Partner, Luzern; Braune Roth, St. Gallen; Caretta + Weidmann Baumanagement, Zürich

 

5. Rang: «Silence»,
Caruso St John Architects, Zürich; BAKUS Bauphysik und Akustik, Zürich

 

Weitere Teilnehmer:
«Babuschka», EM2N Architekten, Zürich; applied acoustics, Gelterkinden
«Pilatus», Mateo Arquitectura, Zürich-Barcelona; Arau Acustica, Barcelona

 

Jury
Marie-Theres Caratsch, dipl. Arch. ETH/SIA, Hochschule Luzern – Technik & Architektur (Vorsitz); Urs Mahlstein, dipl. Arch. ETH/SIA, Leiter Dienststelle Immobilien Kanton Luzern; David Leuthold, dipl. Arch. HTL/BSA/SIA, Pool Architekten, Zürich; Andrea Roost, dipl. Arch. BSA/SIA/SWB, Bern; Beat Waeber, Architekt BSA, Waeber/Dickenmann GmbH Architekten, Lachen

Verwandte Beiträge