Das Wun­der von Biel

Restauration Farelhaus, Biel

Am Farelhaus, einem ehemaligen Kirchgemeindezentrum von Max Schlup aus den 1950er-Jahren, zeigt sich, wie mit wertvollen Bauten der Nachkriegszeit angemessen umgegangen werden kann. Privaten Bauträgern ist eine mustergültige Restaurierung gelungen.

Publikationsdatum
16-03-2017
Revision
16-03-2017

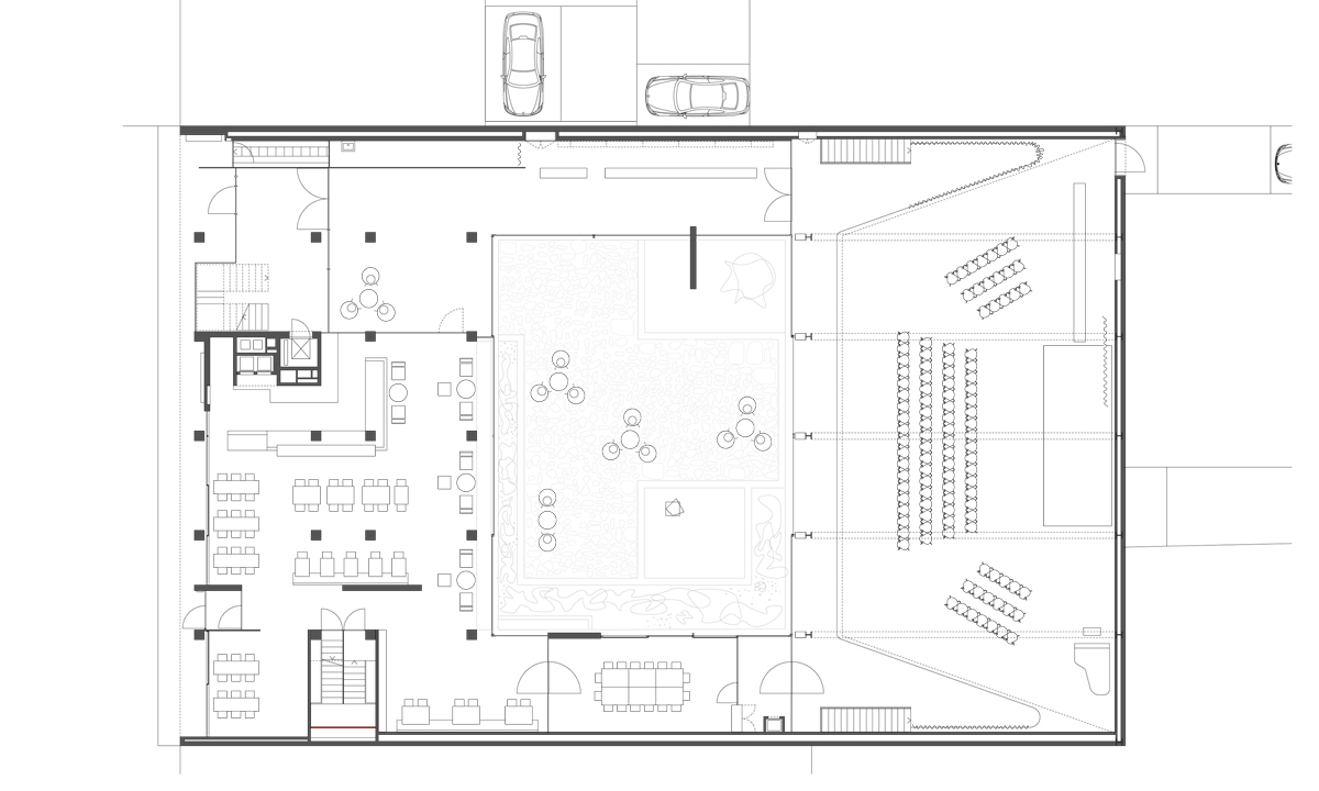
Der Architekt Max Schlup (1917–2013) ist eine Ikone. Seine Bieler Bauten verkörpern die Zeit des Aufbruchs der «Zukunftsstadt» – genannt sei das schweizweit als Wahrzeichen bekannte Kongresshaus von 1961–1966, das mit seinem Zeltdach und dem Hochhaus die Stadt prägt. Von Max Schlup liess sich die evangelisch-­reformierte Gesamtkirchgemeinde Biel 1957–1959 ein neues Kirchgemeindehaus bauen.1 Mit seiner damals aufsehenerregenden Vorhangfassade fügt es sich volumetrisch in die Häuserzeile an der Schüss-Promenade ein; es zeichnet sich aus durch das Erdgeschoss von beeindruckender Transparenz, das den Strassenraum mit einem Innenhof verbindet.

Bereits der Eingangs­bereich gibt Einblick in den Hof. Er ist mit Aufenthaltszonen, einem Wasserbecken und abwechslungsreicher Bepflanzung das sorgsam gegliederte Zentrum der Anlage, umgeben von öffentlichen Räumen, Café, Sitzungsraum und dem gros­sen Saal mit seiner geneigten Decke. Die offenen räumlichen Sequenzen, die rahmenlos wirkenden, mit kräftigem hochliegendem Kämpfer gegliederten Fensterfronten, die frei eingestellten Raumgliederungen und die einfachen Materialien zeichnen diesen Raumkomplex aus.

Die Obergeschosse nahmen in der Vergangenheit verschiedene Funktionen auf: Beratungs- und Sitzungsräume, ein Mädchenheim auf zwei Geschossen sowie Einzelzimmer und Wohnungen unterschied­lichen Zuschnitts. Die Konstruktion als Betonskelettbau ermöglichte es, jedes Geschoss mit einer eigenen Raumstruktur zu nutzen.

Glückliche Fügung

Da die Gemeinde den Bau nur in Teilen noch selber nutzte, entschloss sie sich 2016, ihn zu verkaufen. Eine Gruppe von Bieler Architekten erwarb die Liegenschaft, wirkte auf konzeptioneller Ebene und beauftragten mit Ivo Thalmann einen von ihnen mit Planung und Umsetzung der Restaurierung. Sie analysierten den Bau sorgfältig und stellten fest, dass die meisten Bauelemente in einem Zustand waren, der eine Reparatur und eine Weiternutzung auf lange Zeit erlaubte. Voraussetzung dafür war die Überzeugung, heutige Normen und Standards zu hinterfragen, die bereits verbaute graue Energie voll in die Rechnung einzubeziehen und kleinere Einschränkungen gegenüber gängigen Komfortvorstellungen zu akzeptieren. Zudem bestätigte sich die Erfahrung, dass sinnvollere Resultate erwartet werden können, wenn die finanziellen Mittel beschränkt sind.

Reparatur und Ersatz

Tatsächlich war es bei der Durchführung der Massnahmen möglich, viele bauzeitliche Bauelemente zu bewahren und sie mit einer Instandsetzung für die nächsten Jahrzehnte zu sichern. So erhielt man die Fassaden zur Promenade und zum Hof. Die schwarz verfärbten Profile aus eloxiertem Aluminium wurden gewaschen und gebürstet und haben ihren leuchtenden hellgrauen Farbton wiedergewonnen.

Zur Strasse isolierte man die Brüstungen nach, strich die Aussenplatten und stellte die Winddichtigkeit sicher. Die Drehflügel der Fenster mit den originalen Beschlägen wurden erhalten, gerichtet und mit neuen Gummidichtungen versehen.2 Die Fassaden zum Hof behandelte man analog. Im Erdgeschoss waren die unteren Partien der Metallrahmen der grossflächigen Verglasungen stark korrodiert; sie mussten nachgebaut werden. Dafür suchten die Beteiligten in der ganzen Schweiz Restbestände der nicht mehr lieferbaren Forster-Profile zusammen. Die Einfachverglasung ersetzte man durch Isoliergläser.

Im Innern sind im Café die origi­nalen Oberflächen weitgehend er­halten. Die neue Inneneinrichtung lehnt sich in Form und Material an die längst verschwundene Ausstattung des bauzeitlichen Bestands an. Der Saal wurde kaum verändert, neue mobile Elemente dienen der vorgesehenen Nutzung als Kulturlokal. Die Obergeschosse werden nun ­sukzessive instand gesetzt. Viele Oberflächen wurden bereits in den originalen Zustand rückgeführt, Sichtbacksteinflächen von Kunststoffverputzen befreit und teilweise nachgebaut, überstrichene Furnierholzflächen abgelaugt. Die Bodenbeläge bleiben, Schäden werden in den vorgefundenen Materialien repariert. Die künftige Nutzung orientiert sich am Bestand: Wohnungen und Sitzungsräume bleiben erhalten, die Räume des Mädchenheims sollen als Büros vermietet werden. So bleibt es bei der gewissermassen hybriden Nutzung der Räume.

So, aber nicht so

Die Restaurierung zeugt von einem hohen Verantwortungsbewusstsein gegenüber dem Baudenkmal und von einer ungewöhnlichen Be­reit­schaft zu unkonventionellen Entscheidungen. Sie zeigt exemplarisch, dass vernünftige, in gesamtheit­licher Betrachtung ökologische Verhaltensweisen möglich sind, die den historischen Bau in seiner Substanz und Erscheinung weit­gehend respektieren und damit seinen Denkmalwert bewahren. Damit setzt sich diese Restaurierung deutlich ab von tief greifenden Erneuerungen, die die originale Substanz ersetzen, sich dabei auf die Wiederherstellung eines ungefähren Bilds beschränken und damit das Baudenkmal in seinem historischen Zeugniswert zerstören.

Ein solche baukulturell bedenkliche und wirtschaftlich wie ökologisch unsinnige Verhaltensweise hat der Kanton Bern zu verantworten, der das Baudenkmal Gymnasium Strandboden in Biel, ein Meisterwerk ebenfalls von Max Schlup, zunichte gemacht hat3 (vgl. «Kontroverse um Erneuerung»).

Anmerkungen
1 Bernhard Furrer: Aufbruch in die fünfziger Jahre. Die Architektur der Kriegs- und Nachkriegszeit im Kanton Bern 1939–1960. Stämpfli Verlag, Bern 1995 / Architekturforum Biel (Hg.): Max Schlup, Architekt. Niggli Verlag, Sulgen 2013.
2 Die sechzigjährigen «verschweissten» Isoliergläser waren weitgehend intakt, sie haben noch eine Lebenserwartung von mehreren Jahrzehnten. In der Gesamt­energiebilanz war es sinnvoll, sie zu behalten und auf moderne Isoliergläser zu verzichten.
3 Bernhard Furrer: Das Bild ist nicht das Denkmal. Zur Zerstörung des Baudenkmals Gymnasium Strandboden in Biel. In: Denkmal – Bau – Kultur. Konservatoren und Architekten im Dialog. ICOMOS, Hefte des Deutschen Nationalkomitees, Band LXIII. Berlin

Am Bau Beteiligte
 

Bauherrschaft, Baugruppe / Ausschuss
Ivo Thalmann, 08/15 Architekten, Biel (Federführung);
Stephan Buchhofer, Bart & Buchofer Architekten, Biel;
Reto Mosimann, Spaceshop Architekten, Biel;
Oliver Schmid, 08/15 Architekten, Biel;
Simon Schudel, sim Architekten, Biel
 

Restaurator
Hans-Jörg Gerber, Nidau

Magazine

Verwandte Beiträge