Al­te Bil­der über­den­ken, Raum für neue Mög­lich­kei­ten er­öff­nen

Studienauftrag Erweiterung Klinik Sonnenhof, Ganterschwil

Der wachsende Bedarf an kinder- und jugendpsychiatrischen Behandlungsplätzen macht vielerorts räumliche Erweiterungen nötig. So auch in der Klinik Sonnenhof in Ganterschwil. Das Gewinnerprojekt nimmt Bezug auf die dörflichen Volumen der Nachbarhäuser und relativiert Raumprogramm und gängigen Kliniktypus.

Publikationsdatum
27-08-2020

Die Kinder- und Jugendpsychiatrische Klinik Sonnenhof soll von 42 auf 54 Betten und um ein Schulhaus erweitert werden. Sie umfasst verschiedene Bestandsbauten, darunter das Haus Pan und ein bestehendes Schulhaus. Für die Erweiterung steht auf der gegenüberliegenden Strassenseite die Parzelle 39 G zur Verfügung. Der Studienauftrag im einstufigen selektiven Verfahren sollte aufzeigen, wie ein Erweiterungskonzept des Klinikareals aussehen kann.

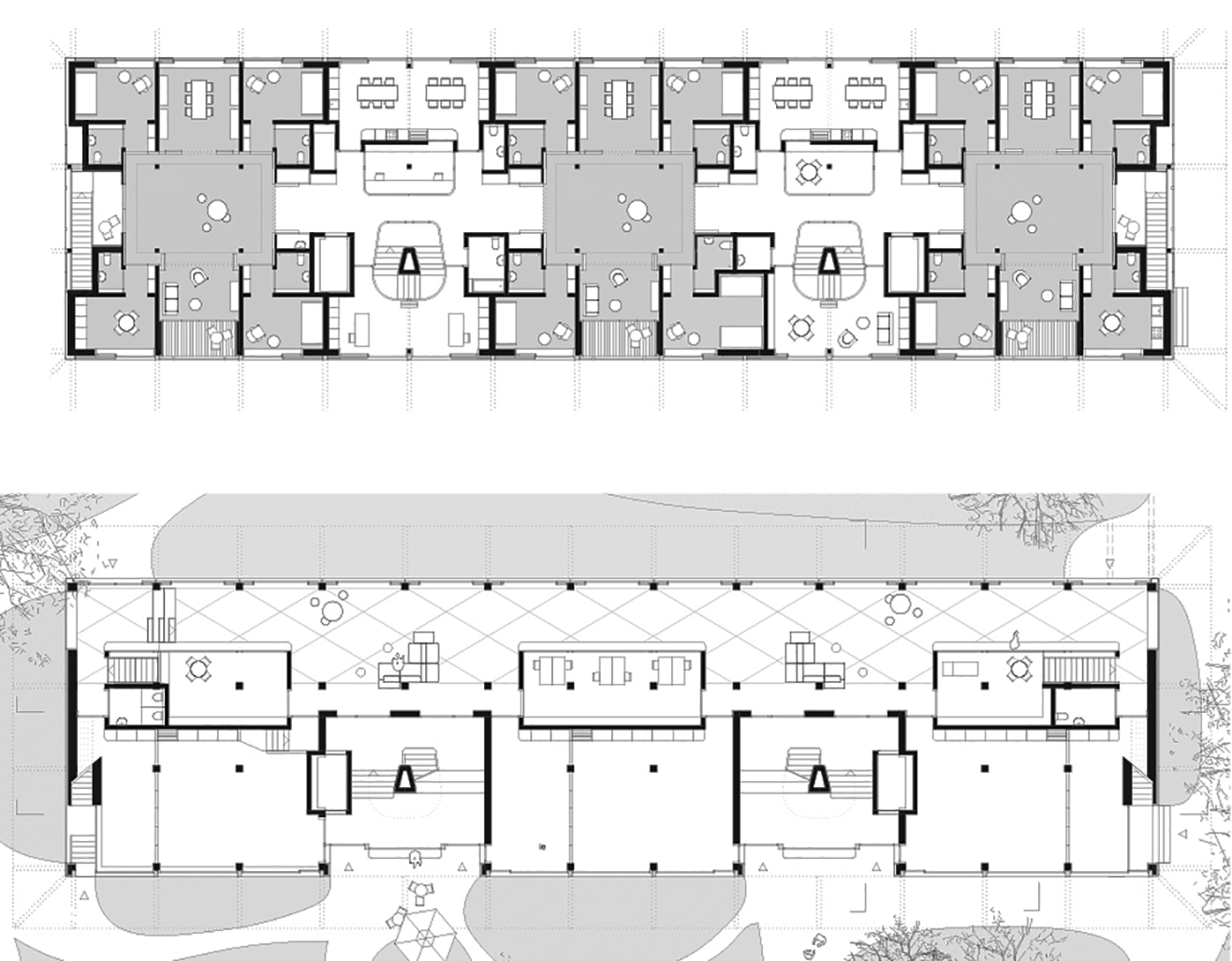
Beim Projekt Nr. 1 von Architektur Studio Roth, das von der Jury zur Weiterbearbeitung empfohlen wurde, ruht der Klinikbau auf dem Fundament bzw. dem Untergeschoss des alten Schulhauses und des Hauses Pan. Indem ihre Basen erhalten blieben, konnte der Neubau trotz Bestandsschutz auf dieser Strassenseite konzipiert werden. Die Einreichung erspart somit gegenüber den anderen Projektvorschlägen, bei denen der Klinikbau auf dem Neubauperimeter platziert wurde, Kosten für Aushub, Kellergeschoss und Fundament.

Auf dem neuen Grundstück steht bei Studio Roth nur das kleinere Schulhaus, wodurch zukünftige Bauland­reserven offen bleiben. Durch seine angepasste Kubatur verbindet der Bau den Klinikcampus mit den Wohnhäusern im angrenzenden Quartier. Wichtig waren der Architektin Bea-­Maria Roth, dieser dörflichen Anknüpfung nicht nur durch die Volumen, sondern auch architektonisch Ausdruck zu verleihen. Die beiden Bauten nehmen ländliche Elemente bei den Holzfassaden mit Schiebeläden und Holzveranden auf.

Fussabdruck schafft Reserve

Die Entscheidung, das Fundament der zwei Bestandsbauten für den Neubau zu nutzen, begrenzte jedoch das Volumen des Klinikneubaus. Diese Reduktion verlangte eine intensive Auseinandersetzung mit der Ökonomie der Räumlichkeiten und dem Raumprogramm.

Die überraschende Lösung besteht aus einem unkonventionellen Grundrisstypus und einem stark überarbeiteten Programm. Der gewählte Typus ist kein Zweibünder, wie man ihn von Altersheimen, Schulen oder Spitälern kennt, sondern erinnert an einen Wohnungsgrundriss. Die zur Verfügung stehende Gesamtfläche sollte nur minimal für die Erschliessungen verwendet werden. Auf zwei Wohn­etagen sind je drei Gruppen platziert, die aus vier Einzelzimmer um einen Wohnraum bestehen. Letzterer dient als Erschliessung in der Wohneinheit.

Darüber hinaus erforderte aber die Unterbringung des Raumprogramms eine weitere Komprimierung. Einzelne Nutzungen, wie Küche, Therapie- und Besprechungsraum, die im Programm pro Gruppe mit je 18 m2 aufgeführt waren, wurden zusammengelegt. Möglich war dies, weil diese Nutzungen selten alle gleichzeitig belegt werden – ­Flexibilität schafft zudem eine Schiebewand. Das geraffte Raumprogramm führte zum kleinsten Gesamtvolumen aller eingereichten Projekt mit 17 583 m3. Die Raumaufteilung schuf darüber hinaus Reserve für eine grosszügige Lobby im Erdgeschoss, die in dieser Grösse gar nicht gefordert war.

Ein paar Fragen mehr

Die Jury ist sich einig, dass der sparsame Umgang mit dem Raum eine wichtige Qualität des Gewinners ist. Zudem zeichnet sich weiterführend aus:  Wenn Architektur nicht nur das Verhalten im Alltag beeinflusst, sondern auch auf die Entwicklung und Entfaltung von Menschen einwirkt,  dann ist die Gestaltung einer psychiatrischen Klinik von umso grös­serer Bedeutung.

Dementsprechend sind im Wettbewerbsprogramm als Beurteilungskriterien architektonischer Ausdruck, Qualität der Innen- und Aussenräume sowie kinder- und jugendpsychiatrische Atmosphäre aufgeführt. Doch was versteht man darunter? Überschaubare Korridore ohne Abzweigungen und Restflächen, eine klare Wegführung, pas­tellfarbene Wände mit abgerundeten Kanten, Türen mit Fenstern und behagliche funktionale Einzelzimmer mit Oberflächen, die einfach im Unterhalt sind? Die Räume und ihre Anordnung beim Projekt Nr. 1 wurden über solche Klischees hinaus ausformuliert. Fragen über die räumliche Wirkung auf psychisch Kranke spielten dabei eine wegweisende Rolle. Was heisst es, aus dem Zimmer zu treten und einen Gang zu durchschreiten bis zum Gemeinschaftsraum, den man mit acht oder zwölf anderen Personen teilt? Was ist anders, wenn ein Wohnraum direkt ans Zimmer grenzt und man ihn mit vier Leuten teilt? Die Projektverfasserin entschied sich für die letztere der beiden Varianten. Die Anordnung der Gruppen in einer Art Wohnung mit Wohnraum und Veranden sind in der vorgeschlagenen Form für den Klinikbau atypisch.

Auch der lobbyartige Empfang im Erdgeschoss gibt den Ankommenden Platz, Blick ins Grüne und Grosszügigkeit und zeugt von Respekt gegenüber den Patienten und ihren Angehörigen. Dabei wird das Eintreten nicht auf seinen pragmatisch administrativen Zweck reduziert, sondern kann auch für einen zwanglosen Aufenthalt genutzt werden – zu hoffen ist, dass der Raum nicht mit dem Attributen einer Privatklinik ausgestattet wird. Ein wenig schade ist, dass die Renderings des Wettbewerbsbeitrags diese ­Ideen etwas zaghaft transportieren, sie hätten auch mit mehr Aussagekraft formuliert werden können.

Eines für alles

Das zweitrangierte Projekt stammt aus den Federn der ARGE Thomas De Geeter Architektur und Architekturbüro Bosshard und Partner, Zürich. Der städtebauliche Ansatz besteht darin, die südlichen Bestandsbauten – Schulhaus Kinder und Haus Pan – zu erhalten, diese mit den Kreativtherapieräumen neu zu belegen und das restliche Programm in einem einzigen, dreigeschossigen Neubau auf der nörd­lichen Parzelle zu organisieren. Er ist in drei längs gerichtete und zueinander verschobene Baukörper gegliedert, die je mit einem steilen Satteldach versehen sind. Durch diese Anordnung schaffen es die Verfasser, das grosse Neu­bau­volu­men mit der Umgebung zu verzahnen. Seine Gliederung mit den drei zueinander verschobenen Baukörpern ist ein interessanter Ansatz, der ­allerdings nicht darüber hinwegtäuscht, dass der städtebauliche Massstabssprung zu den nördlichen Nachbarn doch beachtlich ausfällt und zu Konflikten bei der Eingliederung führt. Hier stellt sich die Frage, ob der Preis der Zusammenführung aller Nutzungsbausteine in einem einzigen Ge­bäude an dieser Stelle nicht zu hoch ist.

Pläne und Jurybericht zum Wettbewerb finden sich auf competitions.espazium.ch

Zur Weiterbearbeitung empfohlen

Projekt Nr. 1
Architektur Studio Roth, Zürich

Weitere Teilnehmer

Projekt Nr. 2
Frei & Ehrensperger Architekten, Zürich
Projekt Nr. 3
ARGE Thomas De Geeter Architektur & Architekturbüro und Bosshard und Partner, Zürich
Projekt Nr. 4
Morger Partner Architekten, Basel
Projekt Nr. 5
Baumschlager Eberle Architekten, St. Gallen
Projekt Nr. 6
Raumfindung Architekten, Rapperswil
Projekt Nr. 7
Gschwind Architekten, Basel
Projekt Nr. 8
Stoffel Schneider Architekten, Weinfelden

FachJury

Paul Knill (Vorsitz), Architekt, Herisau; Marco Giuliani, Architekt, Zürich; Bruno Bossart, Architekt, St. Gallen

SachJury

Christoph Meier-Meier, Präsident Stiftungsrat, Klinik Sonnenhof, Ganterschwil; Ulrich Müller-Knapp, Klinikleiter & Chefarzt, Klinik Sonnenhof, Ganterschwil

Verwandte Beiträge