Ab durch die Mit­te

Studienauftrag Entwicklung Regionalflughafen Samedan

Der Flughafen Samedan soll modernisiert und ausgebaut werden. Den Studienauftrag dazu entschied das Team um Hosoya Schaefer Architects mit einem wohltemperierten Projekt für sich. Extravagantere Entwürfe blieben chancenlos.

Publikationsdatum
27-09-2018
Revision
27-09-2018
Tina Cieslik
Head of Multimedia | espazium digital lab; Korrespondentin Architektur/Innenarchitektur TEC21

Der Flugbetrieb in der Schweiz umfasst nicht nur die drei Landesflughäfen Basel-Mulhouse, Zürich und Genf, sondern unter anderem auch elf über das ganze Land verteilte Regionalflughäfen. Doch während beispielsweise der Standort Bern-Belp nach dem Konkurs der Fluglinie Skyworks Ende August wieder einmal ums Überleben kämpft, trägt sich jener in Samedan im Oberengadin sogar mit Ausbauplänen.

1938 als Militärflughafen in Betrieb genommen, beherbergt die östlich der Gemeinde gelegene und seit 2004 zivil genutzte Basis neben mehreren Helikopterunternehmen wie der Schweizerischen Rettungsflugwacht Rega auch eine Flug­schule. Der Non-Schengen-Zollflughafen verzeichnet jährlich rund 14 000 Flugbewegungen; neben Segel­fliegern und Flügen für Fallschirmspringer im Sommer sind das vor allem im Winter auch inter­na­tionale Business- und Privatjets.

Die Infrastruktur ist nicht mehr zeitgemäss, und auch bei der Sicherheit soll modernisiert werden. Bisher sind lediglich Sichtanflüge möglich, das enge Bergtal in Kombi­nation mit schwierigen Windverhält­nissen und der hohen Meeres­höhe gilt als heikel. Der Ausbau geht daher auch mit einer Aufrüstung auf ein Instrumentenlandesystem einher.

Funktional und glamourös

Der grösste Handlungsbedarf besteht aktuell bei den Hallen für den Helikopterbetrieb, dem Betriebsgebäude «Landside» und den Vor­feldflächen. In weiteren Etappen sollen die Modernisierung des Betriebs­gebäudes «Airside» sowie ein all­fälliger zu­sätzlicher Ausbau der Hangars für Flächenflugzeuge folgen. Die Ziele für die erste Phase sind hochgesteckt: Der Flughafen soll gemäss Wettbewerbsprogramm über den Betrieb hinaus auch als «Tor zum Engadin / St. Moritz für anspruchsvollste Gäste dienen».

3 + 1 + 1

Diese Vorgaben setzten die fünf eingeladenen Teams unterschiedlich um. Während sich die Planer um Hosoya Schaefer Architects, KCAP Architects & Planners und Itten + Brechbühl jeweils für dezent-pragmatische Lösungen entschieden, ­fielen zwei Entwürfe an gegensätzlichen Enden des Spektrums aus dem Rahmen: Die Architekten von Made in setzten auf einen viergeschossigen Solitär über die gesamte Weite des 1.8 km langen Flugfelds. Seine futuristische Dreiecksform im Querschnitt erinnert – bewusst oder unbewusst – an eine Stange Toblerone.

Die Planer rund um Bearth & Deplazes Architekten interpretierten die lokale Verwurzelung unmittelbarer. Ihr mehrteiliger Gebäudekomplex sucht die formale Nähe zur regionalen Bebauung durch ­Satteldächer und den grossflächigen Einsatz von Holz – ungewöhnlich für einen Flughafen.

Die goldene Mitte

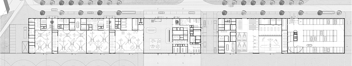
Belohnt wurden Kreativität und Mut der beiden Büros allerdings nicht. Die teilweise unkonventionell besetzte Jury entschied sich für das durchaus überzeugende Projekt von Hosoya Schaefer Architects, das «den guten Mittelweg getroffen habe» – eine Wertung, die wohl nur hierzulande als Lob verstanden werden kann. Tatsächlich schufen die Planer einen in sich geschlossenen Gebäudekomplex, der sich gut in die Landschaft einfügt. Im Süden liegen der Hauptbau, ein zweiflügeliger Riegel mit dem zentral angeordneten sechsgeschossigen Betriebsgebäude «Landside» als «Tor zum Engadin». Darin sind die Terminalhalle, ein Restaurant, Büros und der Tower untergebracht. Die Flächen südlich werden von den Helikopterfirmen genutzt, jene nördlich dienen als Betriebsflächen für Feuerwehr und Räumfahrzeuge sowie als Parking. Daran anschliessend liegen bis zu drei identisch dimensionierte Hangars. Eine ­differenziert ausgearbeitete Metallfassade mit vertikalem Raster fasst den Komplex formal zusammen. Und dann enthält der ruhige Entwurf doch noch ein Spannungsmoment: eine Lobby, die gemäss Jurybericht «sowohl Hangar oder Festsaal sein könnte». Auf diese Umsetzung darf man gespannt sein.

Weitere Pläne und Bilder finden Sie in der Rubrik Wettbewerbe.

Weiterbearbeitung
 

Hosoya Schaefer Architects, Zürich


Dr. Lüchinger + Meyer Bauingenieure, Zürich


Waldhauser & Hermann, Münchenstein


Balzer Ingenieure, Winterthur; Scherler, Zürich


Kuster + Partner, Zürich


IBV Hüsler, Zürich


Blarer & Reber Architekten, Samedan

 

Weitere Teilnehmer
 

Made in, Zürich

Dr. Lüchinger + Meyer Bauingenieure, Zürich

Jacob Forrer, Le Mont-sur-Lausanne

Hefti. Hess. Martignoni, Aarau

Gartenmann Engineering, Zürich

Poliplan, Winterthur; Caretta + Weidmann Baumanagement, Zürich

KCAP Architects & Planners, Zürich

WaltGalmarini, Zürich; RMB Engineering, Zürich

Hefti. Hess. Marti­gnoni, Aarau

bakus Bauphysik & Akustik, Zürich

IBV Hüsler, Zürich; b + p baurealisation, Zürich

Itten + Brechbühl, Bern; AF Toscano, Zürich

Balzer Ingenieure, Winterthur

IBG Engineering, St. Gallen

Kuster + Partner, Zürich

Ribi + Blum, Zürich

Bearth & Deplazes Architekten, Chur

Basler & Hofmann, Zürich; Bänziger Partner, Zürich

Amstein + Walthert, Zürich

Martin Kant Bauphysik, Chur

Büro für Bauökonomie, Luzern
 

FachJury
 

Michael Hauser, Architekt, Zürich (Vorsitz)


Stefan Cadosch, Architekt, Präsident SIA Schweiz, Zürich


Corinna Menn, Architektin, Chur


Martin Schmidli, Master Planning Flughafen Zürich


Hans-Jörg Ruch, Architekt, St. Moritz; Rolf Sachs, Unternehmer, Designer und Nutzer des Regionalflughafens Samedan, London / St. Moritz


Caty Emonet, Architektin, La Punt Chamues-ch (Ersatz)

Verwandte Beiträge