Neues Ba­sler Dach

Der Platz ist knapp, die Wohnungsnot gross. Die Städte wachsen in die Höhe, auch auf bestehender Bausubstanz: Im Basler Quartier St. Johann erhält ein Wohnhaus drei neue Stockwerke und wird klug verdichtet. Das Projekt wurde im Rahmen des Foundation Award 2023 ausgezeichnet.

Data di pubblicazione
14-09-2023

Im Jahr 2014 erwarben Ines Blank und Christian Beck-Wörner ein dreigeschossiges Wohnhaus an der Wasserstrasse nahe der Dreirosenbrücke in Basel. Im Erd­geschoss findet eine kleine Wohnung Platz, darüber zwei 4.5-Zimmer-Wohnungen mit je einem Balkon Richtung Norden.

Nach einer sanften Renovation bezogen die Eigentümer das Erdgeschoss und das erste Obergeschoss. Das Potenzial des Gebäudes war aber längst noch nicht ausgeschöpft: Gemäss dem Zonenreglement konnte aufgestockt werden. Ein beauftragter Ingenieur schlug aufgrund der bestehenden statischen Situation aber vor, höchstens das Giebeldach durch ein Flachdach zu ersetzen. Blank und Beck-Wörner waren mit diesem Vorschlag nicht zufrieden und gaben eine Machbarkeitsstudie in Auftrag, die einen Aufbau aus Holz prüfen sollte.

Nachdem die Studie ergeben hatte, dass mit einem Holzbau mehr möglich sei, liessen sie einen Entwurf für eine solche Aufstockung erstellen. Dieser wurde ihren grundlegenden Anforderungen zwar gerecht, überzeugte sie jedoch aus Kostengründen nicht vollends. Das Projekt pausierte, bis die Bauherrschaft auf ihrer Suche nach einer, wie sie sagen, «unkonventionellen Umsetzung» auf den Zimmermann Urs Arlt der Zimmeria St. Johann stiessen. Arlt sollte einen Grossteil der Arbeiten und die Bauleitung übernehmen, wollte für die Baueingabe aber einen Architekten oder eine Architektin beiziehen. Bestärkt durch sein Engagement, begannen Blank und Beck-Wörner, das Projekt voranzutreiben.

Das «Basler Dach»

Während der Auseinandersetzung mit der Thematik des Aufstockens stiess Christian Beck-Wörner auf die 2016 veröffentlichte Studie «Das Basler Dach», die Ideen zur Verdichtung im Bestand aufzeigt. Darin beschäftigt sich eine Arbeitsgruppe unter der Leitung des Architekten Lukas Gruntz mit möglichen Konzepten zur Linderung der Platz- und Wohnungsnot in Basel. Blank und Beck-Wörner betrauten Gruntz mit der Ausarbeitung eines architektonischen Konzepts: Sein Vorschlag umfasste eine komplette Ausnutzung der Zone und ein Kaltdach als Klimapuffer.

Lesen Sie auch:
«
Die Nach­barn der Vil­la Frei­en­stein» – Neubauten Park Freienstein, Glarus

Das ehemals dreigeschossige Haus ist heute um zwei Vollgeschosse und einen offenen Dachraum reicher. Gegen die Wasserstrasse erscheint der Aufbau mit einer gestalteten Holzfassade und einem steilen, zweigeschossigen Metallfalz-Schrägdach. Die seitlichen Brandmauern des Holzelementbaus sind mit einem Kalkzementstrukturputz versehen, die bestehenden Aussenwände frisch gestrichen. Zum Hof hin gibt sich die Fassade über drei neue Balkonebenen offener.

Schlafen unten – Wohnen oben

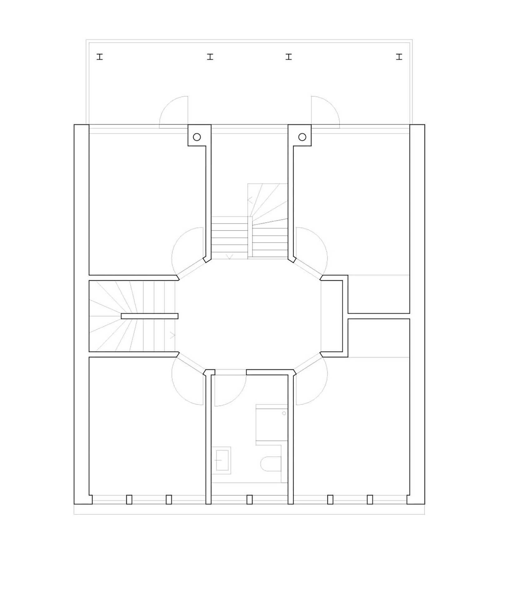
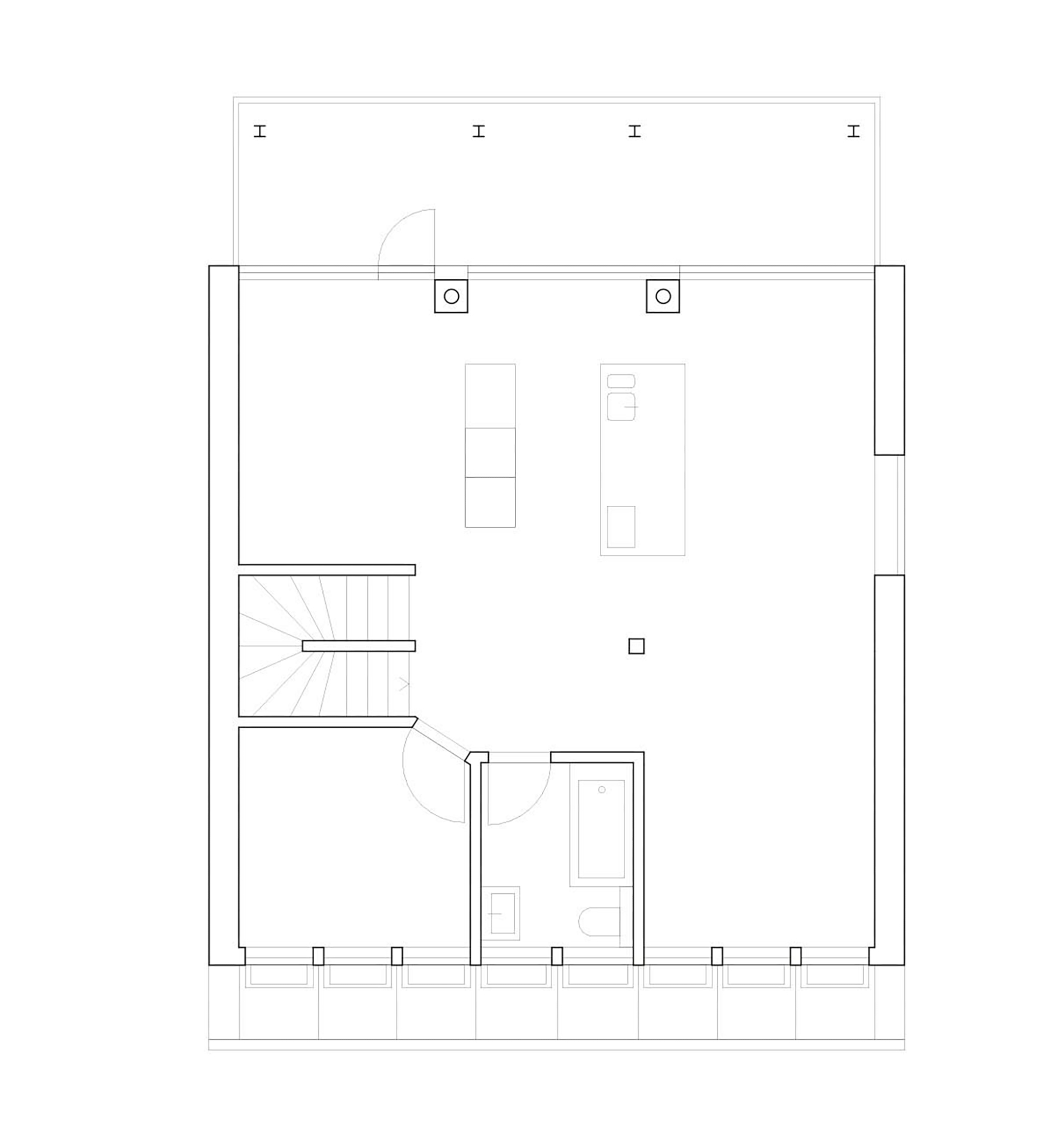
Im Innern führt die bestehende Treppe in einen zen­tralen oktogonalen Ankunftsraum im ersten neuen Geschoss. Um ihn herum gruppieren sich vier grosse Zimmer, jeweils durch Nebenräume getrennt. Belichtet wird der Raum über ein grosses Fenster in der Fassade oberhalb der Treppe. Die räumliche Anordnung der Türen und die Helligkeit werten den Raum zu einer gut bespielbaren Mehrzweckzone auf. Eine halbgewundene, von der bestehenden Erschliessung unabhängige Treppe führt an der westlichen Brandmauer nach oben. Im oberen Geschoss des Aufbaus befindet sich dank der Verschiebung der Treppe ein offenes Wohngeschoss. Davon profitieren insbesondere die freistehende Küche, die die Balkonseite zoniert, und der gesamte Wohn- und Essbereich.

Entsprechend der simplen Organisation verhält sich auch die Materialisierung. Ein geschliffener Anhydritboden zieht sich über alle neuen Geschosse, die Wände und die Decken bestehen aus geseiften Dreischichtplatten aus Fichte. Die Oberflächen der Bäder sind, wo nötig, mit Keramikplatten belegt. Ein besonderes Augenmerk gilt den alten Holzzargentüren, die aus den darunterliegenden Wohnungen stammen. Res­tauriert und frisch gestrichen, integrieren sie sich stimmig in ihren neuen Kontext.

Ein rundes Fenster

«Besonders gefällt uns die Helligkeit und die Aus- und Weitsicht», sagt Ines Blank. Damit meint sie nicht nur die Verglasung zum Balkon hin, sondern vor allem das grosse Highlight der neuen Wohnung: das Rundfenster in der östlichen Brandmauer. Normalerweise ist es nicht erlaubt, Brandmauern mit Fenstern zu versehen, im vorliegenden Fall wurde jedoch eine Ausnahme gemacht. Die östlich anschliessende Liegenschaft wurde erst kürzlich saniert und es besteht keine Absicht, das Gebäude in naher Zukunft aufzustocken: Die Aussicht durch das festverglaste Brandschutzfenster dürfte also noch einige Zeit bleiben.

Weitere ausgezeichnete und nominierte Projekte des Foundation Award 2023 finden Sie in unserem E-Dossier.

Im obersten Stock eröffnet der unbeheizte Dachraum neue Möglichkeiten. Er bietet nicht nur einen gedeckten Aussenbereich mit Aussicht über das Quartier, sondern hält die darunterliegenden Geschosse im Hochsommer angenehm kühl. Analog zum Rundfenster gegen Osten im Wohngeschoss gibt es im Dachraum eine Luke im Schrägdach.

Die Aufstockung hinterlässt nicht zuletzt in den bestehenden Geschossen ihre Spuren: Die Wand unter der neuen Treppe wurde statisch ertüchtigt. Ebenfalls nötig war eine Unterfangung der bestehenden Fundamente im Keller. Der Eingriff zog auch eine ganze Reihe von Brandschutzoptimierungen im Bereich des Treppenhauses als Fluchtweg nach sich. Doch die Beteiligten sind zufrieden mit der Aufstockung im Wohnhaus an der Wasserstrasse. Sie beweist, dass Verdichtung im Bestand zu kreativen Lösungen führen kann. Das neue Basler Dach, es funktioniert!

Dieser Text erschien erstmals am 8. Juni 2021 auf www.architekturbasel.ch. Die abgedruckte Fassung wurde gekürzt und leicht abgeändert.

Aufstockung Wasserstrasse, Basel

 

Bauherrschaft
Ines Blank und Christian Beck-Wörner, Basel

 

Architektur
Atelier Atlas Architektur, Basel

 

Tragkonstruktion
Büro für Bau und Holz, Burkhard Schnabel, Basel

 

Bauleitung/Zimmermann
Zimmeria St. Johann,
Urs Arlt, Basel

 

Farbe
Thymos, Farb- und Produktberatung, Lenzburg

 

Vergabeform
Direktauftrag

 

Bauphase
2020–2021

 

Baujahr Bestand
Ende 19. Jahrhundert

 

Grundfläche (SIA 416)
338 m²

 

Baukosten (BKP 2)
900000 Fr.

Etichette

Articoli correlati