S’épa­nouir à la ver­ti­ca­le: l’aty­pi­que crè­che de la rue Gray à Bru­xel­les

Situé dans une ancienne rue ouvrière bruxelloise et déployé sur trois niveaux, le projet conçu par l’Atelier De Visscher & Vincentelli et Manger Nielsen Architects, témoigne d'un esprit d'adaptabilité pour concevoir une structure d’accueil propice à l’éveil des sens, sur un terrain peu favorable à ce type de programme.

Data di pubblicazione
28-06-2022

Crèche modelée dans le lit d’un ancien cours d’eau

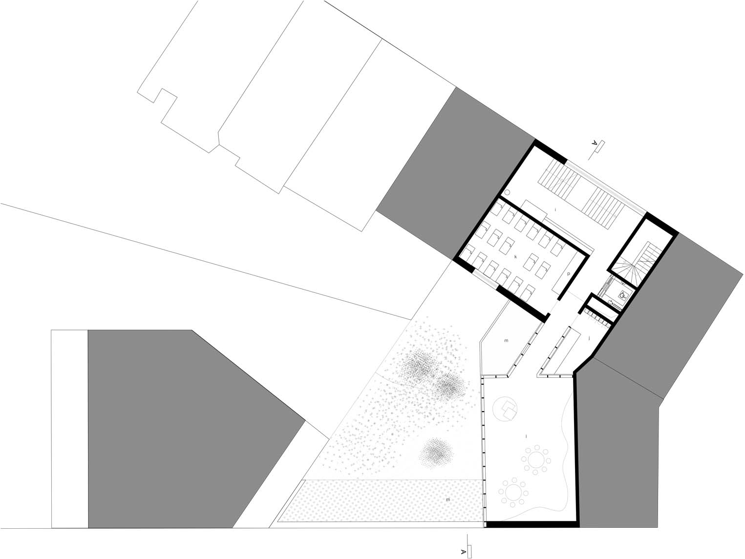
Située à quelques dizaines de mètres du viaduc ferroviaire de la rue Gray, la crèche entièrement recouverte d’un carrelage à motif géométrique ne passe pas inaperçue. Œuvre de l’artiste Christophe Terlinden, le revêtement mural est composé de carreaux de céramique émaillée d’un rose affirmé. Cette couleur se détache de la dominante rouge brique de cette ancienne rue ouvrière, située sur un ancien cours d'eau canalisé. Si la crèche contraste par sa couleur, son agencement résulte d’une bonne attention à son environnement.  Avec un accès depuis deux rues présentant une différence de niveau denviron 3 mètres, elle regroupe deux fonctions distinctes maintenues séparées, malgré l’apparente homogénéité de l’ensemble.

Défi sur plusieurs niveaux

Côté rue Gray se trouvent les ateliers, ainsi que l'accès vélo de la crèche. Cette façade est aveugle à l'exception du rez-de-chaussée et d'une grande baie vitrée au premier étage. L'entrée principale de la crèche prévue pour accueillir 40 enfants se trouve de l'autre côté, rue Kerckx.  Le fait que le rez-de-chaussée de la rue Kerckx corresponde au premier étage de la rue Gray s'explique en partie par la vallée creusée par l’ancien cours d’eau. Ici aussi, seules trois grandes fenêtres viennent perturber l'aspect monolithique de la façade dominée par son identité chromatique. L'aspect uniforme du bâtiment est contrebalancé par l'aménagement intérieur, qui justifie en partie l'opacité des façades sur rue. Les façades côté cour sont majoritairement vitrées et desservies par des coursives extérieures qui donnent sur un petit jardin en pente qui se déploie, comme un amphithéâtre, au-dessus des ateliers.

Éveil des sens

Si l’apparence du bâtiment depuis la rue peut donner l'impression d'une simplicité formelle proche de la posture, la complexité et la nature expérimentale de l'aménagement intérieur contredisent cette hypothèse. L'aménagement intérieur, et notamment la relation des espaces de vie avec le jardin en forte pente, transforme la crèche en un bâtiment hyper contextuel, conçu pour l’éveil des sens des petits. Ce jardin permet aux enfants d'accéder en toute sécurité à un plateau plus lumineux au-dessus des ateliers, plutôt que de devoir rester confinés dans la cour du rez-de-chaussée, encastrée au cœur de la parcelle.  En dévalant du deuxième étage de la rue Gray, ce jardin offre une issue de secours au premier étage de la crèche, évitant ainsi la construction d’un deuxième escalier en intérieur.

Sobriété constructive

Le bâtiment rejoue ainsi en micrographie les grandes lignes de la topographie de cette rue Gray encaissée. Ici, les espaces intérieurs sont fonctionnels et lumineux, conçus pour optimiser les conditions de vie des enfants et de celles et ceux qui s'en occupent.  Cette rationalité se combine avec le choix atypique de déployer une structure d'accueil de la petite enfance dans un bâtiment sur trois niveaux. Outre le déploiement vertical, l'esprit insolite se poursuit avec le choix d'installer la cuisine de la crèche dans le hall d'entrée principal. Les parents entrent dans une cuisine fonctionnelle pour accéder aux étages où se trouvent les salles pour les petits. En conclusion, il faut reconnaître que le choix de créer une crèche sur un terrain aussi inadapté est une preuve en geste de sobriété constructive. La conception témoigne d'un esprit d'adaptabilité qui s'accommode de solutions non standard au lieu de chercher à satisfaire à tout prix les exigences normatives.

Informations générales

Programme: Construction d'une crèche Kind & Gezin pour 40 enfants et d'un atelier d'artiste, 1200 m²
Lieu: Bruxelles
Construction: 2016-2020
Co-conceptionADVV-Atelier De Visscher & Vincentelli + MNA-Manger Nielsen Architects

Série La Belgique à l'heure de la reconversion généralisée - 5 Projets

 

Article de cadrage: La Belgique à l'heure de la reconversion généralisée

 

Projets

 

 

Architecture: passé et présent unis à Molenbeek – NOTAN OFFICE

 

Métissage heureux des quartiers nord. Sur Zinneke, par Ouest architecture

 

Le dé­cor de Lo­ver­val - Centre sportif "La ferme du Château" à Chareroi, par Label architecture

 

S’épanouir à la verticale: l’atypique crèche de la rue Gray à Bruxelles, par l’Atelier De Visscher & Vincentelli et Manger Nielsen Architects 

 

La chaufferie du design de Charleroi, par Baumans-Deffet, Architecture et Urbanisme

Etichette

Articoli correlati