Prix Mies van der Ro­he 2019

En consacrant la transformation de 530 logements - Grand Parc à Bordeaux de Lacaton & Vassal architectes, Frédéric Druot Architecture et Christophe Hutin Architecture, la Commission Européenne et la Fundació Mies van der Rohe récompensent un modus operandi qui a déjà fait ses preuves dans la rénovation de la tour Bois-le-Prêtre et dont l'objectif est l'amélioration des conditions de vie des classes défavorisées.

Data di pubblicazione
15-04-2019
Revision
15-04-2019

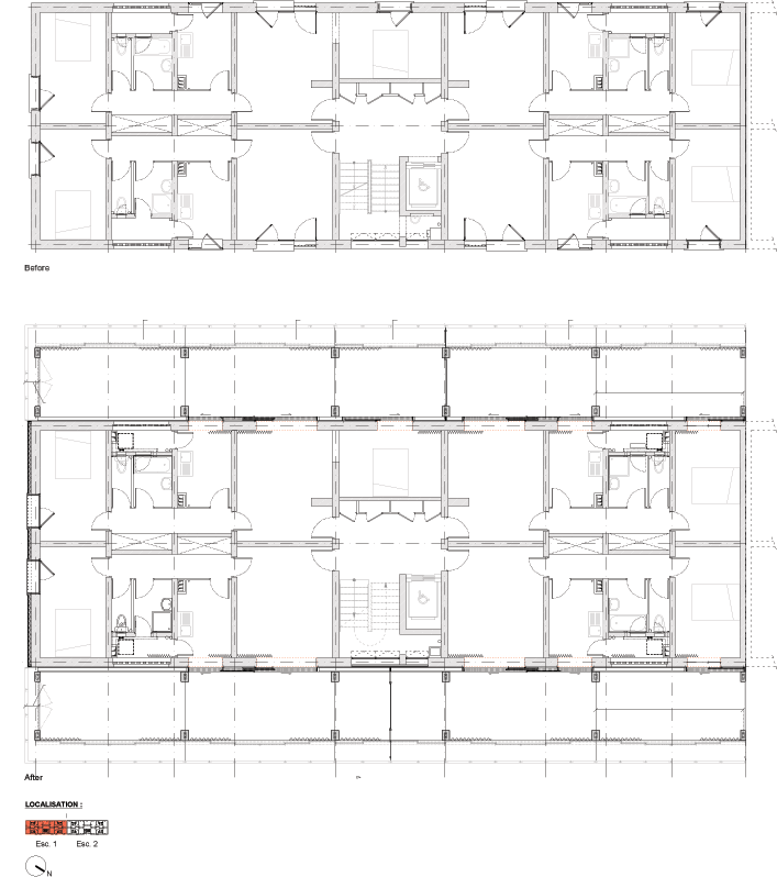
La transformation de 530 logements - Grand Parc Bordeaux par Lacaton & Vassal architectes, Frédéric Druot Architecture et Christophe Hutin Architecture est le gagnant 2019 du Prix.
L'ouvrage comprend la rénovation innovante de trois imposants bâtiments de logements à Bordeaux, permettant ainsi d'optimiser les espaces et d'apporter une nouvelle qualité de vie, en répertoriant soigneusement les qualités existantes à conserver et les manques à pourvoir. La transformation de chaque unité s'élève à 50 000 € (hors TVA) mais le montant du loyer des anciens locataires n'a pas été majoré pour autant ; de plus, ces derniers n'ont pas dû quitter leurs appartements pendant la durée des travaux. 

Le Jury a pris en compte le fait que le projet met au défi les parcs de logements européens existants datant de l'après-guerre, en utilisant des moyens réduits pour créer un maximum d'effet. Plutôt que de procéder à une démolition, ce qui implique une importante consommation d'énergie, dans ce cas précis, le client a compris et soutenu le projet avantageux de transformer les trois bâtiments existants. Cela a amélioré le quotidien des personnes sans pour autant sous-estimer l'existence qu'elles menaient avant, en remplissant le nouvel espace de poésie, puisqu'on part du principe que les personnes comprennent l'espace et l'utilisent ainsi de manière polyvalente. 

Lire également L’ex­ten­sion du do­maine ha­bi­table

À une époque où les commissions responsables des logements sociaux réclament une réduction des surfaces des appartements, les volumes sont ici augmentés, et apportent ainsi de la dignité et une plus grande valeur à l'individuel et au collectif. L'ensemble représente une opportunité de choix pour le logement social, basé sur l'optimisme et la modernité, rempli de générosité et donnant un nouveau visage à l'architecture et à ses possibilités. Les architectes ont démontré qu'ils connaissaient parfaitement les personnes concernées par le projet – mixité des habitants – et le cadre – résultat de recherches sur la transformation. Cela se traduit par une méthode de travail soignée qui prend en compte les personnes, les espaces et les matériaux, bien que les conditions du collectif aient pu être optimisées si le rapport à la rue avait été autre. 

Nom de l'ouvrage: Transformation de 530 logements - Grand Parc Bordeaux (FR)

Cabinet: Lacaton & Vassal architectes ; Frédéric Druot Architecture et Christophe Hutin Architecture, Paris/Bordeaux

Articoli correlati