Architecture «Bobois»
En 2015, dans un secteur en pleine mutation au nord de Paris, l’agence Tectône livre un immeuble de logements en bois. Le choix du matériau sert autant le système constructif que l’image architecturale.
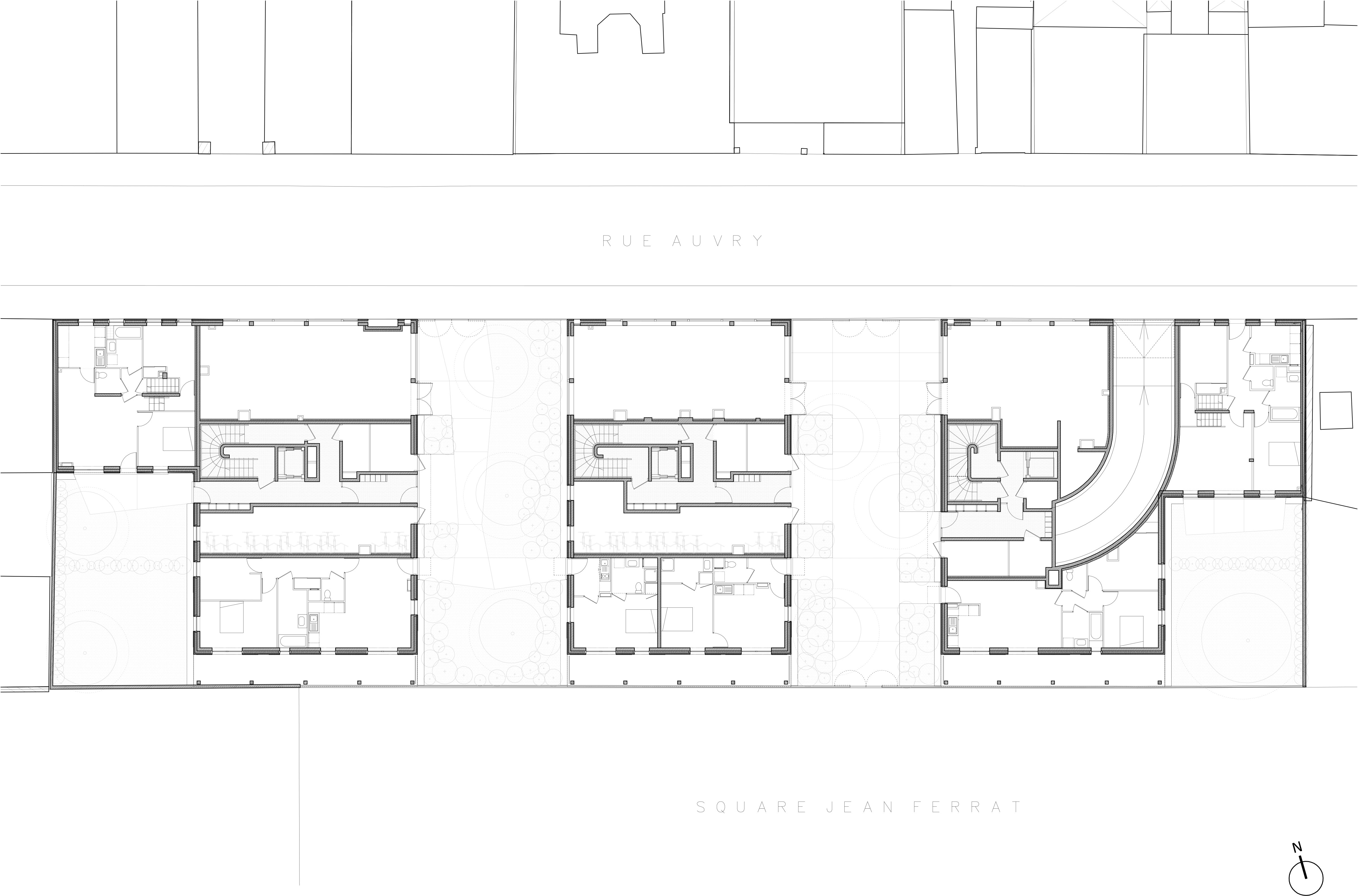
Depuis deux décennies, dans les communes populaires du nord de Paris, pullulent des projets de renouvellement urbain dans des périmètres appelés Zones d’aménagement concerté (ZAC). Celle d’Aubry-Barbusse à Aubervilliers en est un exemple significatif. Dans un ordinaire tissu de faubourg constitué d’ateliers d’artisans, de petits immeubles de deux ou trois niveaux, sommairement crépis, poussent de partout des architectures aux expressions incongrues: toitures à double pan recouvertes de tôles d’aluminium ondulées, façades en acier inoxydable perforé ou en briques noires posées à la verticale, panneaux de volets coulissants de couleur vert pomme ou jaune citron, garde-corps avec motifs floraux ou en moucharabieh, etc. Il y en a pour tous les goûts. Dans cette immense matériauthèque pour architectes et promoteurs, où manque sensiblement un langage architectural commun, les trois plots en bois naturel grisé, réalisés par l’agence Tectône se distinguent par leur discrétion bienvenue.
Villas urbaines
Deux passages piétons traversent la parcelle et distribuent les trois plots de 13 logements chacun. Ces venelles inspirées du modèle préexistant de l’impasse faubourienne permettent des passages et des transparences visuelles à travers l’îlot. Côté rue Auvry, au nord, en continuité avec le contexte minéral avoisinant, un socle en béton blanc préfabriqué abrite les locaux d’artisans largement vitrés sur le trottoir et les venelles. Face au square Jean Ferrat, sur toute la hauteur des bâtiments, une double peau en bois accueille et protège les balcons et loggias des logements donnant au sud. Les références à la typologie de la villa urbaine se poursuivent à l’intérieur des bâtiments. Les locaux communs du rez-de-chaussée, les halls d’immeubles accueillant les boîtes aux lettres et les paliers d’étages sont tous disposés en façade afin de bénéficier de la lumière naturelle. Les grands logements situés aux derniers niveaux sont conçus comme des maisons. Ainsi, les habitants profitent de plusieurs espaces extérieurs. En plus des loggias et des balcons orientés au sud sur le square, des patios creusés dans les toits offrent attention mise en forme intimes et abrités des regards. Aux deux extrémités de l’opération, le volume est abaissé de deux niveaux afin de permettre une transition graduelle avec les immeubles voisins. Il abrite deux autres maisons de ville jouissant chacune de vues traversantes sur le square et la rue, d’un jardin au sud et d’un accès privatif.
Structure mixte, expression bois
Afin de répondre aux exigences programmatiques imposées par le promoteur immobilier et l’architecte de la ZAC, notamment en terme d’usage du bois, une entreprise spécialisée en construction bois a été associée à l’architecte dès la phase concours. La charpente du bâtiment allie ainsi deux modes constructifs. Le sous-sol, le rez-de-chaussée et les noyaux de circulations sont réalisés en béton. Au premier et deuxième étage, le squelette structurel est en poteaux et dalles béton. En revanche, dans les deux derniers étages, la structure est entièrement en bois et laissée visible à l’intérieur des logements. L’enveloppe est elle aussi construite en ossature bois, revêtue d’un bardage en pin douglas purgé d’aubier et non traité. En changeant de teinte en fonction de l’exposition aux intempéries et au rayonnement solaire, la couleur orangée du bois sorti d’usine se grise progressivement et aléatoirement, générant ainsi une peau sensible qui change d’aspect en fonction de sa situation.
«Une entreprise en construction bois a été associée dès la phase concours»
Un habitant d’un duplex situé au dernier étage du bâtiment central décrit par ces mots son logement: «Nous avons vraiment le sentiment de vivre dans une véritable maison en bois avec plusieurs orientations, des prolongements extérieurs, un éclairage naturel dans toutes les pièces … Dans ce quartier, un peu chaud, on nous appelle les bobois». L’expression «bobois» réussit à conjuguer, en un mot, plusieurs désirs paradoxaux, à la fois tendance et désuets: un mode de vie bourgeois, un quartier en pleine gentrification, une typologie de villa urbaine et le matériau bois.
Participants au projet
Maître d’ouvrage: Bouygues Immobilier, Agence Seine Saint-Denis Nord, Direction Régionale IDF Est, Paris
Architecture: Tectône, Paris
Charpente et bardage bois: Charpente Houot, Sainte-Marguerite
Gros œuvre: VFB construction, Saint-Maur-des-Fossés
Paysage: Dufaÿe Mandre, Chevry-Cossigny
Informations générales
Logements: 39
Surface utile: 2450 m2
Label: Bâtiment Basse Consommation Norm Française BBC NF, logement option HQEBois et Construction
Façade: bardage douglas (France),
Bât A = 30 m3 / Bât B = 27 m3 / Bât C = 30 m3
Statique: Résineux C24 (Allemagne), Bât A = 50 m3 / Bât B = 49 m3 / Bât C = 48 m3Dates
Planning et réalisation : 2011–2015Coûts
Coût des travaux : 5.7 mio EUR HT
Ville en bois n°3
Ville en bois n°3
Megatendances comme moteurs
Un hors-série d'espazium – Les éditions pour la culture du bâti
En collaboration avec:
OFEV Office fédéral de l'environnement, Plan d'action bois, Berne
Wüest Partner, Zurich
Lignum, Économie suisse du bois
