At­tor­no al­le cor­ti

boltas bianchi architetti | Studio d’ingegneria Roger Bacciarini & Co.

L’ampliamento della scuola di Cadro prosegue la composizione esistente con un nuovo volume per funzioni collettive e una scuola dell’infanzia autonoma. Spazi aperti e corti collegano architettura, paesaggio e programma educativo in un dialogo continuo e coerente.

Data di pubblicazione
26-08-2025
Luca Cardani
arch., lect., res. in Architectural and Urban Design DABC POLIMI

Around the courtyards english version

Scuola dell’infanzia e mensa, Cadro TI

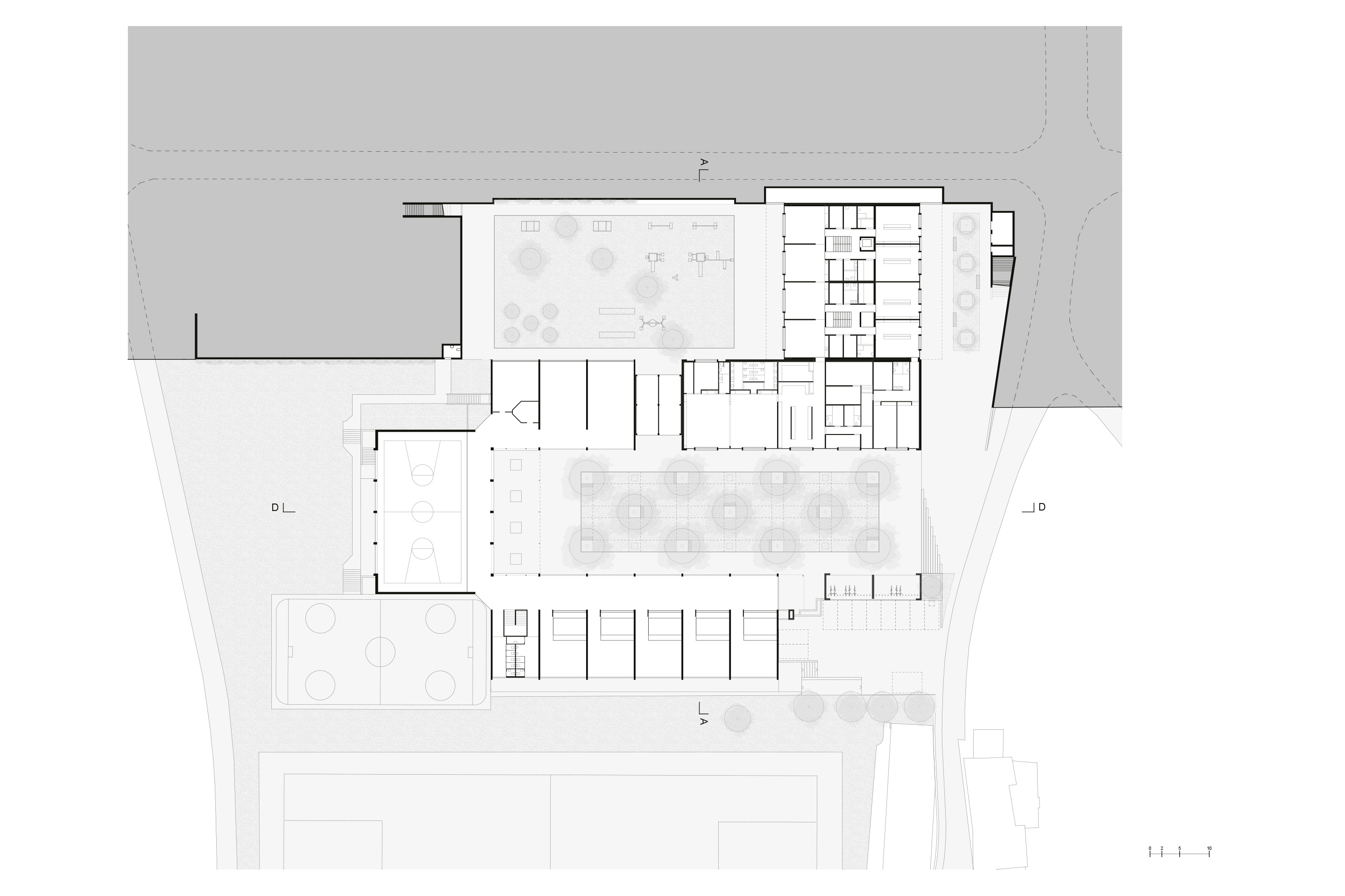
La nuova scuola dell’infanzia di Cadro si inserisce come estensione del preesistente complesso scolastico elementare, articolato attorno a un impianto a corte scandito da due ali parallele di aule, unite al centro dalla palestra e collegate da un corridoio distributivo rivolto verso il cortile. Il progetto riconosce il valore di questa composizione e ne prolunga la struttura per assi, estendendo il braccio orientale con un volume lineare che accoglie funzioni collettive: mensa, doposcuola, cucina e locali per il personale docente. La continuità fisica con l’esistente è risolta tramite la ripresa del sistema strutturale a setti paralleli, che viene mantenuto nel nuovo corpo edilizio. A coronamento dell’intervento, un piccolo portico completa la composizione a est, ospitando gli stalli per le biciclette.

L’ampliamento del complesso produce così una piazza allungata, pavimentata con superfici minerali e punteggiata da alberature, che assume il ruolo di spazio pubblico civico, destinato tanto all’accoglienza degli utenti quanto a eventi collettivi. In relazione a questa sequenza urbana si colloca, ortogonalmente al corpo esistente, il volume autonomo della scuola dell’infanzia. La sua rotazione genera due corti laterali, di dimensioni più contenute, delimitate sui lati esterni dai muri di sostegno che accompagnano la naturale pendenza del terreno.

L’impianto planimetrico della nuova scuola dell’infanzia è centrato su un nucleo distributivo compatto, collocato al centro del blocco edilizio e affiancato sui due lati da aule a doppio affaccio. Al piano terreno, l’atrio principale introduce agli spazi comuni e ai refettori, affacciati verso il giardino interno, mentre al livello superiore trovano posto le quattro sezioni didattiche, orientate rispettivamente verso la strada e verso il giardino protetto, in rapporto diretto con il paesaggio collinare. La composizione strutturale e costruttiva dell’intervento riprende i caratteri materici e tettonici dell’edificio esistente, stabilendo una continuità formale e costruttiva. Il sistema dei setti in calcestruzzo armato a vista, intercalati da ampie aperture vetrate incorniciate da serramenti in ferro nero, viene riproposto nella nuova ala, pur con varianti tipologiche legate al diverso orientamento e programma funzionale. Nella nuova scuola dell’infanzia il ritmo dei setti si ruota perpendicolarmente, orientando le aule verso gli spazi aperti e generando una diversa articolazione della sequenza spaziale.

L’insieme si configura come un sistema di corti e volumi passanti, dove la relazione tra pieni e vuoti diventa parte integrante del disegno pedagogico: gli spazi didattici interni dialogano costantemente con gli spazi aperti, mentre le corti progressivamente filtrano il passaggio dal tessuto urbano al paesaggio della valle. Questo intreccio tra architettura, topografia e programma educativo costruisce una sequenza coerente di spazi progressivi che articolano il rapporto tra le diverse età scolastiche, la vita collettiva e il contesto naturale.

 

  • Luogo Lugano, Cadro, via Centro Scolastico 
  • Committenza Città di Lugano, Divisione Edilizia Pubblica, Lugano 
  • Architettura e Direzione lavori |boltas bianchi architetti, Agno 
  • collaboratori M. Pasqua, A. Caso, M. Valente 
  • Impresa Taddei SA, Viganello - Lugano 
  • Ingegneria civile |Studio d’ingegneria Roger Bacciarini & Co. Sagl, Maroggia 
  • Progetto impianti RVCS |CS progetti Sagl, Bedano 
  • Progetto impianti elettrici Studio d’ingegneria Mauro Notari, Agno 
  • Fisica della costruzione e Acustica ing. Andrea Roscetti, Lugano 
  • Fotovoltaico AIL, Muzzano Superficie: 327 m², Potenza: 82.6 kWp, Produzione annua: 91’300 kWh Area: 327 m², Capacity: 82.6 kWp, Annual production: 91,300 kWh 
  • Progetto serramenti Maturi & Sampietro SA, Mezzovico 
  • Fotografia Alessandro Rabaglio, Lugano 
  • Fotorender boltas bianchi architetti, Agno 
  • Date concorso: 2019; progetto:2020; realizzazione: 2021–2024 
  • Pianificazione energetica ing. Andrea Roscetti, Lugano 
  • Certificazione o Standard energetico Minergie-A, TI-152-A 
  • Intervento e tipo edificio nuova costruzione 
  • Categoria edificio (Ae) scuole: 1’893.4 m² 
  • Fattore di forma (Ath/Ae) .94 
  • Riscaldamento 100% pompa di calore geotermica, CLA = 3.76 
  • Acqua calda 100% pompa di calore geotermica, CLA = 2.38 
  • Elettricità  fotovoltaico: 327 m², 82.6 kWp, 91’300 kWh/anno 
  • Requisito primario involucro 21.6 kWh/(m²a) (limite 35.2 kWh/(m²a)) 
    Indice Energetico Complessivo 10.2 kWh/(m²a) (limite 20.0 kWh/(m²a)) 
  • Valore limite energia grigia non applicabile, non richiesto per lo standard 
  • Particolarità distribuzione del calore e del freddo mediante serpentine a pavimento; regolazione automatica della schermatura solare tramite sensori di radiazione; 8 monoblocchi per la ventilazione con recupero di calore e regolazione tramite sonde di CO2; 12 sonde geotermiche da 180 m per la produzione di calore e raffrescamento; illuminazione LED ad alta efficienza con regolazione ottimizzata 

Articoli correlati