La mi­su­ra del pae­sag­gio

Studio d’architettura Moro & Moro

Il centro scolastico di San Vittore si sviluppa come una piccola cittadella orizzontale, integrata nel paesaggio aperto. Spazi flessibili e collegamenti protetti favoriscono l’interazione didattica, mentre materiali essenziali e luce naturale definiscono un’architettura sobria e radicata.

   
Data di pubblicazione
25-08-2025
Luca Cardani
arch., lect., res. in Architectural and Urban Design DABC POLIMI

Measuring the landscape english version 

Strutture scolastiche, San Vittore GR

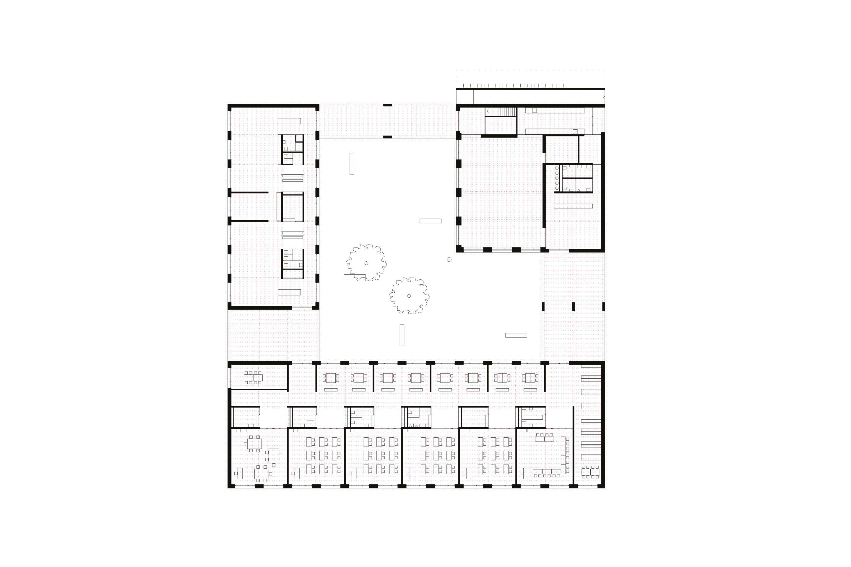
Il centro scolastico di San Vittore sorge su un’area un tempo occupata da un campo da calcio, posta ai margini del centro abitato e aperta verso i prati della piana attraversata dalla Moesa. La scelta insediativa conserva il carattere aperto del luogo, concentrando l’edificio nella metà settentrionale del lotto e lasciando la porzione a valle libera, delimitata da filari di alberi che incorniciano le aree verdi e orientano le vedute verso il paesaggio agricolo e il profilo montuoso del Monte Vif.

L’impianto planimetrico adotta la forma di una piccola cittadella: tre corpi didattici autonomi, connessi da portici che definiscono una corte centrale protetta. All’esterno, il complesso assume un perimetro rigorosamente quadrato, mentre lo spazio interno risulta articolato, alternando apertura verso il territorio e introversione dello spazio collettivo. Il volume si distende orizzontalmente con un solo piano fuori terra, mantenendo un profilo ribassato per non interferire con il panorama del nucleo storico. I fronti alternano zone piene e vetrate, secondo una scansione regolare, mentre la copertura continua, estesa senza interruzioni su tutto il perimetro, unifica la composizione. Il sistema di shed disposti linearmente all’interno della maglia di copertura, introduce luce naturale nelle aree centrali, scandendo il ritmo interno e accentuando il carattere orizzontale del complesso.

La distribuzione interna dei due blocchi didattici prevede una sequenza di spazi passanti, in cui una spina centrale, occupata dai blocchi di servizio, funge da filtro fonico e visivo tra i fronti aperti verso l’esterno e le aree collettive rivolte al patio. Questa configurazione consente l’utilizzo simultaneo e flessibile degli ambienti, adattandosi a differenti modalità pedagogiche.

Dal punto di vista costruttivo, la struttura si basa su setti in cemento armato emergenti dalla platea di fondazione, sui quali poggia un sistema modulare ligneo che libera integralmente gli spazi didattici da vincoli strutturali interni. Le partizioni leggere definiscono le aule e ne permettono una riconfigurazione agevole nel tempo. La scelta materica privilegia il cemento faccia a vista per i fronti esterni, in continuità con il carattere severo e unitario del perimetro, mentre all’interno dominano superfici lignee e finiture chiare, che stabiliscono un rapporto misurato con il contesto naturale circostante.

L’intervento conferisce alla nuova scuola la qualità di un’architettura radicata nel paesaggio, capace di integrare i principi di apertura e protezione richiesti dall’ambiente educativo, senza cedere a esibizioni formali, ma perseguendo una coerenza tipologica e costruttiva che rinsalda il rapporto tra insediamento, pedagogia e paesaggio.

  • Luogo  San Vittore, Roveredo, GR 
  • Committenza Comune di San Vittore 
  • Architettura e Direzione lavori Studio d’architettura Moro & Moro, Locarno; F. Moro 
  • collaboratori F. Turuani, F. Albi, S. Maciariello 
  • Impresa  GTL SA, Gravesano 
  • Ingegneria civile Galli Engineering, Rivera 
  • Progetto impianti RVCS Gilardi Sandro Studio di progettazione, Giubiasco 
  • Progetto impianti elettrici e Fotovoltaico Tecnoprogetti SA, Camorino 
  • Fisica della costruzione e Acustica Erisel SA, Bellinzona 
  • Illuminotecnica Tecnoprogetti SA, Camorino 
  • Geologia Geoalps engineering, Faido 
  • Fotografia  Zoe Moro, Locarno 
  • Date  concorso: 2019–2020; progetto: 2021–2023; realizzazione 2023–2025 
  • Pianificazione energetica Erisel SA, Bellinzona 
  • Certificazione o Standard energetico minimo di legge secondo SIA 380/1:2016 (richieste OGE); in certificazione secondo standard Minergie (n. precert. GR-971) 
  • Intervento e tipo edificio nuova costruzione 
  • Categoria edificio (Ae) scuole (Ae = 1700 m²) 
  • Fattore di forma  (Ath/Ae) globale = 2.91 
  • Riscaldamento | pompa di calore acqua-acqua per tutte le sezioni (SE, SI, SM), COP 5.0, copertura 100%; raffrescamento con free-cooling diretto da falda, COP 10.0,  copertura 100% 
  • Elettricità superficie pannelli 128 m² (64 da 2 m²); produzione elettrica annua 32’000 kWh 
  • Requisito involucro fabbisogno riscaldamento | 49.3 kWh/m²a 
  • Indice Energetico Complessivo indice Minergie 46.6 kWh/m²a Limite Minergie complessivo 66.5 kWh/m²a 
  • Riscaldamento / Raffrescamento distribuzione riscaldamento a pavimento 30/25 °C; distribuzione raffrescamento a pavimento 18/23 °C; controllo termico locale 
  • Ventilazione SM – Unità trattamento aria (UTA) | SM – Compact AHU 1 unità, 2’800 m³/h; SI – Unità trattamento aria (UTA) | SI – Compact AHUs 2 unità, 580 m³/h; SE – Unità trattamento aria (UTA) | SE –  AHU 1 unità, 3’600 m³/h; diffusori |bocchette a sfera regolabili 

Articoli correlati