Me­ta­mor­fo­si di sca­la nel­la cit­tà dif­fu­sa

Atelier Rampazzi, Franco Gulisano

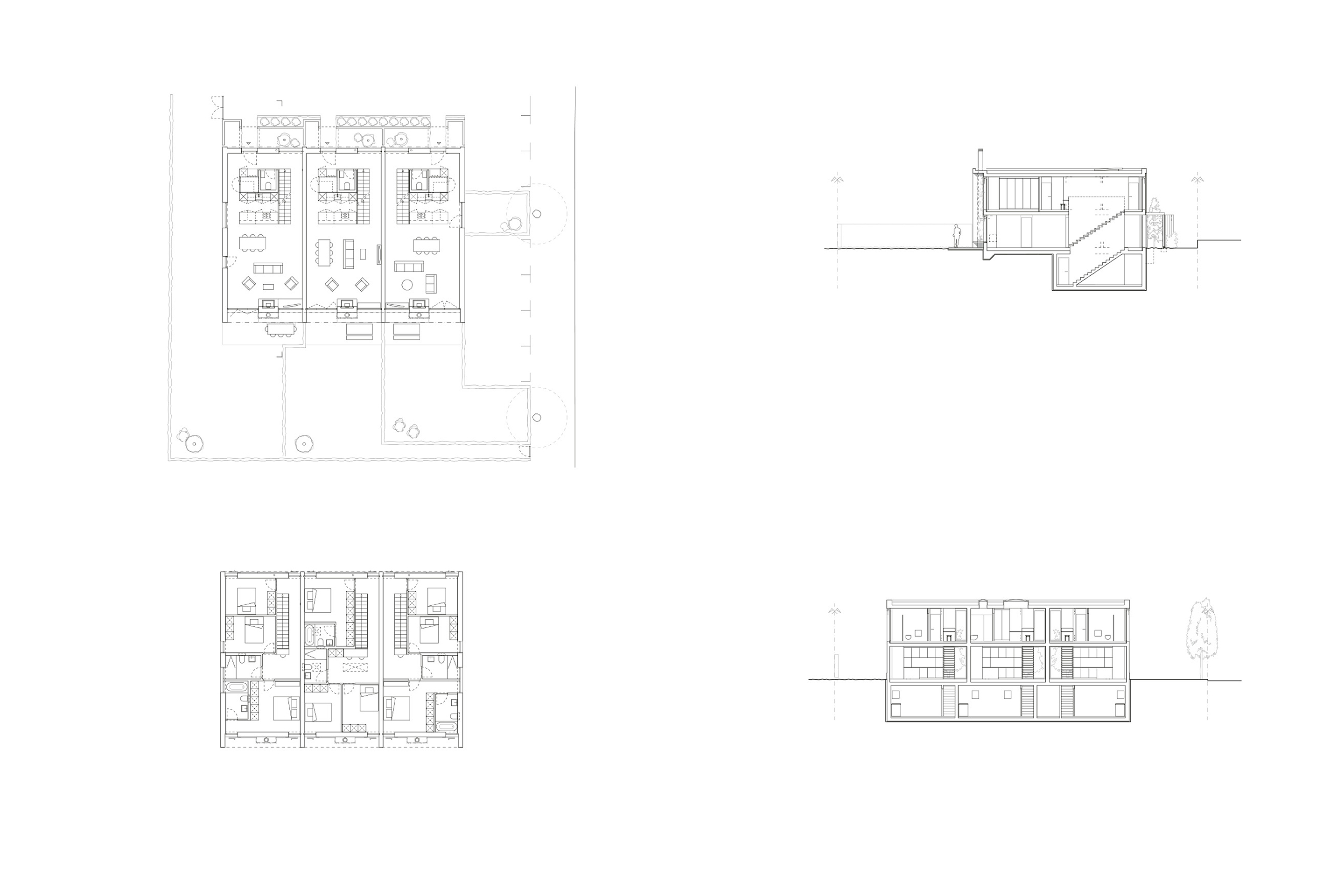
Il rapporto tra costruito e spazi aperti dell’intervento di Atelier Rampazzi appare bivalente: a un'organizzazione più schematica delle abitazioni, che derivano da una suddivisione in tre parti uguali di un volume regolare, si contrappone una più articolata organizzazione degli spazi aperti, che prendono origine da questa tripartizione.

 

Data di pubblicazione
18-10-2024
Matteo Moscatelli
Architetto e PhD, docente al Politecnico di Milano, redattore espazium quaderni

L’intervento è collocato al margine del nucleo di Verscio, una frazione di Terre di Pedemonte a poca distanza da Ascona, in un territorio caratterizzato da un costruito a grana irregolare e da interventi residenziali a bassa densità inframmezzati da aree verdi e campi coltivati.

Il progetto riguarda la realizzazione di un nuovo blocco residenziale che ospita tre unità su due piani fuori terra, orientato verso sud come i filari delle vigne che lo circondano. In risposta all’eterogeneità del contesto in cui è immerso, l’edificio – un volume compatto in cemento armato all’interno del quale si alternano le superfici lignee delle facciate nord e sud e le strutture reticolari per il verde rampicante – appare unitario dal punto di vista formale e materico.

Ogni unità presenta al piano terra una zona definita da un nucleo di servizio dalla sagoma quadrata cinto da un corridoio su tutti e quattro i lati e composto dalla cucina, un bagno, un deposito, un corpo scale e un’area affacciata verso il giardino che accoglie la zona soggiorno e pranzo e può essere organizzata a seconda delle esigenze abitative. Al piano primo sono collocate due camere singole con bagno, una camera più grande con il proprio bagno e uno spazio di distribuzione a L illuminato zenitalmente, utilizzabile come area per il gioco o per lo studio. Al piano inferiore, suddiviso differentemente dai due livelli fuori terra, trovano invece posto cantine e depositi. L’edificio si chiude con una copertura piana, coerente con la semplicità della composizione, su cui sono collocati i pannelli solari, i sistemi di ventilazione e tre aperture che portano ventilazione e luce naturale al corridoio e ai bagni del primo piano.

L’organizzazione degli spazi esterni presenta una suddivisione lineare ma non simmetrica che permette di introdurre alcune variazioni morfologiche e dimensionali: l’unità a ovest è dotata di un giardino a L, quella centrale si affaccia su un giardino di forma rettangolare collegato alla strada da una breve appendice, quella a est presenta invece due giardini separati, uno più grande a L affiancato agli altri e uno più piccolo accessibile dalla zona cucina.

Il vialetto comune sul lato nord, che si estende fino al giardino dell’unità a ovest, conduce agli ingressi delle abitazioni ed è fiancheggiato da ulteriori spazi verdi. Quello sul lato est, che coincide con il lato lungo del lotto, è separato dalla costruzione tramite una fascia di rispetto in cui si alternano due parcheggi esterni perpendicolari alla strada comunale – il cui arretramento permette di ricavare un camminamento esterno alla carreggiata –, un piccolo giardino accessibile dalla zona giorno dell’unità a est, ulteriori quattro parcheggi e, sul lato sud, gli accessi ai giardini. 

Il rapporto tra costruito e spazi aperti dell’intervento di Atelier Rampazzi appare bivalente. A un’organizzazione più schematica delle abitazioni, che derivano da una suddivisione in tre parti uguali di un volume regolare, si contrappone una più articolata organizzazione degli spazi aperti, che prendono origine da questa tripartizione ma poi acquisiscono una propria autonomia, con una scansione per fasce funzionali (un passaggio comune e poi i giardini sul lato nord, un marciapiede e poi i parcheggi e gli accessi ai giardini sul lato est) ricca di variazioni (dalle tre diverse geometrie dei giardini alla sequenza percorso-parcheggio-giardino-parcheggio-accessi sul lato est).

Luogo: 

Pedemonte - Verscio 

 

Committenza: 

Y. Akan, A. Rampazzi 

 

Architettura: 

Atelier Rampazzi, arch. Luca Rampazzi, Losone 

 

Team di lavoro:

 A. Hütter, R.Mazzoni, A. Dolfini 

 

Ingegneria civile: 

ing. Franco Gulisano, Minusio 

 

Impresa: 

Impresa Barra, Ascona 

 

Progetto impianti RVCS: 

Visani Rusconi Talleri, Taverne 

 

Fisica delle costruzioni e acustica: 

CA&A, ing. Marco Migliori, Camorino 

 

Fotovoltaico: 

Elettro Mastai, Riazzino 

 

Geologia

Martinenghi Engineering, ing. Tullio Martinenghi, Cureglia 

 

Fotografia: 

Simone Bossi, Varese (I) 

 

Date: 

progetto 2021, realizzazione 2022-2023 

 

Intervento e tipo edificio

nuova costruzione 

 

Categoria edificio (Ae): 

edifici monofamiliari da 136 m2 

 

Riscaldamento, acqua calda sanitaria

pompa di calore aria-aria per singola unità 

 

Imprese e prodotti: 

EXFABRICA pp. 87

Articoli correlati