Hau­te cou­tu­re in le­gno

L’architetta Aita Flury ha creato un abito su misura in legno di larice, per due nuovi edifici scolastici ad Aarau. Un telaio di listelli verticali e orizzontali, tamponato con due tipi di scandole.

Data di pubblicazione
10-08-2022

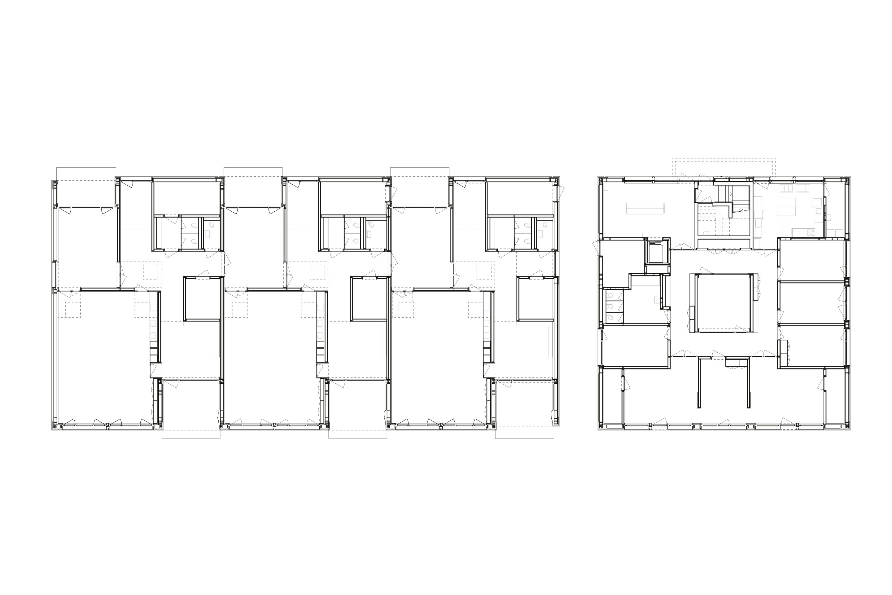
A contraddistinguere i nuovi edifici dell’asilo (KiGa) e del centro diurno (FuSTA) di Aarau Rohr è il loro involucro: la sottile trama delle facciate in legno di larice somiglia a un tessuto. Oltre a caratterizzare le strutture che si trovano in questo luogo piuttosto anonimo, esse rimandano alla sua storia. Infatti fino all’inizio del XX secolo, l’antico villaggio di Rohr – oggi frazione di Aarau – aveva un’economia prettamente agricola. Per lasciare il quartiere bisogna percorrere la Hinterdorfstrasse, sulla quale si affacciano i nuovi edifici. Qui la struttura del villaggio è ancora in parte riconoscibile e la sua storia è testimoniata da vecchi fienili in legno. Gli edifici presenti sono stati costruiti utilizzando tecniche tradizionali, mentre oggi l’edilizia in legno segue regole diverse. La prefabbricazione avanzata, che ha spostato l’attenzione dalla «configurazione -delle parti» al «materiale configurato», ci permette da un lato di pianificare con precisione e di costruire indipendentemente dalle condizioni atmosferiche, dall’altro ci impone di pensare e lavorare in maniera sistematica. Progettare con questi parametri influenza anche la forza espressiva degli edifici.

Esplorare le proprietà dei materiali

Con le facciate realizzate ad Aarau l’architetta Aita Flury ha dimostrato di non subire l’effetto di tali imposizioni, progettando un involucro vibrante, caldo e durevole. L'attenzione si concentra sull’esplorazione delle qualità espressive dei materiali. L’effetto spaziale nasce dal trattamento consapevole del legno in quanto materiale lineare e dalle sue peculiarità costruttive, ossia il legno come strumento architettonico con un’importanza storico-culturale. La configurazione delle facciate non solo assicura proporzioni corrette, ma definisce il nuovo edificio nello spazio e lo rende identificabile. Il tema del tamponamento richiama da un lato la facciata dell'edificio preesistente, in cui una struttura portante di cemento armato è riempita di mattoni, e dall'altro la vecchia palestra, basata su -criteri analoghi. Nei nuovi edifici, il te-laio è formato dai listelli a incastro, che ritmano la struttura delle facciate. I tampo-namenti sono realizzati con pannelli di scandole, mentre il telaio è in resistente legno di larice.

I nuovi edifici completano il complesso della Stäpflischulhaus e, nella loro disposizione, dialogano con i suoi volumi preesistenti, leggermente sfalsati. Insieme agli edifici scolastici, formano un cortile aperto, che costituisce lo spazio esterno dell’asilo ed è delimitato da due casette da giardino, una sul lato ovest e l’altra sul lato est. Il legno di larice delle facciate richiama i vecchi edifici di servizio nelle immediate vicinanze.

Scandole di legno di larice
Le scandole in legno di larice, cosiddetto «legno a grana fine», sono un rivestimento molto resistente agli agenti atmosferici. Non vengono trattate e non marciscono, in quanto la resina di questo albero è una protezione naturale. Vale la pena di ricordare inoltre che i larici crescono principalmente ad alta quota e quindi, di solito, molto lentamente. Le scandole di larice tagliate a macchina sono cucite assieme per formare una struttura chiamata «Blätz», in questo modo si montano le strisce di scandole lunghe circa 80 cm.

L’interazione sapientemente bilanciata tra i pannelli di scandole e il telaio a incastro ricorda la tecnica dell’intarsio degli ebanisti. A sottolineare le gerarchie urbane, due forme diverse di scandole tagliate a macchina: arrotondate sulle facciate anteriori, e piatte sulle facciate rivolte alla strada e al giardino. Allo stesso tempo, il richiamo a trama e ordito delle facciate accentua l’ordine spaziale dei due edifici, creato -proprio dall’involucro in legno di larice. La disposizione delle tre aule dell'asilo e dei relativi locali sopraelevati, così come l'avancorpo del doposcuola, ricorda l’asilo Wiedikon di Zurigo, di Hans Hoffmann e Adolf Kellermann (1928-1932).

Costruzione differenziata

Le strutture semplici e cubiche dell’asilo e del centro diurno sono finemente modulate. L’intelaiatura a incastro enfatizza la cubatura dell’edificio e rende leggibile l’idea di intersezione delle diverse altezze dei locali, soprattutto nell’asilo. Le logge incassate che danno ritmo alla costruzione sono interamente rivestite di scandole e completano l’involucro di legno. Nel centro diurno a due piani, le caditoie e il rivestimento apparentemente continuo dei montanti delle finestre enfatizzano la verticalità della facciata d’ingresso. La struttura scanalata a incastro scandisce i piani e può essere letta come elemento di coronamento della struttura . Sulle facciate dell’asilo, a un piano, si inscrivono con precisione le aperture delle finestre sul lato del cortile e delle gallerie d’ingresso. Altorilievi figurativi in legno – opere dell’artista zurighese Severin Müller – arricchiscono le entrate rivestite di scandole e si integrano con l’involucro dell’edificio.

Il tema del tamponamento, che ha permesso a Flury di configurare le facciate in modo gerarchico, ha richiesto un particolare sforzo di progettazione, poiché per ogni superficie del rivestimento è stato necessario strutturare una diversa stratigrafia. I pannelli di scandole non sono retroventilati, al contrario dei telai che li incorniciano. Dove il rivestimento è verticale per la ventilazione è richiesto un supporto di listoni e controlistoni, per quelli orizzontali è sufficiente una listonatura. Per ogni pannello di facciata sono stati appositamente sviluppati i dettagli di raccordo tra elementi senza sottostruttura per la ventilazione e la sottostruttura semplice e doppia.

La costruzione precisa di tutti i livelli della facciata ha richiesto una straordinaria perizia progettuale, soprattutto per integrare con esattezza tutti gli elementi che compongono le facciate e che contribuiscono alla loro forza espressiva: le lesene in metallo, le opere d’arte, i serramenti metallici di finestre e porte esterne.

Questo articolo è stato pubblicato nel numero speciale «Fassaden | Façades | Facciate – Edifici contemporanei in Svizzera».

Nota

 

1 Rinke M., Krammer M., Architektur fertigen. Konstruktiver Holzelementbau, Zürich 2021, p. 8.

Kiga + FuSTA, Hinterdorfstrasse 2a/2b/2c/4, Aarau

 

Committenza
Comune di Aarau

 

Architettura
Aita Flury, architetto ETH SIA BSA, Zurigo

 

Ingegneria civile
Pirmin Jung Schweiz, Rain

 

Progettazione facciate
Arch. Aita Flury, Zurigo; Pirmin Jung Schweiz, Rain

 

Costruzione facciate
PM Mangold, Ormalingen

 

Progettazione RVCS
Abicht Aarau, Aarau

 

Fisica della costruzione
Pirmin Jung Schweiz, Rain

 

Architettura del paesaggio
Müller Illien, Zurigo

 

Arte nell'architettura
Severin Müller, Zurigo

 

Facts & Figures

 

Concorso, 1° premio
2015

 

Realizzazione
2015-2020

 

Consegna
2020

 

Superficie (SIA 416)
Superficie comples­siva: 1551 m2; superficie utile: 1060 m2

 

Volume (SIA 416)
6629 m2

 

Costi di costruzione
(CCC 2) ca. 7 Mio CHF, (CCC 1-9) ca. 8.2 Mio CHF

 

Materiali facciate
scandole di larice di vario tipo; listelli orizzontali e verticali; finestre in legno-alluminio; telai delle finestre e lesene in alluminio verniciato a polvere

 

Impianto fotovoltaico sul tetto

 

Label energetico
Minergie-Eco

 

Riconoscimenti
«Edificio della settimana»,
Swiss Architects 2020

Magazine

Articoli correlati