CRS – Cen­tro Uli­vo a Ca­dro, Lu­ga­no

Data di pubblicazione
11-02-2019
Revision
11-02-2019

Il ruolo di Croce Rossa Svizzera

di Josiane Ricci

 

La Croce Rossa Svizzera (CRS) è una tra le più importanti organizzazioni umanitarie della Svizzera. Il suo scopo principale è di proteggere la vita, la salute e la dignità umana per un mondo più umano. Essa opera sulla base dei sette principi fondamentali che non devono in alcuno caso essere violati o usati in modo improprio, in quanto costituiscono idealmente e logicamente un tutto coerente: umanità, imparzialità, neutralità, indipendenza, volontariato, unità e universalità. 

La CRS aiuta le persone che vivono in condizioni precarie e che sono a rischio di emarginazione a integrarsi e a partecipare alla vita sociale, promuovendo così la coesistenza specifica. Contribuisce a proteggere la salute delle persone con background migratorio e a facilitare la loro integrazione nella società nonché l’accesso al sistema sanitario mediante informazioni in diverse lingue. 

Tra le molteplici cause da difendere vi è l’assistenza ai rifugiati. È da qui che nasce il forte impegno verso il settore della migrazione.

La Croce Rossa Svizzera - Sezione del Sottoceneri (CRSS) è attiva nell’ambito della migrazione da trent’anni, il primo contratto di prestazione risale, infatti, al 1987. Le strutture attuali in gestione sono 5: il nuovo centro di Cadro (180 posti), il centro di accoglienza a Paradiso (65 posti, famiglie e single adulti), il centro di Camorino (70 posti, uomini adulti) e due Centri per minorenni non accompagnati a Paradiso e a Castione (in totale 76 posti, per ragazzi dai 12 ai 20 anni). Nei centri di CRSS sono presenti 33 nazionalità. Le strutture sono gestite dalla direttrice Josiane Ricci che si avvale di un team di professionisti in differenti ambiti: mediatori culturali, personale socio-educativo-amministrativo, docenti, personale psico-educativo, infermieri, sorveglianti e non da ultimo i preziosi volontari. La CRSS gestisce le strutture su mandato del Dipartimento Sanità e Socialità (DSS) del Cantone Ticino.

 

La presa a carico del migrante nel Centro di accoglienza Ulivo 

La nuova struttura è una tappa importante del riassetto cantonale del settore della migrazione previsto dalle linee direttive della legislatura 2015-2019 con una presa in carico più mirata e focalizzata sull’integrazione che si svolge in due fasi, la prima attraverso i centri collettivi di CRSS e la seconda con l’uscita in appartamento gestita da un altro ente. 

I richiedenti l’asilo beneficeranno di una presa in carico socio-educativa e sanitaria assistenziale che comprende: 

  • corsi di italiano per la vita quotidiana, 
  • corsi di educazione alla vita in Svizzera (sistema educativo, sanitario, differenze culturali, regole di comportamento), 
  • programmi occupazionali, 
  • sostegno psicologico e attività ludico-ricreative. 

Saranno quindi inseriti in un percorso individualizzato discusso e concordato, con valutazioni regolari. I bambini in età scolastica vengono già iscritti nelle scuole comunali e cantonali, in collaborazione con il Dipartimento dell’educazione, della cultura e dello sport. 

Durante la permanenza nel centro, circa 6-9 mesi in dipendenza della situazione individuale, sarà messo in atto un processo strutturato di accompagnamento che comprende fasi di socializzazione e d’integrazione. Con la nuova impostazione l’uscita verso un appartamento potrà avvenire solo se e quando la persona avrà acquisito un buon livello di autonomia e gestione della vita privata. Per questo sarà anche effettuato un bilancio delle competenze che verifica il livello raggiunto in differenti campi attraverso dei criteri misurabili: la padronanza della lingua, le competenze in ambiti diversi, il comportamento e il grado di indipendenza. Una sfida importante che tiene in considerazione due assi fondamentali: la gestione del post-trauma e la formazione. A sostenerli nel loro percorso è infatti cruciale il supporto nella gestione del post-trauma attraverso il sostegno psicologico, al fine di favorire la metabolizzazione degli eventi traumatici vissuti per incrementare il benessere psichico. Senza un equilibrio psichico sensorialmente basato, per i migranti sarà impossibile apprendere, concentrarsi pienamente a scuola o evolvere; questo perché se prima non si permette loro di superare i traumi del passato, nel presente, appunto, tali traumi emergeranno ripetutamente, limitando così ogni forma di apprendimento evolutivo. 

Si punta quindi a potenziare le risorse dei migranti per farle diventare dei mezzi di integrazione e per renderli indipendenti e autonomi in tutti gli ambiti della vita. Aspetti che risulteranno fondamentali affinché loro possano avere un futuro dignitoso senza ricorrere al supporto di prestazioni sociali del cantone.

 

Descrizione funzionale

di Sergio Calori

 

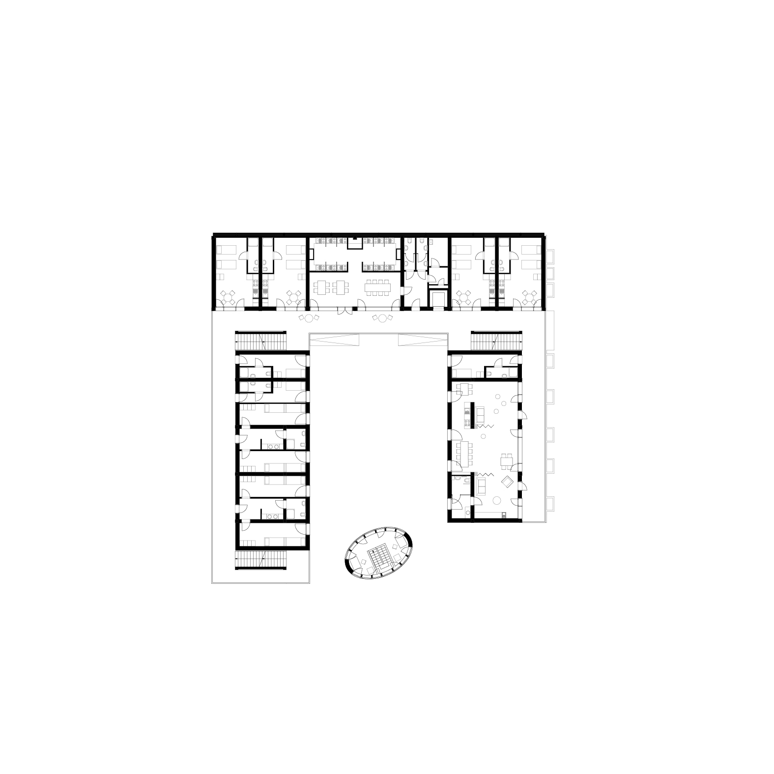
La forma dell’edificio e la suddivisione degli spazi ricorda la tipologia di un convento. 

Spazi esterni di circolazione, «celle» per dormire, spazi comuni come i refettori, locali per l’indirizzo all’integrazione nella nuova realtà, una grande corte con funzione d’aggregazione e una generosa area verde. La corte, fulcro dell’edificio, ha forma di C, ed è schermata a ovest da un manufatto di forma ovale destinato alla sorveglianza. 

L’edificio si sviluppa su quattro livelli fuori terra e una parte parzialmente interrata adibita a lavanderie comuni, depositi e locali tecnici. Le camere hanno diverse tipologie: 4 appartamenti protetti per famiglie a ogni livello; 8 camere con 8 posti ognuna con servizio; 9 camere con 4 posti ognuna con servizio. Al piano terra ci sono 2 camere e un appartamento protetto fruibili da persone disabili. Ogni livello ha uno spazio comune adibito a refettorio/zona ritrovo interna, ognuno di questi è collegato alla zona cucine dove ci sono 12 postazioni di cottura a ogni piano. Al primo piano è stata ubicata una grande sala polivalente per le attività organizzate con il personale. Al piano terreno ci sono gli uffici di gestione del centro, il locale medico e l’infermeria.

 

Descrizione tecnica

La costruzione è stata realizzata prestando particolare attenzione all’aspetto energetico (coibentazione). Il sistema costruttivo è parzialmente prefabbricato. Lo scheletro portante, pilastri e solette, è in beton gettato in opera, mentre i pannelli di tamponamento sono telai di legno prefabbricati, isolati, rivestiti in lamiera ondulata all’esterno e cartongesso all’interno. Le pareti interne, ad eccezione del piano cantina dove sono in silico calcare, sono tutte in cartongesso. I serramenti sono in alluminio con profilo a taglio termico.

 

Luogo: Lugano Cadro
Committenza: Croce Rossa Svizzera Sezione del Sottoceneri, Lugano
Architettura: Sergio Calori Architetto, Lugano
Collaboratori: Cristian Ottonetti, Anna Bernardi, Ernani Gervasoni
Impresa: Ugo Bassi SA, Pregassona
Ingegneria civile: Alessio Casanova, Pazzallo
Progetto impianti RVCS: Visani Rusconi Talleri SA, Taverne
Progetto impianti elettrici: Spinelli SA, Massagno
Fisica della costruzione: Andrea Roscetti, Lugano
Geologia: Studio Luechinger, Pregassona
Progetto serramenti: Esoprogetti SAGL, Lugano
Fotografia: Matteo Aroldi, Pambio
Date: progetto 2013, realizzazione 2016-2017
Certificazione o Standard energetico: conforme al RUEn 2008
Requisito primario involucro dell’edificio (Qh): 73 MJ/m2a (limite 110 MJ/m2a)
Fattore di forma (Ath/Ae): 1,64
Intervento e tipo edificio: nuova costruzione
Categoria edificio (Ae): abitazione plurifamiliare, 2189 m2
Riscaldamento e acqua calda sanitaria: 100% caldaia a gas a condensazione, potenza a 80/60 °C 39-185 kW, grado di rendimento normalizzato a 75/60 °C 107,2/96,6%

Articoli correlati