Un gio­co di ri­man­di

A Leysin (VD) meier + associés architectes ha realizzato un centro didattico e ostello. Grazie al sottile disegno della facciata, lo sguardo degli ospiti della struttura viene indirizzato sul panorama mozzafiato dei Dents du Midi.

Data di pubblicazione
09-10-2023

Quando dal capolinea della ferrovia a cremagliera di Leysin-Feydey s’imbocca la strada in salita e si supera la prima curva, si vede immediatamente il centro «Les Cabris». Lo sguardo è catturato dalla facciata in legno scuro scandita verticalmente da una sequenza di articolate sporgenze volumetriche, un disegno che come un’eco ritorna una volta entrati nella struttura, negli spazi comuni in cui le finestre a tutta altezza mettono gli ospiti di fronte al panorama impareggiabile delle Alpi con i Dents du Midi e le loro sette cime. Un’arguzia sottile pervade questo gioco di rimandi ottici tra la facciata e la montagna. L’intenzione degli architetti era posizionare le grandi finestre che incorniciano le vette, ad angolo acuto rispetto all’allineamento dell’edificio, orientandole così verso il panorama in modo che agli ospiti bastasse girarsi leggermente per godere al meglio dello spettacolo naturale.

Dormire a nord, mangiare a sud

Il paese di Leysin sorge a 1253 m s.l.m., a nord-est del capoluogo del distretto di ­Aigle. Ai primi del Novecento la località era un centro di cura, con numerosi sanatori anche per bambini. Nel periodo di maggiore affermazione di questo genere di terapia, sullo scosceso pendio si contavano fino a ottanta edifici di cura. Alla fine della seconda guerra mondiale, la scoperta degli antibiotici per il trattamento delle infezioni polmonari ebbe pesanti ripercussioni economiche su Leysin. Alcuni dei grandi alberghi e centri di cura chiusero, sostituiti da scuole come ad esempio: l’American College of Switzerland e la Leysin American School.

Questo articolo è apparso nella pubblicazione speciale «Città in legno – Hotel e strutture i in legno per il tempo libero». Altri articoli sul legno sono raccolti nel dossier digitale.

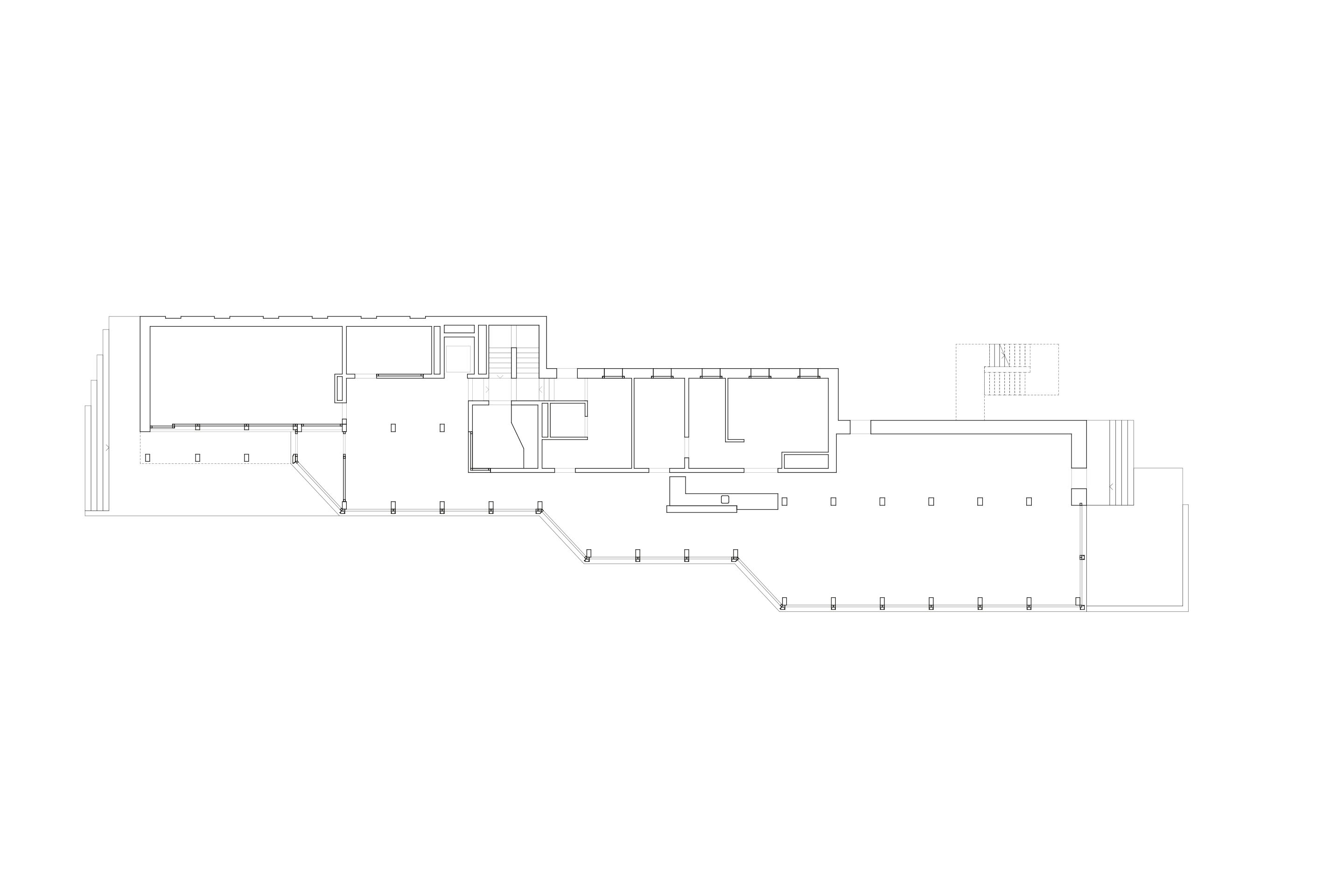
Il centro didattico alpino di meier + associés architectes occupa tutta la lunghezza del lotto, con le sue sale comuni vetrate su tre piani. Se nei vecchi sanatori l’orientamento sud della facciata principale garantiva un’esposizione solare ottimale alle camere affacciate sulla valle e precedute da verande, qui a essere rivolti a sud sono gli spazi comuni. Gli spazi liberi creati dagli arretramenti della facciata al piano terra e al piano superiore offrono una varietà di utilizzi sia per chi frequenza i campi di sci sia per gli insegnanti che partecipano a corsi di formazione. Sul retro rivolto verso il bosco, ai piani superiori si affacciano le venticinque camere strette e lunghe da cento posti letto; altre dieci camere singole guardano a est. Nella maggior parte delle stanze l’arredamento è in legno, con ripiani e letti a castello inseriti nei lati lunghi.

La facciata e la luce

L’edificio ha una struttura dal ritmo uniforme, in cui la suddivisione degli spazi è affidata a travi e montanti prefabbricati; l’interno è quasi interamente in abete locale con una velatura bianca. Quanto ai materiali impiegati, accanto al legno chiaro del pavimento dell’ingresso, troviamo i ciottoli del Rodano integrati nel pavimento a terrazzo della sala pranzo, e il cemento delle pareti. A tutela di possibili rischi valanghivi, il basamento, la tromba delle scale e il seminterrato sono stati realizzati in calcetruzzo. In un ambiente cielo-terra, simile a un pozzo con finestre su due lati, è stata realizzata una palestra per il bouldering.

A detta degli architetti, a ispirare la facciata è stato il lavoro del pittore francese Pierre Soulages, al centro del quale gli esperimenti non si concentravano sul colore, ma sugli effetti della luce sul colore; infatti, l’incidenza della luce sul rivestimento nero ne modifica la consistenza e l’espressione, innescando un gioco tra materiali e riflessi. Il colore tra l’altro ricorda quello dei vecchi chalet in legno annerito dal sole ai margini del bosco. Di qui il nome «Chemin du Chalet Noir» del sentiero che si snoda dietro al centro didattico alpino.

Partecipanti al progetto

 

Committenza
Alain Moser, Scuola Moser, Ginevra

 

Architettura
meier + associés architectes, Ginevra

 

Gestione del sito
CW Architectes, Sion

 

Ingegneria civile
structurame, Ginevra

 

Ingegneria RV
SB Technique, Ginevra

 

Ingegneria eletrotecnica
Guerin Guinnard, Vionnaz

 

Acustica
d’Silence Acoustique, Losanna

 

Geotecnica
Gadz, Ginevra

 

Edificio

 

Superficie utile (SIA 416)
1660 m2

 

Volume
5686 m3

 

Certificato
Label Legno Svizzero

 

Premio
2. Prix de l’Immobilier Romand, 2022

 

Legno e costruzione

 

Facciata
856 m2 di abete bianco (Svizzera)

 

Struttura portante
legno lamellare, GL24H abete rosso (Giura), 1350 m2

 

Date e costi

 

Concorso su invito
2018

 

Realizzazione
2020-2021

 

Montaggio struttura in legno
4 settimane

 

Costi legno (CCC 214)
620 000 CHF

Articoli correlati