Cen­tro Po­lis, Pre­gas­so­na

Data di pubblicazione
21-10-2022

Il nuovo Centro polifunzionale di Pregassona si inserisce in un tessuto urbano caratterizzato da isolati residenziali di medie dimensioni alternati ad ampi spazi verdi, ai piedi del Monte Boglia. La particolare attenzione alle specificità del luogo ha ispirato le scelte progettuali volte a favorire l'inserimento rispettoso della volumetria nel paesaggio costruito, chiarendone l'identità, la funzione pubblica e il carattere sociale.

L'apertura del centro ha rappresentato un'importante occasione di riqualificazione del comprensorio grazie alla realizzazione di spazi pubblici attrezzati e un parco giochi fruibili dalla popolazione, allo scopo di promuovere il dialogo tra l'edificio e il suo intorno. Sfruttando la naturale pendenza dell'area in direzione est-ovest, si è ottenuta una separazione dei flussi riservati alle diverse utenze attraverso la realizzazione di accessi differenziati a più livelli: al piano terreno, dalla via Bozzoreda, è stato previsto l'ingresso al pubblico; al livello del parco, in corrispondenza del piano giardino, trova collocazione quello secondario dedicato prevalentemente al personale e ai visitatori provenienti dal posteggio ubicato lungo il confine ovest del sedime; lungo la via Vedreggio, sempre al piano terreno, si raggiunge il centro diurno e gli uffici amministrativi del LIS (Lugano Istituti Sociali).

Il piano terra accoglie le funzioni amministrative, quelle a maggior carattere pubblico e di incontro con i parenti (bar e soggiorno) oltre agli spazi comunitari (sala da pranzo, soggiorno, locale animazione, coiffeur e locale per le funzioni religiose) e agli ambienti dedicati alle attività fisioterapiche e sensoriali. Dal medesimo livello si può accedere alla corte esterna protetta, pavimentata e attrezzata con sedute per la sosta all'aria aperta, ma anche al centro diurno (lato strada) dimensionato per accogliere un totale di diciotto anziani che dispongono di un proprio locale animazione, di una sala da pranzo e dell'infermeria. Quest'area, totalmente indipendente rispetto all'intero complesso, ben si presta a essere anche utilizzata, in caso di eventi pandemici, per separare i pazienti infetti dal resto della struttura. Completa il piano un ambulatorio pediatrico a servizio dell'asilo collocato alla quota giardino. I piani primo e secondo sono dedicati alle unità abitative con i soggiorni comunitari, i locali visita e di supporto infermieristico, e i bagni assistiti. Al primo livello quattordici posti letto sono riservati alle cure palliative, mentre al secondo è stato ubicato il reparto Alzheimer con trentuno posti letto organizzati in camere singole e doppie con l'accesso al «giardino protetto». A quota giardino, sono concentrati gli spazi tecnici a servizio del centro polifunzionale: l'accesso per i rifornimenti quotidiani, l'autorimessa, le centrali termiche ed elettriche, radiologia, il locale lavanderia, i vari depositi generali di materiale sanitario e anche un asilo nido in grado di accogliere ventisei bambini e dotato di un'area giochi all'esterno.

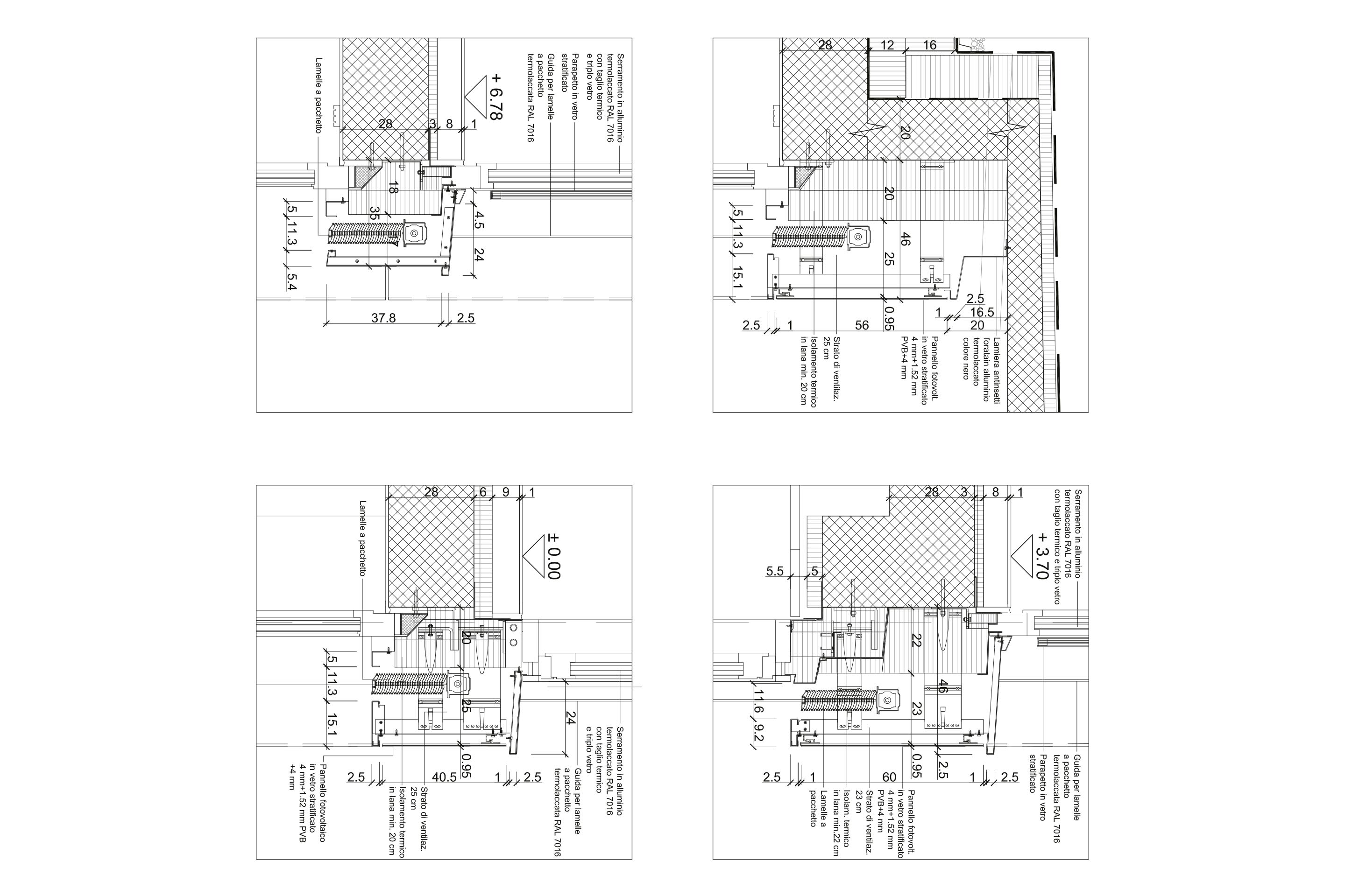
Le scelte architettoniche si differenziano in relazione alle diverse funzioni: al livello del piano terreno le grandi vetrate esterne, le ampie dimensioni degli spazi e le finiture esprimono il carattere pubblico dell'edificio; ai piani superiori, le superfici più contenute dei serramenti, la modularità dei locali e i materiali adottati imprimono un carattere più domestico e residenziale agli spazi.

Una delle peculiarità dell'edificio è l'autoproduzione di energia elettrica grazie ai pannelli fotovoltaici in copertura e alla «pelle» in vetro stratificato temperato con finitura satinata di colore grigio che riveste l'intera superficie dei prospetti e che permette la completa mimesi delle celle solari inserite all'interno dei pannelli. Il Centro Polis vanta attualmente il più grande impianto fotovoltaico integrato in facciata del Cantone Ticino e uno dei maggiori dell'intera Svizzera con una potenza installata di circa 170 kilowatt, pari a una superficie di oltre 1.600 metri quadrati.

Luogo
Lugano, Pregassona

 

Committenza
Città di Lugano

 

Architettura
Vincitore concorso d’architettura: Studio Mario Campi SA, Lugano; Sviluppo e rielaborazione architettonica: Studio Rosario Galgano, Lugano

 

Collaboratori
S. Capoferri

 

Ingegneria civile
Afry Svizzera SA, Rivera

 

Progetto impianti RVCS
Visani Rusconi Talleri SA, Lugano

 

Progetto impianti elettrici
Scherler SA, Lugano

 

Fisica delle costruzioni e acustica
Ecocontrol SA Locarno, Lugano

 

Fotovoltaico
AIL SA, Muzzano; Alsolis SA, Mendrisio

 

Geologia
Pedrozzi & Associati SA, Lugano

 

Progetto facciate
Andrea Compagno, Consulenza e progetto facciate, Lugano

 

Fotografia
Alessandro Rabaglio, Lugano

 

Fotorender
Fabio Renier, Chioggia (I) Impresa: Cosorzio GarDe, Lugano

 

Date
concorso 2009, progetto 2010-2015, realizzazione 2018-2021

 

Pianificazione energetica
Ecocontrol SA Locarno, Lugano

 

Certificazione o Standard energetico
Minergie TI-358

 

Intervento e tipo edificio
costruzione nuova

 

Categoria edificio, (Ae)
scuole 408 m2; ristoranti 586.1 m2; ospedali 8629.2 m2

 

Fattore di forma (Ath/Ae)
0.92

 

Riscaldamento e acqua calda
50% cogenerazione a gas; 50% caldaia a gas

 

Elettricità
fotovoltaico 260 kWp, non inserito nella certifcazione Minergie

 

Requisito primario involucro dell’edificio
21.5kWh/m2a (limite 26.4kWh/m2a)

 

Indice Energetico Complessivo (da certificazione)
48.6 kWh/m2a (limite 67.2kWh/m2a)

 

Particolarità
La produzione di calore per il riscaldamento e per l’acqua calda sanitaria è garantita da un impianto di cogenerazione a gas (UFC a gas). L’impianto prevede anche una caldaia a gas che affianca l’unità principale quando l’edificio richiede un picco di potenza. La distribuzione del calore per il riscaldamento avviene per mezzo di serpentine a pavimento e, dove esse non sono istallate, si fa capo a radiatori. L’edificio è climatizzato da una macchina raffreddante che garantisce la produzione del freddo necessario. La distribuzione del freddo avviene tramite batterie del freddo inserite nei monoblocchi di ventilazione e tramite ventilconvettori dove il fabbisogno lo richiede (piano terra). In tutti i locali di soggiorno è prevista l’immissione d’aria fresca. Nell’edificio sono presenti 9 monoblocchi di ventilazione con recupero di calore che garantiscono il ricambio igienico dell’aria. L'acqua calda sfrutta parzialmente il recupero di calore dalle celle frigorifere

Articoli correlati