Ban­ca Raif­fei­sen, Lu­ga­no

Rinnovare e risparmiare

Data di pubblicazione
29-08-2023

Con il progetto della nuova sede Raiffeisen di Lugano, oltre al rinnovamento dell’immagine della banca, si voleva migliorare l’efficienza energetica dell’intero immobile e riorganizzare gli spazi interni accrescendo il comfort dei dipendenti. Per l’efficientamento dell’involucro sono stati sostituiti i serramenti e si è realizzato un cappotto esterno a protezione della parte muraria. Lo stabile si affaccia su uno degli assi più trafficati della città; il piano terra porticato sulla strada accoglie la clientela, il primo piano è allineato agli edifici esistenti, gli altri cinque livelli racchiusi in un compatto volume cubico sono arretrati rispetto al fronte stradale.

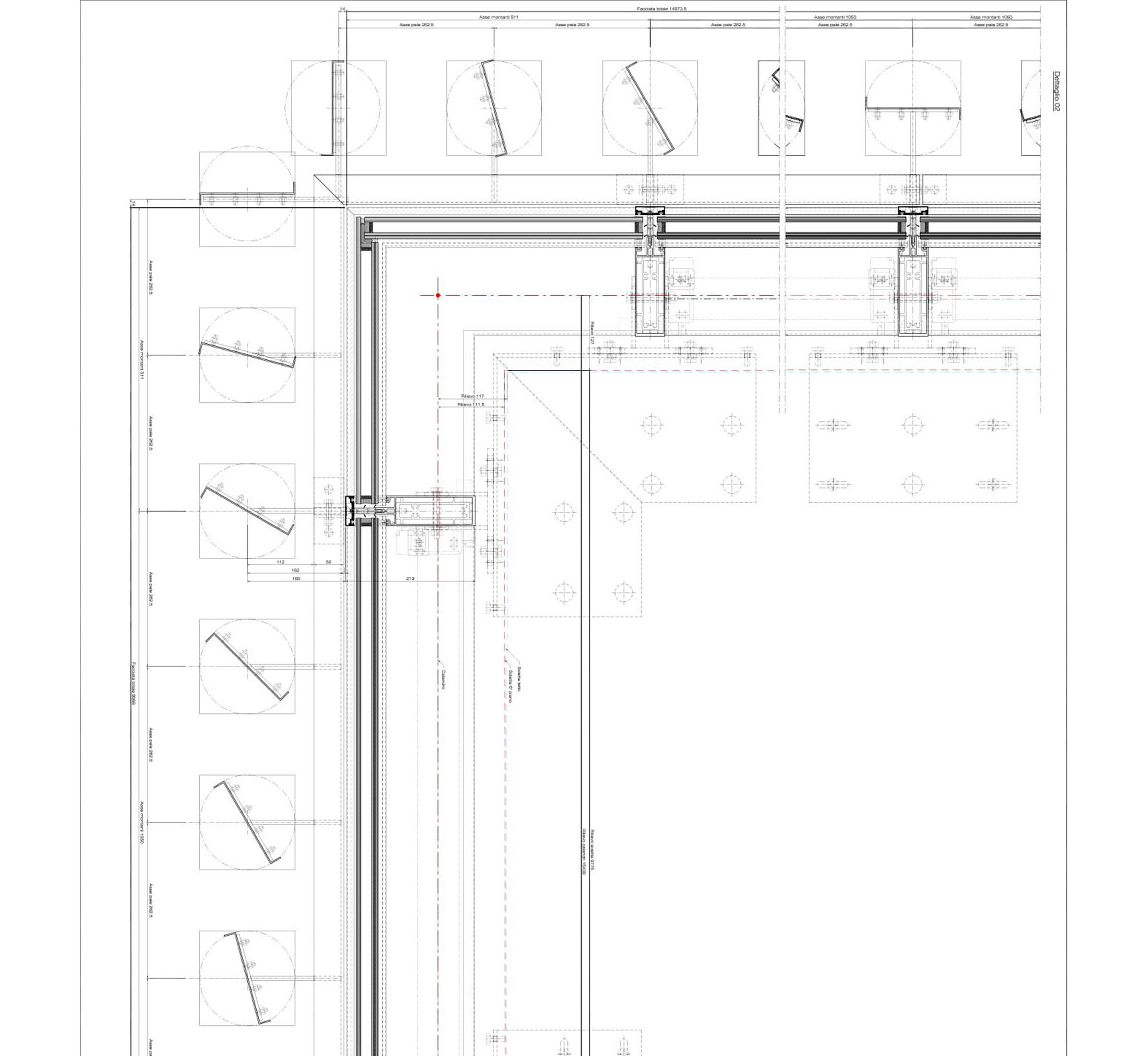
Le aree destinate unicamente ai collaboratori sono organizzate come degli openspace, così da poter favorire un’interazione senza barriere architettoniche. Le vetrate delle facciate sono protette da un secondo involucro formato da lamelle verticali microforate, che ruotano sui propri assi per reagire alle condizioni climatiche esterne; offrono privacy all’intero, ma al contempo permettono la vista sulla città. Il cubo di vetro, senza schermature, posto all’angolo tra due fronti, caratterizza formalmente il volume e mette in contatto visivo continuo l’interno e l’esterno. La facciata cieca rivolta a est è stata pensata come un giardino verticale, in linea con la politica di sostenibilità della banca

Luogo
Lugano

 

Committenza
Banca Raiffeisen Società cooperativa, Lugano

 

Architettura
JPA Antorini Architetti Sagl, Viganello

 

Architettura del paesaggio
Benicchio Giardini, Lamone

 

Impresa
CSC Impresa Costruzioni SA, Lugano

 

Ingegneria civile
Studio d’ingegneria Emilio Luvini Sagl, Agno e Luigi Tunesi ingegneria SA, Lugano

 

Costruzione facciata e protezione solare
Maturi & Sampietro SA, Mezzovico

 

Progetto impianti RVCS e soffitti radianti
Bouygues Energies & Services Svizzera SA, Manno

 

Fisica della costruzione
Tecnoprogetti SA, Lugano

 

Progetto RVCS
Jelmini SA, Bellinzona

 

Progetto impianti elettrici
Elettroconsulenze Solcà SA, Lugano

 

Impianto domotica e video sorveglianza
Siemens Svizzera SA, Camorino

 

Progetto impianto fotovoltaico
Spinelli SA, Massagno

 

Tipologia di impianto fotovoltaico
modulo monocristallino JA Solar da 405 Wp, potenza 23.49 kWp, produzione annua ca 24’000 kWh

 

Fotografia
Alain Intraina, Arbedo; Andrea Pavan, Masera (I)

 

Date
realizzazione 2022

Magazine

Articoli correlati