Il Cen­tro Sci Nor­dico a Cam­pra

Durisch + Nolli Architetti

Un edificio che aspira a integrarsi in modo naturale nel paesaggio grazie a un intervento minimale che si avvale di soluzioni costruttive lignee innovative non solo a livello ticinese, ma anche internazionale.

Date de publication
09-12-2019
Stefano Miccoli
Ingegnere civile POLIMI, assistente alla cattedra di strutture all’AAM, dottorando all’Università di Granada

Situato in un paesaggio magnifico dalle caratteristiche tipicamente nordiche, il Centro è la struttura più attrezzata delle Alpi svizzere per lo sci di fondo. Immerso nella natura, in estate offre innumerevoli possibilità di escursioni. La piana di Campra costituisce un contesto fluviale e palustre d’importanza nazionale e in quanto tale tutelata a livello federale.

Leggi anche l'articolo sul Centro da «Città in legno» 5/2019

La struttura è cresciuta a partire dagli anni Settanta attorno al primo rifugio dello Sci Club Simano con l’aggiunta di numerose costruzioni precarie nell’arco degli ultimi quarant’anni.

La valorizzazione del contesto con un nuovo edificio ­capace di integrarsi in modo naturale nel paesaggio, esprimendo l’essenza del luogo, è il tema principale e portante del progetto. Il nuovo edificio ricettivo trova un equilibrio per­fetto in sostanziale armonia e sintonia con quanto lo circonda, grazie a un intervento minimale, quasi di agopuntura. Questo rispettoso intervento rafforza l’essenza del luogo in cui il nuovo edificio si pone come discreto landmark.

La nuova struttura ricettiva è un elemento compatto e preciso al posto delle preesistenze, tiene conto della morfologia naturale del terreno, occupando quella porzione di territorio già alterata dal punto di vista naturalistico. Le preesistenze effimere presentano un carattere dal quale trarre spunto per l’inserimento di un moderno edificio caratterizzato da prefabbricazione, modularità, semplicità costruttiva, utilizzo di materiali tipici come il legno.

Il nuovo edificio ricettivo

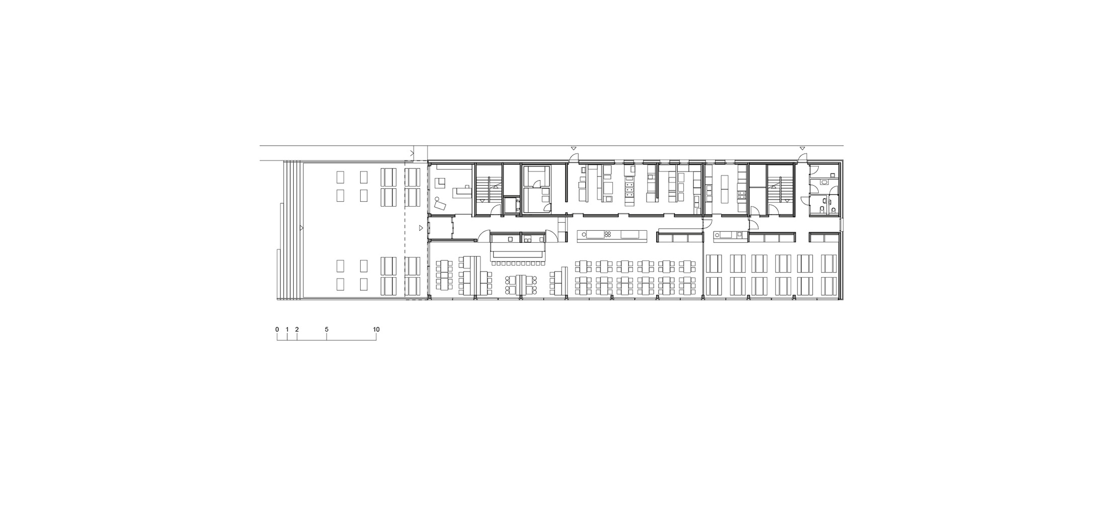
Il dislivello naturale del terreno è ripreso da uno zoccolo in calcestruzzo che contiene tutti i servizi e le infrastrutture funzionali all’utilizzo delle piste di fondo e della pista di ghiaccio nel periodo invernale, oltre ai servizi, alle centrali tecniche e alle infrastrutture legate all’esercizio della ristorazione e dell’albergo.

Lo zoccolo in calcestruzzo fuoriesce dal terreno a ovest e si presenta con la grande terrazza del ristorante, che è anche terrazza di accesso che degrada con ampi scalini verso il posteggio.

Su questo zoccolo in calcestruzzo è posta la struttura ricettiva in legno, che ospita al piano terreno, oltre all’atrio di entrata per il pubblico e le cucine, il ristorante e il refettorio che, grazie a un sistema di pareti mobili, possono essere modulati fino a formare una grande sala per eventi speciali.

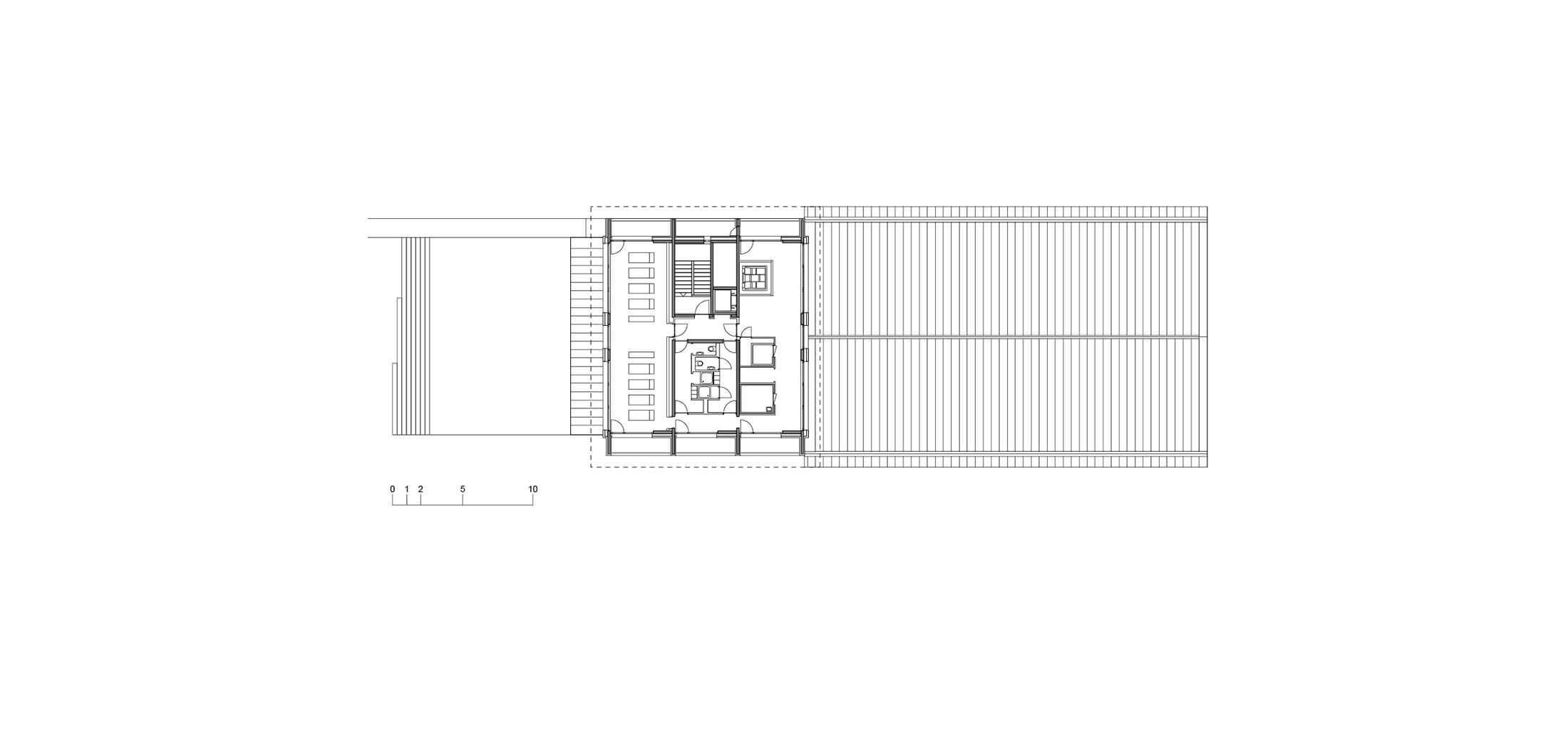
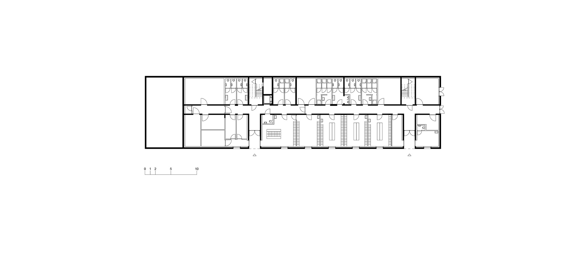
Tutte le camere sono disposte al primo piano secondo un modulo regolare e preciso, in modo da permettere una gestione ottimale delle differenti tipologie di utenze, con una chiara ma flessibile distinzione tra la parte «qualità» e la parte «quantità».

La testata ovest dell’edificio è rafforzata nella sua espressione verso la strada del Lucomagno da un piano ­supplementare che ospita la spa.

L’edificio si contraddistingue per la sua modularità e per la razionalità strutturale e costruttiva che ne deriva. ­Tutto l’edificio è costruito su un modulo di 4.6 m che corrisponde al modulo delle camere. Questo sistema permette una razionalizzazione estrema della costruzione, che è così ridotta a pochi elementi base, facilmente eseguibili in officina per poi essere assemblati in breve tempo sul posto.

L’uso del legno come materiale da costruzione garantisce ottime caratteristiche ambientali ed energetiche a favore di un’ampia sostenibilità del nuovo insediamento.

La costruzione a secco può essere facilmente smon­tata e il legno smaltito e riutilizzato senza conseguenze  ecologiche.

Considerazioni sulla struttura

di Stefano Miccoli

La struttura portante dell’edificio ha subìto una modifica importante in corso di progettazione. In fase preliminare si era optato per una soluzione più tradizionale, e alla portata di un maggior numero di falegnamerie anche locali, costituita da tralicci in legno. L’intervento in fase esecutiva, per la progettazione strutturale delle parti in legno, dello studio Borlini & Zanini di Lugano, ha sostituito i tralicci con una struttura a pannelli multistrato XLAM sia per le pareti che per i solai, una tipologia strutturale in fase di grande diffusione, ma che ha costretto a rivolgersi a imprese austriache, leader indiscusse del settore.

Le pareti XLAM del secondo e del terzo piano sfruttano gli appoggi delle pareti e dei pilastri del primo per creare uno sbalzo su entrambi i lati dell’edificio. In corrispondenza dei punti di appoggio, dove si hanno le massime concentrazioni di sforzi, vengono inseriti degli elementi in legno microlamellare di faggio, sia per garantire la resistenza che per contenere le deformazioni, scelta che ha permesso di evitare di inserire elementi metallici. Il microlamellare di faggio è usato anche per la trave inserita per riprendere il carico di un pilastro in falso che nasce sopra di essa e riportarlo ai punti di appoggio della stessa trave. Le pareti XLAM permettono sia di appoggiare che di appendere i solai, e vengono usate anche per i vani scala, incapsulate sui sei lati per ragioni di sicurezza antincendio.

Aspetto assolutamente innovativo, nei pannelli XLAM usati per la copertura dell’edificio che rimangono esposti alle intemperie, lo strato più esterno è realizzato in legno di larice al posto del legno di abete, per garantire una durabilità maggiore.

L’appensione dei solai alle pareti, l’incapsulamento delle pareti dei vani scala, che hanno delle parti esterne a sbalzo, i pannelli XLAM con strati misti di abete e larice, sono soluzioni innovative non solo a livello ticinese, ma anche a livello svizzero e internazionale.

Luogo Campra
Committenza Centro Sci Nordico, Campra
Architettura Durisch + Nolli Architetti, Massagno
Collabo­ratori P. Durisch, A. Nolli, F. Nozzi, A. Mazzieri, S. Mauri, N. Nessi, G. Strano
Direzione lavori AM-T Architettura, Biasca
Impresa Ennio Ferrari, Lodrino
Ingegneria civile Fürst Laffranchi Bauingenieure, Aarwangen (concorso); Reali e Guscetti Studio d’Ingegneria, Quinto (progetto e realizzazione)
Progettista struttura in legno A. Bernasconi, Borlini & Zanini, Lugano
Progetto impianti RVCS Visani Rusconi Talleri, Taverne; Technoswiss, Acquarossa; Rigozzi Engineering, Giubiasco
Progetto impianti elettrici Tecnoprogetti, Bellinzona
Fisica della costruzione Evolve, Giubiasco
Specialista antincendio Studio d’ingegneria Marco Küng e Giovanni Villa, Biasca
Fotovoltaico Visani Rusconi Talleri, Taverne
Acustica Evolve, Giubiasco
Illuminotecnica Tecnoprogetti, Bellinzona
Fotografia Tonatiuh Ambrosetti, Penthalaz; Giorgio Marafioti
Date concorso 2013, progetto 2015-2017, realizzazione 2017-2019
Pianificazione energetica Evolve, Giubiasco
Standard energetico Minergie, 2016 TI-506
Intervento e tipo edificio: nuova costruzione
Categoria edificio, (Ae) livello –1, impianti sportivi 446.3 m2; livello 0, ristorante 584.3 m2; livello +1, abitazione plurifamiliare 589 m2; livello +2, piscine coperte 202.2 m2; totale 1821.8 m2
Fattore di forma (Ath/Ae): 1.25
Riscaldamento, Acqua calda sanitaria Pompa di calore geotermica 51%, Solare termico 29%, Caldaia a gas a condensazione 20%
Acqua calda Come riscaldamento + 2 bollitori di accumulo con capacità totale di 5000 litri alimentati da collettori solari termici. PdC 10%, Solare 70%, Gas 20%
Requisito primario involucro dell’edificio 46 kWh/m2a (valore limite 47.8 kWh/m2a)
Indice Energetico complessivo (da certificazione): 34.9 kWh/m2a (valore limite 36.9 kWh/m2a)
Particolarità l’impianto prevede l’installazione di una pompa di calore geotermica con potenza termica di 60 kW abbinata all’impianto solare termico. Di supporto per la copertura degli eventuali picchi di fabbisogno energetico straordinari e per back-up si prevede l’installazione di una caldaia a gas a condensazione con potenza di 150 kW.
È prevista l’installazione in copertura di un impianto solare termico con una superficie di 100 m2. Il calore prodotto sarà utilizzato sia per il riscaldamento che per la produzione dell’acqua calda sanitaria, per cui sono stati previsti 2 bollitori di accumulo con capacità totale di 5000 litri alimentati dai collettori solari termici.

«Archi» 6/2019 può essere acquistato quiQui puoi invece leggere l'editoriale con l'indice del numero.

Étiquettes

Sur ce sujet