Mu­sic Box: Ein Haus für Klang und Mu­sik

In Luzern steht seit Frühling 2019 unweit des Zentrums und der Altstadt ein Haus für Musikstudierende. Der fünfgeschossige Bau  ist von A bis Z auf deren spezielle Bedürfnisse ausgerichtet.

Date de publication
28-08-2019

Der kantige Holzbau verrät nach aussen nichts von seinem klingenden Innenleben. Nahe der Reuss liegt der Bau inmitten einer von Bäumen und Gärten dominierten Umgebung.

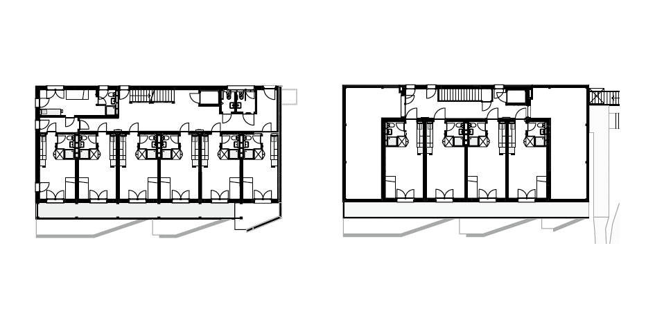
Erst wer dort eintritt, erlebt die Eigenheiten des Bauwerks: Auf insgesamt fünf Stockwerken finden sich 27 Studios, jedes mit Nasszelle und Kleinstküche ausgestattet, Proberäume und eine Lobby als Konzertsaal. Alles dient dem Studium der Musik und zwar mit allem, was dazugehört, also vor allem üben, üben, üben – mit Pauken und Trompeten, mit Viola und Bass, sogar mit dem lauten Konzertflügel. Und das Schöne daran: Niemand stört sich am akustischen Geschehen, ganz im Gegenteil. Das Haus wurde einzig zu diesem Zweck geplant und gebaut und heisst deshalb «Music Box».

Einfache Idee mit komplexem Hintergrund

Die Idee zu dieser Music Box stammt von Urban Frye, einem Luzerner Kulturwissenschaftler und Politiker. Frye war einst selber Musiker und kennt die Sorgen und Nöte angehender Jünger der Tonkunst. Zwar verfügt die Musikschule Luzern über Proberäume, doch oft sind diese ausgebucht und längerfristig belegt. Frei von Terminzwang musizieren zu können, ohne den Nachbarn auf die Nerven zu fallen, das ist der eigentliche Zweck des Gebäudes.

Vor rund 15 Jahren konnte Urban Frye das Grundstück kaufen, denn der Kanton Luzern hatte damals auf ein dort geplantes Stras­senprojekt, einen vierspurigen Autobahnanschluss, verzichtet. Jetzt ist zwar erneut die Rede davon, dieses Projekt namens «Spange Nord» zu verwirklichen – indes erst im Jahr 2032. Frye hat deshalb eine temporäre Baubewilligung erhalten und den Bau so geplant, dass er ab- und wiederaufbaubar ist. Allerdings ist Frye zuversichtlich, dass die Music Box an diesem Standort ein längeres Leben haben wird.

Pragmatische Architektur

Der Hauptzugang liegt im 2. Obergeschoss, eine schlichte Tür, markiert mit der kleinen Figur eines Klarinettisten aus Metall. Zudem befindet sich hier ein geräumiger Gemeinschaftsraum mit Bühnenpodest, Konzertflügel und einem Office mit kleiner Küche und Kühlschrank. Die Südseite weist in jedem Stockwerk laubengangartige Balkone auf, eigentlich als Fluchtwege vorgeschrieben. Im Attikageschoss liegen nur vier Studios, dafür kopfseitig je eine gedeckte Terrasse, hangseitig mit Pingpongtisch für laute Aktivitäten, flussseitig mit Hängematten und Sitzgelegenheiten für stilles Sein. Sämtliche Stockwerke sind mit einer geradeläufigen Treppe und einem Personenlift erschlossen.

Speziell ist das Untergeschoss, dessen vier Studios sich zum Garten öffnen. Wo nach Bauvorschrift für jedes Studio ein Kellerabteil liegen sollte, dient stattdessen ein 43 m2 grosser, mit Flügel und Schlagzeug ausgestatteter Raum als Übungslokal und Aufnahmestudio. Sogar ein winziger Regieraum steht zur Verfügung.

Planung und Bau mit dem Initianten

Die Studios bestehen aus einem ­kleinen, funktional eingerichteten Wohn- und Arbeitsraum, einer Klein­küche beim Eingang, Schrank und Dusche mit WC. Kein Keramikbelag, sondern bloss wasserfeste Platten schützen die Holzwände der Nasszellen und Küchen. Der graue Teppichboden ist ebenfalls nicht zufällig gewählt, er schlucke bis zu 20 Dezibel, erklärt Frye und merkt an, eigentlich weise das Ganze quasi SAC-Hüttenstandard auf. Urban Frye hat die Music Box auf eigene Kosten geplant und bauen lassen, Kostenpunkt rund 3.5 Millionen Franken.

Nicht ein Architekturprojekt stand Pate für das Haus, sondern ein gemeinsam mit einer Gruppe von Musikstudierenden detailliert formuliertes Nutzungskonzept mit daraus folgenden klaren Randbedingungen. Frye hat die Arbeiten gemeinsam mit den Unternehmen und Spezialingenieuren konzipiert und koordiniert, Architekt Markus Heggli stand ihnen beratend zur ­Seite. So gaben immer zuerst die Bedürfnisse der späteren Nutzer die Leitlinien und formten das Ganze.

Frye sieht das Gebäude als soziales Experiment ohne Hausordnung. Es gibt im und um das Haus «soziale Zonen», wie Frye es nennt: Grillplätze, Orte für Gespräche, aber auch Raum für gemeinsames Musizieren. Einzelne Regelungen für das Zusammenleben können sich mit der Zeit ergeben, aber ansonsten wird sich die Hausgemeinschaft selber organisieren und zusammenraufen.

Ökologie und Wirtschaftlichkeit

Beim Bau der Music Box wurde besonderer Wert auf ökologisch nachhaltige und energieeffiziente Mate­rialien gelegt. Wichtigster Rohstoff für das Gebäude ist Holz, es handelt sich um einen Holzsystembau mit Elementen. Die Teile sind verschraubt und demnach zerlegbar. Für den ­gesamten Aufbau wurde zertifiziertes heimisches Fichten- und Tan­nenholz aus nachhaltiger Bewirtschaftung eingesetzt. Insgesamt wurden rund 337 m³ Holz ­verbaut – das bindet rund 340 t CO2. Als Trennwände dienen aus Altpapier produzierte Gipsfaserplatten. Die Montage des Rohbaus mit seinen 324 Wand- und Deckenelementen dauerte bloss zwei Wochen.

Für die Aussenwände waren keine zusätzlichen Massnahmen bezüglich Schalldämmung notwendig. Hingegen wurden die raumtrennenden Innenwände von Studio zu Studio als Doppelkon­struktion ausgeführt, jene von den Zimmern zum Korridor mit Vorsatzschale. Die Steigleitungen usw. sind mit zusätzlichen Vorsatzschalen auf der Mehrschichtplatte schalltechnisch optimiert. Die Dämmung zwischen den Geschossen gewährleisten eingelegte Zementgartenplatten, auch hier fällt ein späteres Zerlegen leicht.

Eine Photovoltaikanlage auf dem Dach (140 m2) deckt 70 % des Strombedarfs. Als Heizung dient eine Luft-Wärme-Pumpe, die über die Solaranlage betrieben wird – also ohne fossile Brennstoffe zur Wärmeerzeugung. Eine Steuerung optimiert den Energieverbrauch der Heizung. Die Luft-Wärme-Pumpe ist nur in Betrieb, wenn die Sonne scheint, und erwärmt das Wasser im Speicher für die Heizung.

Auch diese Anlagen könnten leicht abgebaut und an einem neuen Standort wieder aufgebaut werden. Einzig die Betonwanne, in die das Gebäude wegen seiner Hanglage gestellt werden musste, wird als Ganzes kaum wiederverwendbar sein. Ansonsten könnte nahezu die gesamte Music Box an einem neuen Standort wieder aufgebaut werden.

Die Music Box wird zum Hotspot im Quartier

Entstanden ist damit mehr als bloss ein weiteres Gebäude. Die Music Box beruht auf einem ungewöhn­lichen und zukunftsträchtigen Konzept, geplant mit den künftigen Bewohner und Bewohnerinnen, realisiert mit dem Ziel einer langfristigen Nutzbarkeit als Hort für künftige Musiker. Bereits jetzt strahlt das Haus mit den darin stattfindenden Aktivitäten ins Quartier aus. Kleine Hauskonzerte für Jugendliche, Konzerte, auch in der nahe gelegenen St. Karli-Kirche, stossen auf Inte­r­esse und beleben die Nachbarschaft. «Spange Nord» kann warten und irgendwann auch als Fehlplanung begraben werden.

Projekt
Music Box, Luzern


Ort
St.-Karli-Strasse 71c, Luzern


Bauherr
Urban Frye


Planung, Entwicklung, Engineering
Lauber Ingenieure, Luzern und
Markus Heggli, Architekt, Luzern


Baustandard
Minergie (nicht zertifiziert)


Holzbau
Renggli, Schötz


Akustik
Gartenmann Engineering, Luzern


Baumeisterarbeiten
Arnet Bau, Entlebuch


Energiekonzept/Heizung
Markus Stolz, Luzern


Fenster/Türen
EgoKiefer; Küchen Imfeld, Stans


Elektroinstallationen
STS, Luzern


Planungszeit
12 Monate


Bauzeit
8 Monate


Baujahr
2018 / 2019

Étiquettes

Sur ce sujet