L’hy­po­thèse Bru­de­rer

Pour l’extension de l’école du Val-d’Arve à Carouge, l’architecte Jean-Baptiste Bruderer formule un énoncé audacieux : concevoir une œuvre d’architecture par réduction.

Date de publication
23-05-2019

Sur la plateforme numérique de l’architecte Jean-Baptiste Bruderer (Fribourg, 1974), les projets ne sont pas accompagnés de textes. Ils sont simplement introduits par un titre qui correspond à la description d’un programme générique et de son emplacement géographique. Pas un mot de plus. Et pourtant, derrière cette présentation sommaire et plate se cache l’œuvre et la figure d’un architecte peu ordinaire.

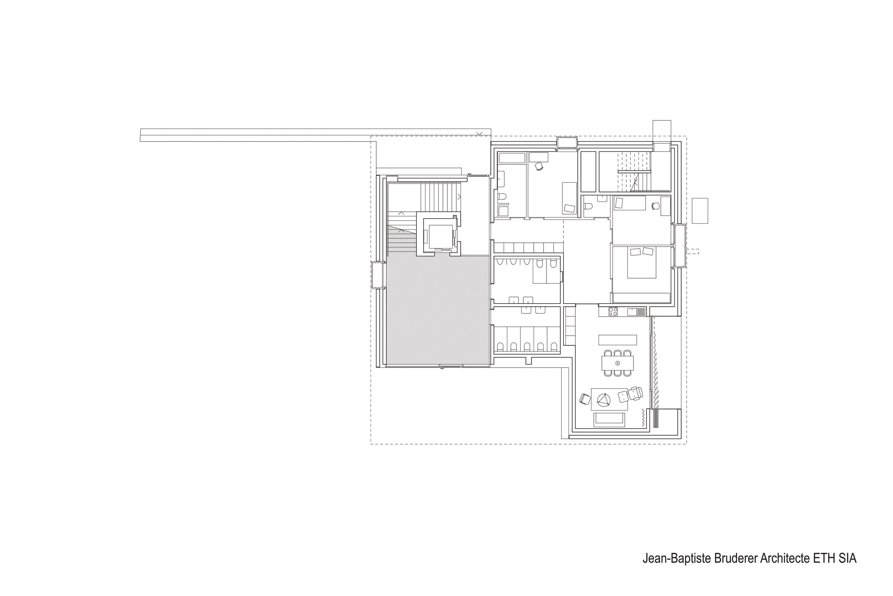
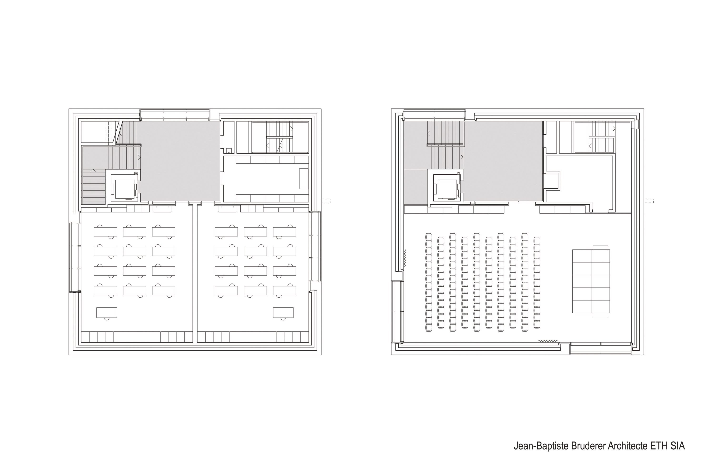
Situé à la limite orientale de la ville de Carouge et en bordure du nouveau quartier de logements de la Fontenette, l’extension de l’école du Val-d’Arve n’est pas une dépendance scolaire habituelle. Issu d’un concours public d’architecture jugé en avril 2014, le projet a pour défi d’articuler sous un même toit une grande aula polyvalente, des locaux pour un club de tennis de table, deux salles de classe et un nouveau logement pour le concierge et sa famille. Le tout en redéfinissant la qualité des espaces extérieurs et en garantissant une convivialité harmonieuse pour l’ensemble des usagers.

D’entrée de jeu, l’esquisse du lauréat se porte vers une figure compacte et monolithique où programme et implantation trouvent la même réponse. Regroupées sous un volume unitaire de 380m2 au sol, les quatre fonctions occupent chacune un étage différent du bâtiment pour former la carcasse primaire du projet : une figure cubique à trois étages plus un niveau de sous-sol, alignée au centimètre près sur l’orthogonalité et l’altitude de l’école existante.

Pour fortifier sa position, le nouvel appendice de l’école du Val-d’Arve s’implante sur les traces de l’ancienne annexe scolaire construite en 1961 par Arthur Bugna et Jean-Pierre Cottier. Cette implantation confère au bâtiment une position charnière de manière à créer vers la rue une placette d’accès mutualisée pour l’ensemble scolaire et à protéger vers l’arrière la grande cour de récréation des écoliers. Difficile de bouger ce volume sans affaiblir ses qualités spatiales extérieures.

Si a priori cette imbrication programmatique ne semble être qu’une réponse contextuelle, elle annonce le cadre d’action à l’intérieur duquel l’architecte a vérifié au préalable les multiples exigences liées à la construction d’un tel équipement public. Tous les enjeux sont d’emblée subsidiaires de cette figure élémentaire et, parallèlement, ce volume a la capacité d’anticiper tous les besoins pratiques et fonctionnels des différents programmes du bâtiment.

Par cet acte, l’architecte restreint notablement sa marge de manœuvre de façon à contraindre le projet vers un modèle architectural à minima. Une véritable déclaration d’intentions.

Une architecture de réduction

Aussitôt traversé le seuil d’entrée du monolithe et parcouru son intérieur, une sensation d’épuration physique de l’espace est ressentie. Calepinage des murs en béton, géométrie du garde-corps, diamètre des luminaires, proportion des halls d’entrée, modulation des rangements ou même taille et emplacement des interrupteurs d’ascenseurs : chaque élément du projet semble découler d’une seule et unique forme de rationalité. Et ce, en faveur des qualités spatiales et relationnelles d’un ouvrage aux multiples usages.

Preuve de cet exercice de condensation architecturale, l’ensemble des circulations est concentré vers un seul et unique système de communication vertical du bâtiment. Un escalier d’angle au niveau du rez-de-chaussée, replié sur un escalier parallèle aux étages successifs. Un dispositif sophistiqué mis au service d’une émotion spatiale inattendue : un vide à triple hauteur illuminé zénithalement par une grande verrière en toiture. Invisible depuis l’extérieur, ce puits de lumière permet à tous les usagers de bénéficier de relations visuelles croisées tout en disposant d’un rapport physique constant vers l’extérieur.

À l’intérieur, la matérialité du bâtiment est minimisée à l’expression de trois matières : un béton blanc, un terrazzo beige et du chêne naturel. Tous finement calibrés vers une tonalité claire et chaleureuse. Vers l’extérieur, la texture des coffrages en bois gravé de ces mêmes murs en béton émerge et confère à cette enveloppe minérale une expression plus douce de façade en bois. L’intention est d’atténuer la dimension abstraite de l’objet et de rapprocher l’échelle du bâtiment de celle d’un enfant. Encore un exemple d’apaisement émotionnel de l’ouvrage.

Au fur et à mesure que les propriétés du bâtiment se dévoilent, un travail de « décantation » architecturale semble émerger de manière à réduire à quelques règles essentielles tous les choix et les décisions du projet. Car des règles, dans cette œuvre, il y en a très peu. L’exercice est plutôt d’assujettir l’ensemble de l’ouvrage à ces quelques fondements, de façon à produire une architecture sans questionnements.

Géométrie, ordre et déduction

Pour structurer un tel processus de conception, la mise en place de «règles de réduction» est indispensable. Ainsi, la géométrie et son organisation intrinsèque1 constitue la règle de base. Elle paramètre toutes les intuitions pratiques et théoriques du projet. À l’intérieur de ce cadre imaginaire, l’ordre permet à chaque détail de trouver spontanément sa place. L’idée est de limiter les décisions aléatoires du projet. Ensuite, s’en vient la déduction. La seule forme de décision réelle du projet.

Parmi les innombrables situations où ces trois préceptes convergent, la disposition des ouvertures en façade fait figure d’exemple : une seule et même fenêtre est utilisée à chaque niveau du projet, suivant une directrice diagonale identique2. Et ce, toute orientation confondue. Le résultat est un bâtiment composé de 4 façades équivalentes.

Contrairement à l’architecture comme «un tout»3, il ne s’agit pas de concevoir une entité indivisible ou chaque élément est indispensable, mais plutôt de réduire l’influence de chaque composant en faveur d’une cohésion globale et raffinée de l’ensemble. L’architecte semble fasciné à minimiser son architecture à son expression la plus vitale, peu importe les contraintes. Pour cause, il n’y a qu’à sentir l’effervescence des espaces en sous-sol réservés aux passionnés de tennis de table, pour se rendre compte que cet objet posé dans la ville est bien plus qu’une simple pièce urbaine délicatement composée.

Dès lors, pour sa première réalisation majeure, Jean-Baptiste Bruderer nous livre une architecture sans excédents. Ses premières intuitions relèvent d’un univers architectural minutieux et équilibré, digne d’un véritable « alchimiste de l’espace » en quête de sa propre doctrine de travail. Une approche rigoureuse et obstinée qui n’admet pas d’exceptions ni de compromis. Et prêt à y croire, nous présentons son premier postulat carougeois en attendant que ce jeune architecte puisse formuler, d’ici quelques années, ce qui pourrait être reconnu et distingué comme « l’hypothèse Bruderer ».

 

NOTES

 

1.Architecture and Education - Interview 5 Peter Märkli - A conversation with Samuel Penn - January 2012.

2. L’usage de la diagonale dans l’architecture de Luigi Moretti - La Saracena di Luigi Moretti fra suggestioni mediterranee, barocche e informali. Annalisa Viati Navone – Mendrisio Academy Press

3. Valerio Olgiati on “one idea” – in conversation with Siebe Bakker during the 4th Concrete Design Competition on Monolithic.

 

DONNÉES DU PROJET

 

Procédure: Concours ouvert
Réalisation: 2016-2018
Maître de l’Ouvrage: Ville de Carouge, Service des constructions, M. Philippe Waller
Architecte: Jean-Baptiste Bruderer Architecte ETH SIA
Ingénieur Civil: Thomas Jundt SA

Surface de plancher: 1’800 m2
Volume SIA 146: 8’400 m3
Emprise du sous-sol : 850 m2

 

BIOGRAPHIE

 

Jean-Baptiste Bruderer est né à Fribourg en 1974. Il est diplômé en architecture de l'ETHZ, puis assistant d'enseignement à l'EPFL de 2012 à 2016. Il a travaillé au Mexique, au Chili et en Suisse avant d'établir son bureau à Fribourg en 2009, puis à Genève depuis 2011.

Sur ce sujet