Une usine com­pacte à Orbe

L’Innovation Centre de Cereal Partners Worldwide, un bâtiment construit à Orbe par le bureau lausannois Concept Consult Architectes, fonctionne comme un empilement de services et de matériaux

Date de publication
29-01-2013
Revision
23-10-2015

Orbe. Etape charnière au temps des Romains, reliant Lausanne à Besançon, la commune de 6000 âmes est aujourd’hui une importante place vaudoise dans le secteur de l’agroalimentaire. Au crépuscule du 19e siècle, une fabrique de chocolat s’implante dans la commune pour ensuite se développer et devenir, au début des années 1930, l’usine Nestlé. Dans les années 1980, la commune libère une zone industrielle considérable dans la Plaine de l’Orbe, et l’activité agroalimentaire s’intensifie. 
Le contexte historique d’Orbe et la fermeture d’une unité joint venture de Nestlé et General Mills en Angleterre ont entraîné la croissance du site industriel de la commune vaudoise. C’est dans ce cadre que l’Innovation Centre de Cereal Partners Worldwide (CPW), entreprise fondée par Nestlé et General Mills en 1990 et qui emploie 4000 personnes à travers le monde, a été inauguré il y a près de deux ans.  
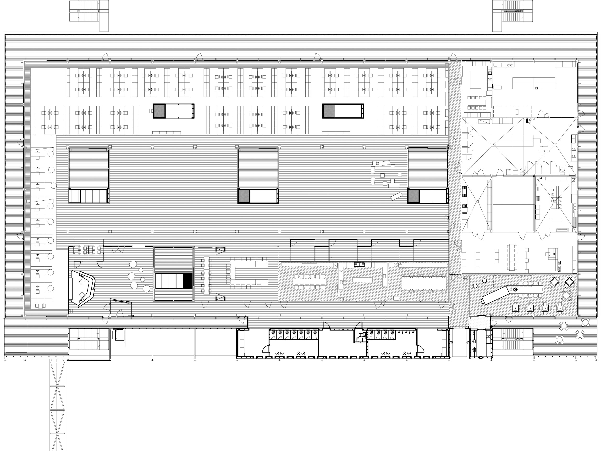
Le bâtiment imaginé par le bureau lausannois Concept Consult Architectes (CCA) se dresse au sein d’un vaste campus industriel. Principalement dédié à la recherche et au développement de céréales pour le petit-déjeuner, la construction abrite aussi une zone dédiée à la production à petite échelle. Intégrée dans un site organisé sur une trame orthogonale, l’édifice se déploie parallèlement à la route, sur 90 mètres de long. Bordé par la lisière de la propriété et par deux parkings, son emplacement a aussi dû – pour des questions de sécurité – être pensé en regard d’un gazoduc présent sur le site. Conformément à l’une des demandes formulées par CPW, l’édifice est constitué d’une structure métallique porteuse de 40 mètres qui permet d’éviter le recours à des piliers intermédiaires. 
Se détachant d’une esthétique strictement moderne et monolithique, l’ouvrage à dominante rouge, bronze et bleu métallisé se déploie par effets de gradation, dans un vocabulaire rythmé. Des fenêtres longilignes percent l’édifice, soulignant sa verticalité. Des ouvertures qui débutent à 1,20 mètres du sol, pour éviter d’endommager la façade du bâtiment avec des transpalettes et autres machines. La tôle métallique qui enveloppe l’édifice, tantôt ondulée, nervurée ou plane, opère une légère vibration sur la texture du bâtiment. La structure métallique, qui émerge de l’Innovation Centre par la façade ouest et les quatre tours d’escaliers extérieurs, rythme le bâtiment. Selon un procédé auquel CCA avait déjà recouru pour des maisons individuelles à Chexbres, les terrasses et la coursive qui entoure le bâtiment sont bordées de barreaux métalliques dépourvus de traverses pour permettre au regard de s’échapper. A l’image d’un mini Beaubourg, la tuyauterie et la structure métallique sont apparentes, il n’y a aucun faux plafond. 

Deux immeubles en un

CPW suggérait aux concurrents de construire deux édifices connexes, l’un abritant les bureaux, le second dévolu à la technique. Mais, suite à une analyse du site, le bureau lausannois a choisi de rassembler ces diverses fonctions dans un seul et même bâtiment, afin d’optimiser l’espace. Cette audace a séduit CPW et a permis au bureau lausannois de décrocher le mandat. CCA a pensé deux immeubles, mais n’en a construit qu’un. Une unique construction qui regroupe toutes les activités, et qui pourrait être clonée à l’avenir : l’espace laissé vacant est assez grand pour accueillir l’extension double du bâtiment existant (voir plan de situation). 
CCA a donc opté pour une certaine mixité fonctionnelle. L’ouvrage, construit en 15 mois pour un coût total de 28 millions de francs, accueille 85 collaborateurs et fait cohabiter différents départements d’un même secteur – celui de l’agroalimentaire – dans un volume de près de 50 000 m3. L’édifice centralise plusieurs divisions d’une même entreprise : des laboratoires, des bureaux, des salles techniques, des entrepôts, des espaces d’accueil, de détente et de rencontre. L’Innovation Centre s’apparente au bâtiment Odörfer, situé dans la ville autrichienne de Klagenfurt. Construit par Volker Giencke dans les années 1990, l’édifice de verre, de métal et de béton héberge une salle d’exposition, des bureaux et des entrepôts. A l’instar de la construction de Volker Giencke, l’ouvrage de CCA se compose d’un étage supérieur en open space dédié aux bureaux. 
Composés de trois niveaux – halle pilote, technique et bureaux –, l’Innovation Centre a été pensé comme un empilement de fonctions mais aussi de matériaux : le bâtiment fonctionne par couches successives. Dépourvu de sous-sol, il se compose d’un radier en béton coulé sur place et de piliers en béton préfabriqués. Sur le radier et la structure du rez, on a ensuite fixé une structure métallique. Finalement, le tout a été coiffé d’une structure en bois, qui sert de charpente tout en créant une atmosphère chaleureuse pour les espaces de travail. Les sanitaires et les vestiaires ont été aménagés dans des containers. Des puits de lumière ponctuent le bâtiment, permettant aux espaces occupés en permanence d’être éclairés naturellement et d’offrir une vue dégagée aux usagers. Pour des questions d’hygiène, la halle pilote est constituée de béton lissé. 

Certifié LEED

Pour la conception de l’ensemble de ses projets, le bureau lausannois pousse loin la réflexion sur l’économie d’énergie. Une réflexion sur la durée, qui tient compte de la pérennité du bâtiment, de la phase de sa conception à la récupération des matériaux utilisés pour sa construction, en passant par l’énergie dépensée lors de son édification. Et l’édifice du CPW va plus loin que le label Minergie® standard. Il a été certifié LEED1, catégorie platine – soit le plus haut degré de cette certification. C’est le premier immeuble en Suisse a avoir obtenu cette certification, qui comporte bien plus de contraintes que Minergie® : elle tient notamment compte de l’utilisation locale de matériaux de construction et de leur réutilisation. Plus de 30 % des matériaux de construction ont été fabriqués à partir de matières recyclées, et 80 % des déchets de construction ont été recyclés.
A l’instar de l’ensemble du site industriel d’Orbe, le bâtiment CPW utilise le marc de café comme source d’énergie. Ce résidu est brûlé, et quelque 30 % de la vapeur issue de cette combustion sont employés pour certaines étapes de fabrication des produits céréaliers et pour chauffer l’eau, notamment celle des sanitaires.
De ce projet ressort également une idée de mise en commun de l’énergie. Seul l’air comprimé est fabriqué dans le bâtiment, le reste des énergies est produit dans un édifice connexe, le Product Technology Centre (PTC). Et les deux bâtiments sont reliés par un tube, une sorte de « cordon ombilical » dont la fonction est le transfert de ces énergies. L’Innovation Centre est rafraîchi et non climatisé, excepté dans une petite zone de tests ou cela s’est avéré nécessaire. Une pompe à chaleur, qui fonctionne avec l’eau de rivière, chauffe le bâtiment. 
Une anecdote concernant le chauffage, justement. Début décembre, alors que les températures étaient clairement au-dessous de zéro, l’Innovation Centre a été en proie à un problème technique, et le chauffage a cessé de fonctionner pendant une semaine. Mais même sans chauffage, la température intérieure du bâtiment affichait 20°. Une histoire qui démontre que l’enveloppe de l’édifice et l’isolation ont été admirablement pensées. 
Autour du bâtiment, pas de gazon artificiel, mais de la prairie, coupée deux fois par année. Des arbres indigènes qui ne demandent pas d’entretien bordent aussi l’Innovation Centre – des poiriers, des pommiers, mais aussi des vignes. De la lavande a été plantée, elle ne nécessite pas d’arrosage artificiel et surtout laisse les sols perméables à l’infiltration de l’eau. Juste à côté du bâtiment, le Nestlé Shop – également conçu par Concept Consult Architectes – est coiffé d’un toit végétalisé.
Le CPW est l’un des multiples bâtiments construits par CCA dans la zone industrielle d’Orbe (voir encadré p. 11). Le bureau lausannois aura au final réalisé le campus industriel de la commune vaudoise presque dans son intégralité. D’autres projets sont en cours sur le site, pensé comme une mini-ville en soi.

Voir texte lié: "Un véritable campus"

Étiquettes
Magazine

Sur ce sujet