Une mai­son dans le jar­din

Une famille partage son jardin afin d'y accueillir une seconde famille.

Date de publication
07-03-2019
Revision
07-03-2019
Frédéric Frank
Professeur de théorie de l’architecture et de la ville à la Haute école d'ingénierie et d'architecture de Fribourg

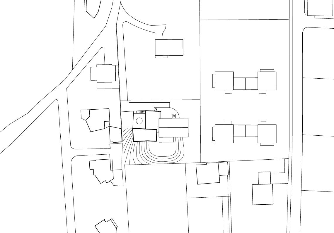
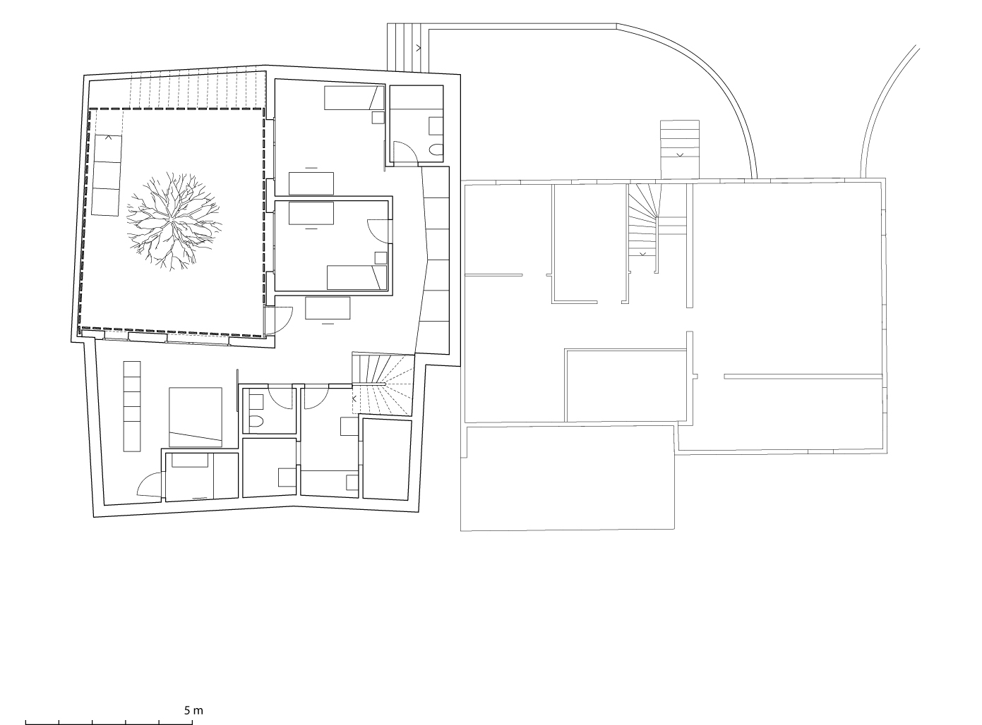
Cette petite maison a été implantée en contiguïté d’une villa existante en exploitant la topographie de la parcelle pour accueillir une seconde famille. Au lieu d’étendre la maison existante ou de créer un nouveau volume, les architectes ont proposé de déguiser l’opération en palissade de jardin, en revêtant sa façade de bois brûlé, comme le portail d’entrée.
Ses chambres sont distribuées autour d’un patio privé. La famille déjà établie partage désormais son jardin. 

 

Informations

Maison individuelle contiguë, Corsier (GE)
Architecte: bunq, Nyon
Réalisation: 2014-2016
Photographie: David Gagnebin de Bons

Étiquettes
Magazine

Sur ce sujet