Une fa­mille, un couple, une co­lo­ca­tion

Une ancienne villa des hauts de Lausanne est réaménagée afin d'accueillir trois nouvelles formes d'habitation 

Date de publication
07-03-2019
Revision
07-03-2019

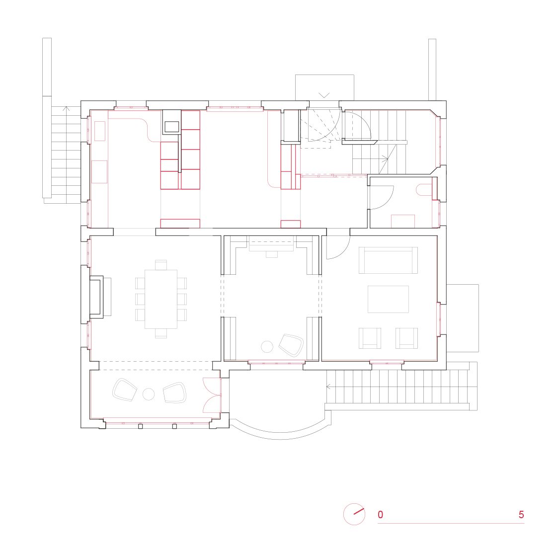
Cette grande villa construite dans les années 1930 dans le quartier de Chailly, au nord de Lausanne, a été repensée par ses propriétaires. Le bel étage et l’étage sur rue ont été réaménagés pour accueillir la famille, tandis que les combles ont été transformées pour y loger une colocation d’étudiants autour d’une nouvelle cuisine. Au niveau inférieur, l’appartement de fonction a été entièrement remodelé par un jeu de niveaux caractérisant chaque espace et un couple s’y est installé. Quant au jardin, il est désormais à tout le monde.
Une attention particulière a été donnée au grand escalier, le cœur de cette maison. En le fermant de cloisons de verre, les architectes sont parvenus à le collectiviser tout en conservant l’intimité de chaque occupant. 

 

Informations

Architecte: Bureau Brisson Architectes
Réalisation: 2017-2018
Cube SIA 416: 1300 m3
Coûts CFC 1-5: 1 000 000 CHF TTC 
Photographies: Alan Hasoo

Magazine

Sur ce sujet