Nou­velle Co­mé­die de Ge­nève: Usine-Théâtre

La Nouvelle Comédie est l’une des dernières réalisations phares de Genève: elle sera amenée à remplacer non seulement le théâtre du centre-ville, mais aussi les ateliers disséminés en périphérie. Achevée depuis plusieurs mois, elle est déjà utilisée comme espace de production depuis près d’un an, mais pas encore, ou alors si peu, comme lieu de spectacle – pandémie oblige. Appréhension multidisciplinaire de cette titanesque machine à créer: du point de vue de l’architecture, de l’ingénierie civile et de l’acoustique.

Date de publication
02-08-2021
Jacques Perret
Ingénieur en génie civil EPFL, Dr ès sc. EPFL et correspondant pour TRACÉS.

Par son implantation, sa taille, son programme et la haute qualité de sa réalisation, la Nouvelle Comédie de Genève est l’une des réalisations romandes incontournables de l’année 2020. Son concours a été remporté en 2009 par l’agence parisienne FRES, jeune bureau d’architecture à l’époque, qui livre avec ce projet un support de création performant pour les professionnels de la culture – un lieu pour jouer, bien sûr, mais aussi pour répéter, concevoir des décors, organiser, se rassembler. Douze ans après, le projet est sorti de terre. Sa silhouette raide, dictée par le plan localisé de quartier, accueille aujourd’hui timidement les premiers spectateurs, à cause des restrictions sanitaires, au moment même où un autre mastodonte culturel, la Cité de la musique, qualifiée «d’un autre temps» par ses opposants, échoue en votation.

Comment traiter la Nouvelle Comédie de Genève, dont on a l’impression fugace qu’il s’agit d’un projet comparable: un colosse de béton armé, inauguré alors que le matériau au bilan environnemental désastreux soulève des critiques de tous bords. Peut-être en cherchant, d’abord, à le comprendre, dans son mécanisme architectural, acoustique et structurel – en tant que «machine à rassembler».

Le long d’une ligne

La Nouvelle Comédie de Genève est pensée pour être abordée par le train: par sa proximité avec la nouvelle gare des Eaux-Vives, qui a posé de nombreux défis structurels lors de la réalisation; par son implantation, puisque le bâtiment est parallèle au rail; par son langage, de verre, de métal et de béton, qui fait écho aux gares du CEVA, dessinées par Jean Nouvel. La façade crénelée du théâtre s’aligne sur la trame de 5,40 par 2,70 m des panneaux des quais – ces modules en briques de verres rétroéclairés qui donnent l’illusion de faire pénétrer la lumière du jour jusqu’au centre de la terre.

Lire également Les boîtes em­boî­tées de la Nou­velle Co­mé­die

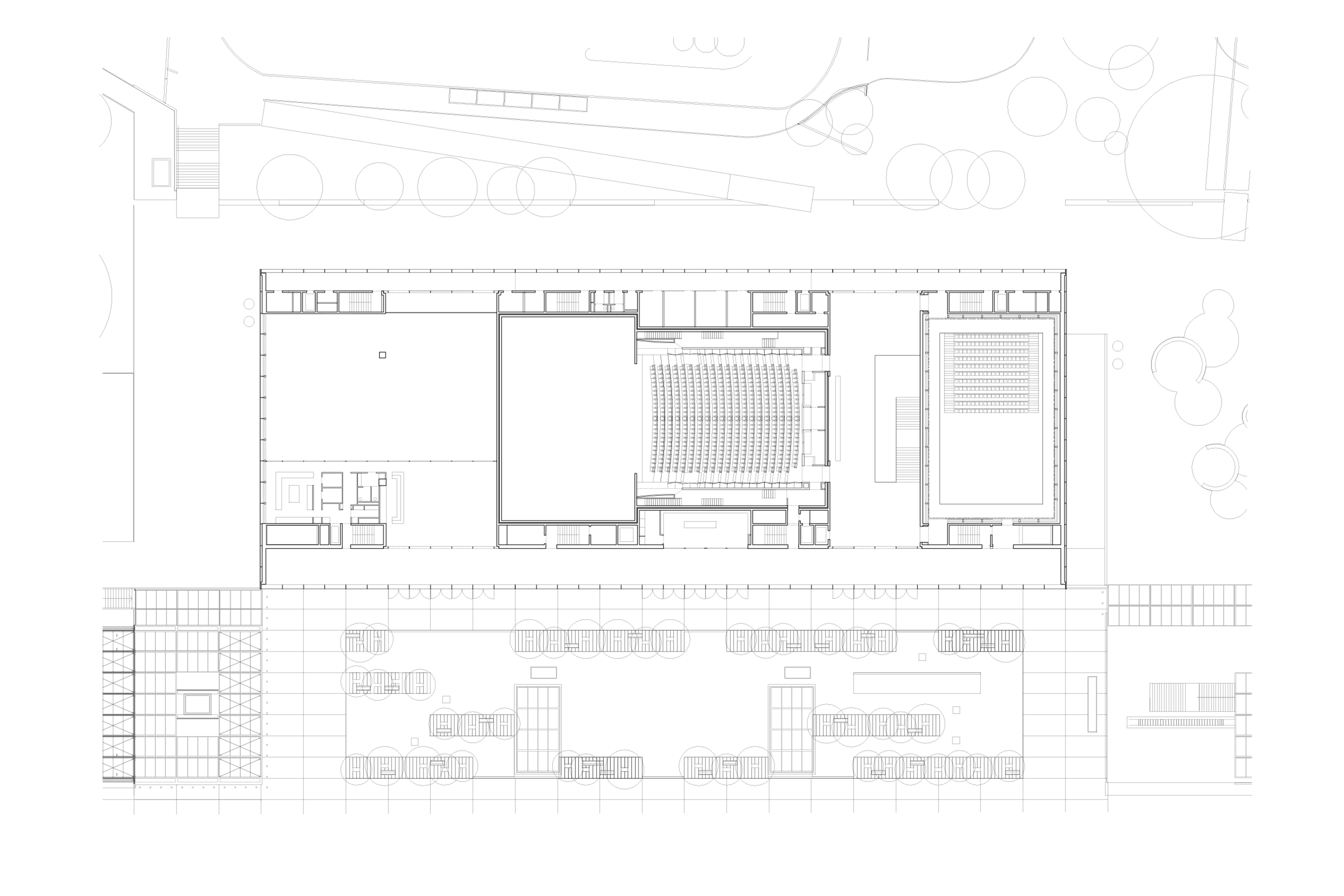
Schématiquement, la Comédie est un agglomérat parfaitement orthogonal de programmes le long d’une ligne – ateliers de confection des décors et des costumes, cage de scène, black box, bureaux, foyer – qui produisent la silhouette en dents du volume. Ce cœur programmatique est flanqué, latéralement, de deux bandes de circulations rationnelles: au sud-ouest, au rez supérieur, celle dédiée au public, en lien avec l’esplanade Alice Bailly, qui surplombe les rails; au nord-ouest, et un niveau plus bas, l’entrée des artistes, le long de la promenade Louise Boulaz. Un agencement mécanique des programmes dont la précision, en plan, satisfait certes l’esprit, mais dont l’expérience, en coupe, dénote peut-être un manque de cette souplesse que l’on aime à trouver dans les théâtres: voir la foule se masser aux portes, puis dans le foyer, dans cet aller-retour constant entre représentation de soi et spectacle des autres. La strate de circulation le long de l’esplanade aurait pu être perçue comme un jardin d’hiver, puisqu’elle est en dehors de l’enveloppe thermique, mais elle n’offre pas de perméabilité avec le nouvel espace public sur dalle du quartier de la gare. Constatation partagée par la scénariste et dramaturge Julie Gilbert, lorsqu’elle évoque le rapport troublant du bâtiment avec son contexte: «[…] il pleuvait des cordes et je n’arrivais pas à trouver l’entrée. J’ai longé la longue paroi de verre, le long couloir vide de ce qui sera bientôt l’entrée officielle.»

La perpendiculaire comme dispositif de mise en scène

Quelques connections physiques et visuelles précises traversent cependant la triple stratification stricte de la Comédie: le foyer devrait offrir un très beau moment de rassemblement et de franchissement, en se déployant perpendiculairement au volume, sur deux étages, encadré par une salle frontale de 500 places et une black box modulable de 200 places, qui ont toutes deux fait l’objet d’un travail scénographique, acoustique et structurel méticuleux. En effet, comme dans nombre de théâtres, il a fallu désolidariser l’enveloppe de la salle de celle de la structure extérieure, et créer ainsi une «boîte dans la boîte» afin d’éviter que les nuisances sonores et vibratoires de la voie ferrée limitrophe ne viennent perturber l’acoustique des deux scènes. Si une salle de seulement 500 places peut étonner pour un bâtiment d’une telle ampleur, cette raison s’explique par la volonté de la Comédie de conserver un lien fort entre spectateurs et acteurs, les premiers pouvant travailler à la «voix nue», c’est-à-dire sans micro, et leurs expressions devant rester visibles jusqu’au dernier rang.

Montrer l’invisible

L’autre dispositif perpendiculaire est celui du restaurant du théâtre, depuis lequel le public est aux premières loges pour observer la production des gigantesques ateliers de la Comédie qui bruissent en contrebas. L’échelle spectaculaire du bâtiment – 103 100 m3, la baleine de Pinocchio – devient une évidence: en rendant visibles les programmes longtemps restés en coulisses, ou relégués en périphérie des villes, dans des hangars mal chauffés, FRES architectes proposent une lecture architecturale en réponse à l’évolution scénographique de la deuxième moitié du 20e siècle, qui a rejeté le décor du théâtre frontal à l’italienne classique, pour lui préférer la black box, où le rapport entre artistes et public n’est plus préétabli mais à redéfinir pour chaque création.

La Nouvelle Comédie est donc une machine démocratique à la matérialité brute et soignée, où les espaces de travail comme ceux de représentation possèdent les mêmes finitions, la même précision, la même honnêteté constructive. Tous y sont traités comme les rouages humains d’un même système, au service d’un maître-mot: le spectacle.

La Nouvelle Comédie (GE)

 

Concours: 2009

 

Réalisation: 2010-2020

 

Coût HT CFC2: CHF 65 000 000.–

 

Surface de plancher brute: 16 060 m2

 

Maître d’ouvrage: Ville de Genève

 

Architecture: FRES architectes (Laurent Gravier et Sara Martín Cámara)

 

Ingénieur civil: T ingénierie + Batiserf + Brasey

 

Ingénieur CVC: SRG (Riedweg et Gendre)

 

Acousticien: Kahle Acoustics

 

Étiquettes

Sur ce sujet