La tour, ou la pos­si­bi­lité du tout

Indifférente dans l’expression de ses programmes, la tour Opale à Chêne-Bourg (GE) n’exprime pourtant que ce qu’elle contient. Tel est le puissant paradoxe porté par cette réalisation de Lacaton & Vassal architectes, reconnaissable par sa transparence et la lisibilité de ses intentions: une superposition de grands plateaux «capables», aux réversibilités anticipées.

Date de publication
20-11-2020

Il faut le temps et le recul suffisants pour saisir l’étendue de ce que renseigne le siècle précédent en termes de pratiques architecturales. Mais l’exercice requiert aussi des repères sur lesquels se positionner, des objets à identifier et à interroger. Salutaires sont les réalisations capables de porter les stigmates de valeurs défendues, interrogées et débattues ; accumulées, amendées, abandonnées ou reconduites. La dernière livraison signée des architectes Lacaton & Vassal fait partie de ces témoins privilégiés qui témoignent du renouvellement de la pensée architecturale. Ponctuant le parcours souterrain de la nouvelle liaison ferroviaire du Léman Express à Chêne-Bourg, la tour Opale fait office de repère dans le paysage genevois, mais aussi plus largement dans le débat architectural international, tant elle incarne la possibilité d’une revendication des capacités de l’architecture à accompagner son temps.

Les promesses de la verticalité: réminiscences californiennes, ou l’aboutissement d’une idée

Directement issue du plan localisé de quartier (PLQ) à l’étape du concours, l’hypothèse de la tour prend place dans une maturation double et croisée entre, d’un côté, l’acceptation populaire progressive de la verticalité en Suisse romande et, de l’autre, l’aboutissement pour le bureau lui-même d’occasions répétées de concevoir la hauteur.

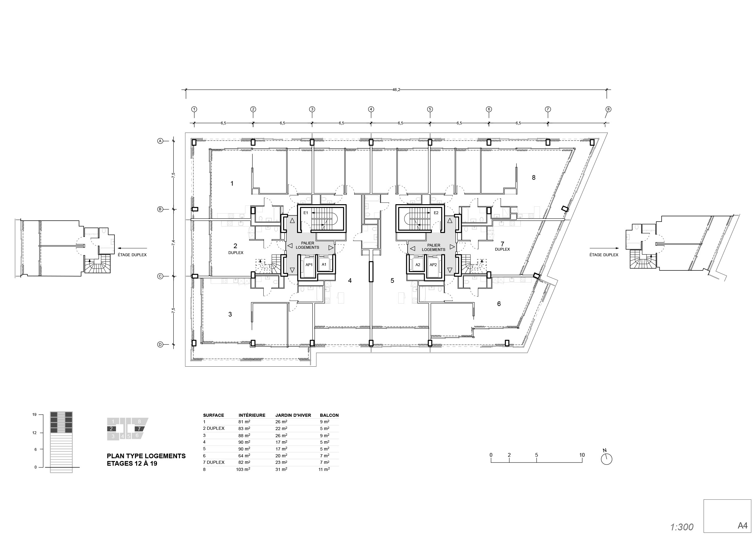
C’est en Normandie au tournant des années 2000 que Anne Lacaton et Jean-Philippe Vassal mobilisent pour la première fois cette forme urbaine, déjà associée à une infrastructure territoriale, structurante dans le paysage caennais et icône de la ville nouvelle d’Hérouville-Saint-Clair : son château d’eau. Elle s’y connecte en partie haute, dans une fascination inchangée des architectes pour les opportunités de points de vue ; et avec une empathie salutaire pour les objets préexistants qui composent et dessinent le territoire. La répartition de ses 18 niveaux anticipe la décomposition de la tour genevoise, avec déjà l’expression subtile d’un socle reconnaissable par les typologies en duplex des six premiers étages.

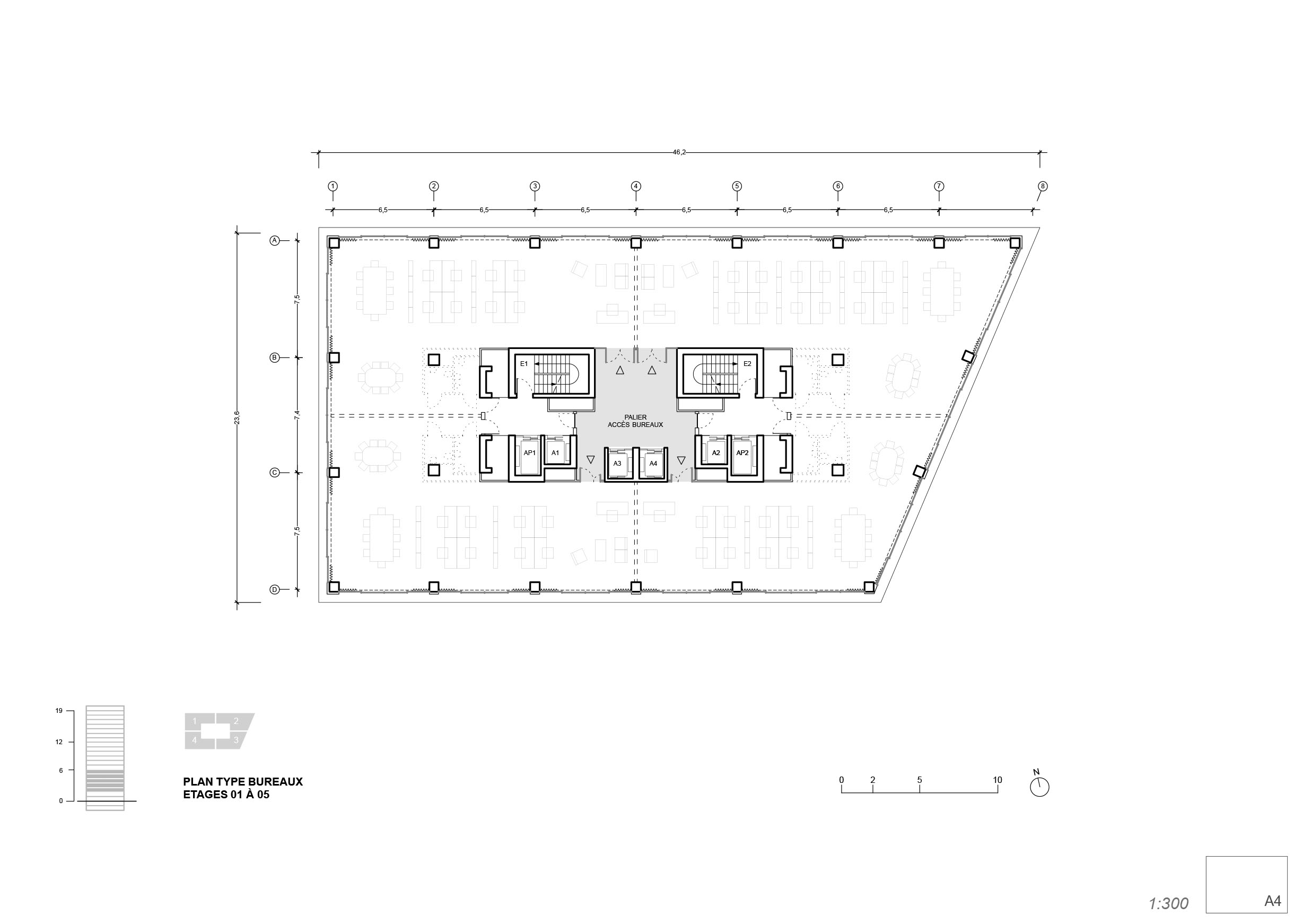
La tour réalisée en Suisse romande dépasse de peu les 60 m pour 19 niveaux ; les cinq premiers dédiés au bureau. La perception du socle se distingue cette fois-ci par l’absence de saillie et le recours au brise-soleil, contrastant avec les façades exposées à la lumière directe. L’aboutissement réalisé 20 ans après ne contient – en l’état – ni la salle commune ni la toiture accessible que le projet resté rêvé d’Hérouville-Saint-Clair prévoyait ; un aspect avant tout programmatique, que la « structure capable » pourrait toujours faciliter. L’abandon d’une circulation verticale unique dans un noyau central, au profit d’une double desserte verticale, offre les avantages majeurs du traversant au centre du plan.

Après la démesure de la proposition pour Varsovie en 2005 ou les imbrications de niveaux de celle de Poitiers en 2006, la tour genevoise se résout à l’efficacité imparable du plan libre répété, dans une reprise, sur toute la périphérie et de toute pièce, des façades épaisses déployées en 2011 sur la tour Bois le Prêtre à Paris. Anne Lacaton et Jean-Philippe Vassal explorent ainsi pour la première fois à Chêne-Bourg la possibilité d’une dilatation des seuils entre intérieur et extérieur sur la totalité des pourtours du bâtiment. L’ambition répétée d’appliquer à la densité les qualités de l’habitat individuel est une fois de plus démontrée, et portée en alternative dans cette « tour-villas » par la condition de superposition, la générosité des espaces et leurs ouvertures sur l’extérieur. La ponctuation des points porteurs et la continuité d’ouverture de l’enveloppe renouent avec l’une des images-guides que les deux architectes ont produites en 2004 avec leur compère Frédéric Druot lors de l’étude « PLUS » consacrée aux territoires des grands ensembles. Ces deux composantes techniques ressuscitent dans la tour l’idéal de liberté, d’espace et d’indépendance de la villa individuelle ; ou la réalisation concrète et déclinée de l’idéal californien à la condition contemporaine genevoise.

Continuité et ruptures d’une pensée moderne sur le logement

En réalisant la tour Opale, Lacaton et Vassal se positionnent en constructeurs, et non plus seulement en réparateurs des objets de la modernité. Doter, par la technique, l’habitation d’air, de lumière et de vues dégagées, est l’une des principales ambitions architecturales portée par le logement moderne, que ses protagonistes les plus héroïques entendaient offrir au plus grand nombre. La réalisation à grande échelle de ces préceptes trouve ses moyens les plus influents dans la puissance constructive et idéologique de la standardisation.

L’architecture tramée de la tour et son recours aux composants d’une élémentarité répétée la positionnent dans la recherche plus large d’un ordinaire partagé, commun et indépendant des catégories socio-économiques habituellement distinctives. Témoin du détournement générique de l’idée d’avant-garde de « standard », désormais vidée de ses valeurs les plus nobles au profit de connotations aliénantes, Anne Lacaton préfère parler d’« ambitions » pour décrire la recherche de conditions unanimes d’un plaisir d’habiter ; où que ce soit et pour qui que ce soit. Les qualités revendiquées et le soin apporté sont les mêmes dans le contexte suisse du neuf en PPE que dans la rénovation du parc locatif social en France. L’exportation de savoir-faire à l’international n’est pas un sujet pour les architectes français, convaincus de toute façon et dans chaque contexte de la capacité de « faire avec ce qu’on a », en qualité de dialogue plutôt que de recettes. Aux fondements progressistes du mouvement moderne, ils refusent la valeur de dogme, avec comme scission décisive, une rupture avec les figures de l’autorité, en l’occurrence celle de la norme et de l’auteur. Les conditions d’habiter offertes par leur architecture revendiquent une « valeur de liberté », en marge et comme renouveau des ambitions modernes vers un progrès universel.

Plaisir et contentements de l’indifférenciation

Dans sa grande neutralité, l’espace domestique des appartements est dédié à l’appropriation par ses habitants ; le vide en attente des manifestations spatiales les plus dépareillées, voire les plus changeantes. Sensibles au traumatisme causé par le déterminisme social des modèles les plus interventionnistes du siècle passé, Lacaton et Vassal ouvrent le logement aux aspirations de nouvelles horizontalités politiques. Ils placent l’habitant en qualité d’acteur de son propre art de vivre, plutôt que comme sujet administré par le ­statut et la nature de son lieu de résidence. Encouragé par l’architecture, ce glissement emblématique répond à l’injonction d’une responsabilité habitante, dans l’organisation de l’espace domestique et l’expression libre des modes de vie. Les guides d’usage bioclimatiques réalisés par les architectes et mis à disposition des habitants illustrent directement cette idée du «faire soi-même».

L’ouverture des critères normatifs du logement à une conception plus libre et première de l’habitation accorde au plan libre et à l’ossature poteaux-dalles la possibilité de toutes les reconversions. Bien que figée à ce stade de projet par la demande de son mandataire CFF Immobilier, l’alternance des étages entre logements et bureau est néanmoins anticipée par les architectes, en tant que prédisposition latente pour un projet futur, et en rupture manifeste avec la culture monofonctionnelle de l’architecture moderne. Avec le retrait d’autorité, l’indifférenciation au programme fait partie des principales ruptures reconnaissables parmi les acquis de la modernité que Lacaton et Vassal reconduisent dans leur pratique. Reflet d’une inclination sociétale vers l’affaiblissement des grandes dualités qui ont été particulièrement structurantes au siècle passé, et en priorité la distinction entre le public et le privé, la nature des lieux du chez-soi tend à se confondre dans l’architecture du travail ou de la consommation, dans un besoin de limiter l’utilisation des ressources et de favoriser leur partage. L’augmentation du télétravail, mais aussi l’accélération des rythmes de formation et de dissolution des familles comme des entreprises, pourraient encourager de telles réalisations, modifiant radicalement la culture du bâti. La tour Opale constitue à ce titre l’un des premiers protagonistes construits d’une flexibilité attendue par des acteurs socio-économiques toujours croissants. Une flexibilité qu’Anne Lacaton et Jean-Philippe Vassal n’entendent pas idéaliser, mais qui peut générer, dans une démarche de projet, des conditions à privilégier, de générosité, de liberté et de plaisir.

Tour Opale, Chêne-Bourg (GE)

 

  • Réalisation : Concours 2014, construction : 2018-2020
  • Coût HT CFC2 : CHF 36 400 000.–
  • Surfaces : 16 211 m2 SBP hors sous-sol
  • Labels : Minergie©, DGNB Or©
  • Maître d’ouvrage : CFF SA Immobilier
  • Architectes : Lacaton & Vassal architectes, Paris
  • Architectes associés pour l’exécution : Nomos, Genève
  • Ingénieur structure : Terrell
  • Ingénieur fluides et environnement : ITF
  • Économiste : Michel Forgue
  • Ingénieur géotechnique et pollution : De Cerenville
  • Ingénieur Sécurité incendie : Ecoservices
  • Acousticien : Architecture & Acoustique
  • Ingénieur études d’impact : CSD
  • Ingénieur façade : Préface
  • Ingénieur électricité : Bételec
Magazine

Sur ce sujet