Mi­mé­tisme ou ac­cen­tua­tion?

Deux réalisations de StudioV9

Plutôt que de construire des logements en périphérie, StudioV9 croit en l’attractivité des centres de village. Le bureau prône une approche architecturale attentive au contexte tout autant qu’aux usages et au confort des habitant·es; ce qu’illustrent la maison de deux appartements à la Chaux-des-Breuleux (JU) et la surélévation à Corgémont (BE).

Date de publication
17-06-2025

Dépopulation, réduction des services publics, extension des zones locatives aux franges de villages qui ne meurent pas, mais dont l’identité change vite et radicalement. On travaille en ville et on habite la campagne, de préférence dans une maison individuelle qui reste toujours l’aspiration résidentielle préférée en Suisse1. Des problématiques auxquelles font aussi face les territoires ruraux de la région jurassienne. En prise avec cette réalité, StudioV9 y agit avec grande sensibilité pour un contexte qui inspire leurs projets. Deux réalisations récentes méritent particulièrement de s’y attarder, parce qu’elles sont la traduction architecturale de choix stratégiques liés à la problématique bien précise de l’habitat au cœur du village: comment répondre aux exigences d’un habitat contemporain tout en conservant les marqueurs d’une architecture villageoise?

À la Chaux-des-Breuleux...

Appartenant au district des Franches-Montagnes dans le canton du Jura, la Chaux-des-Breuleux est un hameau ancien situé sur la commune des Breuleux. À quelques encablures au nord-est se trouve l’étang de la Gruère, un site naturel protégé d’importance nationale qui témoigne d’une intense activité économique liée à l’existence d’une tourbière exploitée jusqu’en 1966. Le hameau reste aujourd’hui marqué par l’activité agricole, comme c’était le cas il y a 100, 200 ou 300 ans, à l’exception du développement embryonnaire d’une activité artisanale autour de l’horlogerie dont l’apport fut bénéfique aux agriculteurs exploitants. La structure villageoise lâche se compose essentiellement de maisons paysannes caractéristiques du Haut-Jura, qui datent majoritairement du 17e siècle. De plan carré, elles présentent deux types de toiture – à deux pans avec pignon frontal, ou à trois ou quatre pans avec façade-gouttereau – qui engendrent des effets d’alternance intéressants à l’échelle du hameau. Elles sont construites en ordre non contigu le long de l’unique route et sur des parcelles ceintes de longs murs bas en pierres sèches qui les séparent des champs agricoles avoisinants. L’apparence du lieu n’a pas changé depuis un siècle. Preuve de l’isolement grandissant de la Chaux-des-Breuleux, sa population a diminué de moitié, passant de 166 à 85 habitant·es entre 1850 et 2022.

...deux maisons sous un même toit

Le projet qui nous intéresse occupe la dernière parcelle encore constructible et située à l’extrémité sud de la localité. La maison développée avec Gilles Marchand pour la phase d’avant-projet doit accueillir un couple et trois enfants habitant déjà sur place. Pour éviter tout contraste visuel engendré par un saut d’échelle flagrant, les architectes analysent la granulométrie et l’apparence caractéristique du bâti existant. Ils proposent au couple un projet aux accents vernaculaires dont la volumétrie calque celle de l’existant: volumes généreux regroupant logement et différents hangars agricoles. Mais comment occuper et rentabiliser un volume trois fois plus grand qu’une maison unifamiliale conventionnelle? Sensible à l’argument, le couple imagine d’abord installer un cabinet de physiothérapie pour développer une activité indépendante, avant d’opter pour un deuxième logement aujourd’hui loué: deux maisons sous un même toit. Le blanc cassé du crépi extérieur, les encadrements minéraux des fenêtres, ou encore la toiture à quatre pans couronnée d’un lanterneau mimant la traditionnelle cheminée de fumage (ou «tuyé») du Jura bernois: la nouvelle construction ressemble à s’y méprendre aux autres bâtiments du hameau.

Haptique sans fard

Les deux logements sont séparés par un espace couvert mais ouvert révélé en façade par la présence d’un bardage en mélèze. Reliquat d’un élément de la typologie des fermes traditionnelles, ce «devant-huis» crée une zone tampon non chauffée qui sert de vestibule, permet de mettre à l’abri vélos et autres outils de jardinage. Son impressionnante spatialité en fait un des espaces identitaires du lieu. La lumière tamisée par le bardage des grandes ouvertures en façade est enrichie par celle tombant du lanterneau zénithal qui ajoute à la dramatique et à la beauté du lieu, tout en mettant en valeur la minéralité poreuse des murs. Situées de part et d’autre de ce vestibule, les unités chauffées sont définies par une enveloppe homogène constituée d’un double mur de briques Borel. L’aménagement est quant à lui en bois: parquets en frêne à l’étage et cloisons en panneaux trois-plis d’épicéa. Une chape de béton poncée unifie les sols du rez-de-chaussée.

Domesticité réinventée

Monolithique et fermé de l’extérieur, le volume se révèle ouvert et lumineux à l’intérieur. Le lanterneau marque le centre du logement et met en valeur un module de services qui délimite l’entrée et le salon séjour en double hauteur, sert d’escalier menant à une mezzanine marquée par la présence d’un unique poteau cylindrique en bois massif. Plus salle de jeux ou bureau, cette dernière permet d’accéder à quatre chambres dont le caractère sombre contraste avec la clarté des espaces de vie – refuges percés d’une fenêtre à l’embrasure profonde, elles font penser à une grotte éclairée par un rayon de soleil pénétrant au hasard d’une cavité rocheuse.

La stratégie mise en place associe l’effacement par imitation à l’extérieur et une déclinaison innovante du logement groupé. Et ce qui était a priori une difficulté potentielle – la grande profondeur imposée par l’imposante volumétrie – devient une qualité grâce au traitement sensible de l’apport de lumière.

À Corgémont: la maison au centre du village

À contexte différent, réponse architecturale adaptée. Dans le vallon de St-Imier, les patronymes des villages (Cormoret, Courtelary, Cortébert, Corgémont) se succèdent avec des consonnances et leur morphologie semble en faire autant: partout des centres engoncés dans une grassouillette couronne pavillonnaire brouillant la transition entre zone agricole et zone bâtie, beaucoup de logements vides sans que la proximité des services soit un argument suffisant pour encourager couples et familles à y emménager. Direction les franges villageoises.

Un principe de densification urbain

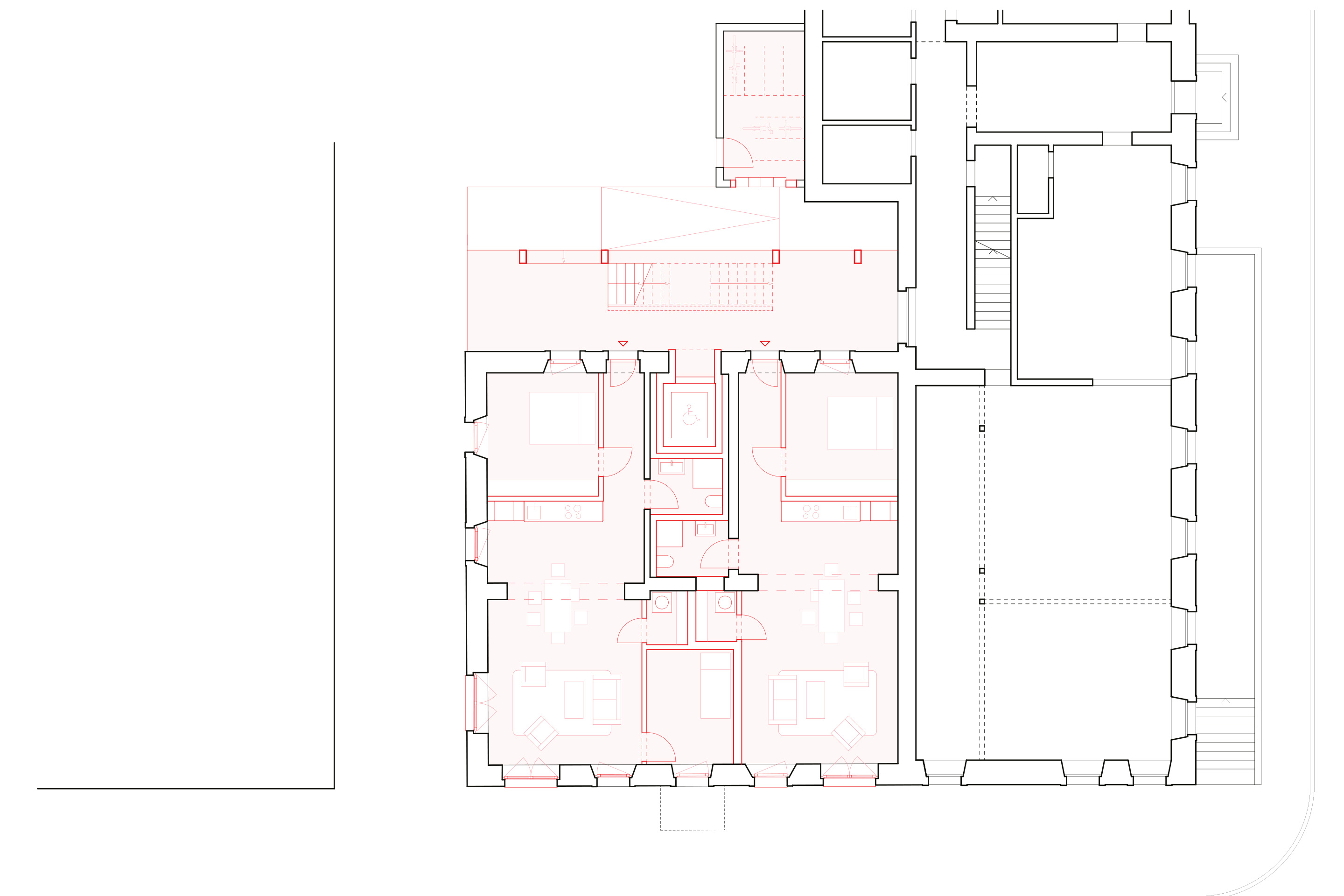
Lorsque l’on demande à Tanguy Poffet et Bastien Jeandrevin, associés de StudioV9, ce qui les satisfait le plus dans la transformation de l’immeuble sis à la Grand Rue 6 de Corgémont, village jurassien de 1830 habitant·es, la réponse fuse: fiers de doter la commune d’appartements en mesure d’attirer de nouveaux résident·es. Comment s’y sont-ils pris? En donnant au projet des accents de domesticité urbaine et grâce à des choix architecturaux forts. Le bâtiment érigé sur l’alignement du front de rue en 1908 était à l’origine propriété de la Fondation Grosjean-Stuber et accueillait sur trois niveaux, dont un sous combles, des personnes à faibles revenus travaillant dans les entreprises liées à la production horlogère. Légué par testament à la commune en 1949, celle-ci en a récemment envisagé la rénovation/transformation afin d’offrir huit logements de 2.5 à 3.5 pièces abordables pour des personnes âgées ou comme premier logement. La solution proposée par StudioV9 envisage l’ajout de deux étages: une surélévation construite et revêtue de bois, qui repose sur le volume existant en maçonnerie qu’il a fallu compléter de part et d’autre du rampant central d’origine. Outre la nouvelle verticalité du bâtiment – qui dépasse les faîtages avoisinants –, une toiture à deux pans participe à l’intégrer dans le petit ensemble qui compose l’entrée ouest du village.

Restructuration

On accède à l’immeuble par l’arrière, comme c’est le cas de tous les bâtiments érigés au cours du 19e et début de 20e siècle le long de la Grand-Rue. Ça et là, des balcons à la française ornés de garde-corps en fer forgé marquent le centre des façades, témoignant de l’aspiration urbaine des constructions que les architectes n’ont pas reniée, mais amplifiée en restructurant les appartements existants et en créant deux logements supplémentaires. L’escalier a ainsi été extirpé du volume pour en faire une distribution extérieure marquée par de grands paliers que l’on traverse au fil du parcours à travers les étages, et qui font office de terrasses semi-privatives. Une gaine d’ascenseur remplace l’escalier d’origine et s’ouvre sur les coursives habitables. Elle sert de contreventement sismique à l’ensemble et définit en même temps une couche de services qui accueille sanitaires, salles d’eau, armoire et distribution. Les espaces de jour et de nuit sont répartis de part et d’autre. Le cloisonnement léger pourra être enlevé en cas de besoin, permettant la création de pièces traversantes. La surélévation en bois abrite deux duplex aux accents de loft – entrée, cuisine, séjour dans l’espace traversant ouvert sur une loggia donnant sur la Grand-Rue: un coin pour «schneuquer», guigner dans la langue populaire jurassienne. Comme les logements aux étages inférieurs, une couche de services périphérique permet d’accéder à une deuxième chambre surjouant l’idée de perchoir. Reflet de la structure ligneuse, l’intérieur est entièrement recouvert de panneaux trois-plis de pin maritime – un côté définitivement chalet dans l’environnement boisé du plateau jurassien – ponctué d’huisseries blanches et d’une cuisine intégrée gris clair: retenue et honnêteté constructive caractérisent le côté domestique et protecteur de ces duplex aux accents urbains… inhabituel dans un contexte villageois, mais attractif pour de jeunes couples ou familles. Quant à savoir si les objectifs sont atteints, six des huit logements sont à ce jour loués, dont l’un des deux duplex.

Concevoir des environnements

Si les terrasses partagées au nord ne bénéficient pas d’une orientation optimale, elles résultent d’une situation héritée et offrent surtout aux autorités communales l’occasion de réfléchir à la requalification de ses espaces publics. Alors que la transition logement-palier est résolue avec inspiration, elle se fait brutalement entre l’espace de seuil – représenté par les coursives habitables – et les abords directs – la surface asphaltée au pied de l’escalier fait encore office de stationnement. Les architectes voulaient en faire une placette agrémentée d’un arbre pour offrir aux habitant·es de l’immeuble un espace identitaire au sol. De cette idée, seul le réaménagement d’un ancien garage en local commun pour vélos et boîtes aux lettres a finalement vu le jour. Plus qu’une contrariété, c’est une occasion manquée d’amorcer un réseau public piéton abrité des nuisances de la Grand-Rue. Le projet de place avorté au pied de l’immeuble profitait en effet du voisinage d’une aire de jeux. Et de l’autre côté de la Grand-Rue, un dégagement sur le côté du bâtiment de l’administration communale aurait permis d’envisager des mesures de valorisation de l’espace public au centre du village.

Que retenir de l’approche proposée par StudioV9? Le village est un milieu bâti contextuel qui réclame de la part de l’architecte une attention portée sur ses caractéristiques bâties et non bâties. En choisissant le parti d’une conservation respectueuse mais modérée de l’expression traditionnelle, StudioV9 ouvre la porte à une redynamisation discrète mais efficace de l’attractivité des villages pour l’habitat.

Notes

 

1. moneypark.ch/news-wissen/fr/immobilier/etude-sur-le-logement-ideal-2024

Construction d’une nouvelle maison, La Chaux-des-Breuleux (JU)

 

Maîtrise d’ouvrage: Privée

 

Architecture: StudioV9, en collaboration avec Gilles Marchand

 

Ing. civil: ATB Tramelan

 

Ing. bois: Wibois

 

Procédure: Mandat direct

 

Réalisation: 2024

Surélévation et transformation de logements, Fondation Grosjean, Corgémont (BE)

 

Maîtrise d’ouvrage: Commune de Corgémont

 

Architecture: StudioV9

 

Ing. civil: SD ingénierie Biel-Bienne

 

Ing. bois: Wibois

 

Procédure: Mandat direct

 

Réalisation: 2025

Magazine

Sur ce sujet