La faille, mode d’em­ploi

L’extension entre deux maisons, réalisée par Biolley Pollini et M-AP architectes au chemin du Risoux, à Lausanne, est une leçon de transformation. La preuve par l’exemple que même les projets les plus modestes sont sources de réinvention joyeuse et audacieuse de nos modes de vie.

Date de publication
05-05-2022

Cette extension entre deux bâtiments naît à l’origine d’une faille dans le plan d’aménagement de la ville de Lausanne – et il est vrai qu’on les aime, les histoires qui commencent comme ça.

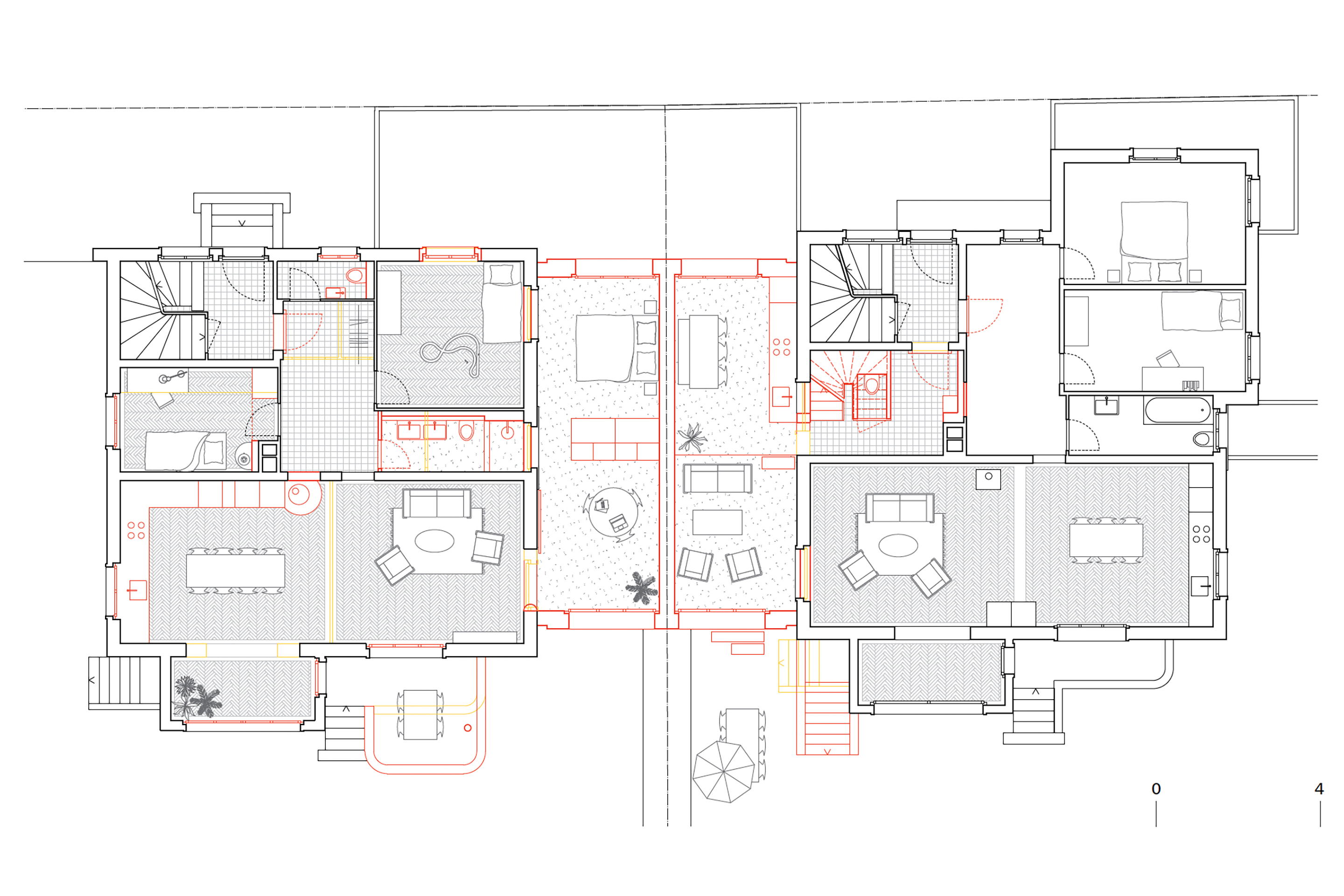
Le chemin du Risoux appartient à un quartier d’immeubles de logements construits en six ans, dans les années 1930, et délicatement emboîtés dans le parc de Valency. La majorité sont des volumes de trois ou quatre étages dotés d’une toiture à quatre pans et percés d’une lucarne. Ils sont traités comme des unités par le plan de quartier; seuls deux «plots», plus compacts et situés sur des parcelles plus petites – les nos 3 et 5, dotés d’une circulation côté rue – sont considérés comme un seul élément. Cette particularité est issue du plan de quartier datant des années 1990: lors de sa conception, il a été supposé qu’un promoteur allait racheter les deux parcelles, raser les maisons existantes et proposer un seul volume qui s’accorderait mieux avec les autres immeubles. Une zone à bâtir existait donc entre les deux grandes villas, ainsi que deux mètres côté jardin.

En 2018, trois familles (dont les architectes) acquièrent le no 5 du Risoux, dans l’idée de fonder une copropriété, en faisant une extension. Or les voisin·es, au no 3, envisageaient une surélévation. D’un commun accord, ils décident de faire un projet ensemble, en exploitant cette petite zone à bâtir interstitielle: soit d’habiter, littéralement, la faille règlementaire. Les architectes proposent donc un volume supplémentaire qui lie les deux villas et développent les typologies de sept appartements1.

Typologies du numéro 5: enfilade

À l’origine, les deux adresses du Risoux étaient des villas urbaines qui accueillaient, à chaque étage, un appartement de 3 pièces, soit un total de six appartements.

Au no 5, les logements se superposent par plateau. L’extension, qui accueille une chambre et une cuisine, ou plusieurs chambres selon les étages, transforme les 3 pièces en 4.5 pièces. Dans l’existant, les interventions sont minimales. La cuisine a été démolie, afin de bénéficier d’une chambre supplémentaire côté nord et libérer des pièces de jour côté sud. Les sols d’origine ont été conservés, tout comme les portes, les radiateurs et l’arrondi au sommet des murs, typiques des années 1930 lausannoises.

Les salles de bain des niveaux 1 et 2 – les appartements des architectes copropriétaires – méritent tout particulièrement que l’on s’y attarde. La première est dotée d’une paroi courbe et arrondie en métal, et son mur est percé d’un hublot qui donne sur la salle à manger : les occupant·es se douchent en regardant les arbres du jardin. La seconde salle de bain, d’inspiration nippone, promet un moment d’élévation aussi bien physique que spirituel par une série de plateaux en terrazo qui culminent dans une baignoire aussi étroite que profonde, éclairée à la zénithale. Les interventions ne sont finalement pas si coûteuses – un trou dans un mur, un sol qui devient baignoire – mais les salles d’eau séduisent par leur originalité et leur poésie.

Enfin, dans les espaces de jour, une enfilade a été créée entre le salon, la salle à manger et l’extension. Pour cette dernière ouverture, la façade extérieure a été littéralement sciée pour offrir un cadrage sur la cuisine. Celle-ci, par ses grandes fenêtres toute hauteur qui peuvent se replier sur les côtés, devient pratiquement une loggia. Le volume supplémentaire offert par l’extension apparaît donc comme un troublant moment de suspension entre les deux maisons, qui oscille entre intériorité et extériorité.

Créativité typologique

La typologie de deux des appartements du Risoux esquisse une solution à un problème sociologique contemporain: en plein chantier, un des couples se sépare. Afin de favoriser une situation stable pour leurs enfants, les parents ont décidé de vivre sous le même toit, mais de manière indépendante2. Pour résoudre la question de la circulation, deux nouveaux escaliers ont été créés – ce qui frôle l’absurde, mais permet à l’ancien couple de cohabiter sereinement, avec les enfants. Un parent occupe le rez-de-chaussée et le premier étage, l’autre le troisième étage et les combles. Quant aux enfants, ils occupent une suite au second et utilisent la porte «maman» pendant une semaine et la porte «papa» la suivante.

Cette solution typologique répond évidemment en premier lieu à une situation d’urgence. Cependant, elle offre beaucoup de flexibilité pour l’avenir et permet d’envisager d’autres scénarios, si un jour la famille venait à déménager: la suite des enfants pourrait être réintégrée à l’un ou l’autre des appartements; être utilisée comme chambres d’appoint par les copropriétaires; être transformée en logement indépendant; ou encore être phagocyté par le deuxième étage du no 5, afin de créer un gigantesque appartement.

Tectonique de la faille

«La déléguée à la protection du patrimoine exigeait une façade minérale pour l’extension: pour y répondre, nous leur avons proposé une façade ventilée revêtue de carrelage. Ce n’était pas tout à fait ce à quoi elle s’attendait, mais, à force d’argumentation et de discussion, notre proposition a été bien reçue», explique Priscille Biolley, l’une des architectes du projet.

Ce parti pris qui refuse d’imiter l’existant confère à l’addition un statut d’adresse indépendante – bien qu’elle soit, à l’intérieur, séparée en deux dans le sens de la hauteur pour offrir de la surface supplémentaire à chacune des deux maisons. Ce choix est renforcé par la couleur – sombre, qui détonne avec le crépi clair des maisons existantes – ainsi que par la mise en retrait de la façade. Les modénatures et les joints en négatifs insistent sur l’idée que l’extension se glisse entre deux volumes inchangés, dont les transformations s’efforcent d’être fidèles à l’existant; un aller-retour entre ce qui est perçu – trois volumes indépendants – et la réalité vécue – sept appartements qui les traversent.

C’est peut-être dans ces petits programmes touchant au quotidien que se développent aujourd’hui de nouvelles directions intéressantes à observer dans la profession, plus que dans les grands programmes figés et normés. La transformation est une pratique en soi, qui invite à des explorations typologiques et poétiques inédites, précisément parce qu’elle se heurte à des contraintes.

Notes

 

1 Bien qu’elle soit issue d’une irrégularité du plan de quartier, cette approche pourrait servir d’inspiration dans le cadre d’une stratégie de densification de la ville de Lausanne, composée essentiellement de petits volumes autonomes.

 

2 Comme dans la série l’Amour flou, qui raconte l’expérience personnelle de Romane Bohringer et Philippe Rebbot, deux réalisateur·rices qui ont rompu amoureusement mais continuent de vivre avec leurs enfants sous le même toit, dans deux espaces séparés (2018).

Extension entre deux bâtiments, Lausanne (VD)
Maître d’ouvrage
Privés

 

Architecture
biolley pollini architectes & M-AP architectes

 

Ingénieur civil
Gex & Dorthe Ingénieurs

 

Thermicien
Perenzia Ingénieurs

 

Conception bois
schaerholzbau ag

 

Planification
2018-2019

 

Chantier
2020-2021

 

Surface de plancher brute
414 m2 + 486 m2

 

Coût HT CFC2
2 165 000.– CHF

Sur ce sujet