Ha­bi­ter la poste

Le bâtiment de logements réalisé par Bakker & Blanc architectes pour le service immobilier de la Poste s’insère dans le cadre particulièrement dense du centre historique genevois. Au croisement de nombreuses contraintes, le projet se caractérise par la grande précision des gestes architecturaux et la générosité des espaces.

Date de publication
21-05-2024

La proposition du bureau Bakker & Blanc architectes impliquait, dès le stade du concours, la destruction du bâtiment préexistant, dont la morphologie ne permettait pas de recevoir le programme souhaité par le maître d’ouvrage, soit le maintien d’un bureau de poste et la création de surfaces administratives au premier (en double hauteur), puis de 20 logements à partir du second remplaçant les bureaux précédemment présents. Cependant, malgré la démolition de l’édifice d’origine, les architectes ne se sont pas soustraits à la délicatesse de l’opération. La liste des contraintes initiales comprenait de multiples servitudes restreignant le gabarit (notamment une servitude de cour, qui oblige à effectuer un retrait de 4 m dès le 5e niveau), un chantier complexe (intervention dans un centre urbain dense, en mitoyenneté sur trois faces), un vocabulaire architectural voisin foisonnant, et une optimisation de la densité à disposition de la part des commanditaires. C’est par la cohérence globale des partis pris que le nouveau bâtiment parvient à relever les défis du programme, et par une rationalité généreuse qu’il les dépasse.

Discours de façade

Depuis la rue du Vieux-Collège, au pied de la Vieille-Ville de Genève, la nouvelle façade en béton préfabriqué accroche la lumière. Dans un jeu subtil d’ombres et de reflets, les modénatures des éléments, le barreaudage des garde-corps et les stores à projection à demi déployés sont autant d’anfractuosités animant l’ensemble. La façade est une synecdoque, une partie qui annonce d’emblée l’ensemble du projet : force du dessin, vérité des matériaux, usage maximum des possibilités du gabarit, mais aussi plaisir du dialogue formel avec de vénérables voisins – on pourra citer, par exemple, le Vieux Collège de l’architecte genevois Emile Reverdin (construit en 1898), en face, ou l’ancien cinéma Étoile des frères Camoletti (1924), en mitoyenneté sur le cœur de l’îlot.

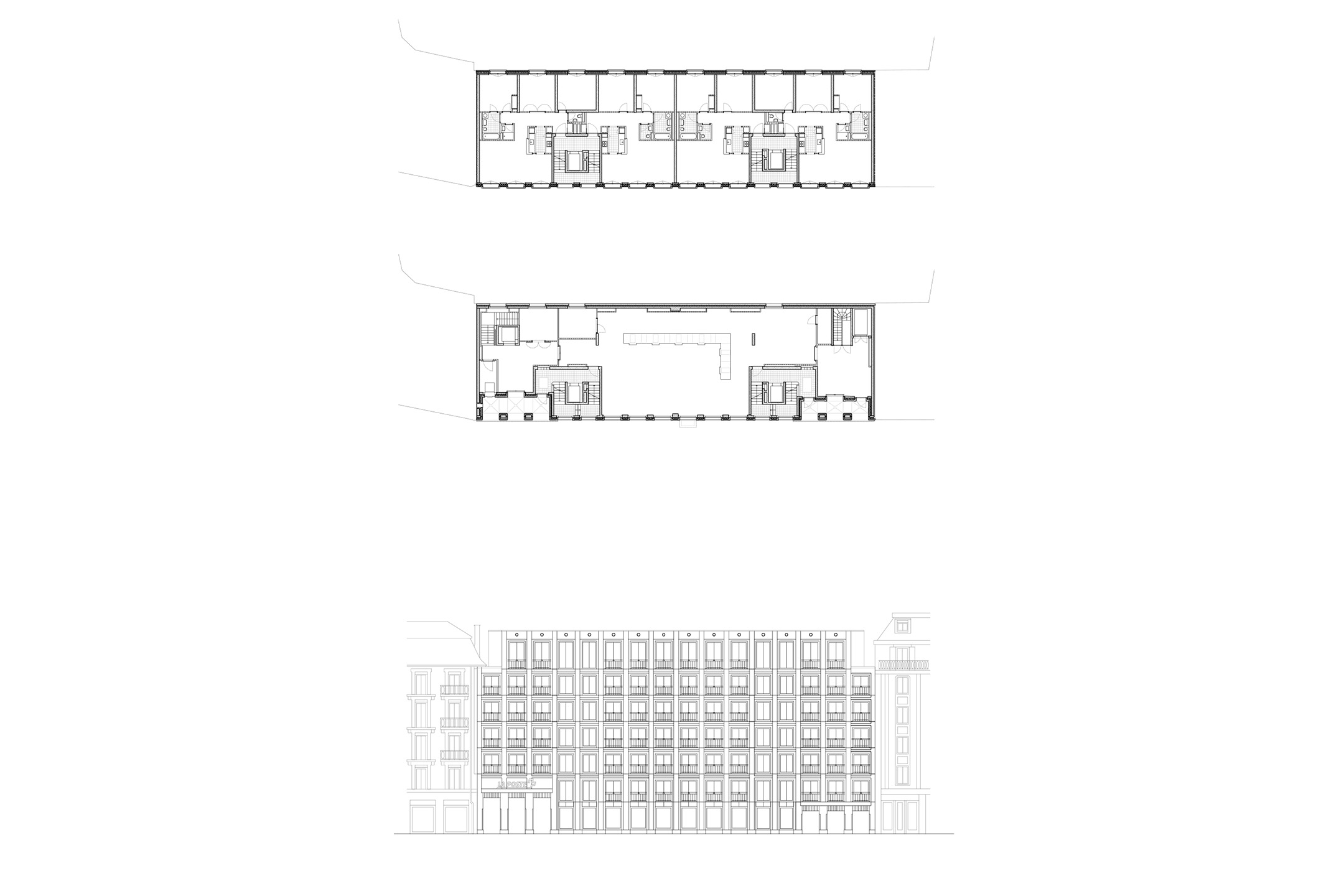
C’est une trame régulière qui dessine la façade, qui semble être construite avec un système de bandeaux et meneaux. En réalité, de faux-joints régulent la façade pour l’inscrire dans un ordre classique. Les éléments préfabriqués en béton gris-vert doivent s’intégrer dans le contexte immédiat. Pour les architectes, l’enjeu était de retrouver dans la recette de béton un contraste équivalent aux pierres des immeubles voisins. Ainsi les agrégats calcaires (tirant vers le jaune) sont-ils révélés par un polissage de la surface. Le rez-de-chaussée présente une double hauteur, marquant l’usage commercial du socle et son lien à la rue. Les étages s’empilent d’un pas régulier, jusqu’à rejoindre un attique caractérisé par une plus grande hauteur sous plafond. Ce tramage vertical lisible (socle, développement, couronnement) accentue l’effet urbain de hauteur et de densité.

Dans un environnement chargé en matériaux, formes et ornements, le bureau Bakker & Blanc assume résolument la contemporanéité de l’intervention, refusant le pastiche, tout en établissant un dialogue formel direct avec les bâtiments à la ronde. Les vitrages fixes des cages d’escaliers, par exemple, sont placés sur le même plan horizontal que les fenêtres à la française des logements, maintenant des bandeaux continus sur toute la trame, et répondant aux bow-windows du Vieux Collège faisant face.

Dans le même état d’esprit, l’édifice ne propose pas de véritables ornements, contrairement aux bâtiments historiques alentour, mais une vibration de la façade en trois dimensions, notamment avec des corbeilles de fenêtre en porte-à-faux de 14 cm (le maximum autorisé) qui, additionnées à l’embrasure de la façade, offrent une quarantaine de centimètres pour se tenir debout à l’extérieur. Celles-ci créent un relief perceptible depuis l’extérieur, et une avancée des logements sur la rue, les ouvrant toute hauteur et rendant l’espace accessible.

Enfin, de part et d’autre de la façade, deux portiques en rez-de-chaussée limitent la séquence urbaine. À l’ouest, une cage d’escaliers est combinée à l’entrée du bureau de poste, à proximité de la place de la Madeleine adjacente; à l’est, une seconde entrée intègre le hall de livraison de la poste.

Logements sur mesure

La rigueur annoncée par la façade est également perceptible dans le déploiement des appartements sur la bande d’environ 12.5 m de profondeur que ceux-ci occupent. Avec une hauteur sous plafond réduite à 2.4 m et un plan d’étage-type répétitif jusqu’au 5e niveau1, l’organisation des logements est systématisée malgré la diversité typologique (un panaché d’unités de 2.5 à 4.5 pièces sur l’ensemble de l’immeuble). La façade sud, donnant sur rue, reçoit les pièces d’usage diurne (salon, salle à manger, cuisine), et la façade nord les chambres, dont la plus vaste, en continuité de la cuisine et du salon, est dotée d’une double porte toute hauteur permettant de profiter pleinement du caractère traversant des appartements. Enfin, les deux cages d’escaliers offrent une distribution efficace comportant peu de linéaire de couloirs, et maximisant l’occupation du volume des appartements.

Le lien avec le contexte est aussi présent à l’intérieur des logements, dont les plans perpétuent des éléments typologiques genevois typiques, comme la cuisine en «laboratoire» ouverte à mi-hauteur sur la salle à manger et assurant la porosité visuelle d’une façade à l’autre, ou les lucarnes de l’attique, éclairant cuisines et salles de bains.

Douceur et rationalité

L’expression forte du projet tient aussi au soin porté aux matériaux. Le caractère urbain du dessin de façade est soutenu par une minéralité marquée. Les éléments de béton préfabriqué, dont la couleur gris-vert est rehaussée par des agrégats jaunes, présentent en façade deux finitions: les élément structurants sont polis (révélant les agrégats calcaire et faciles d’entretien) tandis que les encadrements (qui seront au contact des usagers) sont légèrement en relief, laissés bruts de décoffrage, c’est-à-dire lisses. Au rez-de-chaussée ainsi que dans les étages, les piliers encadrant les portes comportent des angles largement chanfreinés, suggérant ou facilitant le passage répété des usagers. Ce détail accentue le rapport entre le corps humain et la matière minérale: la rigidité de celle-ci n’est pas dénuée de douceur, inscrivant l’ensemble du bâtiment dans une ambivalence entre rationalité et délicatesse. Celle-ci trouve aussi son expression dans le motif récurrent du cercle, présent notamment dans les barreaudages des garde-corps, et faisant directement écho aux ferronneries de l’édifice contigu.

Enfin, si les intérieurs se caractérisent par des matériaux chaleureux (papier peint au relief en chevrons, parquets en chêne massif, menuiseries toute hauteur en bois peint bleu-gris pastel), la «vérité» et la durabilité de ceux-ci prolongent le caractère brut de la façade ou des communs en béton apparent. Les sens des usagers sont confrontés aux qualités intrinsèques de la matière, sans intermédiaire. On pourra citer aussi le terrazzo des parties communes, se retrouvant dans les salles de bains et les cuisines, brouillant réciproquement les limites entre l’urbain et le domestique.

L’architecture comme bien commun

Le projet du bureau Bakker & Blanc s’adresse donc à la ville à différentes échelles. Tout d’abord dans le soin porté aux matériaux, pensés pour prodiguer confort et longévité : le bâtiment s’inscrit dans le temps long du développement de l’agglomération. Ensuite, dans l’optimisation de l’usage de la parcelle, le nouveau bureau de poste présentant, par exemple, un fonctionnement plus adapté aux conditions urbaines actuelles avec la suppression de l’ancien quai de déchargement pour camions. Enfin, par des choix forts et attentifs, le nouveau bâtiment de la poste met son contexte en valeur, tout en offrant des logements neufs précieux dans le cœur de Genève.

La Poste, logements à Genève (GE)

 

Programme
Immeuble de 20 logements locatifs, 4 bureaux et une poste au rez-de-chaussée

 

Maître de l’ouvrage
Postfinance, Berne

 

Architecture
Bakker & Blanc architectes, Lausanne

 

Direction des travaux
Quartal, Chêne-Bougeries

 

Ingénierie civile
Kung et Associés, Lausanne

 

Ingénierie CV S-E/AC
Planair, Genève

 

Ingénierie sécurité
Orqual, Genève

 

Ingénieur géomètre
HKD, Genève

 

Concours
2016

 

Construction
2022-2024

 

Surfaces brutes de plancher
3950 m2

 

Coûts CFC 2 (sans honoraires)
11.5 mio CHF

Note

 

1 Les appartement créés (à l’exception de l’attique) présentent 2.4 m de hauteur sous plafond, contre 2.5 m réglementaires à Genève. Cette réduction a été tolérée par les services administratifs afin de permettre la création de plus de logements sur la parcelle.

Magazine

Sur ce sujet