Cam­pus Sur­see Spor­ta­rena: vi­trine de la cons­truc­tion suisse en bé­ton

Les halles du nouveau centre sportif se caractérisent par de grands espaces épurés et un emploi intelligent du béton préfabriqué. La structure en béton précontraint a nécessité une attention particulière de la part des constructeurs, notamment en raison de l’environnement corrosif de la halle de natation.

Date de publication
17-07-2019
Thomas Ekwall
MSc. EPFL Bau-Ing., MAS ETHZ Arch., Korrespondent TEC21

En 1972, la Société suisse des entrepreneurs (SSE) prend ses quartiers à l’ouest de Sursee (LU). Son centre de formation professionnel devient rapidement le plus grand de Suisse et offre aujourd’hui également une large palette de services autour de l’hôtellerie, du sport et de la gastronomie. La piscine d’origine étant vétuste et la Fédération Suisse de Natation cherchant de nouveaux locaux, un concours d’architecture sur invitation est lancé en 2014 pour la mise en œuvre d’un centre sportif comportant un complexe de natation et une salle de sport triple.

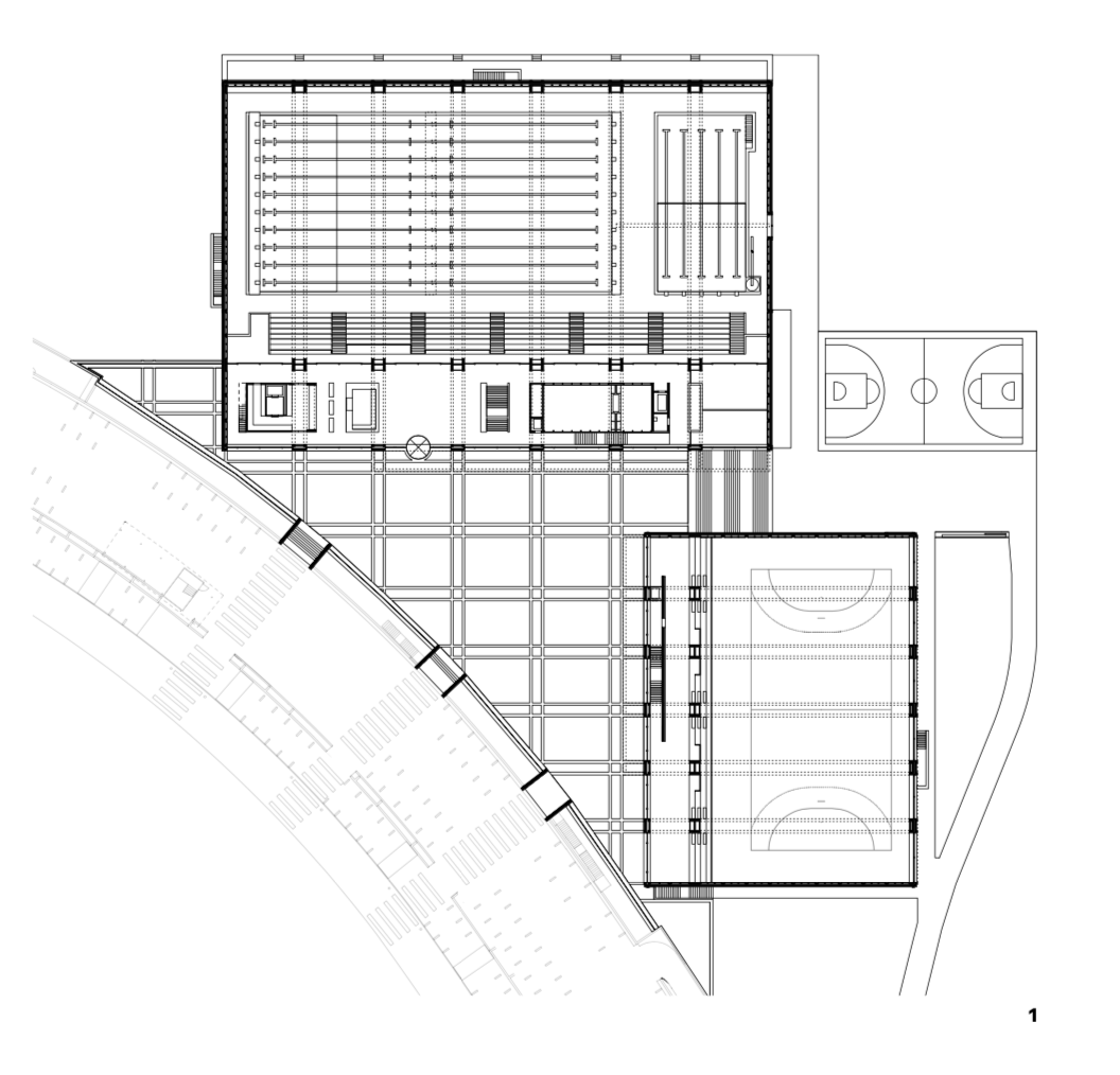
Synthèse des disciplines

L’équipe réunie autour des architectes Rolf Mühlethaler (Berne) et des ingénieurs Schnetzer Puskas (Bâle) obtient le mandat après avoir remporté le concours. Ils conçoivent deux halles architecturalement et structurellement identiques, avec un dimensionnement spécifique adapté aux programmations respectives. Pour la halle de natation, ils prennent en compte une capacité en tribunes de 700 personnes extensible à 1500, un bassin de natation olympique à dix lignes de 50 m, ainsi qu’un bassin semi-olympique de cinq lignes de 25 m avec un bassin de plongée intégré de 5 m de profondeur ; pour la salle de sport, des tribunes pour 300 personnes et un terrain de sport multifonctions.

Les deux halles, à la volumétrie indépendante, possèdent un caractère monolithique accentué par la façade sans joints. Elles sont décalées l’une par rapport à l’autre et articulées autour d’une place triangulaire qui s’ouvre sur le paysage ambiant. Les trames structurelles des halles servent de leitmotiv géométrique se poursuivant dans les poutres porteuses en toiture, dans la façade non--porteuse et jusque dans le motif du sol de la place triangulaire, où les deux trames s’entremêlent pour former un échiquier. Ce concept matérialise bien l’intention des auteurs du projet de concevoir l’architecture, la structure et le paysage comme un ensemble.

Intelligence constructive

La structure se lit comme une superposition d’éléments structuraux distincts et complémentaires qui lui confère une qualité narrative et une lisibilité immédiate. L’intérêt principal de la structure porteuse réside toutefois dans sa matérialisation en béton précontraint. Comme pour prouver la performance des poutres principales, les ingénieurs leur font non seulement porter la toiture au-dessus du bassin de natation, mais également au-dessus des tribunes. Elles atteignent ainsi une portée maximale de 40 m. Derrière les tribunes, ces mêmes poutres sont prolongées de 12 m au-dessus du foyer. Cette conception statique de poutre continue avec encastrement semi-rigide sur trois appuis (poteaux en façades nord et sud ainsi que poteaux intermédiaires) permet de réduire les efforts de flexion et les déformations dans la travée principale.

La section des poutres principales montre qu’il s’agit en réalité de poutres jumelles entre lesquelles est aménagé un espace technique praticable de 1.25 m de largeur et de 2 m de hauteur pour l’évacuation de la fumée et de la chaleur, l’éclairage, les colonnes de chute sanitaires et la sonorisation. Cette intégration de la technique du bâtiment derrière la structure harmonise encore d’avantage l’espace ressenti par les utilisateurs.

La toiture est constituée de dalles nervurées qui assurent l’effet diaphragme en cas de sollicitation horizontale. Les sections en H des poteaux, en accord avec les poutres principales jumelles, sont aptes à reprendre les sollicitations horizontales longitudinales en cas de séisme. La stabilisation latérale est assurée par l’effet cadre des poutres et des poteaux.

Conscients de l’accident tragique d’Uster en 19851, les concepteurs ont apporté une attention particulière à l’action corrosive de l’environnement de la piscine, acide et riche en chlore. Ainsi, les éléments secondaires et porteurs sont appuyés et non suspendus, et les éléments de fixation sont constitués d’alliages d’acier de qualité 1.4529. La surface de béton est munie d’une imprégnation hydrophobe, l’armature passive est enrobée d’au moins 4 cm de béton et les gaines des câbles de précontrainte sont en matière synthétique. Enfin, la précontrainte limite l’ouverture nominale des fissures à 0.2 mm.

Les fondations sont conçues en fonction des profondeurs d’appui ainsi que des conditions hydrologiques et géologiques : de manière générale, le radier étanche de 40 cm à 60 cm d’épaisseur résiste à la poussée ascensionnelle. Des micropieux supplémentaires se sont avérés nécessaires sous les bassins de plongée. Des pieux, forés jusqu’à une profondeur de 22 m, transmettent dans le sol les charges verticales des poteaux de part et d’autre de la portée principale de l’ordre de 1000 t. 

Préfabrication avancée

Les ingénieurs ont privilégié une préfabrication maximale de la structure porteuse, permettant d’optimiser à neuf mois l’ensemble des travaux de gros œuvre à partir du radier, une réduction de l’ordre de deux mois comparée à une solution conventionnelle en béton coulé sur place. Ainsi, les poutres principales jumelles, d’une longueur et d’un poids maximaux de 24 m, respectivement 44 t, ont été mises en œuvre en six éléments armés et précontraints individuellement par adhérence en usine, puis transportés sur le site. L’entrepreneur les a placés sur des échafaudages provisoires à la hauteur prévue puis a bétonné sur place les joints de montage de 2 m de hauteur pourvus d’armatures en attente. Les câbles de précontrainte ont été tirés dans les gaines prévues à cet effet dans les trois éléments de poutres placées en enfilade puis post-tendus avec adhérence. Grâce à cette précontrainte sur site, la poutre sectionnée agit à l’état final comme une poutre monolithique de 52 m de long. 

Dans le même esprit, la dalle nervurée est constituée de poutres T préfabriquées avec panneaux acoustiques intégrés, mis côte à côte et connectés entre eux par un surbéton de 8 cm qui assure l’effet diaphragme de la toiture. Au total, ce sont 3815 t d’éléments préfabriqués de poutres, poteaux et dalles qui ont été livrés et montés sur le chantier.

Bâtiment et infrastructure

Que penser de ces halles de grande portée conçues avec une toiture en béton précontraint ? S’agit-il d’un précédent qui s’appliquerait à d’autres contextes ? L’ingénieur Tivadar Puskas donne quelques éléments de réponse dans une interview accordée à Christoph Schläppi2 : « Il existe bien entendu des solutions éprouvées et économiques en acier ou en bois. Avec cette structure minérale, nous voulions cependant représenter la SSE et ses valeurs. Car quoi de plus naturel que de s’intéresser à la philosophie d’un mandataire qui lance un concours d’architecture au lieu de faire appel directement à une entreprise totale ? Cette structure se doit d’être une vitrine du savoir-faire des entrepreneurs suisses de la construction en béton. » Faire appel à cette main-d’œuvre est donc un choix délibéré qui, dans le cas présent, ne se limite pas à répéter les codes habituels du béton apparent, caractéristiques de l’architecture suisse. En employant notamment la préfabrication à grande échelle, l’ouvrage marie la générosité d’un espace épuré avec la monumentalité d’une structure dont les proportions évoquent d’avantage les ouvrages d’art qui traversent nos paysages.

Notes

1 Le 9 mai 1985, le plafond de la piscine couverte d’Uster (ZH) s’effondre et ensevelit les nageurs présents, faisant 12 morts et 19 blessés graves. L’enquête, dont la partie scientifique a été confiée à l’Empa, arrive à la conclusion que l’effondrement du toit est le fait d’une corrosion fissurante sous tension des étriers de suspension. L’acier inoxydable dont ils sont faits est particulièrement vulnérable à ce phénomène lorsqu’il est au contact d’une atmosphère corrosive comme celle d’une piscine, ce que les experts ignoraient encore lors de la construction de la piscine, au début des années 1970.

2 «Werkstattgespräche» (avec Rolf Mühlethaler, Jürg Rehsteiner, Tivadar Puskas, Florian Riegler, Silke Langenberg et Toni Häfliger), dans : Rolf Mühlethaler - fragile ordnung - fragile order, Luzern: Architekturgalerie, Park Books, 2017.

Données du projet

  • Maître de l’ouvrage : Stiftung Campus Sursee
  • Coûts : 60 mio CHF
  • Durée des travaux : 2016-2019
  • Ouverture : avril 2019

Intervenants planification

  • Architecte et planificateur général : rolf mühlethaler architekt bsa sia, Berne
  • Ing. civil : Schnetzer Puskas Ingenieure, Bâle
  • Ing. civil (terrassement) : Kost + Partner, Sursee
  • Coordination technique du bâtiment : Kurt Weiss,
  • W & Partner Fachkoordination AG, Otelfingen
  • Ing. électricien : HHM, Berne
  • Ing. CVSE : Absicht AG, Zug
  • Ing. piscine : Kannewischer Ingenieurbüro, Cham
  • Architecte paysagiste : w+s Landschaftsarchitekten, Soleure
  • Géologue : Keller + Lorenz AG, Lucerne

Intervenants construction

  • Entreprise générale : Implenia Schweiz AG
  • Travaux d’entreprise de maçonnerie (CFC 211) : Implenia Schweiz AG
  • Construction préfabriquée en béton-maçonnerie (CFC 212) : Element AG, Veltheim ; Alphabeton AG, Büron
  • Inst. électriques (CFC 230) : Maréchaux, Sursee
  • Chauffage, ventilation, conditionnement d’air
  • (CFC 240) : Riggenbach AG, Olten
  • Sanitaire (CFC 250) : ENGIE Services AG, Kriens
  • Appareils sanitaires spéciaux (CFC 352) : Aquila Wasseraufbereitungstechnik, Wertheim (D) ; Mauchle Pool AG, Sursee
  • Ouvrages métalliques (CFC 272) : Iromet AG, Alpnach ; Sprich AG, Baar ; Metallbau Bühlmann AG, Wauwil
  • Menuiserie (CFC 273) : Heim AG, Waltenschwil
Magazine

Sur ce sujet