Le sol, base de la cons­truc­tion

Hôtel Leo, Saint-Gall (SG)

À Saint-Gall aussi, la construction en terre crue entend viser haut: Grâce à la prestance esthétique de jour comme de nuit de ses blocs de terre crue, l’Hôtel Leo du bureau Boltshauser Architekten est une vitrine pour ce matériau durable.

Date de publication
30-04-2024

Situé juste derrière la gare de Saint-Gall, l’Hôtel Leo abrite un escalier qui offrirait un excellent site pour une démonstration des mouvements complexes d’un ressort hélicoïdal Slinky comme aurait pu en faire Donella Meadows: le ressort y dévalerait l‘escalier, tantôt grossissant, tantôt s’amenuisant – à l’image des marches elles-mêmes. Les marches, côté droit, sont hautes et permettent de s’y asseoir; à gauche de la rampe, elles sont plus petites et permettent d’accéder à la réception. 

Difficile d’imaginer une forme plus simple que celle du Slinky, ce jouet pour enfant développé aux USA en 1943. Chaque fois qu’on lui fait dégringoler les marches, le ressort ne cesse de surprendre par ses déformations, réalisant de capricieuses oscillations et embardées dès que l’énergie se déplace sur une nouvelle portion de la spirale en mouvement. 

Donella Meadows, figure célèbre des sciences de l’environnement, de la théorie des systèmes et co-autrice de l’étude « Limits to Growth » publiée il y a bien 50 ans, a utilisé ce jouet pour illustrer dans ses livres1 et conférences la complexité des systèmes: le mouvement d’une partie donnée d’un système ne se traduit pas de façon linéaire par un effet unique sur une autre partie spécifique. Il déclenche au contraire toute une série de réactions dans l’ensemble du système. 

Les cascades d’un projet

De même, dans le bâtiment, les systèmes ne fonctionnent pas non plus par réactions en chaîne linéaires. D’où la difficulté de les concevoir dans une perspective durable. Architecture et ingénierie ont toutefois une marge de manœuvre non négligeable pour atténuer le changement climatique: des calculs viennent étayer cette revendication depuis plusieurs dizaines d’années. Cependant, pour évoluer, les processus de planification et de construction ne se soumettent pas à la logique de l’urgence des questions climatiques mais à celle des systèmes complexes. Et ces derniers, à leur tour, ne cèdent que très difficilement au changement car «le système est plus que la somme de ses composants»,2  comme l’écrit Donella Meadows. D’autres propriétés et comportements découlent en effet des interactions. Alors, par où commencer? Pourquoi pas par la terre enlevée par pelletées sur de si nombreux chantiers. 

Ouvert en juillet 2023, l’Hôtel Leo montre bien le cachet que peut donner la terre crue à un immeuble, aussi grand et haut soit-il. L’hôtel est une construction hybride, support béton et revêtement clinker – l’intérieur, quant à lui, émane directement du sol. A travers un passage en blocs de terre crue jointoyés sur toute la hauteur du mur, le grand escalier d’entrée monte de la porte du bas (face à la Lokremise) jusqu’à la réception et à l’entrée supérieure (à côté de la Villa Wiesenthal). L’espace entre les murs aux teintes terreuses et multicolores frappe par son aspect long et étroit. On trouve ici bien des choses à dire sur les systèmes en architecture, même sans Slinky à l’appui, en premier lieu sur le sol, sur et grâce auquel se dresse la construction. À tous les étages de l’immeuble, que l’on soit ici pour manger, boire un verre ou passer la nuit, c’est la terre qui nous entoure, la terre arrachée au sol, pressée et empilée.

Creuser la question du matériau de construction

Espace à bâtir, le sol joue ici, comme sur presque toutes les autres places centrales, un rôle majeur. L’hôtel de huit étages s’étend ainsi tout en finesse et en hauteur afin qu’ait pu demeurer sur le site qu’elle occupe depuis 1878 la Villa Wiesenthal, récemment rénovée par Pfister Schiess Tropeano. Une occupation du sol minimale qui se fonde sur la nécessité de préserver la villa historique. De plus, une proportion considérable de cette construction est faite à base de terre crue – et donc à base de terres de déblai qui finissaient, il n’y a pas si longtemps encore, en grande partie à la décharge. 

La construction en pisé intéresse Roger Boltshauser depuis de nombreuses années déjà. Il a étudié les constructions de tours et coupoles telles qu’on en trouve du Burkina Faso au Yémen, et a démontré, en collaboration avec le spécialiste de la construction en terre crue du Vorarlberg Martin Rauch que ce type de construction convenait tout à fait aux intérieurs comme aux extérieurs, aux structures porteuses comme aux revêtements, et même aux mobiliers comme aux fours. Comme l’a d’ailleurs dernièrement démontré la tour du four de Boltshauser pour le musée de la briqueterie à Cham. 

Comme il l’a constaté avec ses équipes de recherche de l’EPFL et de l’ETH Zurich, la technique de la construction en pisé s’est déplacée en suivant les routes du commerce textile au 18 siècle de la France vers la Suisse – et donc vers la Suisse orientale.3 Et ainsi se dresse à présent, au beau milieu de Saint-Gall cette petite tour dans laquelle différentes compositions mettent en scène la technique du pisé dans une adaptation contemporaine. 

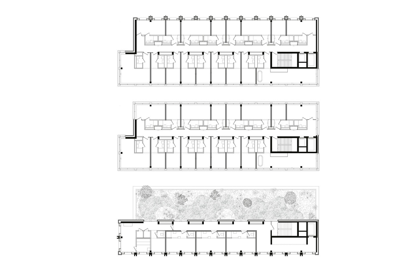
102 chambres d’hôtel, un restaurant, un espace de coworking, un parking couvert et un espace spa se pressent le long de la délimitation sud du terrain dans ce building de grande hauteur. Le restaurant japonais qui s’étend, côté ville, sur toute la longueur de l’embase forme le pendant gastronomique à la réduction recherchée pour l’esthétique de l’immeuble qui mise intégralement sur l’effet des surfaces de terre crue.

Une réflexion associant confort et bien-être

La construction intégralement en terre crue se heurte souvent au scepticisme du fait de l’entretien que demandent à l’extérieur les murs de terre crue pressés et compactés. Même s’il y a des débords de toiture et des plinthes, les surfaces minérales verticales vont être lessivées par la pluie et l’humidité. Cela se produit même si les blocs de terre crue ont été stabilisés avec du ciment ou de la chaux. 

En intérieur, en revanche, la sensualité du grain des modules et enduits en terre crue est un aspect de plus en plus recherché. Le gros avantage de la forte teneur en substances minérales des matériaux en terre crue réside dans leur porosité, plus précisément leur microporosité. L’humidité de l’air comme l’acoustique bénéficient des propriétés de régulation naturelles de celle-ci. Et l’inertie thermique offre en outre des températures ambiantes équilibrées.

Outre le bilan écologique, le confort est donc l’argument de poids en faveur de ces solides blocs de terre crue. Des études de l’université technique du Danemark (2005) et du département architecture et ingénierie de l’université de Bath (2014) ont montré qu’une proportion de 3 à 5%, suivant l’utilisation prévue, de ciment ajouté aux briques de terre crue pour les stabiliser, ne modifie guère la perméabilité des blocs. Les blocs de terre crue stabilisés avec un peu de ciment ont ainsi un poids conséquent du point de vue de leur capacité portante ce qui, toutefois, leur confère aussi des avantages, et pas seulement en termes de physique du bâtiment. La terre crue possède aussi des qualités esthétiques et reste visible à l’état brut à l’intérieur de l’hôtel, en dehors du sous-sol et de l’espace sauna.

Les murs, le long de l’escalier dans le hall d’entrée et dans le restaurant, sont maçonnés avec de petits blocs de terre compressée de 25 cm de long (Terrabloc S) et présentent une arête supérieure constituée de deux couches de briques disposées verticalement. Passé cette première rencontre avec la terre crue, les clients de l’hôtel découvrent les étages supérieurs et leurs alignements de blocs de plus grande taille: le format Terrapad M de 80 cm qui s’est déjà distingué dans d’autres projets d’habitation et même dans une station de pompage d’eau. En alternance avec les piliers de l’ossature béton et des noyaux rigidifiant en béton coulé sur place il en découle des compositions rythmiques adaptées aux différents lieux et espaces, caractéristiques du style Boltshauser.

La startup genevoise Terrabloc, fondée en 2011, qui a réussi, ces dernières années, à renforcer sa production avec des partenaires régionaux en Suisse alémanique et romande, a fourni les blocs de terre crue. Après avoir été étudiée, la possibilité d’utiliser la terre directement déblayée sur le chantier de Saint-Gall a été rejetée. Le matériau ne provient donc pas du sol de fondation, comme dans le cas de la maison Rauch, beaucoup plus modeste, mais des environs. Ainsi la consommation des ressources et l’énergie de fabrication peuvent être intégralement retracées. 

La construction en terre crue présente, dans les calculs, d’importantes économies par rapport aux modes de construction classiques avec des importations de régions éloignées. Comparés aux parcours empruntés par l’industrie du béton et de l’acier, ceux de ces blocs de terre sont négligeables. Laurent de Wurstemberger, cofondateur de l’entreprise Terrabloc, précise que, dans un souci de diminuer les chemins de production, ce sont chaque fois les déblais les plus proches qui sont privilégiés. 

Terre, cuite et compressée

Le projet de Roger Boltshauser traduit les spécificités du lieu en empilements expressifs. Bandeaux d’allèges et liserés à parement clinker à l’extérieur, blocs de verre et blocs de terre crue maçonnés à l’intérieur; lignes tout en longueur partout, jusque dans les plans, afin de rendre la longueur du bâtiment perceptible de l’intérieur. 

À l’intérieur, la terre est crue, à l’extérieur, la terre cuite: Le revêtement de façade de ce bâtiment est constitué de clinker gris-blanc et verdâtre, inspiré des enduits clairs et du grès verdâtre de la Villa Wiesenthal et conjugué aux éléments béton préfabriqués, éclaircis avec du calcaire du Jura. 

Placés derrière les volets d’aération qui entrent dans l’orchestration rythmique de la façade, des éléments en terre cuite brun rouille offrent différents contrastes de couleurs. La terre cuite est le seul matériau visible à la fois à l’intérieur et à l’extérieur. Elle fait la transition entre le clinker cuit à l’extérieur et les blocs de terre crue compressés à l’intérieur. 

De grandes fenêtres et les motifs ajourés laissent pénétrer une lumière abondante. En présence du matériaux terreux utilisé dans toute sa gravité, un climat ambiant s’instaure en adéquation et s’accompagne d’une sensation de légèreté. Nul besoin ici de tableaux encadrés au-dessus des lits – les couches compressées de terre crue dessinent à elles seules motifs, paysages et invitations à la méditation.

Notes


1 Donella Meadows, Thinking in Systems. A Primer, London: Chelsea Green Publishing 2008.
2 Ibid., p. 188.
3 Roger Boltshauser, Pisé – Stampflehm. Tradition und Potenzial, Zurich : Triest Verlag 2019.

Sur ce sujet