Fe­nêtre sur cour

Le bureau genevois LRS (Lin.Robbe.Seiler) a livré en 2024 un nouvel EMS pour l’Ensemble Hospitalier de la Côte à Aubonne (VD), dans un contexte résidentiel. Objet compact et sur cour, qui assume son apparente simplicité, le projet est-il révélateur d’un programme qui a trouvé sa forme définitive, son architecture?

Date de publication
09-10-2025

Lauréat d’un concours sur invitation en 2017, le projet de LRS s’est démarqué des autres propositions par son implantation. Celle-ci prend en effet en compte la vision à long terme du centre hospitalier, dont l’EMS serait l’un des fragments. Le bâtiment, grâce à sa forme simple et sa densité, fera ainsi partie de la constellation formée par l’ensemble qui remplacera à terme le complexe existant, situé à une quinzaine de kilomètres du nouvel EMS. Les concurrents avaient, quant à eux, misé sur des implantations plus articulées et déhanchées.

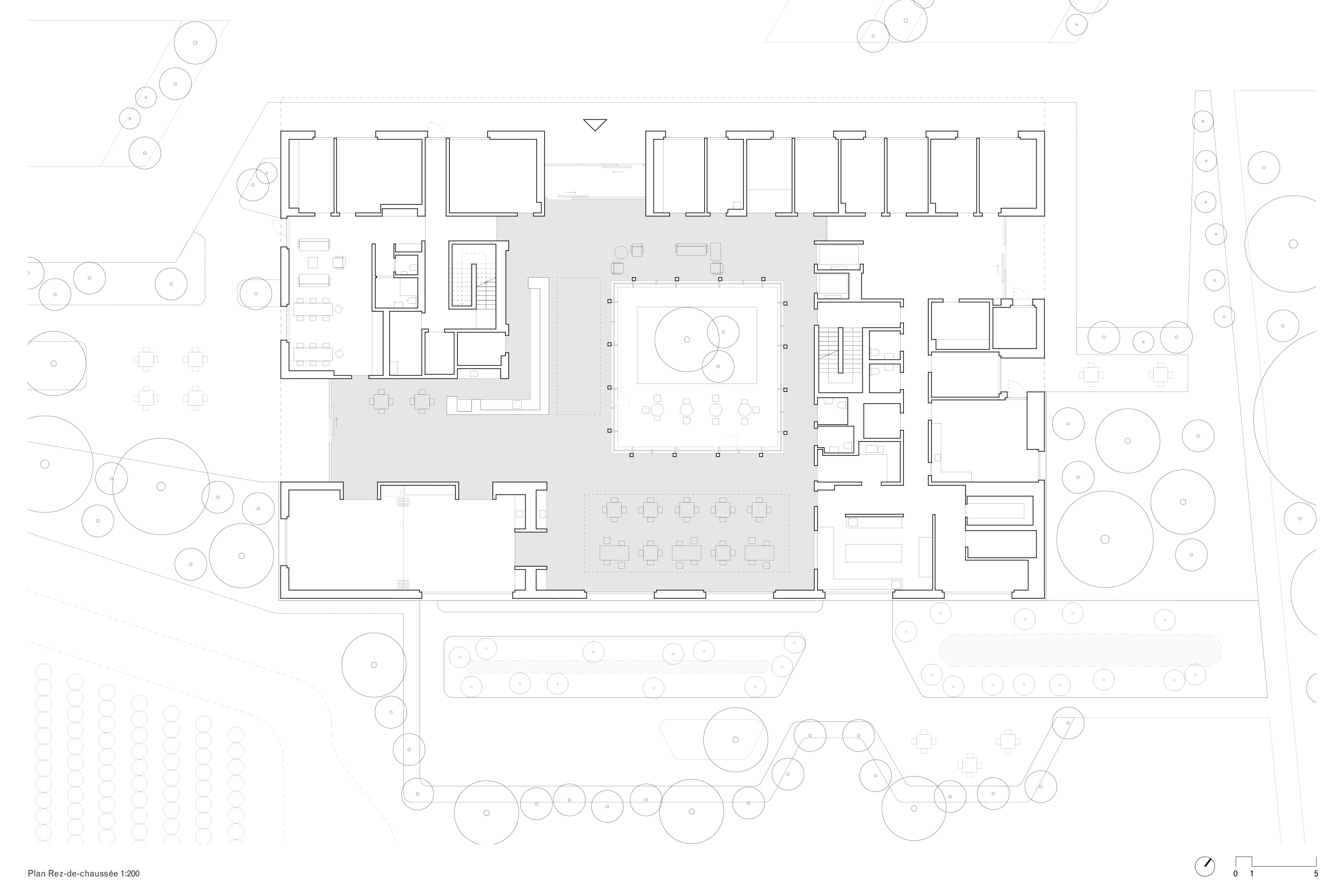
Le bâtiment se présente ainsi sous la forme d’un cube percé d’un atrium. Au rez-de-chaussée sont placés le centre d’accueil temporaire, la grande salle à manger, la cuisine principale, les salles d’activités ainsi que les bureaux. Les deux étages accueillent quant à eux les lits des résidents sous la forme de quatre ailes de chambres classiques, des plus petits salons et espaces de rencontres, ainsi que les distributions verticales et les espaces du personnel médical. En coupe, le projet tire avantage de la topographie descendante au sud-ouest pour y placer des bains thérapeutiques, ainsi que différents programmes annexes et techniques.

Une cour pour se retrouver

La typologie du bâtiment à cour est vieille comme le monde et a traversé l’histoire de l’architecture sans jamais perdre de sa valeur. Elle garantit un extérieur à l’intérieur, un apport de lumière naturelle et un espace appropriable par les utilisateurs. Ces qualités s’appliquent certainement au projet des Clos d’Aubonne, mais une raison propre au programme justifie aussi ce choix. En effet, offrir un repère visuel est un élément central en psychologie gériatrique, car il peut arriver que les résidents se perdent. La cour, accessible depuis les larges espaces de distribution du rez-de-chaussée, propose un rapport direct à l’extérieur grâce à la faible hauteur du bâtiment. L’arbre au centre, la végétation et le mobilier habillent cet espace. En travaillant le plan de telle sorte que les programmes tournent autour de cet atrium, le projet permet aux résidents de se situer dans l’espace et de garantir un sentiment de familiarité avec le lieu qui les entoure. Rolf Seiler, co-fondateur du bureau LRS, ajoute que le choix de l’arbre participe aussi de cette réflexion, puisqu’il s’agit d’un charme, un arbre aux feuilles caduques qui représente le temps qui passe et les changements de saison. En plus d’être un espace de rencontre et de détente, la cour agit donc comme un repère spatio-temporel pour les résidents de l’EMS.

Échelle(s) intermédiaire(s)

Par sa situation privilégiée qui profite de la topographie du terrain, des vues lointaines et dégagées sur les vignes et coteaux, puis sur le lac et les Alpes sont offertes aux habitants de l’EMS. Rolf Seiler rappelle la routine de vie au sein de ce type de programme: «C’est une maison pour personnes âgées, des personnes peu actives. Elles sont souvent assises et contemplent. Il était important pour nous de créer ce lien au grand territoire.» En complémentarité de ce rapport au lointain, le projet renforce une relation d’intimité et de familiarité par son plan dense et sa forme compacte, et se positionne ainsi comme trait d’union entre ces deux univers.

Le dessin de la façade s’inscrit aussi dans cette intention. Cette dernière est rythmée par de larges ouvertures dotées de menuiseries en sapin, avec un cadre fixe et une partie ouvrante. L’échelle perçue en façade, grâce aux ouvertures, rythme deux logements. Ainsi, en vertu de la règle selon laquelle moins il y a de divisions, plus le bâtiment paraîtra petit, cette décision architecturale produit une plus grande générosité et articule une échelle médiane à cheval entre le bâtiment et la chambre.

Enfin, en plan, on retrouve à chaque étage des espaces d’une échelle intermédiaire à la disposition des résidents. Il s’agit de petits salons, kitchenettes et salles à manger. Bien que non indispensables au programme, il semblait pertinent aux architectes d’offrir ce type de lieux, comme une manière de rendre le bâtiment plus habitable et appropriable par ses utilisateurs. Dans ces salons, ouverts sur la cour et les couloirs de distribution, les matériaux changent, soulignant la nature différente de ces espaces. Les sols en terrazzo gris sont habillés d’un tapis affleuré, tandis que les plafonds revêtus de panneaux isolants suspendus acceptent une hauteur plus importante. On ne passe pas brutalement de sa chambre à la grande salle à manger avec soixante personnes; on peut se retrouver en petit groupe et ainsi choisir entre le privé, le collectif et le public. Ces kitchenettes à chaque étage permettent aussi aux personnes âgées de cuisiner elles-mêmes, ou de se préparer un café, ce qui les rattache à une forme d’activité domestique et d’indépendance. Ce dispositif architectural permet de garder les usagers actifs autant que possible.

Ces différentes décisions, toute issues d’un même principe architectural, produisent une fluidité des espaces et des transitions maîtrisées entre les différentes sphères d’intimité. Le projet peut se lire comme une série d’échelles emboîtées les unes dans les autres, le tout produisant un système harmonieux.

Faut-il encore inventer?

Au-delà de la réalisation des Clos d’Aubonne, il semble pertinent de prendre de la hauteur sur les projets d’EMS récemment construits, ou qui ont remporté le premier prix au cours des quelques années passées1. Le projet de Comamala Ismail à Bussigny actuellement en chantier, celui de l’Atelier Prati Zwartbol livré à Siviriez2 en 2024, la réalisation de gdap à Begnins en 2023, ou encore le projet primé en 2022 pour un nouvel établissement à Vuadens, aussi dessiné par gdap, partagent de nombreux points communs. Leurs gabarits sont similaires, tous adoptent la typologie d’un bâtiment a cour, rythment leur façade de façon semblable, et emploient les mêmes matérialités. Le bois, en particulier, est omniprésent — notamment pour les éléments au contact des résidents — dans le but d’apporter une certaine chaleur et d’atténuer l’ambiance institutionnelle. Les exigences programmatiques, les normes strictes et les contraintes expliquent en partie cette homogénéisation. Il serait difficile d’affirmer pour autant que les architectes ont relégué au second rang la créativité et la recherche typologique, mais nombre d’entre eux arrivent à des conclusions similaires. Sans doute ce modèle a-t-il fait ses preuves, répondant aux besoins des personnels comme des résidents.

Alors que le manque de renouvellement de cette typologie est souvent exprimé, ne peut-on pas au contraire poser la question: se pourrait-il que la compatibilité entre ce programme et les choix de projets précédemment mentionnés donne lieu à une forme finale, aboutie de l’architecture des EMS?

 

Notes

 

1. Un exercice similaire à celui effectué par Mounir Ayoub, «Pour­quoi tant de plans d’EMS res­semblent-ils à des 8?», TRACÉS 11/2020

 

2. Marion Cruz Absi, «À Siviriez: l’EMS hors les murs?», TRACÉS 12/2024

EMS Les Clos d’Aubonne (VD)

 

Maîtrise d’ouvrage: Ensemble Hospitalier de la Côte

 

Architecture: LRS Architectes

 

Génie civil: BG Ingénieurs conseils

 

Génie électrique: Lami

 

Génie CVS: H2

 

Physique du bâtiment: Gartenmann Engineering

 

Architecture du paysage: Vimade Architectes paysagistes

 

Acoustique: D’Silence

 

Concours: 2017

 

Début des travaux: Octobre 2021

 

Livraison: Septembre 2024

 

Surface bâtie: 1468 m2

 

Surface de plancher: 4823 m2

 

Coût travaux: 22 mio CHF

Magazine

Sur ce sujet