Zei­chen im Ge­wer­be­ge­biet

Beim Wettbewerb zum Neubau des Betriebsgebäudes Energie Kreuzlingen überzeugt das Projekt «Venedig» mit grossformatigen Photovoltaik-Paneelen und einer Grunddisposition mit Entwicklungspotenzial.

Publikationsdatum
27-04-2023

Neubau Betriebsgebäude Energie Kreuzlingen; Konzeptwettbewerb im offenen Verfahren

Stetig steigende Anforderungen an die Dienstleistungen brachten die betriebliche Infrastruktur von Energie Kreuzlingen an ihre Kapazitätsgrenzen. Die aktuelle Lagernutzung ist vorwiegend auf die verfügbaren Räumlichkeiten, weniger aber auf Betriebsabläufe ausgerichtet. Daher lobte das Unternehmen einen einstufigen, offenen Wettbewerb zur Erlangung einer Bestvariante für ein neues Betriebsgebäude aus. Folgende Nutzungen waren einzuplanen: Verwaltung, Werkstatt, Klein- und Grossteile­lager sowie eine Parkierungsanlage für Betriebsfahrzeuge, Personal sowie Besucherinnen und Besucher.

Die Parzelle liegt ausserhalb des Zentrums von Kreuzlingen in der Industrie- und Gewerbezone, die durch grossformatige Bauten geprägt ist. Sie ist mittelmässig erschlossen, der Bodensee ist fussläufig erreichbar.

Die eingereichten Projekte sollten hohen Ansprüchen bezüglich des Städtebaus, der Architektur, des Freiraums und der Nachhaltigkeit genügen. Einen hohen Stellenwert hatte selbstverständlich die Funktionalität des Vorschlags.

Der zukünftige Baukörper sollte sich gut in die Umgebung eingliedern und einen Vorschlag zum Übergang zwischen Industrie- und Wohnzone liefern. Die Strukturen waren so zu planen, dass spätere Anpassungen an neue Bedürfnisse einfach möglich sind. Der Aussenraum hat Potenzial, die Identität des Orts zu stärken.

Zuerst Defizite beheben

Alle 16 eingereichten Projekte erfüllten die Vorgaben und wurden zur Beurteilung zugelassen. Wie sich im Laufe der Begutachtung herausstellte, wiesen alle Vorschläge mehr oder weniger grosse Defizite insbesondere hinsichtlich des Städtebaus, der Architektur sowie der Betriebs- und Nutzerbedürfnisse auf. Das Preisgericht entschied daher, von der Option einer anonymen Bereinigungsstufe Gebrauch zu machen und lud drei Projekte, die über die nötigen Potenziale verfügten, dazu ein, in einer Weiterentwicklung allen Anforderungen zu genügen.

Venedig

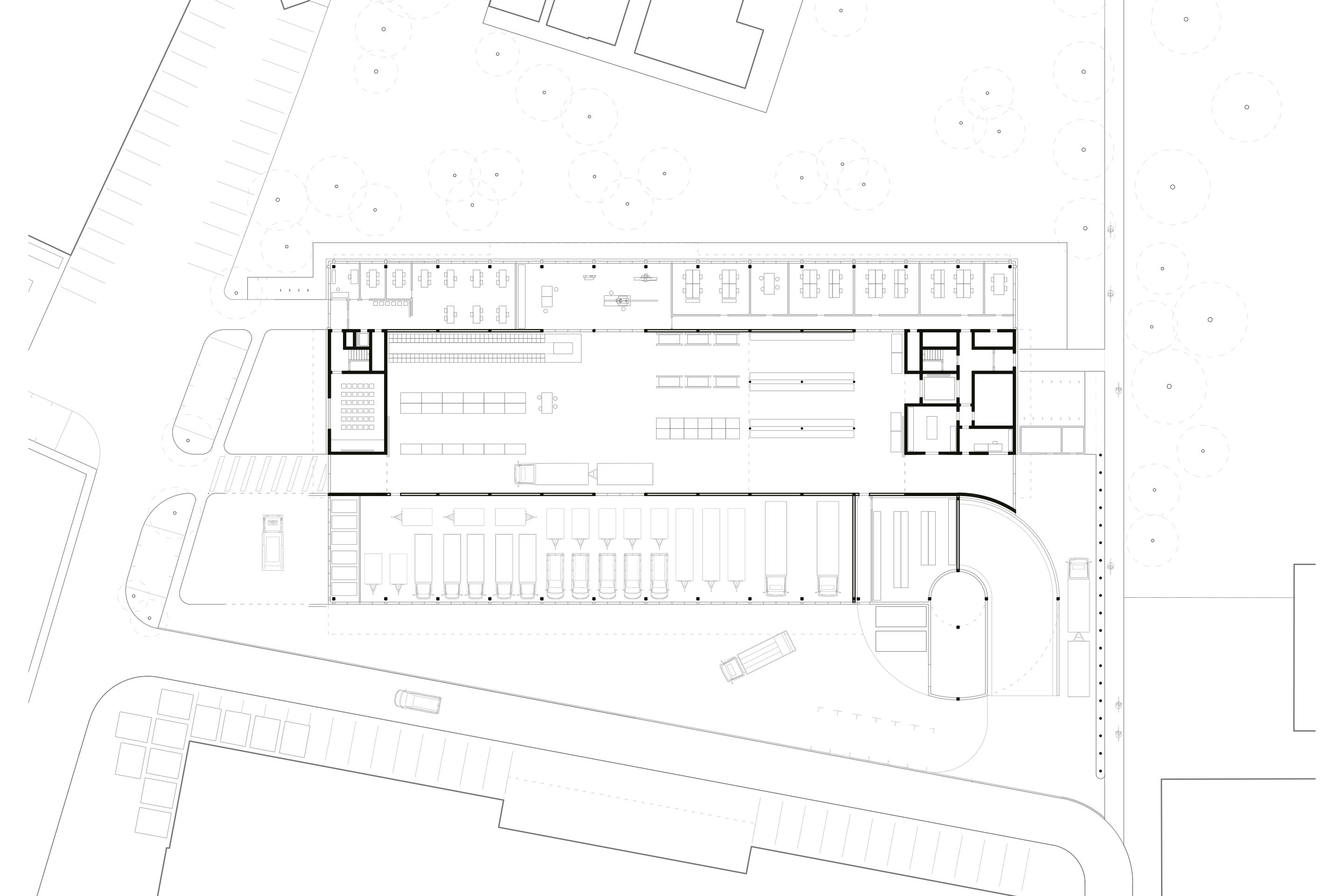
Die Nutzungseinheiten Dienstleistung, Lager und Logistik sowie Parkierung gliedern in Längsrichtung den Baukörper des Projekts «Venedig» von ATP architekten ingenieure. Die Büros auf der Nordseite profitieren nicht nur vom Ausblick auf den See, sondern werten diese Seite gegenüber der anliegenden Wohnbebauung auf. Die stützenfreie Logistikhalle bietet grosses Potenzial für die weitere Entwicklung. Die Parkierung ist rational und nutzerfreundlich angelegt und bietet die Möglichkeit einer direkten Gebäude­anbindung auf den Etagen.

Die wohlüberlegte Grund­disposition führt zu einer gut funktionierenden und entwicklungs­fähigen Gesamtanlage, die auch hinsichtlich Wirtschaftlichkeit zu überzeugen vermag. Die Jury empfiehlt, die Gestaltung des Vorplatzes mit dem anschliessenden inneren Eingangsbereich sowie die Anordnung der Aussenflächen zu überarbeiten und wünscht sich zudem eine harmonischere Abstimmung der Teilfassaden.

Für ein Betriebsgebäude ungewöhnlich – und daher umso begrüssenswerter – ist die differenzierte Gliederung sowohl des Baukörpers als auch der Fassade. Die Photovoltaik-Paneele wirken identitätstiftend und verdeutlichen, dass es hier um nachhaltige Energie geht. Insgesamt setzt der Entwurf ein Zeichen in der – leider üblichen – tristen Umgebung eines Gewerbege­biets.

Riva

Das Thema des Entwurfs: «Riva» von bürge wendel architekten ist eine einheitliche Tragstruktur für alle Nutzungen. Diese ist sowohl in der Fassaden- als auch in der Grundrissgestaltung ablesbar. Der grosse Raster ist gleichzeitig eine Stärke wie auch eine Schwäche des Entwurfs. Er bietet maximale Flexibilität, doch lässt sich das ungünstige Verhältnis von Nutzfläche zu ­Volumen mit der vorgeschlagenen Nutzungsverteilung kaum optimieren.

Trotz des ansprechenden architekto­nischen Ausdrucks bleibt fraglich, ob sich die Anordnung der Tragstruktur vor der Fassade konstruktiv rechtfertigen lässt. Die zahlreichen Durchdringungen der Fassade sind dabei ebenso kritisch zu betrachten.

MS Energie

Wellenförmige Betonelemente charakterisieren den Beitrag «MS Energie» von Comamala Ismail Architectes. Sie lassen den Baukörper wuchtig und massig erscheinen. Die Jury kritisiert die Elemente wie auch das Tragwerk aus Beton als «unangemessen», obschon die Planenden versuchten, den hohen Anteil an grauer Energie mit geeigneten Massnahmen zumindest rechnerisch zu kompensieren. Als funktionale Mängel werden vor allem die Anordnung der Zufahrt sowie die Belichtung der Halle angekreidet. Um genügend Parkplätze nachweisen zu können, ist im Unterschied zu den beiden höherrangigen Projekten zudem ein Untergeschoss vorgesehen, was zu höheren Erstellungskosten führt.

Dieser Artikel ist erschienen in TEC21 13/2023 «Die letzte Meile».

-> Jurybericht auf competitions.espazium.ch.

Auszeichnungen

1. Rang, 1. Preis: «Venedig»
ATP architekten ingenieure, Zürich
2. Rang, 2. Preis: «Riva»
bürge wendel architekten, Wil
3. Rang, 3. Preis: «MS Energie»
Comamala Ismail Architectes, Delémont

FachJury

Christian Penzel, Dipl.-Ing. Architekt, Zürich (Vorsitz); Barbara Burren, Dipl. Architektin, Zürich; Heidi Stoffel, Dipl. Architektin, Weinfelden; Andrea Gebhard, Dipl.-Ing. Landschafts­architektin/Stadtplanerin, München; Jürg Conzett, Dipl. Bauingenieur, Chur; Michael Schmidt, Leiter Bauverwaltung, Stadt Kreuzlingen (Ersatz)

SachJury

Thomas Niederberger, Stadtpräsident Kreuzlingen; Thomas Beringer, Stadtrat Departement Dienste, Kreuzlingen; Guido Gross, Direktor Energie Kreuzlingen; Maurizio Ditaranto, Technischer Leiter Energie  Kreuz­lingen (Ersatz)

Verwandte Beiträge