Ro­bus­ter Stadt­bau­stein

Neubau Baugewerbliche Berufsschule, Zürich

Gunz & Künzle Architekt*innen haben die Baugewerbliche Berufsschule Zürich (BBZ) fertiggestellt. Es ist das erste Bildungsgebäude, das mit dem Label «Standard Nachhaltiges Bauen Schweiz» (SNBS) Stufe Gold zertifiziert wurde. Die Prinzipien der Nachhaltigkeit sind kaum sichtbar, gerade deshalb ist eine genauere Betrachtung relevant und lohnenswert.

Publikationsdatum
07-07-2025

Wer den Zürcher Hauptbahnhof verlässt und sich in Richtung Nordwesten bewegt, ist schnell umgeben von einer Mischung aus Wohn-, Gewerbe- und Schulbauten – dem Kreis 5. Der Kanton Zürich, zuständig für die zahlreichen Berufsschulen im Quartier, ist schon lange unzufrieden mit dem Bestand. Es fehlen Turnhallen, einzelne Schulen sind auf mehrere Gebäude verteilt und die Infrastruktur ist teilweise nicht mehr zeitgemäss.

Im Jahr 2016 hat der Zürcher Regierungsrat deshalb die «Regionalstrategie Berufsbildungsmeile» festgelegt und zwei Entwicklungsgebiete freigegeben. In einem offenen Projektwettbewerb für ein neues BBZ mit 102 teilnehmenden Teams, lanciert durch das Hochbauamt des Kantons Zürich, hat sich im Mai 2018 das Zürcher Büro Gunz & Künzle Architekt*innen für das Gebiet Limmatstrasse/Hafnerstrasse durchgesetzt.

Offener Projektwettbewerb vor #FridaysForFuture

Kurz darauf, im August des gleichen Jahres, streikte die Aktivistin Greta Thunberg erstmals dafür, dass Schwedens Klimapolitik den Vereinbarungen des Pariser Klimaabkommens von 2015 nachkommen soll. Ihre wöchentlichen Streiks verbreiteten sich über die sozialen Medien unter #FridaysForFuture und gewannen weltweit zahlreiche Unterstützende. Doch inwiefern ist das für das neue BBZ von Relevanz?

Der Entwurf von Gunz & Künzle entstand noch vor der verstärkten öffentlichen Debatte über Nachhaltigkeit. Architekt Mathias Gunz spricht von einer «Bruchstelle». Bei Schulbauwettbewerben geht es heute um Themen wie Holzbau, Low-Tech und den Erhalt bestehender Gebäude, was einen direkten Einfluss auf das architektonische Erscheinungsbild hat. 2018 schlug keines der 102 Teams einen Umbau des Bestands vor. Statt Low-Tech stand eine effiziente Haustechnik im Vordergrund; CO2-arme Materialien waren weniger ein Thema.

Städtebau, Schaufenster und Effizienz

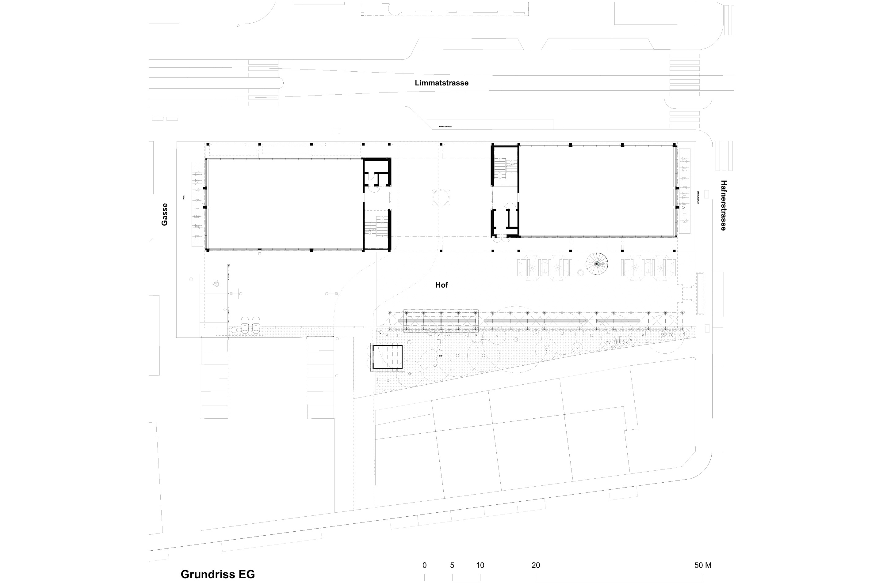
Der Entwurf von Gunz & Künzle ist heute realisiert und steht als schmales, langgestrecktes Volumen unmittelbar an der Parzellengrenze zur Strasse. Durch diese städtebauliche Platzierung entsteht auf der Rückseite des Gebäudes ein grosszügiger Pausenhof. Zu den benachbarten Wohngebäuden wurden Bäume gepflanzt und unterschiedlichste Hecken. Pflanzen und Blumen dienen den angehenden Zeichnerinnen und Zeichnern der Fachrichtung Landschaftsarchitektur als Anschauungsbeispiel.

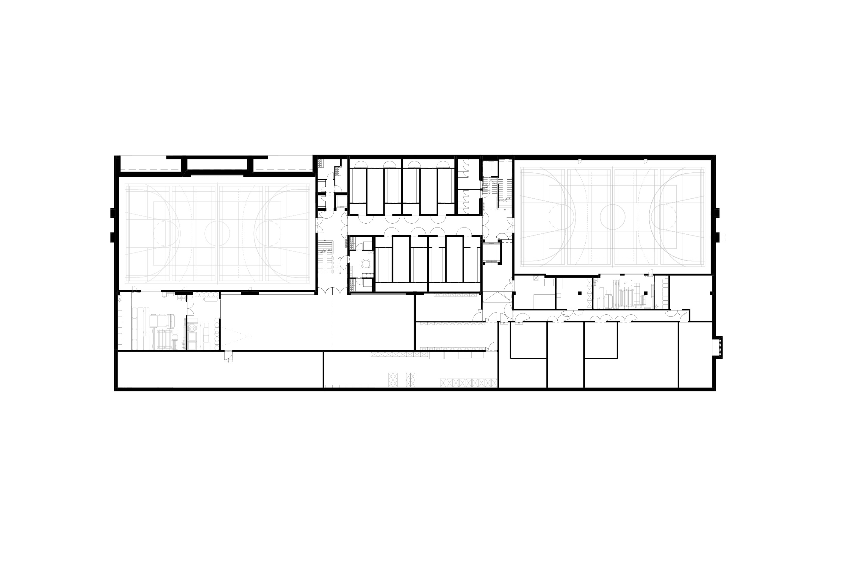
Der Pausenhof ist öffentlich zugänglich und bietet eine Querverbindung zwischen der Konrad- und Limmatstrasse – eine Vorgabe aus dem Wettbewerb. Strassenseitig wird die Reduktion des Erdgeschosses auf je zwei halb eingegrabene Sporthallen und eine offene Passage in der Mitte sichtbar. Die Sporthallen sind rundum verglast. Ob sich diese Exponiertheit im Stadtraum bewährt, wird sich zeigen – zum Schutz vor ungewolltem Publikum stehen vertikale Stoffmarkisen zur Verfügung. 

Die beiden Sporthallen springen im Volumen jeweils einige Meter zurück und schaffen so überdachte Zugänge zur Passage und zum Eingang. Die eine Halle richtet sich zur Limmatstrasse aus, die andere zur Hafnerstrasse und zum Innenhof. So wollen die Architekten den Stadtraum optimal mit dem Gebäude verbinden. Die Fassade ist wie nach Lehrbuch klassisch gegliedert – Sockel, Hauptteil und Dachgeschoss.

Die Wettbewerbsjury hat insbesondere den zweigeschossigen Sockel als «sehr innerstädtisch» gelobt. Eine dünne Glas-Metall-Haut bindet diese zwei Geschosse zusammen. Das obere Sockelgeschoss ist geprägt von einem fliessenden «Raumteppich», der sich aus der Tragstruktur der Sporthallen, einem Betonfachwerk, ergibt. Im westlichen Teil sind die Büros der Schulleitung und der Administration angeordnet. Die Arbeitstische stehen entweder frei im Raum oder sind, wie etwa die der Schulleitung, mit Schallschutzverglasung und Vorhang umschlossen.

Hier finden Sie alle Beiträge zum Thema gesammelt in unserem E-Dossier Schulen.

Im Osten ist eine kompakte Aula zu finden mit angegliedertem Essbereich samt Terrasse und Treppe zum Innenhof. Dazwischen liegt die als klassisches Foyer in Auftrag gegebene «Werkhalle». Gunz & Künzle schufen hier einen über der Passage schwebenden Raum für Ausstellungen und Präsentationen aller Art.

Über dem Sockel thronen die drei Hauptgeschosse mit Unterrichtsräumen. Ein aussenliegendes tragendes Betongitter mit Füllungen aus Fenster, Brüstung und Sonnenschutz bildet die Klassenzimmer ab. Ein Zimmer, von den Behörden «Modul» genannt, besteht aus zwei Feldern. Die mittlere Stütze gewährt Flexibilität für die Anforderungen der Zukunft. So streng die Unterrichtsgeschosse von aussen wirken, so effizient und pragmatisch sind sie im Inneren organisiert.

Alle drei Geschosse sind nahezu identisch. Im 2. Obergeschoss hat man auf eine Wand verzichtet und ein Lehrerzimmer geschaffen. Entlang der Längsfassaden reihen sich die Klassenzimmer aneinander. Zum Innenhof hin ist an zwei Stellen ein Bereich für informelles Lernen ausgespart. An beiden Enden des Korridors ist jeweils ein grossformatiges Fenster mit Sitzmöglichkeiten auf Secondhand-Möbeln angeordnet, die die Architekten eigens ausgesucht haben.

Das Dachgeschoss ist zurückversetzt und als Holzkonstruktion mit vorgehängten Eternitplatten ausgebildet. Man trifft auf Werkräume, Lagerräume für Modelle und an beiden Enden zwei Haustechnikzentralen. Auf zwei schmalen, länglichen Dachterrassen entlang des Gebäudes können die Schülerinnen und Schüler Pflanzen in Betonkübeln ziehen.

Goldenes Nachhaltigkeitszertifikat

Aus heutiger Perspektive erscheint die neue BBZ nicht per se nachhaltig. Trotzdem hat es als erstes Bildungsgebäude der Schweiz das Nachhaltigkeitslabel SNBS Stufe Gold erhalten. Kathrin Sindelar, Leiterin für Nachhaltigkeit beim Hochbauamt des Kantons Zürich, hat die Umsetzung des Projekts begleitet und das Gebäude in einem offiziellen Kurzfilm eingeordnet. 

Sie spricht davon, dass dank der guten Anbindung an den öffentlichen Verkehr fast vollständig auf Parkplätze verzichtet werden konnte. Das Gebäude verfügt über eine Photovoltaikanlage auf dem Dach, die für den Eigenverbrauch dimensioniert ist und wirtschaftlich betrieben werden kann. Die Wärmeerzeugung erfolgt über Fernwärme und die Lüftungsanlagen sind mit Wärmerückgewinnung ausgestattet.

Mathias Gunz ergänzte im persönlichen Gespräch, dass die Architekten durch effiziente Grundrisse, eine hohe Nutzungsdichte, strikte Systemtrennung und eine auf das Wesentliche reduzierte Materialisierung die graue Energie reduzieren konnten. Zudem haben sie die Nutzenden während des Planungsprozesses miteinbezogen, um ein möglichst robustes Gebäude zu schaffen. 

Das Verständnis von Nachhaltigkeit in der Architektur hat sich seit der Klimabewegung stark verändert. Optisch wird dies am neuen BBZ deutlich. Es wurde als nachhaltig zertifiziert, unterscheidet sich aber mit seiner aussenliegenden Betonstruktur deutlich von den unzähligen Holzfassaden aktueller Schulbauprojekte. Nachwachsende Materialien, Rückbaubarkeit oder die Wiederverwendung von Bauteilen sind hier noch kein Thema.

Dennoch ist das Gebäude für die Diskussion wertvoll. Zum einen, weil es die rasante Entwicklung in der politischen Debatte um Nachhaltigkeit in der Architektur aufzeigt. Und zum anderen als Beleg dafür, dass auch weniger sichtbare Nachhaltigkeitsprinzipien ihre Wirkung entfalten und ebenfalls in Zukunft von grosser Bedeutung sein werden.
 

Neubau Baugewerbliche Berufsschule, Zürich

 

Vergabeform
Projektwettbewerb im offenen Verfahren, 2018 
 

Auftraggeberin/ Bauherrschaft
Bildungsdirektion Kanton Zürich / Baudirektion Kanton Zürich 
 

Architektur (GP Partner)
Gunz & Künzle Architekt*innen, Zürich
 

Baumanagement (GP Partner)
Jaeger Coneco , Zürich
 

Tragwerk
Ingeni, Zürich
 

HLKS-Planung
PZM, Zürich
 

Elektroplanung / Lichtplanung
R+B Engineering, Zürich

Bauphysik / Akustik / Nachhaltigkeit
Wichser Akustik + Bauphysik, Zürich
 

Brandschutz
BG Ingenieure und Berater, Zürich
 

Landschaftsarchitektur
Kollektiv Nordost, St. Gallen
 

Fassadenplanung
EBP Schweiz, Zürich


Kunst am Bau (Innen)
Marie Schumann, Zürich


Kunst am Bau (Aussen)
Laurent Güdel, Michal Florence Schorro, Giona Bierens de Haan & Raphael Raccuia


Grafik / Signaletik
mdbuero


Geschossfläche GF (SIA 416)
10 198 m2


Gebäudevolumen GV (SIA 416)
43 356 m2


Gebäudekosten BKP 2
31.5 Mio. CHF


Baukosten BKP 1-9
50.5 Mio. CHF


Energieversorgung
Fernwärme


Photovoltaikmodule
NeON Technologie, Monokristalline Silizium-Solarzellen, Leistung: 120.595kWp


Labels
Minergie-P-ECO, SNBS Gold
 

Tags

Verwandte Beiträge